La casa tiene 8 metros de largo y tiene una forma compacta. Dichos parámetros realmente le permiten planificar correctamente el territorio de asignación. Pero para la funcionalidad y la comodidad de una casa de dos pisos, 8 × 8 m es suficiente. El edificio es de apariencia pequeña: en el interior hay mucho espacio para planificar las instalaciones, especialmente si el edificio tiene más de un piso. El diseño interior del edificio permite la combinación de habitaciones, pero no debe faltar espacio para una familia de 4-5 personas. La versión de dos pisos se puede dividir en 2 zonas: activa y para relajación. El primer piso está reservado para recibir invitados, cocinar, eventos festivos. En el segundo, descansan y duermen. Casas con una base de 64 sq. También estoy con áticos, terrazas y en una versión simple de un piso. Una base sólida deja la oportunidad de hacer otro piso.
Por el área total de las instalaciones, tales casas se pueden comparar con grandes apartamentos de tres, cuatro y cinco habitaciones. Con un diseño competente, el espacio interno será aún más grande. En el edificio de 8 por 8 hay un lugar para varios baños, dos dormitorios, una gran sala de estar y una cocina / comedor. Durante la construcción de tales viviendas, debe cuidar la fortaleza de los cimientos. Una base sólida permitirá construir pisos. Las personas a menudo construyen una casa con una opción económica y luego quieren convertirla en una mansión grande y costosa. El diseño de los edificios de 8 por 8 m se caracteriza por el mismo tipo: el primer piso está reservado para la sala de estar, el pasillo, el baño y la cocina, el segundo, para una o dos habitaciones. El ático se rehizo y se utilizó como otra habitación o ático. Puedes ganar un lugar combinando algunas habitaciones. El salón a menudo se combina con una cocina, al tiempo que mejora el diseño de estas dos habitaciones.
Reglas para la ubicación de la casa en el sitio
El edificio residencial debe ubicarse al menos a 3 metros de la línea roja de viaje y al menos a 5 metros de la línea roja de las calles. La distancia entre las casas en lados opuestos del pasaje debe ser de 6 a 15 metros. Si los edificios están hechos de materiales incombustibles, entonces una distancia de 6 metros es suficiente, pero si ambas casas se construyeron con una gran cantidad de madera, entonces se necesita un mínimo de 15 metros. El intervalo más pequeño permitido desde la casa hasta el borde de otro sitio es de 3 m. Se hace un espacio libre de al menos 8 m entre el edificio residencial y la casa de baños / pozo / dispositivo de compostaje.La reserva para las dependencias debe ser de 12 m. Es necesario construir una casa cuadrada entre el centro de la parcela y una de las esquinas para dejar todo el territorio posible para el patio. Sin embargo, mucho depende del área de la asignación de tierras. Cuanto más pequeño es, más cerca del borde necesita colocar el edificio.
La elección del material para la construcción.
Las casas más prestigiosas son de madera. Son presentables externamente, y dentro de tales edificios siempre hay un buen olor. La casa todavía se puede construir con troncos. Sin embargo, todas estas opciones se caracterizan por una baja seguridad contra incendios. El material más utilizado para la construcción de edificios privados es el ladrillo. Esta es una opción tradicional. Las estructuras a partir de él con la tecnología de albañilería adecuada pueden mantenerse durante siglos. Este material facilita la asignación de espacio para salas técnicas. Si se utilizan paneles de hormigón armado como material de construcción, entonces el exterior de la casa no será notable. Durante la construcción, puede usar bloques de concreto livianos. Algunas subespecies de este material pueden reducir significativamente el costo del proyecto. En este sentido, cabe destacar los bloques de espuma. Otros tipos de bloques de hormigón livianos son los bloques de hormigón celular y el hormigón de escoria.
Ventajas y desventajas de los materiales de madera.
Entre los materiales de madera cabe destacar:
madera aserrada;
planeado
pegado
El aserrado puede procesarse aún más y, debido a este ancho calibrado, suaviza la superficie. Es de bajo costo. Las desventajas de los espacios en blanco son la tendencia a la deformación, la posibilidad de que el agua fluya hacia las costuras y una gran inversión en tiempo de procesamiento. Las ventajas de la madera cepillada son la preservación de su forma original, resistencia, resistencia a la exposición al sol, fluctuaciones de temperatura, resistencia a la humedad, cualidades de aislamiento térmico. También hay desventajas, expresadas en la posible contracción de la casa de hasta 15 cm y una tendencia a formar huecos debido a la eversión. Las vigas pegadas tienen una alta tasa de resistencia.Se caracteriza por la ausencia de contracción, deformación y secado. Dicho material tiene una humedad óptima, lo que impide el desarrollo de procesos de descomposición. Las desventajas se manifiestan en menos oportunidades de circulación de aire y un alto precio.
Ventajas y desventajas de una estructura de ladrillo.
Para la construcción de casas de ladrillo, se utilizan con mayor frecuencia cerámica y silicato. El primer tipo es ecológico y denso. En construcción, también se valora por su conductividad térmica y resistencia al agua. Este material tiene porosidad, lo que le permite incluir las ventajas anteriores. También debe tenerse en cuenta la resistencia a las heladas de los ladrillos cerámicos. Una de las desventajas es la forma irregular de algunos productos. Las desviaciones no siempre son notables y esto dificulta la mampostería. Aún en la composición del ladrillo puede quedar una cierta cantidad de piedra caliza. El ladrillo de silicato también es un material ecológico. Es compatible con casi cualquier mortero de albañilería. El ladrillo de silicato está dotado de una gran cantidad de propiedades positivas. Cada elemento tiene una geometría perfecta. El material tiene alta resistencia a la compresión, resistencia a las heladas, buen aislamiento acústico. Sin embargo, es más pesado que la cerámica, por lo que se necesita una base más sólida. El material de silicato no tolera altas temperaturas.
El ladrillo de silicato es un material hermoso, pero la versión de cerámica tiene más variedad en términos de detalles decorativos.
Ventajas y desventajas de las casas de estructura.
Estos edificios son una opción económica en comparación con los de ladrillo. Además, el revestimiento de estos edificios puede ser menos complejo y más diverso. El trabajo de acabado comienza inmediatamente después de la finalización de la construcción. Las casas de estructura retienen el calor mucho mejor. Además, dicho edificio puede erigirse tanto en verano como en invierno. Existe la oportunidad de ahorrar en la base, porque no se requiere una base con una gran capacidad de carga. La construcción de la estructura del marco es rápida.Se puede construir una casa de 8 × 8 m en pocos meses (incluida la decoración). Mal aislamiento es la falta de casas de marco. Los edificios monolíticos, de ladrillo y de bloques son mejores en este sentido. Debe tenerse en cuenta y el factor de peligro en el caso de utilizar materiales de baja calidad. Esto se aplica tanto a la estructura terminada como al riesgo para el trabajador durante la construcción.
Qué tipo de base elegir
Los principales tipos de cimientos:
cinta adhesiva
plato
pila
columnar;
flotante
Todo depende de los materiales de construcción utilizados para la construcción de la casa y las características del suelo. La base de la tira se adapta perfectamente a cargas pesadas (paredes y pisos pesados en el hogar). Esto se aplica al tipo de base enterrada. Una casa de ladrillo o piedra con dimensiones de 8 por 8 m se puede construir sobre tal. La base poco profunda es más débil y se utiliza para la construcción de estructuras de madera ligera. La base de losa es universal en cierta medida. Es aplicable en casi todos los tipos de suelo y en cualquier profundidad de agua subterránea. Sobre esta base se puede construir una casa de marco, madera y ladrillo. Los costos, sin embargo, serán altos. Vale la pena señalar la calidad de los cimientos de pilotes. Dado que este es el tipo de sustrato más confiable, se usan en suelos inestables. Para la construcción de casas de campo de baja altura, a menudo se utilizan cimientos sobre pilotes de tornillo.
Pisos y distribución de la casa.
El tamaño de 8 por 8 metros le permite organizar el edificio en una pequeña parcela, al tiempo que garantiza una vida cómoda en él. El número de pisos generalmente se elige entre uno y dos. Además, la segunda opción se puede realizar de diferentes maneras: será una casa con un segundo piso y un ático pequeño, o con un ático espacioso. Al diseñar una casa, debe considerar usar el territorio adyacente, un gran lugar para terrazas y áreas de verano. Planificar el interior de un edificio es un proceso complejo y responsable.Es importante tomar la decisión correcta sobre la cantidad de habitaciones, el tamaño del pasillo y la configuración del primer piso. Vale la pena considerar las opciones para combinar varias habitaciones de destino en una. Un atributo obligatorio de todas las casas privadas es una espaciosa habitación de invitados. Todos estos aspectos deben combinarse en una solución.
Casa de dos pisos
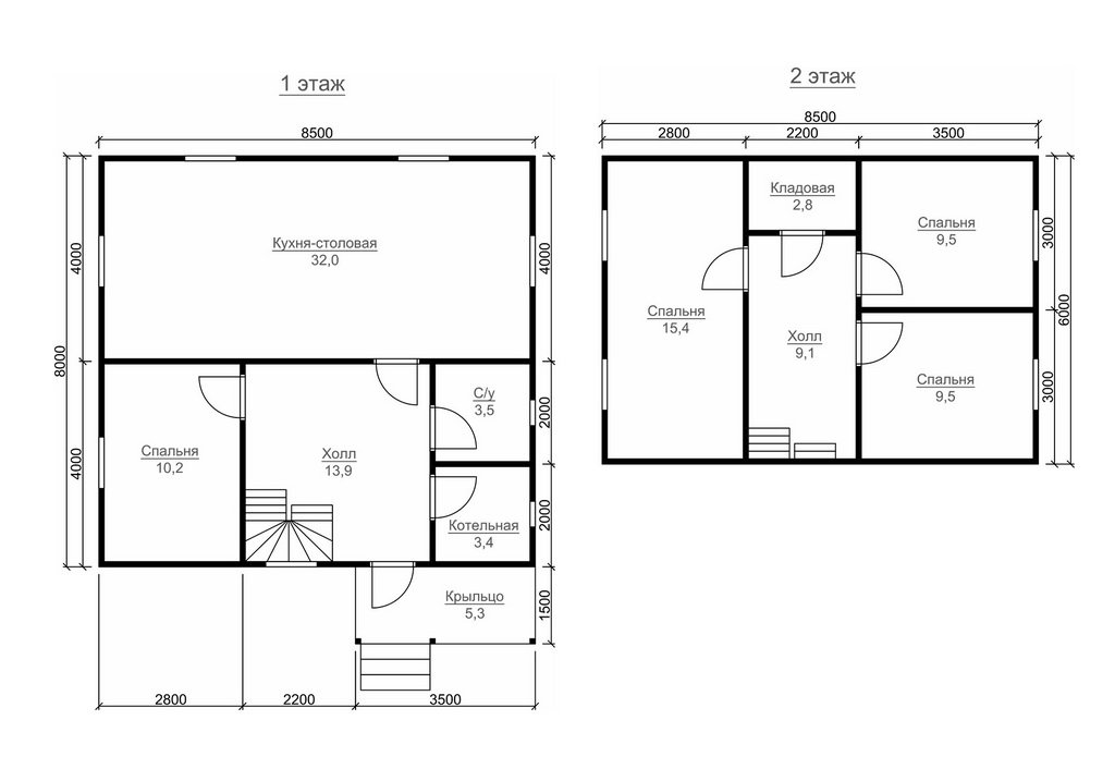
Un edificio de 2 pisos es una excelente opción para salvar el sitio. Esto te permitirá crear y equipar pequeñas estructuras en él. El techo estándar de 3 metros de altura se puede abandonar a favor de un 2,8 metros. En una casa de dos pisos, esto ahorrará energía en la calefacción. Se planean edificios de 2 pisos con parámetros de 8 × 8 metros y un techo con una ligera pendiente dependiendo de si se trata de un edificio residencial, una cabaña para residencia permanente o una opción estacional. El diseño óptimo de un edificio residencial de 2 plantas implica la presencia en la planta baja: una sala de estar combinada con un hall de entrada, una cocina que bordea este espacio, una habitación para niños y uno o dos baños. El segundo piso es un lugar para un dormitorio grande y estudio un poco más pequeño. Un pasillo y otro dormitorio / baño se hacen al lado de los escalones. En el segundo piso, es deseable tener de 1 a 3 balcones.
Casa de una planta
El diseño de una casa de un piso que mide 8 × 8 m debe tener en cuenta el número de niños en la familia. Si hay dos, entonces puede seleccionar una habitación grande o dos pequeñas. Una opción son dos habitaciones, una para adultos y otra para niños. Las habitaciones son multifuncionales: con mesas y armarios empotrados. El área mínima recomendada para adultos es de 12 metros cuadrados. m, con una ventana. Una habitación para niños se hace un poco más grande y preferiblemente con dos ventanas. Para la sala de estar es suficiente 20 metros cuadrados. El hall de entrada, la cocina, el baño y el inodoro están mejor ubicados en 14-16 metros cuadrados. m. Debajo de la cocina, vale la pena resaltar un lugar cerca de la entrada. Desde un pequeño hall de entrada se recomienda realizar tantas salidas a otras habitaciones como sea posible.Ambas habitaciones están ubicadas en lados opuestos, si es posible. Hay otra buena opción de diseño, que sugiere la presencia de un dormitorio y un estudio con una litera para una partición.
Casa con buhardilla
La opción más común es un edificio con un ático como segundo piso. El frente y la parte posterior de la casa se pueden hacer lo más diferentes posible entre sí. Bajo el techo del ático, generalmente se asigna una cierta cantidad de espacio libre. Las chimeneas decorarán el techo con una gran pendiente. En la planta baja de una casa cuadrada con un ático, debe equipar el hall de entrada con un armario, una cocina con una pequeña adición, como una despensa y una gran habitación de invitados. Si planea asignar 2 dormitorios, uno de ellos está en la planta baja y está preparado para recibir invitados. Es mejor levantar una escalera que conduce arriba no en el pasillo, sino en la sala de estar. En el piso del ático, es necesario asignar varias habitaciones. El primero de ellos es un amplio dormitorio, combinado con una oficina. También debes hacer una guardería grande. El piso del ático es el lugar adecuado para una habitación con máquinas de ejercicios.
Casa con anexo
El edificio de forma cuadrada no será impedido por extensiones como terrazas y terrazas. Esta es una forma común de expandir su espacio vital. Allí podrá relajarse, pasar tiempo en días cálidos, organizar un almacén o simplemente colocar algunos artículos. Las terrazas son abiertas, cerradas, ajustables con la ayuda de estructuras deslizantes. La versión acristalada es una sala adicional completa con un propósito multipropósito, principalmente para recreación. Puede ahorrar en terrazas de calefacción. La mayoría de las casas tienen un porche abierto o cerrado en lugar de toda la longitud de la pared. Es más fácil prever al diseñar una casa. El garaje debe estar ubicado cerca del edificio residencial. Idealmente, tiene una base común con la casa. Esta es otra razón para considerar todas las opciones posibles de extensiones en la etapa de diseño de la casa y el territorio.
Hay algunas opciones más interesantes para extensiones:
Invernadero En climas fríos, será posible tomar vegetales o frutas rápidamente de un jardín cerrado.
El invernadero es una opción muy interesante. Además de las plantas, se puede llenar con muebles. Obtendrá una habitación hermosa y original con buena luz natural.
Características de la colocación de habitaciones en la casa.
En el caso del primer piso, es importante combinar varias habitaciones en un solo espacio. Hall de entrada y vestidor están en una habitación. La cocina se hace mejor con una pequeña despensa. La habitación de invitados necesita una escalera que conduzca al segundo piso o al ático (si corresponde). Es aconsejable asignar un baño en el piso, y si el edificio es de un piso, necesitará dos en uno (1 combinado y 1 inodoro). La habitación en el primer piso está hecha universal, adecuada para alojar huéspedes. Si una persona mayor o una persona discapacitada vive en la casa, la habitación en el piso inferior de las dos debe ser entregada a él. El segundo nivel se complementa con las habitaciones objetivo que no están en el primero. Aquí hay un lugar para la relajación y el silencio. Las escaleras en el segundo piso deben estar rodeadas por una cantidad significativa de espacio libre. No debe ser cargado por una gran cantidad de dispositivos.
Requisitos básicos para la disposición del piso superior:
Habitación infantil con armario empotrado;
Un baño;
Habitación compacta para almacenar artículos;
Amplio dormitorio con balcón.
Proyectos modernos de casas 8 a 8
Las opciones que se pueden encontrar en los catálogos de proyectos terminados tienen varias características similares: el número de salas de estar - 4-5, área útil - más de 100 metros cuadrados. m, la presencia de una terraza. Hay opciones con un sótano, un ático. Uno de los proyectos clásicos de la casa de 8 por 8 m prevé la presencia de un pequeño hall de entrada cuadrado, que sale al pasillo con escaleras al segundo piso. Hay un baño al lado de la puerta principal. Enfrente de los escalones hay una gran sala de estar larga (aproximadamente 27 metros cuadrados). Ella va a la cocina al otro lado del edificio.En el segundo piso hay dos dormitorios. Otras opciones populares incluyen la ausencia de habitaciones largas, una escalera directamente en la sala de estar, uno / dos dormitorios en diferentes o solo en el segundo piso. Una característica distintiva de los proyectos de casas modernas es la gran área total de aberturas de ventanas y pasillos cortos.
Al elegir un proyecto de casa, en primer lugar, es necesario tener en cuenta las necesidades de todos los miembros de la familia.
Conclusión
Un área de 8 por 8 metros es suficiente para implementar ideas arquitectónicas. La configuración cuadrada está bien combinada con parcelas rectangulares de tierra, que son la mayoría. La planificación de un edificio de esta forma rara vez va acompañada de problemas con el cumplimiento de las normas de seguridad. La principal dificultad es precisamente la elección del diseño interno, porque hay variaciones más que suficientes. Será necesario decidir cuántas habitaciones se necesitan, y si vale la pena hacerlo en la planta baja, y también considerar muchos otros matices. La sala de estar generalmente se combina con una cocina o pasillo. Los baños se colocan en ambos niveles, y si esto no es posible, en el primero. En el segundo piso, es necesario proporcionar un lugar para una habitación grande y una habitación espaciosa para niños. Se debe construir al menos un balcón. En algunos casos, la construcción y decoración lleva solo unos pocos meses.
La casa tiene 8 metros de largo y tiene una forma compacta. Dichos parámetros realmente le permiten planificar correctamente el territorio de asignación. Pero para la funcionalidad y la comodidad de una casa de dos pisos, 8 × 8 m es suficiente. El edificio es de apariencia pequeña: en el interior hay mucho espacio para planificar las instalaciones, especialmente si el edificio tiene más de un piso. El diseño interior del edificio permite la combinación de habitaciones, pero no debe faltar espacio para una familia de 4-5 personas. La versión de dos pisos se puede dividir en 2 zonas: activa y para relajación. El primer piso está reservado para recibir invitados, cocinar, eventos festivos. En el segundo, descansan y duermen. Casas con una base de 64 sq. También estoy con áticos, terrazas y en una versión simple de un piso. Una base sólida deja la oportunidad de hacer otro piso.
Contenido
Características de 8 por 8 casas
Por el área total de las instalaciones, tales casas se pueden comparar con grandes apartamentos de tres, cuatro y cinco habitaciones. Con un diseño competente, el espacio interno será aún más grande. En el edificio de 8 por 8 hay un lugar para varios baños, dos dormitorios, una gran sala de estar y una cocina / comedor. Durante la construcción de tales viviendas, debe cuidar la fortaleza de los cimientos. Una base sólida permitirá construir pisos. Las personas a menudo construyen una casa con una opción económica y luego quieren convertirla en una mansión grande y costosa. El diseño de los edificios de 8 por 8 m se caracteriza por el mismo tipo: el primer piso está reservado para la sala de estar, el pasillo, el baño y la cocina, el segundo, para una o dos habitaciones. El ático se rehizo y se utilizó como otra habitación o ático. Puedes ganar un lugar combinando algunas habitaciones. El salón a menudo se combina con una cocina, al tiempo que mejora el diseño de estas dos habitaciones.
Reglas para la ubicación de la casa en el sitio
El edificio residencial debe ubicarse al menos a 3 metros de la línea roja de viaje y al menos a 5 metros de la línea roja de las calles. La distancia entre las casas en lados opuestos del pasaje debe ser de 6 a 15 metros. Si los edificios están hechos de materiales incombustibles, entonces una distancia de 6 metros es suficiente, pero si ambas casas se construyeron con una gran cantidad de madera, entonces se necesita un mínimo de 15 metros. El intervalo más pequeño permitido desde la casa hasta el borde de otro sitio es de 3 m. Se hace un espacio libre de al menos 8 m entre el edificio residencial y la casa de baños / pozo / dispositivo de compostaje.La reserva para las dependencias debe ser de 12 m. Es necesario construir una casa cuadrada entre el centro de la parcela y una de las esquinas para dejar todo el territorio posible para el patio. Sin embargo, mucho depende del área de la asignación de tierras. Cuanto más pequeño es, más cerca del borde necesita colocar el edificio.
La elección del material para la construcción.
Las casas más prestigiosas son de madera. Son presentables externamente, y dentro de tales edificios siempre hay un buen olor. La casa todavía se puede construir con troncos. Sin embargo, todas estas opciones se caracterizan por una baja seguridad contra incendios. El material más utilizado para la construcción de edificios privados es el ladrillo. Esta es una opción tradicional. Las estructuras a partir de él con la tecnología de albañilería adecuada pueden mantenerse durante siglos. Este material facilita la asignación de espacio para salas técnicas. Si se utilizan paneles de hormigón armado como material de construcción, entonces el exterior de la casa no será notable. Durante la construcción, puede usar bloques de concreto livianos. Algunas subespecies de este material pueden reducir significativamente el costo del proyecto. En este sentido, cabe destacar los bloques de espuma. Otros tipos de bloques de hormigón livianos son los bloques de hormigón celular y el hormigón de escoria.
Ventajas y desventajas de los materiales de madera.
Entre los materiales de madera cabe destacar:
El aserrado puede procesarse aún más y, debido a este ancho calibrado, suaviza la superficie. Es de bajo costo. Las desventajas de los espacios en blanco son la tendencia a la deformación, la posibilidad de que el agua fluya hacia las costuras y una gran inversión en tiempo de procesamiento. Las ventajas de la madera cepillada son la preservación de su forma original, resistencia, resistencia a la exposición al sol, fluctuaciones de temperatura, resistencia a la humedad, cualidades de aislamiento térmico. También hay desventajas, expresadas en la posible contracción de la casa de hasta 15 cm y una tendencia a formar huecos debido a la eversión. Las vigas pegadas tienen una alta tasa de resistencia.Se caracteriza por la ausencia de contracción, deformación y secado. Dicho material tiene una humedad óptima, lo que impide el desarrollo de procesos de descomposición. Las desventajas se manifiestan en menos oportunidades de circulación de aire y un alto precio.
Ventajas y desventajas de una estructura de ladrillo.
Para la construcción de casas de ladrillo, se utilizan con mayor frecuencia cerámica y silicato. El primer tipo es ecológico y denso. En construcción, también se valora por su conductividad térmica y resistencia al agua. Este material tiene porosidad, lo que le permite incluir las ventajas anteriores. También debe tenerse en cuenta la resistencia a las heladas de los ladrillos cerámicos. Una de las desventajas es la forma irregular de algunos productos. Las desviaciones no siempre son notables y esto dificulta la mampostería. Aún en la composición del ladrillo puede quedar una cierta cantidad de piedra caliza. El ladrillo de silicato también es un material ecológico. Es compatible con casi cualquier mortero de albañilería. El ladrillo de silicato está dotado de una gran cantidad de propiedades positivas. Cada elemento tiene una geometría perfecta. El material tiene alta resistencia a la compresión, resistencia a las heladas, buen aislamiento acústico. Sin embargo, es más pesado que la cerámica, por lo que se necesita una base más sólida. El material de silicato no tolera altas temperaturas.
Ventajas y desventajas de las casas de estructura.
Estos edificios son una opción económica en comparación con los de ladrillo. Además, el revestimiento de estos edificios puede ser menos complejo y más diverso. El trabajo de acabado comienza inmediatamente después de la finalización de la construcción. Las casas de estructura retienen el calor mucho mejor. Además, dicho edificio puede erigirse tanto en verano como en invierno. Existe la oportunidad de ahorrar en la base, porque no se requiere una base con una gran capacidad de carga. La construcción de la estructura del marco es rápida.Se puede construir una casa de 8 × 8 m en pocos meses (incluida la decoración). Mal aislamiento es la falta de casas de marco. Los edificios monolíticos, de ladrillo y de bloques son mejores en este sentido. Debe tenerse en cuenta y el factor de peligro en el caso de utilizar materiales de baja calidad. Esto se aplica tanto a la estructura terminada como al riesgo para el trabajador durante la construcción.
Qué tipo de base elegir
Los principales tipos de cimientos:
Todo depende de los materiales de construcción utilizados para la construcción de la casa y las características del suelo. La base de la tira se adapta perfectamente a cargas pesadas (paredes y pisos pesados en el hogar). Esto se aplica al tipo de base enterrada. Una casa de ladrillo o piedra con dimensiones de 8 por 8 m se puede construir sobre tal. La base poco profunda es más débil y se utiliza para la construcción de estructuras de madera ligera. La base de losa es universal en cierta medida. Es aplicable en casi todos los tipos de suelo y en cualquier profundidad de agua subterránea. Sobre esta base se puede construir una casa de marco, madera y ladrillo. Los costos, sin embargo, serán altos. Vale la pena señalar la calidad de los cimientos de pilotes. Dado que este es el tipo de sustrato más confiable, se usan en suelos inestables. Para la construcción de casas de campo de baja altura, a menudo se utilizan cimientos sobre pilotes de tornillo.
Pisos y distribución de la casa.
El tamaño de 8 por 8 metros le permite organizar el edificio en una pequeña parcela, al tiempo que garantiza una vida cómoda en él. El número de pisos generalmente se elige entre uno y dos. Además, la segunda opción se puede realizar de diferentes maneras: será una casa con un segundo piso y un ático pequeño, o con un ático espacioso. Al diseñar una casa, debe considerar usar el territorio adyacente, un gran lugar para terrazas y áreas de verano. Planificar el interior de un edificio es un proceso complejo y responsable.Es importante tomar la decisión correcta sobre la cantidad de habitaciones, el tamaño del pasillo y la configuración del primer piso. Vale la pena considerar las opciones para combinar varias habitaciones de destino en una. Un atributo obligatorio de todas las casas privadas es una espaciosa habitación de invitados. Todos estos aspectos deben combinarse en una solución.
Casa de dos pisos
Un edificio de 2 pisos es una excelente opción para salvar el sitio. Esto te permitirá crear y equipar pequeñas estructuras en él. El techo estándar de 3 metros de altura se puede abandonar a favor de un 2,8 metros. En una casa de dos pisos, esto ahorrará energía en la calefacción. Se planean edificios de 2 pisos con parámetros de 8 × 8 metros y un techo con una ligera pendiente dependiendo de si se trata de un edificio residencial, una cabaña para residencia permanente o una opción estacional. El diseño óptimo de un edificio residencial de 2 plantas implica la presencia en la planta baja: una sala de estar combinada con un hall de entrada, una cocina que bordea este espacio, una habitación para niños y uno o dos baños. El segundo piso es un lugar para un dormitorio grande y estudio un poco más pequeño. Un pasillo y otro dormitorio / baño se hacen al lado de los escalones. En el segundo piso, es deseable tener de 1 a 3 balcones.
Casa de una planta
El diseño de una casa de un piso que mide 8 × 8 m debe tener en cuenta el número de niños en la familia. Si hay dos, entonces puede seleccionar una habitación grande o dos pequeñas. Una opción son dos habitaciones, una para adultos y otra para niños. Las habitaciones son multifuncionales: con mesas y armarios empotrados. El área mínima recomendada para adultos es de 12 metros cuadrados. m, con una ventana. Una habitación para niños se hace un poco más grande y preferiblemente con dos ventanas. Para la sala de estar es suficiente 20 metros cuadrados. El hall de entrada, la cocina, el baño y el inodoro están mejor ubicados en 14-16 metros cuadrados. m. Debajo de la cocina, vale la pena resaltar un lugar cerca de la entrada. Desde un pequeño hall de entrada se recomienda realizar tantas salidas a otras habitaciones como sea posible.Ambas habitaciones están ubicadas en lados opuestos, si es posible. Hay otra buena opción de diseño, que sugiere la presencia de un dormitorio y un estudio con una litera para una partición.
Casa con buhardilla
La opción más común es un edificio con un ático como segundo piso. El frente y la parte posterior de la casa se pueden hacer lo más diferentes posible entre sí. Bajo el techo del ático, generalmente se asigna una cierta cantidad de espacio libre. Las chimeneas decorarán el techo con una gran pendiente. En la planta baja de una casa cuadrada con un ático, debe equipar el hall de entrada con un armario, una cocina con una pequeña adición, como una despensa y una gran habitación de invitados. Si planea asignar 2 dormitorios, uno de ellos está en la planta baja y está preparado para recibir invitados. Es mejor levantar una escalera que conduce arriba no en el pasillo, sino en la sala de estar. En el piso del ático, es necesario asignar varias habitaciones. El primero de ellos es un amplio dormitorio, combinado con una oficina. También debes hacer una guardería grande. El piso del ático es el lugar adecuado para una habitación con máquinas de ejercicios.
Casa con anexo
El edificio de forma cuadrada no será impedido por extensiones como terrazas y terrazas. Esta es una forma común de expandir su espacio vital. Allí podrá relajarse, pasar tiempo en días cálidos, organizar un almacén o simplemente colocar algunos artículos. Las terrazas son abiertas, cerradas, ajustables con la ayuda de estructuras deslizantes. La versión acristalada es una sala adicional completa con un propósito multipropósito, principalmente para recreación. Puede ahorrar en terrazas de calefacción. La mayoría de las casas tienen un porche abierto o cerrado en lugar de toda la longitud de la pared. Es más fácil prever al diseñar una casa. El garaje debe estar ubicado cerca del edificio residencial. Idealmente, tiene una base común con la casa. Esta es otra razón para considerar todas las opciones posibles de extensiones en la etapa de diseño de la casa y el territorio.
Hay algunas opciones más interesantes para extensiones:
Características de la colocación de habitaciones en la casa.
En el caso del primer piso, es importante combinar varias habitaciones en un solo espacio. Hall de entrada y vestidor están en una habitación. La cocina se hace mejor con una pequeña despensa. La habitación de invitados necesita una escalera que conduzca al segundo piso o al ático (si corresponde). Es aconsejable asignar un baño en el piso, y si el edificio es de un piso, necesitará dos en uno (1 combinado y 1 inodoro). La habitación en el primer piso está hecha universal, adecuada para alojar huéspedes. Si una persona mayor o una persona discapacitada vive en la casa, la habitación en el piso inferior de las dos debe ser entregada a él. El segundo nivel se complementa con las habitaciones objetivo que no están en el primero. Aquí hay un lugar para la relajación y el silencio. Las escaleras en el segundo piso deben estar rodeadas por una cantidad significativa de espacio libre. No debe ser cargado por una gran cantidad de dispositivos.
Requisitos básicos para la disposición del piso superior:
Proyectos modernos de casas 8 a 8
Las opciones que se pueden encontrar en los catálogos de proyectos terminados tienen varias características similares: el número de salas de estar - 4-5, área útil - más de 100 metros cuadrados. m, la presencia de una terraza. Hay opciones con un sótano, un ático. Uno de los proyectos clásicos de la casa de 8 por 8 m prevé la presencia de un pequeño hall de entrada cuadrado, que sale al pasillo con escaleras al segundo piso. Hay un baño al lado de la puerta principal. Enfrente de los escalones hay una gran sala de estar larga (aproximadamente 27 metros cuadrados). Ella va a la cocina al otro lado del edificio.En el segundo piso hay dos dormitorios. Otras opciones populares incluyen la ausencia de habitaciones largas, una escalera directamente en la sala de estar, uno / dos dormitorios en diferentes o solo en el segundo piso. Una característica distintiva de los proyectos de casas modernas es la gran área total de aberturas de ventanas y pasillos cortos.
Conclusión
Un área de 8 por 8 metros es suficiente para implementar ideas arquitectónicas. La configuración cuadrada está bien combinada con parcelas rectangulares de tierra, que son la mayoría. La planificación de un edificio de esta forma rara vez va acompañada de problemas con el cumplimiento de las normas de seguridad. La principal dificultad es precisamente la elección del diseño interno, porque hay variaciones más que suficientes. Será necesario decidir cuántas habitaciones se necesitan, y si vale la pena hacerlo en la planta baja, y también considerar muchos otros matices. La sala de estar generalmente se combina con una cocina o pasillo. Los baños se colocan en ambos niveles, y si esto no es posible, en el primero. En el segundo piso, es necesario proporcionar un lugar para una habitación grande y una habitación espaciosa para niños. Se debe construir al menos un balcón. En algunos casos, la construcción y decoración lleva solo unos pocos meses.