Al planificar su futuro, la mayoría de las familias piensan en viviendas individuales, consideran todas las opciones posibles. Muchos optan por la construcción de una cabaña privada. Entre los desarrolladores, el proyecto de una casa de 6 por 8 metros es muy popular. Esta es la mejor opción para el desarrollo urbano denso, cuando se erigen estructuras en secciones pequeñas o estrechas.
Un edificio pequeño requerirá menos inversión financiera tanto en la etapa de construcción como durante el mantenimiento adicional. Con tales dimensiones, la estructura se erige lo suficientemente rápido. Si el área de un edificio residencial de 48 m² no es suficiente, puede proporcionar un segundo piso o un ático. En una casa tan compacta, será cómodo vivir en una familia de 4-5 personas.
La implementación del proyecto de una casa de 6x8 metros permite construir un edificio residencial adecuado para una vida confortable de una familia de cuatro personas. El área pequeña del edificio lo hace similar a un apartamento de una, dos habitaciones. La pequeña casa incluye todas las habitaciones principales, así como la sala de calderas. Esta opción se caracteriza por las siguientes ventajas:
tiempo mínimo de construcción;
el edificio puede erigirse en cualquier territorio en forma y tamaño;
estructura compacta tiene una apariencia hermosa;
le permite ahorrar espacio en la tierra;
bajos costos de construcción;
ahorros en facturas de servicios públicos;
La construcción ligera no requiere una base reforzada.
Para ampliar el espacio habitable, muchos adjuntan una terraza o terraza, erigen un segundo piso, lo que aumenta significativamente el área de la estructura a 96 m², utilizan el espacio del ático.
Reglas de ubicación de la casa
Al elaborar un dibujo, la ubicación de un edificio residencial en su propio sitio, en primer lugar, es necesario tener en cuenta el cumplimiento del edificio con los requisitos reglamentarios, con los que el desarrollador se familiarizará en el departamento de arquitectura del distrito. En SNiP 31-02-2001 en el párrafo 4.1 estipula que la construcción de estructuras residenciales se lleva a cabo de acuerdo con las normas y reglas cubiertas en el documento, y el párrafo 4.2 establece que el edificio residencial y los edificios utilizados para las necesidades del hogar deben ubicarse teniendo en cuenta las restricciones provisto por la ley aplicable.
Para seleccionar la ubicación óptima, se estudian las normas, especificadas en el párrafo 5.3.2 del SP 30-102-99, que establece que la estructura está obligada a defender desde el borde del área común, es decir, calles y entradas de 5 my 3 m, respectivamente. La cláusula 5.3.4 establece que la distancia a la sección adyacente debe exceder los 3 m. De acuerdo con SNiP 30-02-97 p.4.7 la distancia desde la cabaña de verano hasta los rodales del bosque supera los 15 m, y en el párrafo 6.5. La Tabla 2 muestra el espacio mínimo de fuego entre casas. Dependiendo de los materiales utilizados, es de 6 ma 15 m.
Es imperativo cumplir con todas estas normas. Pero no se olvide de colocar la casa en el sitio de acuerdo con los puntos cardinales, así como tener en cuenta la rosa de los vientos. En una estructura adecuadamente planificada, se recomienda que las ventanas de las salas de estar se ubiquen en el lado sur, sureste y suroeste. Es mejor colocar cuartos de servicio y una cocina desde el norte.
Determinar el material de construcción.
Uno de los principales elementos estructurales de cualquier estructura es su base. Viene en cuatro tipos principales: cinta, losa, pila, columnar. El primero de estos es el más popular, hecho de los siguientes materiales: piedra de escombros, butobeton, ladrillo, hormigón, hormigón armado. Para la construcción de bloques de madera o espuma en un terreno estable, una vista en columna y cinta con una profundidad pequeña será suficiente. Al erigir una casa en terreno pantanoso, en suelos abruptos, se requerirán pilas de tornillos y, en algunos casos, incluso una base de losa.
Para la construcción de muros, puede utilizar diferentes materias primas. La elección del material depende de los fondos disponibles, las preferencias del propietario. Considere el más popular:
Ladrillo La inversión más confiable. Le permite construir la construcción más duradera, que puede funcionar hasta 150 años. El ladrillo es capaz de "respirar", proporcionar calor en la temporada de invierno, fresco en el verano. Sin embargo, la construcción de tales materiales de construcción costará mucho más, en comparación con la madera, el hormigón celular.
Bloque de espuma. La estructura porosa de los bloques proporciona un buen aislamiento térmico, aislamiento acústico. En términos de estos indicadores, superan la versión anterior. Una buena opción para la construcción de edificios de baja altura.Pero el concreto aireado es muy frágil, puede desmoronarse bajo tensión mecánica y, además, absorbe la humedad en gran medida, lo que finalmente provoca grietas. La capacidad de carga de las paredes es insignificante.
Un árbol La forma clásica de construir estructuras residenciales a partir de troncos. La madera natural le permite construir rápidamente una casa. Las materias primas son respetuosas con el medio ambiente y, debido a su higroscopicidad en las instalaciones, nunca faltan oxígeno. Dando preferencia a este material de construcción, vale la pena recordar el mayor riesgo de incendio.
Paneles de estructura metálica. Son un pastel de capas múltiples, que consiste en una capa de aislamiento recubierto a ambos lados del OSB. Bueno para áreas sísmicamente peligrosas. Los paneles proporcionan capacidad térmica, pero requieren buena ventilación.
Madera Para la construcción de casas elija madera dura. Para el trabajo, es mejor usar vigas encoladas, tales edificios no requieren revestimiento adicional, pero tienen los mismos inconvenientes que un tronco redondo.
Como material para techos, se utilizan pizarra, chapa perfilada, teja, teja metálica. Las baldosas compuestas y cerámicas le permiten crear un revestimiento muy atractivo, pertenecer a los materiales de construcción de primera clase. La elección depende solo del propietario. Si lo desea, la necesidad de destacar, incluso puede usar tablas de madera: huso, tejas, tejas, rejas.
Pisos de casas, sus ventajas y desventajas.
El proyecto de construcción residencial se está desarrollando teniendo en cuenta todos los deseos y necesidades de su propietario. Alguien necesita solo un piso, donde las salas de estar principales se encuentran en 48 m², algunas incluyen un garaje, un edificio de dos pisos y un espacio en el ático.
Las opciones de cabaña, utilizadas exclusivamente los fines de semana, que no prevén la residencia permanente, no requieren extensiones adicionales.Para familias numerosas que constan de varias generaciones, puede ser necesario no solo el segundo piso, sino también el ático.
Casas de dos pisos
Para una familia numerosa haciendo planes para el futuro, la mejor opción sería un edificio de dos pisos. Debido al aumento en el área, el edificio se puede dividir en varias zonas funcionales. Proporcionar en la planta baja debe ser una habitación para la generación anterior, sala de estar, cocina, comedor, sala de calderas. El segundo nivel se utiliza mejor para dormitorios y guarderías, si es necesario, equipar una oficina, un balcón.
Antes de pensar en esta opción, debe considerar todos los aspectos positivos y negativos asociados con la construcción de dicha estructura. Las principales ventajas de una casa de dos pisos de 6x8 metros incluyen:
Ahorra espacio Esto le permitirá dejar más espacio para la construcción de otros edificios, para asignar metros adicionales para un jardín o huerta, especialmente en áreas pequeñas de 6 a 1000 partes.
La construcción de una casa compacta de dos pisos con un área total de 96 m² requerirá menos materiales de construcción en comparación con un edificio de un piso de la misma cuadratura.
La presencia del segundo piso le permite utilizar convenientemente el espacio habitable.
Las estructuras de dos pisos se ven hermosas.
Las desventajas de tales viviendas incluyen:
Una escalera que ocupa parte del área utilizable.
Para la generación anterior, subir escaleras es difícil.
Al establecer comunicaciones de plomería, las estructuras de calefacción en el nivel superior requerirán inversiones adicionales.
El alto costo de los pisos de concreto.
Se requiere una base más sólida.
Casas de un piso
Una casa compacta, comparable en tamaño a un apartamento de dos habitaciones, es elegida por parejas mayores y familias sin hijos. Esta es una buena opción para una residencia de verano, le permite pasar cómodamente el fin de semana. En un área pequeña, generalmente coloque una sala de estar, dormitorio, cocina, baño, sala de calderas. A menudo, el pasillo se combina con el área de la cocina. De las ventajas de dicha estructura se pueden identificar:
Corto tiempo de construcción.
No se requieren cimientos reforzados.
Ahorro en facturas de servicios públicos.
Conveniente para llevar a cabo actividades de reparación.
La ausencia de un tramo de escaleras hace que la casa sea segura para los niños, cómoda para las personas mayores.
El edificio se está erigiendo sobre cualquier tipo de suelo.
Desventajas de las estructuras de una sola planta de 6x8 m:
Pequeño espacio habitable, no es adecuado para una familia numerosa.
Para aumentar el área, a menudo se unen estructuras adicionales, lo que arruina la apariencia general.
La construcción contiene pocas áreas funcionales.
Casa con buhardilla
Los expertos recomiendan construir una casa de dos pisos en toda regla, cuyos costos sean comparables a la construcción del piso del ático. En algunos casos, por ejemplo, si el suelo no permite la construcción de edificios de varios pisos, o si es necesario convertir un edificio existente de un piso, es racional hacer que el espacio del ático esté habitado. Usualmente tienen una oficina aquí, a veces equipan un dormitorio y una guardería, y a veces un baño. Las ventajas de tales edificios se expresan mediante las siguientes características:
Ahorro en los cimientos, en los materiales necesarios para la construcción de muros.
Con una planificación adecuada, la pérdida de espacio habitable, en comparación con un edificio de dos pisos, será insignificante.
Apariencia atractiva.
Relajarse en el ático es agradable y romántico.
Desventajas
El costo de los materiales para techos, buhardillas, aislamiento acústico adicional, aislamiento térmico aumenta significativamente los costos de construcción;
Grandes pérdidas en calefacción, consumo de energía en un 40% más.
Con un pequeño ángulo de inclinación del techo, se pierde el área utilizable.
La acumulación de nieve interfiere con la penetración de la luz natural.
El aislamiento acústico se ahoga, pero no puede aislar por completo el sonido de la lluvia, la nieve que cae y el viento.
Casas de garaje
La construcción de garajes es un tema candente para muchas personas. Pero cómo colocarlo en una estructura tan pequeña, porque su tamaño debe ser de 4x6 metros, y esta es la mitad del área total del edificio.En consecuencia, para estructuras de un solo piso, solo queda erigir un edificio separado, adjuntarlo a la casa y proporcionar un sótano en la etapa de planificación. Nos detendremos en esto último con más detalle, consideremos sus principales ventajas:
Debajo del garaje, puede seleccionar todo el espacio ubicado debajo del edificio, o combinarlo con la sala de calderas, habitaciones adicionales.
Para acceder al coche no hace falta salir.
No tiene que preocuparse por un cableado eléctrico separado, es suficiente para obtener un cable aislado autoportante (cable aislado autoportante) desde un poste hasta un edificio residencial.
Ahorra espacio en el sitio
Desventajas
El precio de la construcción aumentará significativamente debido a los costos adicionales para el sótano.
El tiempo de construcción aumentará.
Se requerirá un aislamiento especial de la casa de los gases de escape.
El riesgo de incendio del edificio está aumentando.
Qué considerar al planificar una casa de 6 a 8
Al diseñar un edificio, se tiene en cuenta cada pequeña cosa: el tipo de cimiento, la cantidad de pisos, los materiales utilizados para la construcción de paredes y techos, la elección de un techo a dos aguas y otros aspectos. En la planificación interna, se considera la cuestión del número de habitaciones y ventanas, su ubicación en el área disponible, se determina la altura desde el piso hasta el techo. Al mismo tiempo, se tienen en cuenta las normas y estándares aprobados existentes. Detengámonos con más detalle en los puntos principales.
Altura del techo
Al elegir la altura óptima del techo, en primer lugar, debe familiarizarse con los documentos reglamentarios, a saber, SNiP 31-02-2001 y SNiP 2.08.01-89, donde en los párrafos 4.5 y 1.1 se dice que la distancia desde el piso hasta el techo no debe ser menos de 2.5 m, en el piso del ático no menos de 2.3 m, en los corredores más de 2.1 m. Estas reglas deben tenerse en cuenta, de lo contrario, el proyecto no puede registrarse en los organismos de supervisión estatales.
Para una estructura compacta de 48 m², donde el área de las habitaciones es limitada, los techos altos que excedan los 3 metros serán inapropiados.Los expertos recomiendan utilizar el valor generalmente aceptado para la mayoría de las estructuras, que es de 2,7 m. Esta distancia es suficiente incluso para la instalación de construcciones de paneles de yeso de varios niveles. Pero la elección siempre queda con el propietario de la estructura futura.
Dimensiones y número de ventanas.
También vale la pena consultar SNiP 31-02-2001, párrafo 8.9 y SNiP 31-01-2003, párrafo 9.13, que establece que la relación entre el área del piso y las aberturas de las ventanas debe ser al menos 1: 8, pero no más de 1: 5 , 5 para todos los locales residenciales, incluida la cocina. Para pisos del ático: al menos 1:10. Dados estos estándares, puede calcular el tamaño de las ventanas para una habitación en particular, por ejemplo, para una habitación de 5x4 metros, el tamaño mínimo debe estar dentro de 1.5x1.7 metros.
Todos pueden determinar el número de aperturas por sí mismos. En la cocina, es mejor tener una gran ventana en el lado norte. En el dormitorio y la sala de estar, se debe dar preferencia a varias estructuras de ventanas orientadas al este y sureste, respectivamente. Las salas técnicas se ubican principalmente en el lado norte, por lo que habrá pocas ventanas en esta área, la mayoría de ellas en la fachada.
Asignación de área para habitaciones
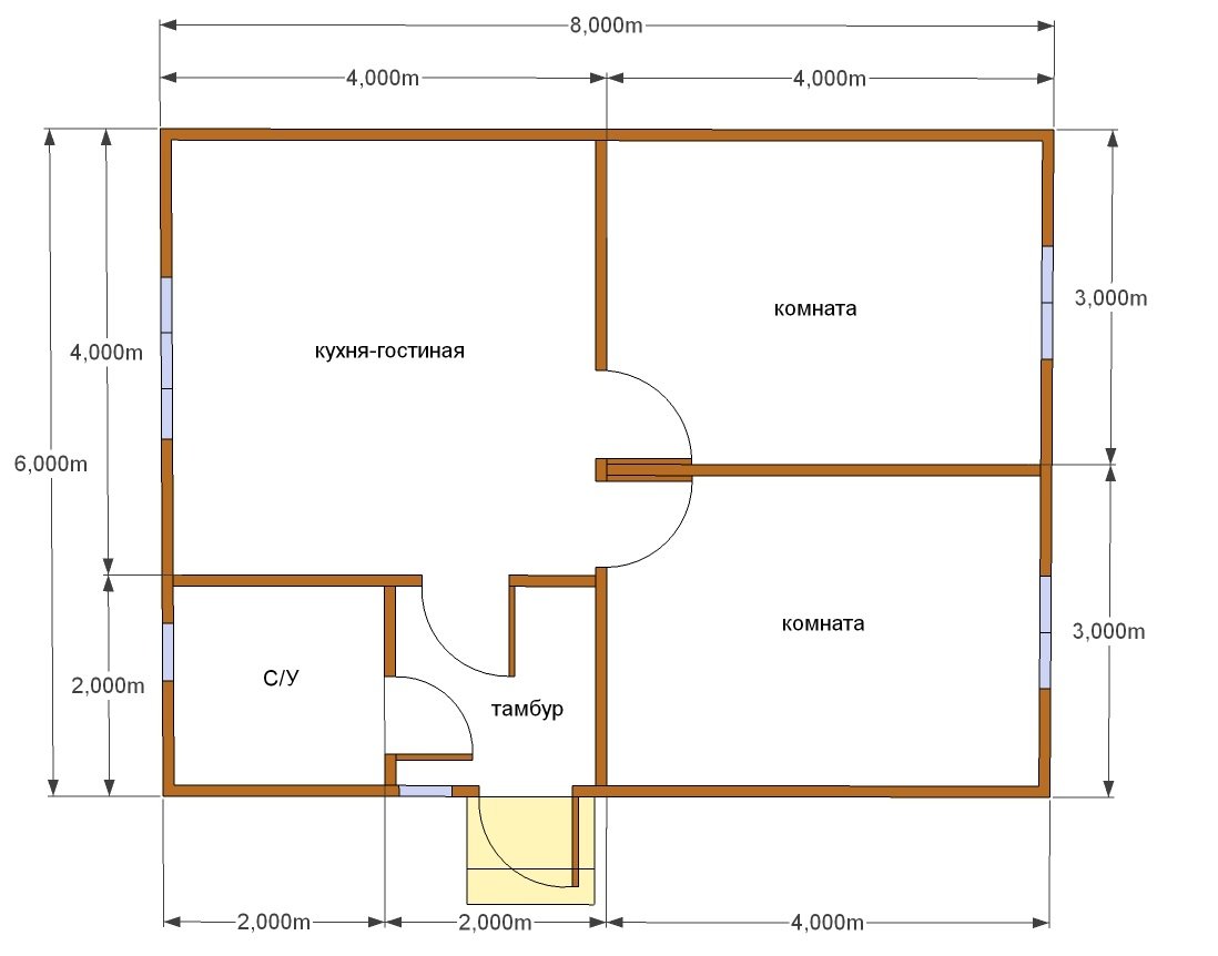
En el párrafo 4.4 del SNiP 31-02-2001, una casa debe tener un conjunto mínimo de habitaciones: una sala de estar, una cocina, un baño, un inodoro, un trastero, así como una sala de calderas o un lugar para la calefacción de la estufa, si no se proporciona un sistema de calefacción centralizado. Aquí, se determinan los tamaños mínimos de todas las habitaciones, a saber, la sala de estar - 12 m², el dormitorio - 8 m², el área de la cocina - 6 m², el ancho del baño - 1.5 m, el inodoro - 0.8 m, el hall de entrada 1.4 m.
Dados los parámetros anteriores, puede distribuir de manera óptima el área para todas las habitaciones. Para asignar un lugar para descansar y dormir, 9 m², colocándolo en la entrada, un pasillo de 4.5 m², un horno - 1.5 m², un baño combinado - 3 m². El salón ubicado en el lado de la cocina ocupará 18 m², los 12 m² restantes permanecerán en el área de la cocina y una pequeña despensa.
Número y disposición de las habitaciones.
La casa debe tener una sala de estar y varios auxiliares. Al planificar una sala, es mejor organizarla en el medio, para dividir el edificio en dos zonas funcionales con su ayuda. Por un lado, se recomienda organizar un dormitorio y un pasillo, por otro lado, un horno, un baño, una cocina. El área de la cocina debe estar ubicada al lado del baño, esto ahorrará en servicios de plomería, cumplirá con el nivel requerido de la pendiente de las tuberías de salida.
La presencia de un segundo piso o ático puede aumentar significativamente el número de habitaciones. Puede sacar lugares para dormir en el nivel superior, organizar una habitación para niños, una oficina, aumentando así el espacio para la sala de estar desde abajo. También existe la oportunidad de organizar un comedor completo, baño separado e incluso proporcionar una sauna. En este caso, el número de salas de estar puede aumentar de 4 a 5, según el diseño.
Casas de 6x8 sobre tecnologías de marcos
El diseño de dicha casa dependerá de las características de uso: una opción estacional o de residencia permanente. Es necesario erigir estructuras de acuerdo con ciertas reglas, teniendo en cuenta la ubicación. El sitio debe estar seco, bien drenado. La tecnología moderna le permite utilizar los materiales más simples con la máxima eficiencia.
La casa de 6x8 según las tecnologías del marco es una construcción ligera pero sólida que consiste en montantes verticales y flejes horizontales. No requiere una base masiva. Si el edificio está destinado a vivir en invierno, los espacios y huecos entre los paneles están llenos de materiales aislantes. Use lana mineral, espuma de poliestireno.
El marco, todas las estructuras de soporte, el piso debe estar hecho de un solo material. A menudo usa roble, alerce. Para que no haya distorsiones, es importante acoplar correctamente todos los detalles. Es mejor no usar sujetadores de metal, ya que pueden causar aflojamiento de los elementos y descomposición. Es mejor usar alfileres de madera. Desde el exterior, el marco está revestido con tablas en ángulo.Esto lo hará más duradero, resistente.
Decoración exterior de casas
Una pequeña casa de 6x8 se verá genial en cualquier estilo. Al elegir materiales para la decoración al aire libre debe tener en cuenta las características, el diseño general del sitio. Un moderno edificio lacónico complementará el estilo de un prestigioso pueblo rural, una casa de campo se transformará junto a robles centenarios en el contexto de majestuosas montañas.
El trabajo de la fachada se lleva a cabo no solo para mejorar la estética, sino también para extender la vida útil del edificio. Como uso de materiales de acabado:
Yeso decorativo;
Frente a ladrillo, piedra artificial;
Forro, casa de bloques;
Revestimiento de vinilo.
Conclusión
Puede construir una pequeña casa en su propio sitio con sus propias manos, pero para esto necesita tener ciertas habilidades de construcción. Es más fácil recurrir a empresas especializadas que ofrecen construir un edificio moderno compacto y llave en mano. Los especialistas seleccionarán un proyecto que cumpla con los requisitos y entregarán el objeto a tiempo.
Al planificar su futuro, la mayoría de las familias piensan en viviendas individuales, consideran todas las opciones posibles. Muchos optan por la construcción de una cabaña privada. Entre los desarrolladores, el proyecto de una casa de 6 por 8 metros es muy popular. Esta es la mejor opción para el desarrollo urbano denso, cuando se erigen estructuras en secciones pequeñas o estrechas.
Un edificio pequeño requerirá menos inversión financiera tanto en la etapa de construcción como durante el mantenimiento adicional. Con tales dimensiones, la estructura se erige lo suficientemente rápido. Si el área de un edificio residencial de 48 m² no es suficiente, puede proporcionar un segundo piso o un ático. En una casa tan compacta, será cómodo vivir en una familia de 4-5 personas.
Contenido
Características de las casas 6 sobre 8
La implementación del proyecto de una casa de 6x8 metros permite construir un edificio residencial adecuado para una vida confortable de una familia de cuatro personas. El área pequeña del edificio lo hace similar a un apartamento de una, dos habitaciones. La pequeña casa incluye todas las habitaciones principales, así como la sala de calderas. Esta opción se caracteriza por las siguientes ventajas:
Reglas de ubicación de la casa
Al elaborar un dibujo, la ubicación de un edificio residencial en su propio sitio, en primer lugar, es necesario tener en cuenta el cumplimiento del edificio con los requisitos reglamentarios, con los que el desarrollador se familiarizará en el departamento de arquitectura del distrito. En SNiP 31-02-2001 en el párrafo 4.1 estipula que la construcción de estructuras residenciales se lleva a cabo de acuerdo con las normas y reglas cubiertas en el documento, y el párrafo 4.2 establece que el edificio residencial y los edificios utilizados para las necesidades del hogar deben ubicarse teniendo en cuenta las restricciones provisto por la ley aplicable.
Para seleccionar la ubicación óptima, se estudian las normas, especificadas en el párrafo 5.3.2 del SP 30-102-99, que establece que la estructura está obligada a defender desde el borde del área común, es decir, calles y entradas de 5 my 3 m, respectivamente. La cláusula 5.3.4 establece que la distancia a la sección adyacente debe exceder los 3 m. De acuerdo con SNiP 30-02-97 p.4.7 la distancia desde la cabaña de verano hasta los rodales del bosque supera los 15 m, y en el párrafo 6.5. La Tabla 2 muestra el espacio mínimo de fuego entre casas. Dependiendo de los materiales utilizados, es de 6 ma 15 m.
Determinar el material de construcción.
Uno de los principales elementos estructurales de cualquier estructura es su base. Viene en cuatro tipos principales: cinta, losa, pila, columnar. El primero de estos es el más popular, hecho de los siguientes materiales: piedra de escombros, butobeton, ladrillo, hormigón, hormigón armado. Para la construcción de bloques de madera o espuma en un terreno estable, una vista en columna y cinta con una profundidad pequeña será suficiente. Al erigir una casa en terreno pantanoso, en suelos abruptos, se requerirán pilas de tornillos y, en algunos casos, incluso una base de losa.
Para la construcción de muros, puede utilizar diferentes materias primas. La elección del material depende de los fondos disponibles, las preferencias del propietario. Considere el más popular:
Como material para techos, se utilizan pizarra, chapa perfilada, teja, teja metálica. Las baldosas compuestas y cerámicas le permiten crear un revestimiento muy atractivo, pertenecer a los materiales de construcción de primera clase. La elección depende solo del propietario. Si lo desea, la necesidad de destacar, incluso puede usar tablas de madera: huso, tejas, tejas, rejas.
Pisos de casas, sus ventajas y desventajas.
El proyecto de construcción residencial se está desarrollando teniendo en cuenta todos los deseos y necesidades de su propietario. Alguien necesita solo un piso, donde las salas de estar principales se encuentran en 48 m², algunas incluyen un garaje, un edificio de dos pisos y un espacio en el ático.
Las opciones de cabaña, utilizadas exclusivamente los fines de semana, que no prevén la residencia permanente, no requieren extensiones adicionales.Para familias numerosas que constan de varias generaciones, puede ser necesario no solo el segundo piso, sino también el ático.
Casas de dos pisos
Para una familia numerosa haciendo planes para el futuro, la mejor opción sería un edificio de dos pisos. Debido al aumento en el área, el edificio se puede dividir en varias zonas funcionales. Proporcionar en la planta baja debe ser una habitación para la generación anterior, sala de estar, cocina, comedor, sala de calderas. El segundo nivel se utiliza mejor para dormitorios y guarderías, si es necesario, equipar una oficina, un balcón.
Antes de pensar en esta opción, debe considerar todos los aspectos positivos y negativos asociados con la construcción de dicha estructura. Las principales ventajas de una casa de dos pisos de 6x8 metros incluyen:
Las desventajas de tales viviendas incluyen:
Casas de un piso
Una casa compacta, comparable en tamaño a un apartamento de dos habitaciones, es elegida por parejas mayores y familias sin hijos. Esta es una buena opción para una residencia de verano, le permite pasar cómodamente el fin de semana. En un área pequeña, generalmente coloque una sala de estar, dormitorio, cocina, baño, sala de calderas. A menudo, el pasillo se combina con el área de la cocina. De las ventajas de dicha estructura se pueden identificar:
Desventajas de las estructuras de una sola planta de 6x8 m:
Casa con buhardilla
Los expertos recomiendan construir una casa de dos pisos en toda regla, cuyos costos sean comparables a la construcción del piso del ático. En algunos casos, por ejemplo, si el suelo no permite la construcción de edificios de varios pisos, o si es necesario convertir un edificio existente de un piso, es racional hacer que el espacio del ático esté habitado. Usualmente tienen una oficina aquí, a veces equipan un dormitorio y una guardería, y a veces un baño. Las ventajas de tales edificios se expresan mediante las siguientes características:
Desventajas
Casas de garaje
La construcción de garajes es un tema candente para muchas personas. Pero cómo colocarlo en una estructura tan pequeña, porque su tamaño debe ser de 4x6 metros, y esta es la mitad del área total del edificio.En consecuencia, para estructuras de un solo piso, solo queda erigir un edificio separado, adjuntarlo a la casa y proporcionar un sótano en la etapa de planificación. Nos detendremos en esto último con más detalle, consideremos sus principales ventajas:
Desventajas
Qué considerar al planificar una casa de 6 a 8
Al diseñar un edificio, se tiene en cuenta cada pequeña cosa: el tipo de cimiento, la cantidad de pisos, los materiales utilizados para la construcción de paredes y techos, la elección de un techo a dos aguas y otros aspectos. En la planificación interna, se considera la cuestión del número de habitaciones y ventanas, su ubicación en el área disponible, se determina la altura desde el piso hasta el techo. Al mismo tiempo, se tienen en cuenta las normas y estándares aprobados existentes. Detengámonos con más detalle en los puntos principales.
Altura del techo
Al elegir la altura óptima del techo, en primer lugar, debe familiarizarse con los documentos reglamentarios, a saber, SNiP 31-02-2001 y SNiP 2.08.01-89, donde en los párrafos 4.5 y 1.1 se dice que la distancia desde el piso hasta el techo no debe ser menos de 2.5 m, en el piso del ático no menos de 2.3 m, en los corredores más de 2.1 m. Estas reglas deben tenerse en cuenta, de lo contrario, el proyecto no puede registrarse en los organismos de supervisión estatales.
Para una estructura compacta de 48 m², donde el área de las habitaciones es limitada, los techos altos que excedan los 3 metros serán inapropiados.Los expertos recomiendan utilizar el valor generalmente aceptado para la mayoría de las estructuras, que es de 2,7 m. Esta distancia es suficiente incluso para la instalación de construcciones de paneles de yeso de varios niveles. Pero la elección siempre queda con el propietario de la estructura futura.
Dimensiones y número de ventanas.
También vale la pena consultar SNiP 31-02-2001, párrafo 8.9 y SNiP 31-01-2003, párrafo 9.13, que establece que la relación entre el área del piso y las aberturas de las ventanas debe ser al menos 1: 8, pero no más de 1: 5 , 5 para todos los locales residenciales, incluida la cocina. Para pisos del ático: al menos 1:10. Dados estos estándares, puede calcular el tamaño de las ventanas para una habitación en particular, por ejemplo, para una habitación de 5x4 metros, el tamaño mínimo debe estar dentro de 1.5x1.7 metros.
Todos pueden determinar el número de aperturas por sí mismos. En la cocina, es mejor tener una gran ventana en el lado norte. En el dormitorio y la sala de estar, se debe dar preferencia a varias estructuras de ventanas orientadas al este y sureste, respectivamente. Las salas técnicas se ubican principalmente en el lado norte, por lo que habrá pocas ventanas en esta área, la mayoría de ellas en la fachada.
Asignación de área para habitaciones
En el párrafo 4.4 del SNiP 31-02-2001, una casa debe tener un conjunto mínimo de habitaciones: una sala de estar, una cocina, un baño, un inodoro, un trastero, así como una sala de calderas o un lugar para la calefacción de la estufa, si no se proporciona un sistema de calefacción centralizado. Aquí, se determinan los tamaños mínimos de todas las habitaciones, a saber, la sala de estar - 12 m², el dormitorio - 8 m², el área de la cocina - 6 m², el ancho del baño - 1.5 m, el inodoro - 0.8 m, el hall de entrada 1.4 m.
Dados los parámetros anteriores, puede distribuir de manera óptima el área para todas las habitaciones. Para asignar un lugar para descansar y dormir, 9 m², colocándolo en la entrada, un pasillo de 4.5 m², un horno - 1.5 m², un baño combinado - 3 m². El salón ubicado en el lado de la cocina ocupará 18 m², los 12 m² restantes permanecerán en el área de la cocina y una pequeña despensa.
Número y disposición de las habitaciones.
La casa debe tener una sala de estar y varios auxiliares. Al planificar una sala, es mejor organizarla en el medio, para dividir el edificio en dos zonas funcionales con su ayuda. Por un lado, se recomienda organizar un dormitorio y un pasillo, por otro lado, un horno, un baño, una cocina. El área de la cocina debe estar ubicada al lado del baño, esto ahorrará en servicios de plomería, cumplirá con el nivel requerido de la pendiente de las tuberías de salida.
La presencia de un segundo piso o ático puede aumentar significativamente el número de habitaciones. Puede sacar lugares para dormir en el nivel superior, organizar una habitación para niños, una oficina, aumentando así el espacio para la sala de estar desde abajo. También existe la oportunidad de organizar un comedor completo, baño separado e incluso proporcionar una sauna. En este caso, el número de salas de estar puede aumentar de 4 a 5, según el diseño.
Casas de 6x8 sobre tecnologías de marcos
El diseño de dicha casa dependerá de las características de uso: una opción estacional o de residencia permanente. Es necesario erigir estructuras de acuerdo con ciertas reglas, teniendo en cuenta la ubicación. El sitio debe estar seco, bien drenado. La tecnología moderna le permite utilizar los materiales más simples con la máxima eficiencia.
La casa de 6x8 según las tecnologías del marco es una construcción ligera pero sólida que consiste en montantes verticales y flejes horizontales. No requiere una base masiva. Si el edificio está destinado a vivir en invierno, los espacios y huecos entre los paneles están llenos de materiales aislantes. Use lana mineral, espuma de poliestireno.
El marco, todas las estructuras de soporte, el piso debe estar hecho de un solo material. A menudo usa roble, alerce. Para que no haya distorsiones, es importante acoplar correctamente todos los detalles. Es mejor no usar sujetadores de metal, ya que pueden causar aflojamiento de los elementos y descomposición. Es mejor usar alfileres de madera. Desde el exterior, el marco está revestido con tablas en ángulo.Esto lo hará más duradero, resistente.
Decoración exterior de casas
Una pequeña casa de 6x8 se verá genial en cualquier estilo. Al elegir materiales para la decoración al aire libre debe tener en cuenta las características, el diseño general del sitio. Un moderno edificio lacónico complementará el estilo de un prestigioso pueblo rural, una casa de campo se transformará junto a robles centenarios en el contexto de majestuosas montañas.
El trabajo de la fachada se lleva a cabo no solo para mejorar la estética, sino también para extender la vida útil del edificio. Como uso de materiales de acabado:
Conclusión
Puede construir una pequeña casa en su propio sitio con sus propias manos, pero para esto necesita tener ciertas habilidades de construcción. Es más fácil recurrir a empresas especializadas que ofrecen construir un edificio moderno compacto y llave en mano. Los especialistas seleccionarán un proyecto que cumpla con los requisitos y entregarán el objeto a tiempo.