La vivienda propia, aunque sea muy pequeña, siempre es buena. El área óptima en la que una familia de dos o tres personas puede cómodamente y a un costo mínimo es de 30 a 36 metros cuadrados. El diseño de la casa es de 6 por 6 metros cuadrados. m. Le permitirá colocar convenientemente todo lo que necesita para la vida, especialmente si construye un edificio de dos pisos. Una cabaña de madera, ladrillo y bloques de este tamaño se convertirá en una cabaña de verano o en una estructura para residencia permanente. El proyecto se compila en papel o usando programas especiales de computadora.
La casa cuadrada con una superficie de 36 metros tiene múltiples ventajas y desventajas.
Propiedades positivas:
Dado que la construcción se realiza en forma de un cuadrado, el espacio no se gasta en la disposición de corredores largos, casi inútiles;
ahorro de materiales y tiempo en el dispositivo de comunicaciones: calefacción, tuberías de agua, cableado eléctrico, etc.
En la construcción, es relativamente fácil hacer el segundo piso, después de haber diseñado el ascenso con una escalera de caracol;
Muchas empresas especializadas en la construcción de casas de verano ofrecen proyectos de estructuras residenciales de este tamaño.
Factores negativos
una escalera excesivamente empinada hacia el segundo piso es inconveniente, especialmente cuando la familia tiene niños pequeños, adultos mayores;
En una sección estrecha, es problemático colocar el edificio de manera que el movimiento pasado sea libre.
La elección del material de presupuesto para la construcción.
La proporción de precio y calidad de los materiales de construcción es considerada por la mayoría de los propietarios de la futura casa de campo, especialmente si el presupuesto es limitado.
Para uso en construcción:
bloques de hormigón celular;
hormigón celular;
viga pegada;
Paneles SIP;
registro redondeado;
ladrillo
arbolit.
Cada uno de los materiales enumerados tiene sus ventajas y debilidades. El diseño de la estructura depende de su construcción: los estilos canadiense y alpino están hechos de troncos que primero deben ser cilíndricos, el estilo medieval se recrea exclusivamente de ladrillo y gótico. Los bloques de espuma son adecuados para el constructivismo, el cubismo, la versión griega, y una casa de estilo ecológico, rural y japonés a menudo se construye a partir de vigas encoladas.
Hormigón de espuma
Los bloques de hormigón celular poroso tienen un bajo peso, altas propiedades de aislamiento térmico, higroscopicidad reducida y durabilidad.El material es resistente al fuego, es fácil colocar cualquier comunicación a través de él, haciendo los agujeros necesarios mediante una compuerta. Una casa de bloques de hormigón celular, los bloques de gas se están construyendo muy rápidamente, y el precio de un metro cuadrado de pared sale un 25-35% más barato que el de ladrillo. No es necesario aislar fuertemente la estructura, así como hacer una base excesivamente pesada.
Las desventajas del material incluyen la porosidad, que complica el montaje de los sujetadores, un largo período de contracción de la estructura terminada. Las paredes de concreto necesitan refuerzo, se ven feas sin decoración con pintura especial, yeso.
Al construir desde bloques, se necesita un cálculo preciso de todas las cargas.
Madera
Las estructuras de vigas perfiladas están sujetas a las deformaciones más mínimas a lo largo de la línea helicoidal: el material no se deforma, la casa terminada no necesita calafatear, suficientes juntas son suficientes. La contracción es lo más mínimo, porque la construcción podrá completarse en el menor tiempo posible. El acabado también es opcional: las paredes salen lisas.
Las desventajas de la viga son que todos los detalles de la estructura deben tratarse periódicamente con compuestos antisépticos, y para su uso durante todo el año es deseable revestir la estructura desde el interior con un revestimiento u otro material similar.
Casa de panel de marco o panel SIP
La versión de panel de marco y la construcción de paneles SIP son dos métodos diferentes de construcción. La estructura de la casa está construida durante un tiempo relativamente largo, necesita una base de tira y su marco no es demasiado fuerte, ya que las partes están conectadas entre sí de forma puntiaguda. La construcción de paneles SIP a veces se erige en cuestión de días, los elementos estructurales están conectados entre sí de manera bastante rígida y el revestimiento con aislamiento, en toda la superficie. La base es apta para columnas o pilotes.
El costo de construir desde paneles SIP es alto, pero la calidad es la correspondiente. Tal casa durará hasta cien años, mientras que una casa de marco, un máximo de 35-45.La principal desventaja de los paneles SIP es la baja permeabilidad al aire, por lo tanto, el dispositivo de ventilación forzada es lo más importante aquí.
Ladrillo
La casa de ladrillo es ecológica, duradera y confiable. Se construye relativamente rápido, no es necesario esperar a que el material se encoja. El ladrillo no se pudre, no está dañado por insectos, moho, por lo tanto, no requiere tratamiento con un antiséptico. El calor en tal casa es excelente, el edificio es resistente al agua, a prueba de fuego, tiene una apariencia estética.
Las desventajas de la construcción en el precio de la construcción son los trabajos de albañilería, su costo es bastante grande y los costos aumentan con el aumento del número de pisos. La construcción de la base más sólida de concreto de alta calidad también es necesaria, ya que el ladrillo es un material muy pesado.
Las etapas principales del diseño de una casa de dos pisos.
La creación de una nueva casa comienza con un diseño competente, el plan más detallado. La documentación de diseño prescribe los materiales de los que está hecha la construcción, las dimensiones, el área de cada habitación, la ubicación de la estufa o la chimenea. Un elemento importante de un edificio de dos pisos es una escalera que le permite subir.
Cuando el proyecto se prepara de forma independiente, es necesario tener en cuenta el grosor de las paredes: puede ser de hasta 50 cm. Al principio, una lista de todas las habitaciones que se planea hacer es una sala de estar, cocina, dormitorio o incluso dos o tres pequeñas, separadas por tabiques, terraza, sótano, separadas La sala donde se ubicará la caldera que calienta el edificio. Es aconsejable hacer baños en cada piso, especialmente cuando hay más de tres o cuatro personas en una familia.
Es importante incluir de inmediato un porche, una veranda en el proyecto; deben formar un conjunto único con la estructura principal. Si planea equipar el sótano, entonces la base para ello se hace especial.
Cuando la casa es de dos pisos, la tierra se utiliza para el máximo beneficio.
Disposición de la casa con ático.
Mansard: esta es una especie de segundo piso, decorado con un techo cónico, aguilón, aguilón, de cuatro tonos. Por lo general, el área útil de dicha estructura es ligeramente menor que una de 2 pisos, al igual que el costo total. Los problemas surgen solo con el diseño interior, especialmente si hay numerosas ventanas en las pendientes.
Altura cómoda del techo en el punto más alto: al menos dos metros y medio. La mayor parte del espacio del ático debe cumplir con este principio. Colocan un dormitorio completo, vestidor, baño, oficina, etc. Si lo desea, casi todo el piso puede estar ocupado por una sala de estar.
Al diseñar el ático, se tiene en cuenta el ángulo del techo: la altura máxima de las instalaciones, su uso racional, depende de ello. Un ático que es demasiado bajo es un ático común, donde solo puedes almacenar cosas viejas.
Características del diseño, disposición de las habitaciones.
Cuando la casa tiene dos pisos, no es difícil organizar todo lo necesario para una estancia confortable en ella. Es importante orientar adecuadamente las ventanas del edificio: la mejor opción es cuando las ventanas de las habitaciones están orientadas al este, al sureste, la sala de estar está orientada al oeste, la cocina está orientada al sur. Las habitaciones con ventanas del sur necesitan aire acondicionado: en verano hará demasiado calor. Si hay niños, las ventanas de la sala de estar o cualquier habitación donde los adultos tengan más probabilidades de hacer están orientadas hacia el patio; es más fácil observar lo que hace el niño cuando juega al aire libre.
El diseño interior de la casa se lleva a cabo en cualquier estilo que le guste el interior, en parte, depende del tipo de materiales de construcción.
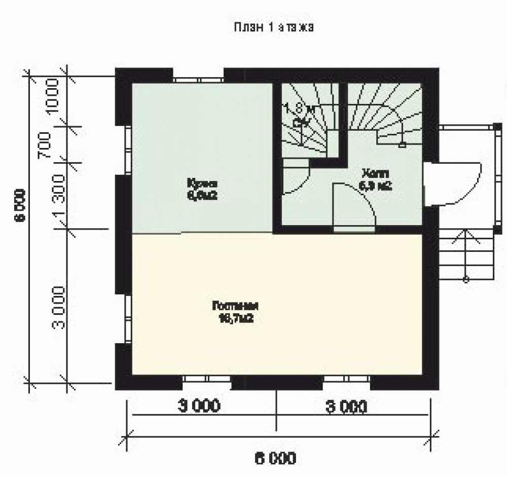
Planta baja
En la planta baja generalmente hay un baño con ducha o bañera, una sala de calderas, calefacción de toda la casa, cocina, sala de estar. La mejor forma para cualquier habitación es cuadrada o casi cuadrada, el ancho óptimo es de 2.5-3 metros. Prácticamente no hay un corredor como tal: el ancho del pasillo, donde se encuentra la escalera, se mide aproximadamente un metro y medio.
No haga que el cuarto de la cocina sea demasiado estrecho, esto es un inconveniente. El baño tampoco debe ser pequeño, especialmente si hay una lavadora allí. El sótano a menudo se hace debajo del piso; con él, la casa será más cálida, pero la base en este caso se hace más alta.
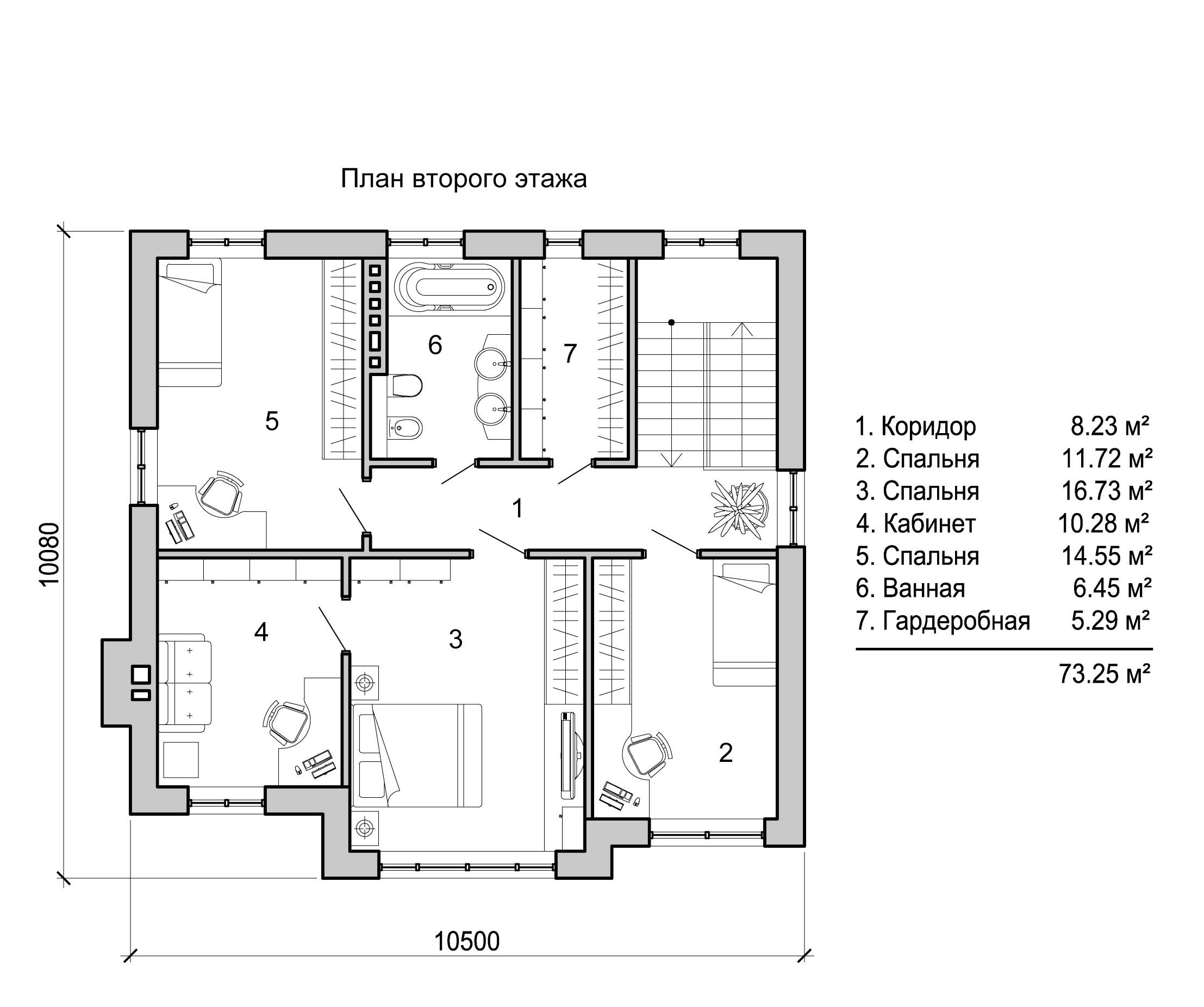
Disposición del segundo piso.
En el segundo piso hacen una oficina, una habitación espaciosa o incluso dos, está permitido equipar un inodoro más, esto es especialmente importante cuando la familia es numerosa. A menudo hay un balcón: sus dimensiones dependen solo de las preferencias de los propietarios de la casa. A veces solo una gran sala de estar con billar, varios sofás, un cine en casa se hace arriba. Es conveniente hacer un gimnasio completo aquí.
Una escalera conduce al segundo piso, el lugar de su acoplamiento con la habitación superior está necesariamente encerrado con una barandilla, para evitar una caída. El diseño del primer y segundo piso puede variar ligeramente en color, pero es deseable realizar ambos espacios en el mismo estilo.
Cómo colocar las escaleras
Comienzan a equipar el segundo piso con una escalera; de lo contrario, es problemático subir allí. Por lo general, se coloca una escalera en el pasillo; allí no molesta a nadie. Con la ayuda de este elemento, a veces se realiza la zonificación del primer piso. Cuando las personas mayores y los niños pequeños viven en la casa, es obligatorio equiparla con una barandilla. La escalera también está vallada, equipada con accesorios de iluminación si no hay suficiente luz de las ventanas.
La escalera está hecha de concreto, madera o metal, su ancho está hecho de un metro, cuanto más pequeño es el ángulo de ascenso y descenso, más segura es la estructura misma. La mayoría de las veces, la escalera está en el centro geométrico de la casa, puede ser atornillada o marchando, por lo general, se realizan un par de pasos a continuación. Los pasos totales con una altura de techo promedio de 2.7-2.9 metros serán de 17-19 piezas.
Debajo de las escaleras hay un vestidor, estudio, armario para diferentes cosas.
Disposición de anexos a la casa: porche, terraza.
La disposición adecuada del porche, la terraza y la terraza expandirá significativamente el espacio útil, sin saturar demasiado el sitio. Es aconsejable construir un dosel sobre estas dependencias: esto se utilizará incluso en climas lluviosos y en el caso de crear una terraza acristalada, incluso en invierno.
En el porche, especialmente alto, no protegido por pasamanos, la iluminación seguramente se hará, esto le permitirá no caerse de él, incluso si tiene que regresar a casa por la noche. La terraza está equipada con una cocina de verano, un jardín de invierno, una sala de relajación. El techo está hecho de policarbonato, madera, las paredes están hechas de ladrillo, madera, vidrio. Cuanto más pesado sea el material de la pared, más sólida será la base construida debajo del anexo.
Una terraza completamente cerrada proporciona protección adicional contra el frío del invierno.
Formas de decorar la fachada de la casa.
Las fachadas del edificio terminado están decoradas de maneras muy diferentes: generalmente depende del diseño elegido de todo el sitio, el territorio adyacente. Los elementos tallados en madera y cincelados son adecuados para una casa al estilo popular ruso. Estas serán persianas para ventanas, barandas de balaustres y una visera sobre el porche, porche. Los detalles están cubiertos con impregnaciones antisépticas, barniz, pintadas en diferentes colores. Fragmentos directos más rigurosos crearán un estilo escandinavo de entramado de madera.
Estuco de hormigón de fibra de vidrio, poliestireno expandido, decoración de poliuretano clásico y barroco. Las cornisas y molduras, las esquinas y consolas, las medias columnas y los paneles de relieve completos le darán al edificio una apariencia increíblemente lujosa. Si lo desea, dichos elementos están recubiertos con composiciones especiales que contienen astillas de mármol, teñidas en todos los sentidos, etc.
El revestimiento de vinilo o metal se adapta a casi cualquiera de los estilos existentes, desde el estado ruso hasta el neocolonial, desde el país hasta el moderno. El material imita fácilmente madera, piedra, ladrillo. El diseño también se puede "adaptar" a varios estilos: gótico, clásico, minimalismo.Además, se utilizan paneles de sótano, yesos decorativos, piedra natural, productos forjados para el porche.
Que errores evitar
Errores comunes cometidos al construir una casa:
construcción sin un proyecto: es casi imposible construir una vivienda de tan alta calidad, la probabilidad de colapso es muy alta;
cuando la exploración geológica del sitio no se ha realizado de antemano, es poco probable que la casa dure mucho tiempo;
La instalación inadecuada de los cimientos amenaza con que la estructura "caiga" al suelo, sesgada literalmente en unos pocos años;
Si no realiza una estimación por adelantado, es posible que no haya suficiente dinero, la construcción tendrá que posponerse durante mucho tiempo; durante este tiempo, lo que ya se ha construido quedará parcial o completamente inutilizable;
comprar los materiales de construcción más baratos también es una mala opción: es mejor pagar un poco más que reconstruir casi todo el edificio en menos de cinco a siete años;
el techo hecho de alguna manera también hará que el edificio sea extremadamente efímero;
las habitaciones no deben ser demasiado estrechas; esto es extremadamente inconveniente;
ahorrar en la altura de los techos tampoco vale la pena: una casa alta parece más sólida, tiene más aire, luz;
Si el edificio no está siendo construido por uno mismo, es importante elegir buenos especialistas que construyan el edificio de manera eficiente, de acuerdo con las solicitudes del cliente.
La valla y la puerta deben recibir menos atención que la propia casa: el territorio debe estar bien protegido de intrusos, invitados no deseados.
Conclusión
Una casa de uno o dos pisos, que mide 6x6 metros y cualquier altura conveniente, dentro de la cual todo está dispuesto casi como en un apartamento de la ciudad, será un excelente lugar para vivir en verano o durante todo el año. Toda esta construcción, desde el dibujo hasta la estructura terminada, desde los cimientos hasta el techo, puede crear con sus propias manos, con la cantidad necesaria de materiales de calidad, así como herramientas sin problemas.
La vivienda propia, aunque sea muy pequeña, siempre es buena. El área óptima en la que una familia de dos o tres personas puede cómodamente y a un costo mínimo es de 30 a 36 metros cuadrados. El diseño de la casa es de 6 por 6 metros cuadrados. m. Le permitirá colocar convenientemente todo lo que necesita para la vida, especialmente si construye un edificio de dos pisos. Una cabaña de madera, ladrillo y bloques de este tamaño se convertirá en una cabaña de verano o en una estructura para residencia permanente. El proyecto se compila en papel o usando programas especiales de computadora.
Contenido
Ventajas, desventajas de las casas de 6 por 6 m.
La casa cuadrada con una superficie de 36 metros tiene múltiples ventajas y desventajas.
Propiedades positivas:
Factores negativos
La elección del material de presupuesto para la construcción.
La proporción de precio y calidad de los materiales de construcción es considerada por la mayoría de los propietarios de la futura casa de campo, especialmente si el presupuesto es limitado.
Para uso en construcción:
Cada uno de los materiales enumerados tiene sus ventajas y debilidades. El diseño de la estructura depende de su construcción: los estilos canadiense y alpino están hechos de troncos que primero deben ser cilíndricos, el estilo medieval se recrea exclusivamente de ladrillo y gótico. Los bloques de espuma son adecuados para el constructivismo, el cubismo, la versión griega, y una casa de estilo ecológico, rural y japonés a menudo se construye a partir de vigas encoladas.
Hormigón de espuma
Los bloques de hormigón celular poroso tienen un bajo peso, altas propiedades de aislamiento térmico, higroscopicidad reducida y durabilidad.El material es resistente al fuego, es fácil colocar cualquier comunicación a través de él, haciendo los agujeros necesarios mediante una compuerta. Una casa de bloques de hormigón celular, los bloques de gas se están construyendo muy rápidamente, y el precio de un metro cuadrado de pared sale un 25-35% más barato que el de ladrillo. No es necesario aislar fuertemente la estructura, así como hacer una base excesivamente pesada.
Las desventajas del material incluyen la porosidad, que complica el montaje de los sujetadores, un largo período de contracción de la estructura terminada. Las paredes de concreto necesitan refuerzo, se ven feas sin decoración con pintura especial, yeso.
Madera
Las estructuras de vigas perfiladas están sujetas a las deformaciones más mínimas a lo largo de la línea helicoidal: el material no se deforma, la casa terminada no necesita calafatear, suficientes juntas son suficientes. La contracción es lo más mínimo, porque la construcción podrá completarse en el menor tiempo posible. El acabado también es opcional: las paredes salen lisas.
Las desventajas de la viga son que todos los detalles de la estructura deben tratarse periódicamente con compuestos antisépticos, y para su uso durante todo el año es deseable revestir la estructura desde el interior con un revestimiento u otro material similar.
Casa de panel de marco o panel SIP
La versión de panel de marco y la construcción de paneles SIP son dos métodos diferentes de construcción. La estructura de la casa está construida durante un tiempo relativamente largo, necesita una base de tira y su marco no es demasiado fuerte, ya que las partes están conectadas entre sí de forma puntiaguda. La construcción de paneles SIP a veces se erige en cuestión de días, los elementos estructurales están conectados entre sí de manera bastante rígida y el revestimiento con aislamiento, en toda la superficie. La base es apta para columnas o pilotes.
El costo de construir desde paneles SIP es alto, pero la calidad es la correspondiente. Tal casa durará hasta cien años, mientras que una casa de marco, un máximo de 35-45.La principal desventaja de los paneles SIP es la baja permeabilidad al aire, por lo tanto, el dispositivo de ventilación forzada es lo más importante aquí.
Ladrillo
La casa de ladrillo es ecológica, duradera y confiable. Se construye relativamente rápido, no es necesario esperar a que el material se encoja. El ladrillo no se pudre, no está dañado por insectos, moho, por lo tanto, no requiere tratamiento con un antiséptico. El calor en tal casa es excelente, el edificio es resistente al agua, a prueba de fuego, tiene una apariencia estética.
Las desventajas de la construcción en el precio de la construcción son los trabajos de albañilería, su costo es bastante grande y los costos aumentan con el aumento del número de pisos. La construcción de la base más sólida de concreto de alta calidad también es necesaria, ya que el ladrillo es un material muy pesado.
Las etapas principales del diseño de una casa de dos pisos.
La creación de una nueva casa comienza con un diseño competente, el plan más detallado. La documentación de diseño prescribe los materiales de los que está hecha la construcción, las dimensiones, el área de cada habitación, la ubicación de la estufa o la chimenea. Un elemento importante de un edificio de dos pisos es una escalera que le permite subir.
Cuando el proyecto se prepara de forma independiente, es necesario tener en cuenta el grosor de las paredes: puede ser de hasta 50 cm. Al principio, una lista de todas las habitaciones que se planea hacer es una sala de estar, cocina, dormitorio o incluso dos o tres pequeñas, separadas por tabiques, terraza, sótano, separadas La sala donde se ubicará la caldera que calienta el edificio. Es aconsejable hacer baños en cada piso, especialmente cuando hay más de tres o cuatro personas en una familia.
Es importante incluir de inmediato un porche, una veranda en el proyecto; deben formar un conjunto único con la estructura principal. Si planea equipar el sótano, entonces la base para ello se hace especial.
Disposición de la casa con ático.
Mansard: esta es una especie de segundo piso, decorado con un techo cónico, aguilón, aguilón, de cuatro tonos. Por lo general, el área útil de dicha estructura es ligeramente menor que una de 2 pisos, al igual que el costo total. Los problemas surgen solo con el diseño interior, especialmente si hay numerosas ventanas en las pendientes.
Altura cómoda del techo en el punto más alto: al menos dos metros y medio. La mayor parte del espacio del ático debe cumplir con este principio. Colocan un dormitorio completo, vestidor, baño, oficina, etc. Si lo desea, casi todo el piso puede estar ocupado por una sala de estar.
Al diseñar el ático, se tiene en cuenta el ángulo del techo: la altura máxima de las instalaciones, su uso racional, depende de ello. Un ático que es demasiado bajo es un ático común, donde solo puedes almacenar cosas viejas.
Características del diseño, disposición de las habitaciones.
Cuando la casa tiene dos pisos, no es difícil organizar todo lo necesario para una estancia confortable en ella. Es importante orientar adecuadamente las ventanas del edificio: la mejor opción es cuando las ventanas de las habitaciones están orientadas al este, al sureste, la sala de estar está orientada al oeste, la cocina está orientada al sur. Las habitaciones con ventanas del sur necesitan aire acondicionado: en verano hará demasiado calor. Si hay niños, las ventanas de la sala de estar o cualquier habitación donde los adultos tengan más probabilidades de hacer están orientadas hacia el patio; es más fácil observar lo que hace el niño cuando juega al aire libre.
Planta baja
En la planta baja generalmente hay un baño con ducha o bañera, una sala de calderas, calefacción de toda la casa, cocina, sala de estar. La mejor forma para cualquier habitación es cuadrada o casi cuadrada, el ancho óptimo es de 2.5-3 metros. Prácticamente no hay un corredor como tal: el ancho del pasillo, donde se encuentra la escalera, se mide aproximadamente un metro y medio.
No haga que el cuarto de la cocina sea demasiado estrecho, esto es un inconveniente. El baño tampoco debe ser pequeño, especialmente si hay una lavadora allí. El sótano a menudo se hace debajo del piso; con él, la casa será más cálida, pero la base en este caso se hace más alta.
Disposición del segundo piso.
En el segundo piso hacen una oficina, una habitación espaciosa o incluso dos, está permitido equipar un inodoro más, esto es especialmente importante cuando la familia es numerosa. A menudo hay un balcón: sus dimensiones dependen solo de las preferencias de los propietarios de la casa. A veces solo una gran sala de estar con billar, varios sofás, un cine en casa se hace arriba. Es conveniente hacer un gimnasio completo aquí.
Una escalera conduce al segundo piso, el lugar de su acoplamiento con la habitación superior está necesariamente encerrado con una barandilla, para evitar una caída. El diseño del primer y segundo piso puede variar ligeramente en color, pero es deseable realizar ambos espacios en el mismo estilo.
Cómo colocar las escaleras
Comienzan a equipar el segundo piso con una escalera; de lo contrario, es problemático subir allí. Por lo general, se coloca una escalera en el pasillo; allí no molesta a nadie. Con la ayuda de este elemento, a veces se realiza la zonificación del primer piso. Cuando las personas mayores y los niños pequeños viven en la casa, es obligatorio equiparla con una barandilla. La escalera también está vallada, equipada con accesorios de iluminación si no hay suficiente luz de las ventanas.
La escalera está hecha de concreto, madera o metal, su ancho está hecho de un metro, cuanto más pequeño es el ángulo de ascenso y descenso, más segura es la estructura misma. La mayoría de las veces, la escalera está en el centro geométrico de la casa, puede ser atornillada o marchando, por lo general, se realizan un par de pasos a continuación. Los pasos totales con una altura de techo promedio de 2.7-2.9 metros serán de 17-19 piezas.
Disposición de anexos a la casa: porche, terraza.
La disposición adecuada del porche, la terraza y la terraza expandirá significativamente el espacio útil, sin saturar demasiado el sitio. Es aconsejable construir un dosel sobre estas dependencias: esto se utilizará incluso en climas lluviosos y en el caso de crear una terraza acristalada, incluso en invierno.
En el porche, especialmente alto, no protegido por pasamanos, la iluminación seguramente se hará, esto le permitirá no caerse de él, incluso si tiene que regresar a casa por la noche. La terraza está equipada con una cocina de verano, un jardín de invierno, una sala de relajación. El techo está hecho de policarbonato, madera, las paredes están hechas de ladrillo, madera, vidrio. Cuanto más pesado sea el material de la pared, más sólida será la base construida debajo del anexo.
Formas de decorar la fachada de la casa.
Las fachadas del edificio terminado están decoradas de maneras muy diferentes: generalmente depende del diseño elegido de todo el sitio, el territorio adyacente. Los elementos tallados en madera y cincelados son adecuados para una casa al estilo popular ruso. Estas serán persianas para ventanas, barandas de balaustres y una visera sobre el porche, porche. Los detalles están cubiertos con impregnaciones antisépticas, barniz, pintadas en diferentes colores. Fragmentos directos más rigurosos crearán un estilo escandinavo de entramado de madera.
Estuco de hormigón de fibra de vidrio, poliestireno expandido, decoración de poliuretano clásico y barroco. Las cornisas y molduras, las esquinas y consolas, las medias columnas y los paneles de relieve completos le darán al edificio una apariencia increíblemente lujosa. Si lo desea, dichos elementos están recubiertos con composiciones especiales que contienen astillas de mármol, teñidas en todos los sentidos, etc.
El revestimiento de vinilo o metal se adapta a casi cualquiera de los estilos existentes, desde el estado ruso hasta el neocolonial, desde el país hasta el moderno. El material imita fácilmente madera, piedra, ladrillo.
El diseño también se puede "adaptar" a varios estilos: gótico, clásico, minimalismo.Además, se utilizan paneles de sótano, yesos decorativos, piedra natural, productos forjados para el porche.
Que errores evitar
Errores comunes cometidos al construir una casa:
Conclusión
Una casa de uno o dos pisos, que mide 6x6 metros y cualquier altura conveniente, dentro de la cual todo está dispuesto casi como en un apartamento de la ciudad, será un excelente lugar para vivir en verano o durante todo el año. Toda esta construcción, desde el dibujo hasta la estructura terminada, desde los cimientos hasta el techo, puede crear con sus propias manos, con la cantidad necesaria de materiales de calidad, así como herramientas sin problemas.