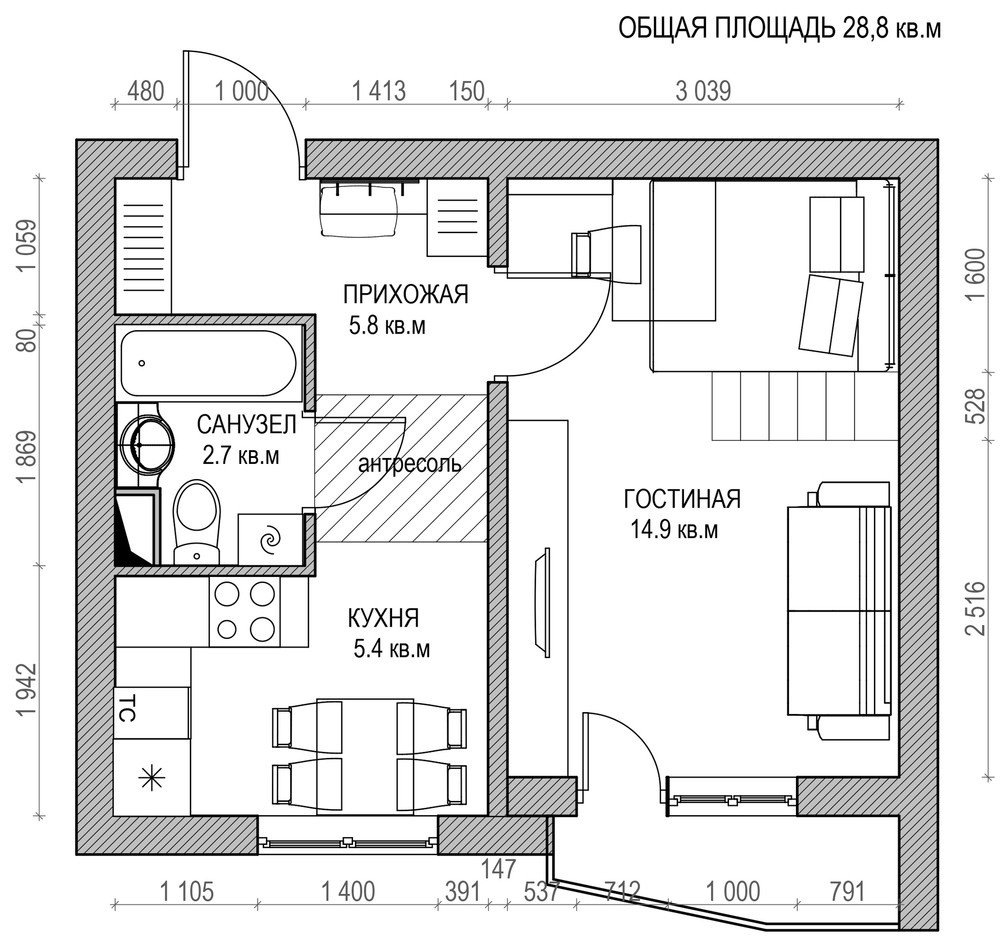
Estudio de diseño con una superficie de 29 metros cuadrados. m
Realice un estudio de diseño competente en 29 metros cuadrados. m ayudará a diseñar una indicación del tamaño permitido de todas las áreas del apartamento. Además de las partes principales: habitaciones para cocinar, comer y dormir, con un diseño cuidadosamente pensado, puede asignar partes para el ocio, el trabajo en casa. La presencia de un balcón en el estudio permite transferir un grupo de comedor a esta parte del apartamento u organizar un lugar de trabajo allí. La falta de un balcón requiere una zonificación competente y bien pensada. Al crear un interior elegante y racional, los muebles seleccionados desempeñarán un papel importante. Los productos compactos seleccionados deben ser espaciosos. La presencia de grandes compartimentos internos en muebles tapizados, el diverso llenado del gabinete proporcionará la facilidad de almacenamiento de artículos personales. El énfasis en la originalidad del arreglo también será ayudado por la selección de la decoración temática, la selección de accesorios de iluminación adecuados para el diseño y las características.
Al elegir un estilo para decorar un estudio de 29 cuadrados, debe dar preferencia a las áreas con luz predominante y colores pastel. Las mejores opciones de registro serán:
Escandinavo: el color blanco principal del acabado contribuirá a un aumento visual en el área, creará un ambiente acogedor;
urbano y moderno: la decoración discreta de la pared de color gris claro o beige junto con los muebles de colores claros crearán un diseño elegante y práctico;
Provenza: el estilo simple y fácil en colores blanco y pastel (azul claro, verde claro puede ser opcional) enfatizará la comodidad de vivir;
loft: a pesar de la pequeña área del apartamento, la inclusión en el acabado blanco de varios acentos en forma de ladrillos rojo-naranja enfatizará la comodidad y no reducirá visualmente el espacio;
eco: una opción de ganar-ganar para estudios pequeños, incluye un acabado blanco, requiere el uso de madera natural clara y plantas vivas (para la decoración ordinaria o para el diseño de paredes).
Colores y acabados
Como se indicó anteriormente, el color principal de un estudio de una habitación con un área de 29 metros cuadrados. m debe ser de color blanco, crema claro o beige claro. Una variedad de colores pastel puede servir como complementos. Por ejemplo, los desenfoques de color azul claro, gris claro o lila serán óptimos para el estilo urbano y moderno. Para un loft: marrón claro, rojo marrón o naranja. La ausencia de una gran cantidad de acentos evitará la sobrecarga del interior y su reducción visual.
Como acabado, se recomienda utilizar materiales simples:
pintura o papel tapiz liso (el papel tapiz con patrones no funcionará, lo máximo que se puede permitir es papel tapiz liso con adornos en relieve);
laminado, linóleo, marmoleo (el parquet puede reducir visualmente el área de una habitación);
blanqueado (con una altura de pared de más de 2,7 m, se permite la instalación de un techo de yeso de una sola capa o techo tensado en blanco).
Zonificación del departamento
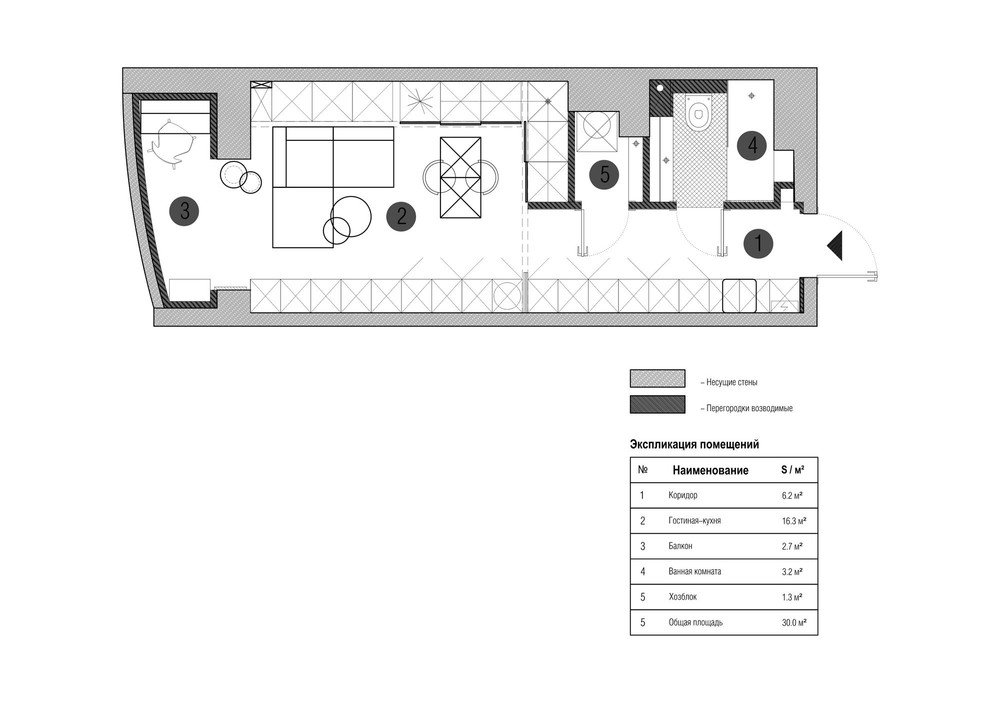
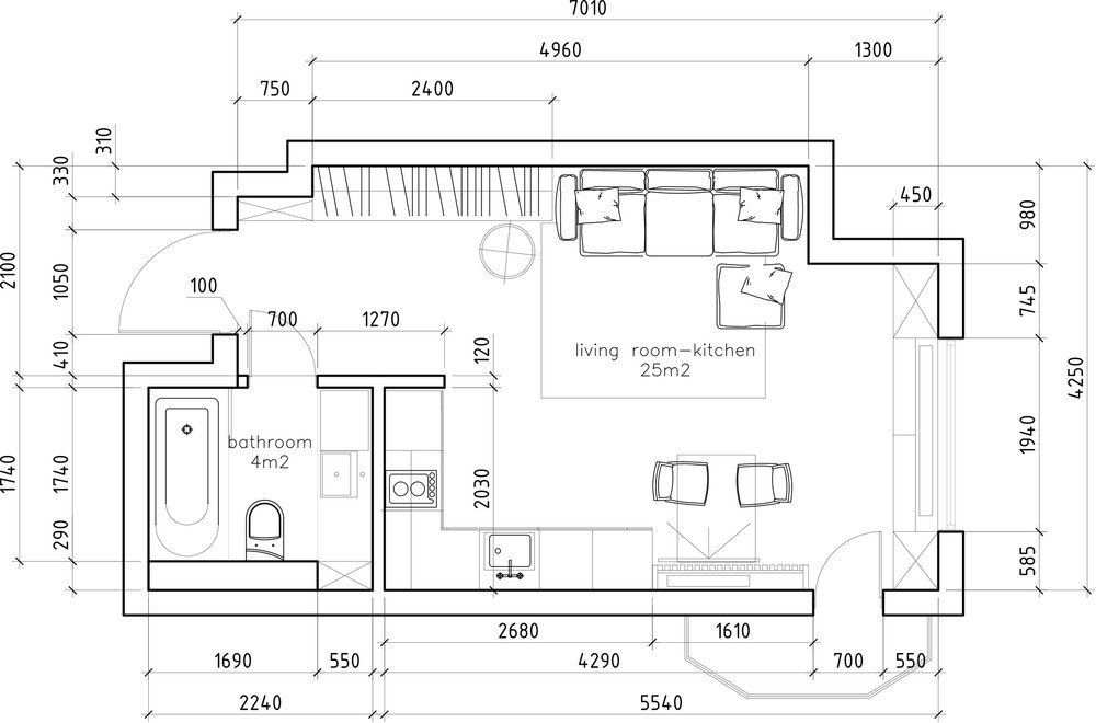
Para la separación correcta del estudio, debe seleccionar inmediatamente las zonas necesarias. Por ejemplo, los propietarios no pueden prescindir de una cocina. El área para comer puede ser una mesa independiente o puede estar representada por una barra de bar ordenada. La sala de estar con un sofá puede actuar simultáneamente como un área para dormir. Esta opción de combinación es óptima si es necesario para asignar un lugar para trabajar o estudiar. Si es necesario, las zonas pueden superponerse un poco. Por ejemplo, entre el sofá y el televisor se puede instalar una barra para comer. Para crear un diseño práctico, se recomienda hacer varios planos con dibujos, incluida la zonificación precisa e indicando el área aproximada de cada parte.
Área de dormir
Crear una habitación realmente cómoda y ordenada en el estudio no es una tarea fácil. La cama para dormir seleccionada debe estar cercada de la cocina y la sala de estar. Por lo tanto, se mantendrá la limpieza y el orden en el área asignada y, además, los propietarios sentirán una verdadera comodidad. Una estantería abierta o cerrada puede actuar como un separador. La instalación de un armario deslizante (con un entrepiso) también será adecuada. Si el área lo permite, puede instalar una mesita de noche entre la cama y el divisor. Se recomienda que cuelgue un foco o una lámpara de techo sobre la cama.
Para una familia con un niño, el diseño de la habitación se lleva a cabo teniendo en cuenta la ubicación de la cuna. En este caso, es mejor reemplazar la cama grande con un sofá plegable o usar el sofá en la sala de estar para dormir.
Sala de estar
Para organizar una amplia sala de estar en un apartamento de 29 metros cuadrados. m es bastante difícil: los propietarios deben dejar suficiente espacio para instalar un juego de cocina, una cama para dormir. Por lo tanto, para la sala de estar generalmente se destaca una pequeña parte de la habitación, ubicada cerca de la ventana. Aquí es donde un pequeño sofá cabe cómodamente. Si los muebles tapizados no se encuentran cerca de la pared con una ventana (hay una pequeña muesca), aquí puede colocar una pequeña estantería abierta. Se recomienda poner una mesa de centro compacta frente al sofá. Frente al sofá, coloque el televisor. Si es posible, debe instalarse en un soporte bajo (los propietarios almacenarán revistas, libros o artículos personales en él). Si no es posible instalar el gabinete, debe montar el televisor en la pared.
La cocina
Si no hay balcón en un estudio de una habitación con un área de 29 cuadrados, la mejor solución es instalar muebles de cocina cerca del hall de entrada. En la habitación cuadrada frente a la cocina (a través de un pequeño pasaje) habrá un dormitorio. En habitaciones estrechas rectangulares sin balcón, la cocina también será adecuada para colocarla más cerca de la entrada. Enfrente se puede instalar un escritorio o un armario. Con un balcón, la cocina se puede mover a la esquina más alejada del estudio. Solo los auriculares deben colocarse no cerca de la puerta del balcón, sino debajo de la pared lo más lejos posible de la entrada al balcón. Por lo tanto, el área del comedor se puede sacar debajo de la ventana de la habitación.
Una cocina equipada requerirá la instalación de una campana potente. Evitará la deposición de grasa en muebles tapizados y eliminará el problema de la tapicería de diferentes olores.
Un baño
El baño combinado es bastante simple de equipar con tuberías compactas. Si es posible, debe elegir un inodoro con una instalación incorporada. Reemplace una bañera ordinaria con una cabina de ducha ordinaria o con un modelo de 2 paredes. La planificación de un baño pequeño debe realizarse teniendo en cuenta el tamaño de la tubería que desee.Una solución conveniente será la ubicación al lado de la cabina de ducha de una lavadora o cómoda. Un inodoro, un lavabo está instalado a lo largo de la pared opuesta. Por lo tanto, toda la tubería se colocará a la izquierda y derecha de la entrada, moverse por el baño será simple. Es cierto que esta opción es adecuada para un baño estrecho y alargado. Con un diseño diferente de la habitación, se recomienda colocar toda la tubería a lo largo de la pared opuesta a la entrada.
Pasillo
El pequeño hall de entrada debe estar equipado con muebles compactos, lo que permite almacenar cómodamente artículos de temporada. Una solución racional es instalar un colgador de piso combinado con un banco. Una buena alternativa es un banco pequeño (o banco) y una percha colgante (posiblemente incluso con un estante para sombreros). Un hall de entrada debidamente organizado (de acuerdo con este esquema) evitará la transferencia de basura de la calle al área residencial. Es por eso que no se recomienda ampliar el pasillo a expensas de la habitación. Resolver los problemas de almacenamiento de ropa y zapatos exteriores fuera de temporada ayudará a instalar un amplio armario en el dormitorio. Él, a su vez, desempeñará el papel de una especie de partición entre el pasillo y el dormitorio. Si el estudio tiene un balcón, también se puede usar como vestidor.
Iluminación
La organización de una iluminación adecuada en un apartamento pequeño se puede lograr de diferentes maneras. Puede elegir la opción adecuada entre estas soluciones:
araña + lámparas de pie: la iluminación del techo principal se puede complementar con 2-3 lámparas de pie;
araña + puntos: los puntos restringidos simples no serán evidentes, a diferencia de los apliques, y ayudarán a utilizar el espacio libre económicamente (a diferencia de las lámparas de pie ordinarias);
luces de techo planas: 2-3 lámparas redondas, cuadradas o rectangulares ayudarán a iluminar todo el espacio del estudio;
proyectores: se pueden montar alrededor del perímetro del techo o disponerse en dos filas (a lo largo de las paredes izquierda y derecha).
En el área de cocción, la iluminación oculta es obligatoria. Entonces, a pesar de la lejanía de la lámpara principal, la encimera, la estufa y el fregadero siempre estarán bien iluminados.
Selección y colocación de muebles.
La selección de muebles para crear un ambiente confortable debe realizarse de acuerdo con las áreas equipadas de un apartamento de una habitación:
cocina: un pequeño auricular directo es suficiente para el almacenamiento compacto de utensilios y una cocina conveniente; junto al auricular puede instalar un grupo de comedor separado (con estantes dentro de la mesa);
dormitorio: una cama espaciosa se puede separar perfectamente con la ayuda de un estante o un armario;
sala de estar: un sofá directo (la esquina ocupará demasiado espacio) + una mesa de centro compacta que le permitirá relajarse cómodamente y pasar el tiempo libre;
área de comedor (alejada de la cocina): puede incluir una pequeña mesa redonda o cuadrada y 2-4 sillas, generalmente instaladas frente a la ventana;
lugar de trabajo: debe incluir un escritorio / escritorio de computadora, puede instalarse frente a la ventana (si el área del comedor está cerca de la cocina) o ubicada frente al área de recreación (por ejemplo, debajo de un televisor montado en la pared).
Decoración de la ventana
Mantener las ventanas lo más abiertas posible para crear una iluminación natural de alta calidad es una tarea muy importante al configurar estudios. Es por eso que no se recomienda usar sábanas gruesas o elegir estilos de cortinas multicapa. Una solución simple y concisa serán los modelos en rollo. Con su ayuda, el grado de iluminación del apartamento durante el día se regula con bastante facilidad, y por la noche todo el estudio está bien escondido de los vecinos curiosos (con la iluminación artificial encendida). Para enfatizar la ligereza del interior del apartamento, puede colgar largas cortinas translúcidas en el piso. Es cierto que necesitarán cuidados constantes. Las cortinas cortas para el alféizar de la ventana en colores brillantes son preferibles para Provence y loft. Para tales estilos, tanto los modelos de algodón como las cortinas de lino son muy adecuados.
Accesorios y decoracion
Eliminar el apilamiento de un apartamento tipo estudio ayudará a usar solo 2-3 accesorios para el diseño. Por ejemplo, pueden ser pinturas en blanco y negro o pastel, carteles con inscripciones motivadoras. Puede reemplazarlos con un par de figuritas temáticas pequeñas. En una mesa de café, puede poner un jarrón con flores artificiales o naturales. Elija un florero basado en las características del estilo creado. Para un loft, por ejemplo, es adecuado un modelo de cubo hecho de vidrio opaco negro. Para Provenza: un jarrón redondo de yute o cerámica. Si tiene un estante, puede usar un par especial de sujetalibros hechos de metal y pintados de negro. Una sabia decisión es usar plantas vivas en macetas hermosas como decoración. Dichos accesorios enfatizan la comodidad y la comodidad de vivir.
Conclusión
Un arreglo hermoso y más práctico de un apartamento con un área de 29 cuadrados es fácil de llevar a cabo, planeando cuidadosamente la situación necesaria. Los propietarios primero deben determinar qué parte de la habitación será central (dónde pasarán la mayor parte del tiempo), y luego proceder con la planificación de las partes restantes. Dependiendo de la forma y las características del estudio, se seleccionan el estilo óptimo y la combinación de colores. Deben enfatizar la originalidad del diseño y crear una verdadera comodidad en el hogar. Los propietarios deben prestar especial atención a la corrección de la iluminación seleccionada. Por último, se selecciona la decoración. Los accesorios seleccionados deben ser apropiados para un estilo en particular, formar parte de él y no destacar el acento. Sujeto a tales reglas y recomendaciones, no será difícil llevar a cabo una alteración competente de un estudio de pequeño tamaño con sus propias manos.
Realice un estudio de diseño competente en 29 metros cuadrados. m ayudará a diseñar una indicación del tamaño permitido de todas las áreas del apartamento. Además de las partes principales: habitaciones para cocinar, comer y dormir, con un diseño cuidadosamente pensado, puede asignar partes para el ocio, el trabajo en casa. La presencia de un balcón en el estudio permite transferir un grupo de comedor a esta parte del apartamento u organizar un lugar de trabajo allí. La falta de un balcón requiere una zonificación competente y bien pensada. Al crear un interior elegante y racional, los muebles seleccionados desempeñarán un papel importante. Los productos compactos seleccionados deben ser espaciosos. La presencia de grandes compartimentos internos en muebles tapizados, el diverso llenado del gabinete proporcionará la facilidad de almacenamiento de artículos personales. El énfasis en la originalidad del arreglo también será ayudado por la selección de la decoración temática, la selección de accesorios de iluminación adecuados para el diseño y las características.
Contenido
Estilos populares para un estudio
Al elegir un estilo para decorar un estudio de 29 cuadrados, debe dar preferencia a las áreas con luz predominante y colores pastel. Las mejores opciones de registro serán:
Colores y acabados
Como se indicó anteriormente, el color principal de un estudio de una habitación con un área de 29 metros cuadrados. m debe ser de color blanco, crema claro o beige claro. Una variedad de colores pastel puede servir como complementos. Por ejemplo, los desenfoques de color azul claro, gris claro o lila serán óptimos para el estilo urbano y moderno. Para un loft: marrón claro, rojo marrón o naranja. La ausencia de una gran cantidad de acentos evitará la sobrecarga del interior y su reducción visual.
Como acabado, se recomienda utilizar materiales simples:
Zonificación del departamento
Para la separación correcta del estudio, debe seleccionar inmediatamente las zonas necesarias. Por ejemplo, los propietarios no pueden prescindir de una cocina. El área para comer puede ser una mesa independiente o puede estar representada por una barra de bar ordenada. La sala de estar con un sofá puede actuar simultáneamente como un área para dormir. Esta opción de combinación es óptima si es necesario para asignar un lugar para trabajar o estudiar. Si es necesario, las zonas pueden superponerse un poco. Por ejemplo, entre el sofá y el televisor se puede instalar una barra para comer. Para crear un diseño práctico, se recomienda hacer varios planos con dibujos, incluida la zonificación precisa e indicando el área aproximada de cada parte.
Área de dormir
Crear una habitación realmente cómoda y ordenada en el estudio no es una tarea fácil. La cama para dormir seleccionada debe estar cercada de la cocina y la sala de estar. Por lo tanto, se mantendrá la limpieza y el orden en el área asignada y, además, los propietarios sentirán una verdadera comodidad. Una estantería abierta o cerrada puede actuar como un separador. La instalación de un armario deslizante (con un entrepiso) también será adecuada. Si el área lo permite, puede instalar una mesita de noche entre la cama y el divisor. Se recomienda que cuelgue un foco o una lámpara de techo sobre la cama.
Sala de estar
Para organizar una amplia sala de estar en un apartamento de 29 metros cuadrados. m es bastante difícil: los propietarios deben dejar suficiente espacio para instalar un juego de cocina, una cama para dormir. Por lo tanto, para la sala de estar generalmente se destaca una pequeña parte de la habitación, ubicada cerca de la ventana. Aquí es donde un pequeño sofá cabe cómodamente. Si los muebles tapizados no se encuentran cerca de la pared con una ventana (hay una pequeña muesca), aquí puede colocar una pequeña estantería abierta. Se recomienda poner una mesa de centro compacta frente al sofá. Frente al sofá, coloque el televisor. Si es posible, debe instalarse en un soporte bajo (los propietarios almacenarán revistas, libros o artículos personales en él). Si no es posible instalar el gabinete, debe montar el televisor en la pared.
La cocina
Si no hay balcón en un estudio de una habitación con un área de 29 cuadrados, la mejor solución es instalar muebles de cocina cerca del hall de entrada. En la habitación cuadrada frente a la cocina (a través de un pequeño pasaje) habrá un dormitorio. En habitaciones estrechas rectangulares sin balcón, la cocina también será adecuada para colocarla más cerca de la entrada. Enfrente se puede instalar un escritorio o un armario. Con un balcón, la cocina se puede mover a la esquina más alejada del estudio. Solo los auriculares deben colocarse no cerca de la puerta del balcón, sino debajo de la pared lo más lejos posible de la entrada al balcón. Por lo tanto, el área del comedor se puede sacar debajo de la ventana de la habitación.
Un baño
El baño combinado es bastante simple de equipar con tuberías compactas. Si es posible, debe elegir un inodoro con una instalación incorporada. Reemplace una bañera ordinaria con una cabina de ducha ordinaria o con un modelo de 2 paredes. La planificación de un baño pequeño debe realizarse teniendo en cuenta el tamaño de la tubería que desee.Una solución conveniente será la ubicación al lado de la cabina de ducha de una lavadora o cómoda. Un inodoro, un lavabo está instalado a lo largo de la pared opuesta. Por lo tanto, toda la tubería se colocará a la izquierda y derecha de la entrada, moverse por el baño será simple. Es cierto que esta opción es adecuada para un baño estrecho y alargado. Con un diseño diferente de la habitación, se recomienda colocar toda la tubería a lo largo de la pared opuesta a la entrada.
Pasillo
El pequeño hall de entrada debe estar equipado con muebles compactos, lo que permite almacenar cómodamente artículos de temporada. Una solución racional es instalar un colgador de piso combinado con un banco. Una buena alternativa es un banco pequeño (o banco) y una percha colgante (posiblemente incluso con un estante para sombreros). Un hall de entrada debidamente organizado (de acuerdo con este esquema) evitará la transferencia de basura de la calle al área residencial. Es por eso que no se recomienda ampliar el pasillo a expensas de la habitación. Resolver los problemas de almacenamiento de ropa y zapatos exteriores fuera de temporada ayudará a instalar un amplio armario en el dormitorio. Él, a su vez, desempeñará el papel de una especie de partición entre el pasillo y el dormitorio. Si el estudio tiene un balcón, también se puede usar como vestidor.
Iluminación
La organización de una iluminación adecuada en un apartamento pequeño se puede lograr de diferentes maneras. Puede elegir la opción adecuada entre estas soluciones:
Selección y colocación de muebles.
La selección de muebles para crear un ambiente confortable debe realizarse de acuerdo con las áreas equipadas de un apartamento de una habitación:
Decoración de la ventana
Mantener las ventanas lo más abiertas posible para crear una iluminación natural de alta calidad es una tarea muy importante al configurar estudios. Es por eso que no se recomienda usar sábanas gruesas o elegir estilos de cortinas multicapa. Una solución simple y concisa serán los modelos en rollo. Con su ayuda, el grado de iluminación del apartamento durante el día se regula con bastante facilidad, y por la noche todo el estudio está bien escondido de los vecinos curiosos (con la iluminación artificial encendida). Para enfatizar la ligereza del interior del apartamento, puede colgar largas cortinas translúcidas en el piso. Es cierto que necesitarán cuidados constantes. Las cortinas cortas para el alféizar de la ventana en colores brillantes son preferibles para Provence y loft. Para tales estilos, tanto los modelos de algodón como las cortinas de lino son muy adecuados.
Accesorios y decoracion
Eliminar el apilamiento de un apartamento tipo estudio ayudará a usar solo 2-3 accesorios para el diseño. Por ejemplo, pueden ser pinturas en blanco y negro o pastel, carteles con inscripciones motivadoras. Puede reemplazarlos con un par de figuritas temáticas pequeñas. En una mesa de café, puede poner un jarrón con flores artificiales o naturales. Elija un florero basado en las características del estilo creado. Para un loft, por ejemplo, es adecuado un modelo de cubo hecho de vidrio opaco negro. Para Provenza: un jarrón redondo de yute o cerámica. Si tiene un estante, puede usar un par especial de sujetalibros hechos de metal y pintados de negro. Una sabia decisión es usar plantas vivas en macetas hermosas como decoración. Dichos accesorios enfatizan la comodidad y la comodidad de vivir.
Conclusión
Un arreglo hermoso y más práctico de un apartamento con un área de 29 cuadrados es fácil de llevar a cabo, planeando cuidadosamente la situación necesaria. Los propietarios primero deben determinar qué parte de la habitación será central (dónde pasarán la mayor parte del tiempo), y luego proceder con la planificación de las partes restantes. Dependiendo de la forma y las características del estudio, se seleccionan el estilo óptimo y la combinación de colores. Deben enfatizar la originalidad del diseño y crear una verdadera comodidad en el hogar. Los propietarios deben prestar especial atención a la corrección de la iluminación seleccionada. Por último, se selecciona la decoración. Los accesorios seleccionados deben ser apropiados para un estilo en particular, formar parte de él y no destacar el acento. Sujeto a tales reglas y recomendaciones, no será difícil llevar a cabo una alteración competente de un estudio de pequeño tamaño con sus propias manos.