La ausencia de cualquier diseño es un tipo común de vivienda en los países europeos. El número mínimo de paredes y particiones le permite usar realmente toda el área de la habitación. Los apartamentos tipo estudio de 30 m2 están divididos condicionalmente en varias zonas. Básicamente es una cocina, salón-comedor, un lugar para dormir. Si el área lo permite, puede agregar varias áreas funcionales: una biblioteca, un área de trabajo, una oficina. Las soluciones de diseño moderno le permiten hacer que la transición entre las secciones del apartamento sea suave y concisa. La falta de puertas compensa la combinación de papel tapiz, altura del piso, muebles, pintura de paredes en contraste.
Incluso el estudio más pequeño parecerá espacioso en comparación con los diseños de varias habitaciones. En él puede moverse libremente, tener una visión general de todo el espacio desde un punto. La ausencia de particiones le permite tener un niño pequeño en el campo de visión, mascotas, para comunicarse libremente con los invitados y preparar refrescos simultáneamente. Las ventajas de los estudios de una habitación de hasta 30 m2 incluyen los siguientes factores:
Los trabajos de reurbanización, reparación y acabado no requieren grandes costos financieros;
Pequeñas facturas de servicios públicos;
Facilidad de mantenimiento;
Precio asequible en el mercado inmobiliario de pequeño tamaño;
Posibilidad de zonificación independiente;
Iluminación uniforme en todo el apartamento.
Entre las deficiencias de la vivienda remodelada, se observan las molestias de una familia numerosa. Tal ajuste de habitación es adecuado para un máximo de una pareja joven con un niño pequeño. El espacio privado para recreación y pasatiempo será imposible de proporcionar. Además, en los estudios no hay aislamiento acústico interno, los olores de la cocina se extienden por toda la habitación, incluso con un buen extracto.
Es muy difícil volver a planificar odnushka en un apartamento tipo estudio en una casa de ladrillo, especialmente si se encuentra en los pisos inferiores y tiene muros de carga. Para un panel, versión de bloque, dichos cambios en el diseño no se proporcionan en absoluto.
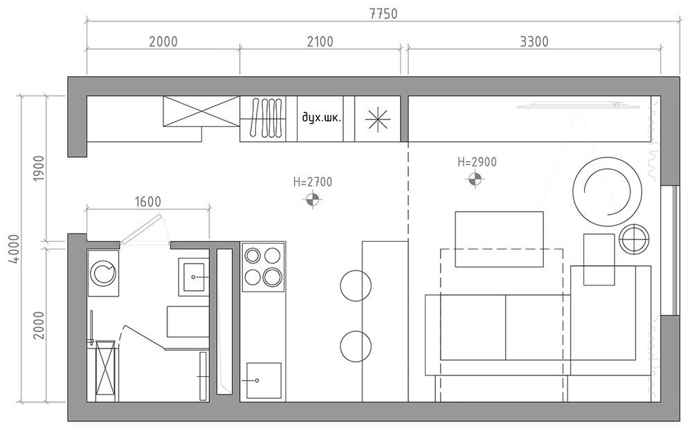
Proyecto de planificación y diseño.
El espacio de un pequeño estudio es de 30 metros cuadrados. m es fácil de expandir y hacer cómodo con la ayuda de técnicas de diseño simples.Cualquier empresa, especialmente en relación con modificaciones cardinales en la sala, debe basarse en un plan detallado previamente preparado. Puede colaborar con diseñadores profesionales o confiar en su gusto.
Si se planifica la reurbanización en un Jruschov de dos habitaciones, es necesario encontrar un plan de construcción y asegurarse de que no haya muros de carga. La creación del proyecto principal debe realizarse con la participación de los siguientes documentos:
Plan de medida El área del apartamento, los elementos constitutivos adjuntos se miden con equipos modernos.
Registros de estructuras construidas. Simplifique la disposición de las piezas insertadas, arcos de nueva construcción, nichos.
Plan de desmantelamiento. Indica áreas destinadas a demolición, reurbanización.
Esquema del techo y paredes con marcas en la colocación de puntos eléctricos. El documento refleja la ruta del paso del nuevo cableado, enchufes, interruptores, luces de techo y más.
Diagrama de cableado de tubería. Redactado si es necesario la remodelación del baño, agregando nuevas baterías.
El espacio de un estudio es de hasta 30 metros cuadrados. m debe ser brillante. Si hay un balcón acristalado, puede aislarse y crear un área de trabajo o agregar esta área al total. Antes de realizar un proyecto de diseño, debe elegir varias opciones para bocetos, grupos de muebles y paletas de colores.
Al redactar un proyecto, es necesario lograr una combinación precisa de todas las partes en un conjunto. En un área pequeña, se notará la menor desviación en tono o textura. Un plan abierto requiere una colocación competente de énfasis. El estudio no debe sobrecargarse con muebles y electrodomésticos, debe considerar correctamente el sistema de almacenamiento oculto del armario.
Zonificación y disposición del espacio.
Antes de comenzar un proyecto para la asignación de zonas, es necesario priorizar y determinar correctamente la función principal de la sala.Si la opción clásica es aceptable: la sala de estar y la cocina, puede separar las zonas con la barra o la mesa de comedor. Para resaltar el estudio, el dormitorio requerirá particiones. Pueden ser bastidores altos, columnas, varios niveles de piso, todo tipo de cortinas y pantallas.
Para expandir el espacio de la habitación utilizando ventanas amplias. Si no puede ampliar las ventanas, puede usar composiciones de espejo. Superficies reflectantes adornan el techo, puertas de armario. También hay muchas opciones para separar zonas con la ayuda de decoración, diseño de color, selección de estilo. Para cada zona, ciertas técnicas serán apropiadas.
Área de dormir
En un lugar de descanso y sueño, es necesario combinar dos conceptos importantes: funcionalidad y frescura del diseño. La decoración de la habitación en espacios abiertos debe ser lo más privada posible. Puede limitar su vista con la ayuda de una pantalla, particiones y muebles altos. El área del dormitorio debe ubicarse al nivel de la puerta principal o en la pared opuesta.
La parcela de tierra asignada para la organización de una litera debe ser completamente funcional. Asegúrese de tener una cama completa, mesita de noche, armario o al menos un estante para perchas. Esta área también necesitará planificar una iluminación tenue.
Si hay un nicho en el apartamento, este es el lugar que queda para el área de descanso después de la remodelación. Proporcionar esta opción es muy conveniente. Con una escasez de espacio, los lugares para dormir con un mecanismo plegable, como una cama convertible plegable, un sillón plegable, serán una excelente opción.
Lugar de trabajo
Un estudio o un lugar conveniente para trabajar no siempre encaja en el interior minimalista de un estudio. Pero, si la organización de tal lugar es una necesidad absoluta, el escritorio se puede hacer volviendo a colocar el alféizar de la habitación principal.Este enfoque resuelve varios problemas a la vez: hay un lugar separado para trabajar o estudiar cómodamente, la superficie está perfectamente iluminada por la luz del día, el espacio de la ventana se utiliza con beneficio.
Encaja con éxito en el lugar de trabajo interior, organizado en un pequeño nicho. Una pared libre le permitirá organizar muchos estantes para libros y documentos, las particiones laterales de concreto amortiguarán los sonidos extraños. Puede lograr una buena iluminación con lámparas adicionales o una lámpara de mesa.
Si no hay un lugar adecuado para el área de trabajo, puede estar bien enmascarado y formar parte de la composición interior. Hay algunos trucos de diseño para esto. Grandes pinturas, carteles, fotografías cerca de la mesa separan visualmente el lugar de trabajo. Para que la mesa sea menos visible, se debe elegir entre materiales ligeros e ingrávidos. Si está pintado del color de las paredes, se disolverá completamente en el espacio.
La necesidad de una gran encimera se implementará efectivamente en la versión de esquina. Esta disposición le permite utilizar mucho más espacio en la pared. Las mesas modelo con cajones y otras opciones de almacenamiento adicional nunca serán superfluas en un apartamento de tamaño modesto.
Área de cocina y comedor.
La opción más fácil para separar la cocina de la sala de estar es instalar una partición. Puede recurrir a tal solución solo si la recepción no crea un obstáculo innecesario. Las pantallas y particiones pueden ser funcionales o decorativas. Una gran idea es usar demarcaciones auténticas. La pared no completamente demolida convertirá un antiguo apartamento en un elegante estudio.
La disposición del comedor debe tener lugar en el sitio de la unión de la cocina y la sala de estar. La separación en ambos lados se puede hacer usando la barra, pisos de diferentes niveles. El esquema de color, el diseño de la pared, las superficies del techo no deben destacarse.Como acentos brillantes en la cocina, puede usar textiles, un delantal, las fachadas de un auricular.
Área de invitados y lugar de descanso
El principal atributo de la sala de estar es un sofá. Su tamaño, estilo, mano de obra dependen del área del apartamento y la capacidad de dejar espacio para ello. Es mejor considerar modelos plegables para obtener una cama extra si es necesario.
El área de invitados está equipada en el centro del apartamento por razones prácticas. Aquí reciben invitados, se relajan leyendo libros y viendo televisión, juegan con niños. Debe ser brillante y, si es posible, con un centro libre. Es suficiente poner una mesita baja. Es mejor colgar la televisión en la pared. El lado debe elegirse con una vista conveniente desde el sofá, desde la cocina y el comedor. Las cortinas de las ventanas pueden ser del mismo tipo o tener un estilo diferente. Todo depende del diseño interior básico.
Disposición del salón
El diseño del pasillo en un apartamento de 30 metros cuadrados debe abordarse primero en términos de practicidad. El polvo y la humedad traídos de la calle no deben salir del área del corredor. Este sitio no debe obstaculizar el traslado de hogares.
El pasillo puede ser cuadrado o rectangular. Para crear comodidad y tranquilidad es necesario separarlo de la sala de estar por una pared o tabique. Con las puertas abiertas, las áreas principales (recepción, comedor, descanso) no deben ser visibles. La división en zonas de un corredor de cualquier forma se puede hacer de las siguientes maneras:
Acabado del piso, techo. Sobre el corredor y la sala de estar equipan su propio escenario de iluminación. El piso también se caracteriza por la resistencia a la abrasión y la facilidad de mantenimiento.
La decoración de las paredes. La diferenciación involucra materiales de diferentes colores, texturas y características básicas.
Nivel del piso, techo. Diferentes acabados de altura dan la impresión de varias habitaciones.
Un armario para guardar ropa de abrigo, perchas en bastidores serán una excelente opción para separar el pasillo.
Los muebles de uso especial ayudarán a separar dos zonas entre sí. En el pasillo es necesario colgar un espejo de cuerpo entero, el sofá girado hacia la entrada con la parte posterior de la parte posterior indicará el centro de la sala de estar.
Un baño
El diseño de los estudios modernos en casas antiguas puede verse obstaculizado por la mala ubicación del baño para esto. La separación o combinación de espacios no es posible si el inodoro con el baño se encuentra en el camino desde la puerta de entrada a la cocina. Puede superar la situación planificando correctamente el diseño del apartamento.
El baño separado debe combinarse. Esto ayudará a expandir el espacio del baño y otras áreas, lo que permitirá instalar una lavadora, secadora y todo tipo de estantes. Para ahorrar espacio, el baño estándar debe reemplazarse con una ducha. El espacio libre debajo del fregadero se puede convertir en un conveniente sistema de almacenamiento.
Selección de estilo
El diseño de un apartamento tipo estudio brinda total libertad creativa a los propietarios. La ausencia de paredes simplifica enormemente la reparación, la selección de materiales, facilita la elección del estilo principal. La creación de un interior ideal adecuado para un estilo de vida facilitado se lleva a cabo utilizando algunos trucos y trucos para maximizar las posibilidades de un área pequeña, para crear un ambiente acogedor y confortable.
Al elegir el mejor estilo, debe tener en cuenta algunos matices. En primer lugar, es necesario prever las características arquitectónicas de la habitación: el número y el tamaño de las ventanas, la altura de los techos y otros factores importantes. Luego debe identificar las funciones principales de la casa y el número de residentes. Se tiene en cuenta la necesidad de una gran cocina, un área de trabajo, un lugar separado para dormir y un juego.
Al estilo de "alta tecnología"
El estilo tecnológico es ideal para estudios en miniatura.En un apartamento de este tipo, todo debe pensarse hasta el más mínimo detalle, nada puede quedar a la vista sin la necesidad. El ambiente es simple, sin una decoración exuberante, accesorios adicionales, elementos textiles. Todos los artículos en la habitación tienen un propósito funcional.
El acabado de la superficie se realiza con materiales fríos. Principalmente es vidrio, metal, plástico, piedra natural. Los colores son neutros. Será interesante observar variaciones en blanco y negro, metálico, azul y blanco. Los elementos textiles se usan muy poco. Las cortinas se reemplazan mejor con persianas modernas o paneles de plástico. La alfombra no encaja bien en el interior de alta tecnología, pero si es necesario, debe ser simple y con una pequeña pila.
Al estilo de "Loft"
El estilo industrial está hecho para apartamentos tipo estudio. Su concepto principal es tanto espacio y libertad como sea posible. Los muebles no deberían ser mucho, pero pueden ser brillantes e inusuales. El diseño de la sala debe ser diseño. Dependiendo de las preferencias de los propietarios, el loft se puede presentar lujoso, moderado y moderado.
Para aberturas de ventanas y el diseño de particiones, no use textiles. Persianas adecuadas, persianas enrollables, pantallas opacas. Al planificar la situación de un estudio tipo loft, se deben tener en cuenta las siguientes características de un diseño difícil:
Colores activos: gris, terracota, marrón;
Minimalismo al llenar el espacio con muebles;
Acabado de superficies con pintura y yeso;
La presencia de comunicaciones abiertas (vigas, tuberías de ventilación, parte del cableado);
Aplicación de al menos una pared de material con imitación de mampostería;
Para la decoración: graffiti, figuras de metal de cuerpo entero de un hombre, carteles.
Minimalismo
Este estilo tiene superficies lisas, líneas rectas, la angularidad de los objetos y tonos naturales apagados. Para la decoración de paredes, papel tapiz liso o con un patrón lineal, el yeso texturizado es adecuado.Como decoración, puede usar espejos, paneles de madera, mampostería, inserciones de plástico.
El piso en el interior minimalista del apartamento tipo estudio está liso, eliminando las transiciones de niveles múltiples. Para indicar las zonas, puede estar hecho de varios materiales, pero no más de 3 opciones para todo el apartamento. Algunas áreas están decoradas con alfombras lisas.
Para enfatizar la amplitud de la habitación, use todo tipo de lámparas. Creará acentos exitosos apliques de pared, lámparas de pie. Los muebles deben ser estrictos y concisos. Sistemas de almacenamiento ergonómicos, armarios empotrados, un sofá de configuración geométrica son adecuados.
Una barra en un interior minimalista debe cumplir su función principal: delimitar el espacio. No lo sobrecargue con cubiertos, decoración, flores frescas.
En estilo clásico
Al planificar un interior clásico, debe observar algunos conceptos básicos: elegancia, calidad de los materiales y su compatibilidad. Es mejor elegir un acabado costoso para un apartamento tipo estudio, con elementos de cuero, madera y piedra. Esta es la única forma de lograr la transformación del espacio, para traer notas de lujo y prosperidad.
A menudo, en interiores clásicos hay simetría. El apartamento estudio se puede decorar con columnas altas, sillones, decoración, ubicados uno frente al otro. El emparejamiento crea una sensación de orden y estabilidad. Los muebles tapizados deben ser macizos y sólidos. Las secciones de madera de barandas, reposabrazos, fachadas de gabinetes se pueden decorar con tallas.
Estilo escandinavo
Los interiores del norte de los apartamentos tipo estudio ofrecen una distribución especial de muebles. La cocina en el área de cocción no tiene una parte superior de los armarios. Se reemplazan con estantes abiertos y estanterías. En el centro ponen un pequeño sofá o un sofá sin respaldo. Cerca de dos sillones con patas delgadas. El armario se coloca en un área de recreación o pasillo.
La combinación de colores de las paredes y los muebles es principalmente blanca. Para sentir integridad, adhiérase a un tono seleccionado. Contra el fondo de blanco como la nieve, azul, verde, gris, beige se ve bien. Esta gama creará una sensación de amplitud y naturalidad en la habitación.
Las ventanas en el estudio escandinavo deben ser grandes y abiertas. No los cuelgue con tela gruesa, rollos, persianas insípidas. La mejor opción son las cortinas de algodón y lino. Las ventanas de doble acristalamiento deben dejarse de madera. Es suficiente simplemente pintarlos de blanco puro.
En el "estilo ecológico"
El diseño elegante y práctico se entrelaza con notas naturales para un estilo ecológico de moda. La elección del material para el diseño de la superficie se lleva a cabo según la zona. Para la cocina, los paneles de madera son adecuados, en la sala de estar y el dormitorio, los papeles pintados naturales se verán bien. El hall de entrada y el baño se pueden terminar con corcho. Como particiones móviles, se utilizan estructuras de bambú.
En un apartamento ecológico, solo deben estar presentes materiales naturales. Esta regla se aplica a la decoración, muebles, decoración. Este práctico diseño se adapta perfectamente a los tiempos modernos. Las imágenes con motivos naturales, la decoración de ramas naturales, arena, textiles verdes y marrones se verán bien.
Gama de colores
Para pequeños estudios de 30 m2. m es mejor elegir el diseño y la decoración en colores brillantes. El color principal debe ser uno en el interior. La regla 60/30/10 en este caso puede ser descuidada. Como acentos brillantes, se pueden usar muebles, textiles para ventanas y accesorios menores.
El color principal debe estar presente en el diseño de las paredes y en parte en los grupos de muebles. Es mejor dar preferencia a los tonos puros. Los colores complementarios pueden ser del grupo base. Dependiendo del estilo con su participación, es posible terminar superficies extensas, por ejemplo, la cabecera de la cama, toda la pared, divisiones de zonificación.
Para un apartamento bien iluminado, los tonos fríos son adecuados, para uno oscuro, por el contrario, los más cálidos. Elevar el techo ayudará a la recepción del estiramiento del color, desde oscuro en la parte inferior hasta claro en la parte superior. El ombre de moda se ve original en cualquier tono. La decoración de las paredes de las habitaciones pequeñas debe tener un brillo mínimo. Papel fotográfico, dibujo pequeño, obviamente, la textura convexa llamará la atención y reducirá el espacio.
Iluminación
Al organizar la iluminación en un apartamento tipo estudio, debe seguir algunas reglas. El diseño de iluminación adecuado es de gran importancia. También debe seleccionar cuidadosamente las fuentes de luz que sean adecuadas en estilo, forma y tamaño. Es posible colocar de manera óptima y lograr el resultado ideal si equilibra armoniosamente la transmisión principal y la luz de fondo, teniendo en cuenta la arquitectura de la luz.
El pasillo puede tener una o más fuentes de luz. Si esta área no está separada de la habitación principal por una pared o partición, puede usar una sola estructura suspendida ubicada en el centro de la habitación.
El área de descanso y descanso debe estar equipada con apliques separados o una mini lámpara para un pedestal. Se requiere iluminación sobre la mesa del comedor. Es mejor si es una sombra de cocina con la capacidad de cambiar la altura. Una lámpara de escritorio será suficiente para el sector laboral.
Muebles: qué elegir y cómo organizarlo correctamente
Incluso el apartamento más pequeño debe ser cómodo y acogedor. A menudo, las personas solteras viven en estudios o parejas jóvenes con niños pequeños. Dicha carcasa multifuncional simplemente no está diseñada para muebles masivos. Aquí no cabrá un auricular completo y una gran cantidad de electrodomésticos. Por lo tanto, es mejor llenar una habitación espaciosa con muebles separados que combinen bien entre sí.
En apartamentos pequeños, cada centímetro es valioso, por lo que los gabinetes y bastidores deben estar debajo del techo, el sofá y los sillones con cajones. Para facilitar el interior, debe elegir muebles de vidrio y metal.En la cocina, una encimera retráctil, una mesa plegable será adecuada. La mesa de comedor puede reemplazar la barra.
Características de un estudio con balcón.
La mayoría de los apartamentos tipo estudio tienen un área adicional en forma de balcón o logia. Con una reurbanización competente, estas áreas funcionales pueden usarse racionalmente. Si el acceso al balcón es desde el pasillo, entonces los 2-3 metros cuadrados adicionales. m convertirse en un área de recreación u oficina. Para hacer esto, es necesario aislarlo, eliminar la partición con una ventana abierta.
Si solo puede llegar al balcón desde la cocina, su espacio real es fácil de usar para decorar el comedor. El alféizar de la ventana servirá como barra, y en el territorio en sí es conveniente sentarse en una mecedora.
Ideas de diseño para un estudio para una familia con un niño
Los metros cuadrados limitados del apartamento tipo estudio no permiten equipar áreas completas para el alojamiento confortable de una familia con un niño. Pero con una combinación competente de secciones individuales, la selección correcta de muebles, puede lograr el resultado deseado. Hay muchas ideas interesantes para diseñar una guardería, teniendo en cuenta la edad del niño:
Para los recién nacidos, no hay necesidad de asignar mucho espacio. Todo el espacio estará ocupado por el corralito, el cambiador, la cuna. El armario del bebé quedará perfecto en la cómoda.
Un niño en edad preescolar ya necesitará un área de juego y una mesa de clase. Puede colocar juguetes, libros y otros materiales educativos en estantes y estanterías.
En primer lugar, el alumno debe organizar un lugar para las clases. Puede ser una pequeña mesa de esquina con estantes y armarios colgantes. También debe cuidar las pantallas de demarcación.
La zona para el adolescente debe estar equipada no solo con una mesa de computadora, sino también con elementos individuales, basados en las preferencias personales del niño. Puede ser un mini laboratorio, taller, estudio de música.
Conclusión
El estudio es una excelente solución para mejorar sus condiciones de vida.Quitar una pared y un par de particiones ayudará a aumentar el área total de la habitación. La vivienda pequeña es adecuada tanto para residencia permanente como temporal. El mantenimiento económico, las reparaciones económicas y la gran demanda en el mercado inmobiliario hacen que los locales remodelados de 1 dormitorio sean muy demandados y valiosos.
La ausencia de cualquier diseño es un tipo común de vivienda en los países europeos. El número mínimo de paredes y particiones le permite usar realmente toda el área de la habitación. Los apartamentos tipo estudio de 30 m2 están divididos condicionalmente en varias zonas. Básicamente es una cocina, salón-comedor, un lugar para dormir. Si el área lo permite, puede agregar varias áreas funcionales: una biblioteca, un área de trabajo, una oficina. Las soluciones de diseño moderno le permiten hacer que la transición entre las secciones del apartamento sea suave y concisa. La falta de puertas compensa la combinación de papel tapiz, altura del piso, muebles, pintura de paredes en contraste.
Contenido
Ventajas y desventajas de un estudio de 30 m2.
Incluso el estudio más pequeño parecerá espacioso en comparación con los diseños de varias habitaciones. En él puede moverse libremente, tener una visión general de todo el espacio desde un punto. La ausencia de particiones le permite tener un niño pequeño en el campo de visión, mascotas, para comunicarse libremente con los invitados y preparar refrescos simultáneamente. Las ventajas de los estudios de una habitación de hasta 30 m2 incluyen los siguientes factores:
Entre las deficiencias de la vivienda remodelada, se observan las molestias de una familia numerosa. Tal ajuste de habitación es adecuado para un máximo de una pareja joven con un niño pequeño. El espacio privado para recreación y pasatiempo será imposible de proporcionar. Además, en los estudios no hay aislamiento acústico interno, los olores de la cocina se extienden por toda la habitación, incluso con un buen extracto.
Proyecto de planificación y diseño.
El espacio de un pequeño estudio es de 30 metros cuadrados. m es fácil de expandir y hacer cómodo con la ayuda de técnicas de diseño simples.Cualquier empresa, especialmente en relación con modificaciones cardinales en la sala, debe basarse en un plan detallado previamente preparado. Puede colaborar con diseñadores profesionales o confiar en su gusto.
Si se planifica la reurbanización en un Jruschov de dos habitaciones, es necesario encontrar un plan de construcción y asegurarse de que no haya muros de carga. La creación del proyecto principal debe realizarse con la participación de los siguientes documentos:
El espacio de un estudio es de hasta 30 metros cuadrados. m debe ser brillante. Si hay un balcón acristalado, puede aislarse y crear un área de trabajo o agregar esta área al total. Antes de realizar un proyecto de diseño, debe elegir varias opciones para bocetos, grupos de muebles y paletas de colores.
Al redactar un proyecto, es necesario lograr una combinación precisa de todas las partes en un conjunto. En un área pequeña, se notará la menor desviación en tono o textura. Un plan abierto requiere una colocación competente de énfasis. El estudio no debe sobrecargarse con muebles y electrodomésticos, debe considerar correctamente el sistema de almacenamiento oculto del armario.
Zonificación y disposición del espacio.
Antes de comenzar un proyecto para la asignación de zonas, es necesario priorizar y determinar correctamente la función principal de la sala.Si la opción clásica es aceptable: la sala de estar y la cocina, puede separar las zonas con la barra o la mesa de comedor. Para resaltar el estudio, el dormitorio requerirá particiones. Pueden ser bastidores altos, columnas, varios niveles de piso, todo tipo de cortinas y pantallas.
Para expandir el espacio de la habitación utilizando ventanas amplias. Si no puede ampliar las ventanas, puede usar composiciones de espejo. Superficies reflectantes adornan el techo, puertas de armario. También hay muchas opciones para separar zonas con la ayuda de decoración, diseño de color, selección de estilo. Para cada zona, ciertas técnicas serán apropiadas.
Área de dormir
En un lugar de descanso y sueño, es necesario combinar dos conceptos importantes: funcionalidad y frescura del diseño. La decoración de la habitación en espacios abiertos debe ser lo más privada posible. Puede limitar su vista con la ayuda de una pantalla, particiones y muebles altos. El área del dormitorio debe ubicarse al nivel de la puerta principal o en la pared opuesta.
La parcela de tierra asignada para la organización de una litera debe ser completamente funcional. Asegúrese de tener una cama completa, mesita de noche, armario o al menos un estante para perchas. Esta área también necesitará planificar una iluminación tenue.
Si hay un nicho en el apartamento, este es el lugar que queda para el área de descanso después de la remodelación. Proporcionar esta opción es muy conveniente. Con una escasez de espacio, los lugares para dormir con un mecanismo plegable, como una cama convertible plegable, un sillón plegable, serán una excelente opción.
Lugar de trabajo
Un estudio o un lugar conveniente para trabajar no siempre encaja en el interior minimalista de un estudio. Pero, si la organización de tal lugar es una necesidad absoluta, el escritorio se puede hacer volviendo a colocar el alféizar de la habitación principal.Este enfoque resuelve varios problemas a la vez: hay un lugar separado para trabajar o estudiar cómodamente, la superficie está perfectamente iluminada por la luz del día, el espacio de la ventana se utiliza con beneficio.
Encaja con éxito en el lugar de trabajo interior, organizado en un pequeño nicho. Una pared libre le permitirá organizar muchos estantes para libros y documentos, las particiones laterales de concreto amortiguarán los sonidos extraños. Puede lograr una buena iluminación con lámparas adicionales o una lámpara de mesa.
Si no hay un lugar adecuado para el área de trabajo, puede estar bien enmascarado y formar parte de la composición interior. Hay algunos trucos de diseño para esto. Grandes pinturas, carteles, fotografías cerca de la mesa separan visualmente el lugar de trabajo. Para que la mesa sea menos visible, se debe elegir entre materiales ligeros e ingrávidos. Si está pintado del color de las paredes, se disolverá completamente en el espacio.
La necesidad de una gran encimera se implementará efectivamente en la versión de esquina. Esta disposición le permite utilizar mucho más espacio en la pared. Las mesas modelo con cajones y otras opciones de almacenamiento adicional nunca serán superfluas en un apartamento de tamaño modesto.
Área de cocina y comedor.
La opción más fácil para separar la cocina de la sala de estar es instalar una partición. Puede recurrir a tal solución solo si la recepción no crea un obstáculo innecesario. Las pantallas y particiones pueden ser funcionales o decorativas. Una gran idea es usar demarcaciones auténticas. La pared no completamente demolida convertirá un antiguo apartamento en un elegante estudio.
La disposición del comedor debe tener lugar en el sitio de la unión de la cocina y la sala de estar. La separación en ambos lados se puede hacer usando la barra, pisos de diferentes niveles. El esquema de color, el diseño de la pared, las superficies del techo no deben destacarse.Como acentos brillantes en la cocina, puede usar textiles, un delantal, las fachadas de un auricular.
Área de invitados y lugar de descanso
El principal atributo de la sala de estar es un sofá. Su tamaño, estilo, mano de obra dependen del área del apartamento y la capacidad de dejar espacio para ello. Es mejor considerar modelos plegables para obtener una cama extra si es necesario.
El área de invitados está equipada en el centro del apartamento por razones prácticas. Aquí reciben invitados, se relajan leyendo libros y viendo televisión, juegan con niños. Debe ser brillante y, si es posible, con un centro libre. Es suficiente poner una mesita baja. Es mejor colgar la televisión en la pared. El lado debe elegirse con una vista conveniente desde el sofá, desde la cocina y el comedor. Las cortinas de las ventanas pueden ser del mismo tipo o tener un estilo diferente. Todo depende del diseño interior básico.
Disposición del salón
El diseño del pasillo en un apartamento de 30 metros cuadrados debe abordarse primero en términos de practicidad. El polvo y la humedad traídos de la calle no deben salir del área del corredor. Este sitio no debe obstaculizar el traslado de hogares.
El pasillo puede ser cuadrado o rectangular. Para crear comodidad y tranquilidad es necesario separarlo de la sala de estar por una pared o tabique. Con las puertas abiertas, las áreas principales (recepción, comedor, descanso) no deben ser visibles. La división en zonas de un corredor de cualquier forma se puede hacer de las siguientes maneras:
Un baño
El diseño de los estudios modernos en casas antiguas puede verse obstaculizado por la mala ubicación del baño para esto. La separación o combinación de espacios no es posible si el inodoro con el baño se encuentra en el camino desde la puerta de entrada a la cocina. Puede superar la situación planificando correctamente el diseño del apartamento.
El baño separado debe combinarse. Esto ayudará a expandir el espacio del baño y otras áreas, lo que permitirá instalar una lavadora, secadora y todo tipo de estantes. Para ahorrar espacio, el baño estándar debe reemplazarse con una ducha. El espacio libre debajo del fregadero se puede convertir en un conveniente sistema de almacenamiento.
Selección de estilo
El diseño de un apartamento tipo estudio brinda total libertad creativa a los propietarios. La ausencia de paredes simplifica enormemente la reparación, la selección de materiales, facilita la elección del estilo principal. La creación de un interior ideal adecuado para un estilo de vida facilitado se lleva a cabo utilizando algunos trucos y trucos para maximizar las posibilidades de un área pequeña, para crear un ambiente acogedor y confortable.
Al elegir el mejor estilo, debe tener en cuenta algunos matices. En primer lugar, es necesario prever las características arquitectónicas de la habitación: el número y el tamaño de las ventanas, la altura de los techos y otros factores importantes. Luego debe identificar las funciones principales de la casa y el número de residentes. Se tiene en cuenta la necesidad de una gran cocina, un área de trabajo, un lugar separado para dormir y un juego.
Al estilo de "alta tecnología"
El estilo tecnológico es ideal para estudios en miniatura.En un apartamento de este tipo, todo debe pensarse hasta el más mínimo detalle, nada puede quedar a la vista sin la necesidad. El ambiente es simple, sin una decoración exuberante, accesorios adicionales, elementos textiles. Todos los artículos en la habitación tienen un propósito funcional.
El acabado de la superficie se realiza con materiales fríos. Principalmente es vidrio, metal, plástico, piedra natural. Los colores son neutros. Será interesante observar variaciones en blanco y negro, metálico, azul y blanco. Los elementos textiles se usan muy poco. Las cortinas se reemplazan mejor con persianas modernas o paneles de plástico. La alfombra no encaja bien en el interior de alta tecnología, pero si es necesario, debe ser simple y con una pequeña pila.
Al estilo de "Loft"
El estilo industrial está hecho para apartamentos tipo estudio. Su concepto principal es tanto espacio y libertad como sea posible. Los muebles no deberían ser mucho, pero pueden ser brillantes e inusuales. El diseño de la sala debe ser diseño. Dependiendo de las preferencias de los propietarios, el loft se puede presentar lujoso, moderado y moderado.
Para aberturas de ventanas y el diseño de particiones, no use textiles. Persianas adecuadas, persianas enrollables, pantallas opacas. Al planificar la situación de un estudio tipo loft, se deben tener en cuenta las siguientes características de un diseño difícil:
Minimalismo
Este estilo tiene superficies lisas, líneas rectas, la angularidad de los objetos y tonos naturales apagados. Para la decoración de paredes, papel tapiz liso o con un patrón lineal, el yeso texturizado es adecuado.Como decoración, puede usar espejos, paneles de madera, mampostería, inserciones de plástico.
El piso en el interior minimalista del apartamento tipo estudio está liso, eliminando las transiciones de niveles múltiples. Para indicar las zonas, puede estar hecho de varios materiales, pero no más de 3 opciones para todo el apartamento. Algunas áreas están decoradas con alfombras lisas.
Para enfatizar la amplitud de la habitación, use todo tipo de lámparas. Creará acentos exitosos apliques de pared, lámparas de pie. Los muebles deben ser estrictos y concisos. Sistemas de almacenamiento ergonómicos, armarios empotrados, un sofá de configuración geométrica son adecuados.
En estilo clásico
Al planificar un interior clásico, debe observar algunos conceptos básicos: elegancia, calidad de los materiales y su compatibilidad. Es mejor elegir un acabado costoso para un apartamento tipo estudio, con elementos de cuero, madera y piedra. Esta es la única forma de lograr la transformación del espacio, para traer notas de lujo y prosperidad.
A menudo, en interiores clásicos hay simetría. El apartamento estudio se puede decorar con columnas altas, sillones, decoración, ubicados uno frente al otro. El emparejamiento crea una sensación de orden y estabilidad. Los muebles tapizados deben ser macizos y sólidos. Las secciones de madera de barandas, reposabrazos, fachadas de gabinetes se pueden decorar con tallas.
Estilo escandinavo
Los interiores del norte de los apartamentos tipo estudio ofrecen una distribución especial de muebles. La cocina en el área de cocción no tiene una parte superior de los armarios. Se reemplazan con estantes abiertos y estanterías. En el centro ponen un pequeño sofá o un sofá sin respaldo. Cerca de dos sillones con patas delgadas. El armario se coloca en un área de recreación o pasillo.
La combinación de colores de las paredes y los muebles es principalmente blanca. Para sentir integridad, adhiérase a un tono seleccionado. Contra el fondo de blanco como la nieve, azul, verde, gris, beige se ve bien. Esta gama creará una sensación de amplitud y naturalidad en la habitación.
Las ventanas en el estudio escandinavo deben ser grandes y abiertas. No los cuelgue con tela gruesa, rollos, persianas insípidas. La mejor opción son las cortinas de algodón y lino. Las ventanas de doble acristalamiento deben dejarse de madera. Es suficiente simplemente pintarlos de blanco puro.
En el "estilo ecológico"
El diseño elegante y práctico se entrelaza con notas naturales para un estilo ecológico de moda. La elección del material para el diseño de la superficie se lleva a cabo según la zona. Para la cocina, los paneles de madera son adecuados, en la sala de estar y el dormitorio, los papeles pintados naturales se verán bien. El hall de entrada y el baño se pueden terminar con corcho. Como particiones móviles, se utilizan estructuras de bambú.
En un apartamento ecológico, solo deben estar presentes materiales naturales. Esta regla se aplica a la decoración, muebles, decoración. Este práctico diseño se adapta perfectamente a los tiempos modernos. Las imágenes con motivos naturales, la decoración de ramas naturales, arena, textiles verdes y marrones se verán bien.
Gama de colores
Para pequeños estudios de 30 m2. m es mejor elegir el diseño y la decoración en colores brillantes. El color principal debe ser uno en el interior. La regla 60/30/10 en este caso puede ser descuidada. Como acentos brillantes, se pueden usar muebles, textiles para ventanas y accesorios menores.
El color principal debe estar presente en el diseño de las paredes y en parte en los grupos de muebles. Es mejor dar preferencia a los tonos puros. Los colores complementarios pueden ser del grupo base. Dependiendo del estilo con su participación, es posible terminar superficies extensas, por ejemplo, la cabecera de la cama, toda la pared, divisiones de zonificación.
Para un apartamento bien iluminado, los tonos fríos son adecuados, para uno oscuro, por el contrario, los más cálidos. Elevar el techo ayudará a la recepción del estiramiento del color, desde oscuro en la parte inferior hasta claro en la parte superior. El ombre de moda se ve original en cualquier tono. La decoración de las paredes de las habitaciones pequeñas debe tener un brillo mínimo. Papel fotográfico, dibujo pequeño, obviamente, la textura convexa llamará la atención y reducirá el espacio.
Iluminación
Al organizar la iluminación en un apartamento tipo estudio, debe seguir algunas reglas. El diseño de iluminación adecuado es de gran importancia. También debe seleccionar cuidadosamente las fuentes de luz que sean adecuadas en estilo, forma y tamaño. Es posible colocar de manera óptima y lograr el resultado ideal si equilibra armoniosamente la transmisión principal y la luz de fondo, teniendo en cuenta la arquitectura de la luz.
El pasillo puede tener una o más fuentes de luz. Si esta área no está separada de la habitación principal por una pared o partición, puede usar una sola estructura suspendida ubicada en el centro de la habitación.
El área de descanso y descanso debe estar equipada con apliques separados o una mini lámpara para un pedestal. Se requiere iluminación sobre la mesa del comedor. Es mejor si es una sombra de cocina con la capacidad de cambiar la altura. Una lámpara de escritorio será suficiente para el sector laboral.
Muebles: qué elegir y cómo organizarlo correctamente
Incluso el apartamento más pequeño debe ser cómodo y acogedor. A menudo, las personas solteras viven en estudios o parejas jóvenes con niños pequeños. Dicha carcasa multifuncional simplemente no está diseñada para muebles masivos. Aquí no cabrá un auricular completo y una gran cantidad de electrodomésticos. Por lo tanto, es mejor llenar una habitación espaciosa con muebles separados que combinen bien entre sí.
En apartamentos pequeños, cada centímetro es valioso, por lo que los gabinetes y bastidores deben estar debajo del techo, el sofá y los sillones con cajones. Para facilitar el interior, debe elegir muebles de vidrio y metal.En la cocina, una encimera retráctil, una mesa plegable será adecuada. La mesa de comedor puede reemplazar la barra.
Características de un estudio con balcón.
La mayoría de los apartamentos tipo estudio tienen un área adicional en forma de balcón o logia. Con una reurbanización competente, estas áreas funcionales pueden usarse racionalmente. Si el acceso al balcón es desde el pasillo, entonces los 2-3 metros cuadrados adicionales. m convertirse en un área de recreación u oficina. Para hacer esto, es necesario aislarlo, eliminar la partición con una ventana abierta.
Si solo puede llegar al balcón desde la cocina, su espacio real es fácil de usar para decorar el comedor. El alféizar de la ventana servirá como barra, y en el territorio en sí es conveniente sentarse en una mecedora.
Ideas de diseño para un estudio para una familia con un niño
Los metros cuadrados limitados del apartamento tipo estudio no permiten equipar áreas completas para el alojamiento confortable de una familia con un niño. Pero con una combinación competente de secciones individuales, la selección correcta de muebles, puede lograr el resultado deseado. Hay muchas ideas interesantes para diseñar una guardería, teniendo en cuenta la edad del niño:
Conclusión
El estudio es una excelente solución para mejorar sus condiciones de vida.Quitar una pared y un par de particiones ayudará a aumentar el área total de la habitación. La vivienda pequeña es adecuada tanto para residencia permanente como temporal. El mantenimiento económico, las reparaciones económicas y la gran demanda en el mercado inmobiliario hacen que los locales remodelados de 1 dormitorio sean muy demandados y valiosos.