El alto costo de los apartamentos en los nuevos edificios urbanos modernos llevó a la popularidad del formato "estudio". Este pequeño espacio habitable se posiciona como una opción de presupuesto para familias sin hijos o personas solteras. Sin embargo, las posibilidades del diseño del diseñador pueden convertir un área pequeña en un hogar confortable. El proyecto de diseño original del estudio se valora tanto como la reparación exclusiva de un apartamento ordinario. Considere el diseño de los apartamentos tipo estudio con más detalle.
La etimología del nombre se origina en América del Norte.El comienzo del siglo XX estuvo marcado por una gran afluencia de inmigrantes en los Estados Unidos. Hubo una grave escasez de viviendas para las personas pobres. Los estadounidenses recién desarrollados querían disfrutar de todos los beneficios de la civilización por una tarifa moderada. Por lo tanto, se encontró un compromiso en forma de apartamentos tipo estudio compactos. El área pequeña incluía todo lo necesario para una vida normal: una habitación, un espacio de cocina, un baño con inodoro. Las familias jóvenes de buena gana eligieron esta opción de presupuesto.
Atencion El concepto de particiones entre áreas funcionales estaba ausente. Las puertas estaban equipadas solo con la entrada a la habitación y al baño.
Con el tiempo, este tipo de vivienda ha dejado de considerarse presupuestario. Los desarrollos de diseño permitieron retirar apartamentos tipo estudio de un segmento no presentable.
La idea de combinar la cocina y el espacio habitable en un todo no ha encontrado respuesta en la Federación Rusa durante mucho tiempo. La Unión Soviética rechazó las tendencias de la moda capitalista, construyendo Jruschov inconveniente. La solución arquitectónica de estudio comenzó a disfrutar de popularidad solo a finales de los 90. Al mismo tiempo, la reurbanización a menudo debe hacerse de forma independiente: para limpiar las particiones y paredes interiores. Esto se debe en gran parte a la diferencia en las opiniones de diseñadores y arquitectos. El estándar oficial para tal diseño todavía falta en la Federación Rusa.
Hay opciones para organizar estudios de apartamentos de una habitación y de varias habitaciones. Por lo tanto, las categorías de precios pueden variar significativamente. La ubicación del alojamiento también es importante. Una gran área en el sector de élite pertenecerá al prestigioso segmento. La zonificación original y la popularidad del estilo loft determinan el alto costo del diseño del estudio.
Beneficios de planificar sin particiones
Contrariamente a la creencia popular, la eliminación de particiones o paredes se realiza no solo para salvar el área utilizable. Se pueden combinar áreas funcionales para que su hogar sea elegante.El diseño de moda permite a una persona con buena imaginación demostrar su gusto sofisticado y causar una impresión agradable en los invitados. Los estudios están equipados por diseñadores talentosos. Sus proyectos de diseño son populares en el entorno arquitectónico, porque se distinguen por su individualidad. Muchos proyectos se hacen por encargo. La reurbanización de la vivienda implica amplias oportunidades para la encarnación de la fantasía. En la sala de estudio, los experimentos pueden crear cualquier estilo.
Si baja al suelo y considera los beneficios del hogar de los apartamentos tipo estudio, serán los siguientes:
La falta de cuadratura útil se compensa con la eliminación de particiones y paredes interiores. El espacio abierto brinda a los propietarios la oportunidad de establecer de manera más efectiva los atributos de un conjunto de muebles;
El espacio ilimitado es perfecto para personas solteras o una familia sin hijos. Un soltero puede organizar grandes fiestas para conocer gente del sexo opuesto;
La falta de muchas habitaciones le permite equipar el interior de todo el apartamento en un estilo específico. El eclecticismo arquitectónico también está permitido: cuando varios estilos están en armonía, dividiendo el espacio en zonas;
La libertad de movimiento se complementa con menos pasos hacia los elementos deseados. Desde la silla hasta el refrigerador puede llegar rápidamente, sin la necesidad de abrir / cerrar puertas interiores;
La ventaja colosal del estudio es la acústica perfecta. Es un placer para los amantes de la música usar al publicar su equipo de audio favorito. Lo mismo puede decirse de los cines en casa.
Las personas creativas a menudo se inclinan por la adquisición de apartamentos tipo estudio. La posibilidad de reurbanización por sí mismos los inspira a crear un taller en el espacio habitable.
Desventajas de diseño
Como cualquier otro proyecto de diseño, la versión de estudio de la disposición del apartamento tiene sus inconvenientes.Antes de comenzar la revisión y la reurbanización del apartamento, debe sopesar todo cuidadosamente. Los opositores a la demolición de particiones invocan las siguientes razones:
No todas las casas sugieren la posibilidad de reurbanización. Se recomienda encarecidamente que no se cambie la estructura de hormigón armado de algunos edificios de paneles, ya que las paredes interiores pueden soportar cargas. Por lo tanto, es importante estudiar el plan de construcción antes de tomar acciones destructivas contra él.
Pero incluso si el plan de construcción le permite derribar las paredes internas, el propietario del apartamento aún necesitará el permiso de la oficina de vivienda local. En este caso, rara vez aceptan cambios de capital en la casa, ya que nadie quiere asumir la responsabilidad de la fortaleza de la estructura del edificio. Esto es especialmente cierto en el caso de las casas antiguas que están en mal estado. Resolver el problema en un nuevo edificio es un poco más fácil. Las casas monolíticas no necesitan permisos en absoluto.
Igualmente importante es el tema económico. Las reparaciones costosas incluyen no solo el desmantelamiento de las estructuras internas, sino también el reemplazo completo del cableado. Se requerirá un nuevo arreglo de iluminación. Los maestros tendrán que adaptarse a las comunicaciones de ingeniería existentes. Por lo tanto, el tema de las finanzas a menudo viene primero.
Atencion El costo de la remodelación de la vivienda en el espacio del estudio a menudo excede las expectativas de los propietarios. A veces es más fácil comprar un apartamento de dos habitaciones que tratar de ahorrar espacio utilizable.
El estudio es ideal para una pareja sin hijos o una persona soltera. Sin embargo, no está destinado a aquellos hombres que quieren tener un bebé. Porque el espacio abierto no implica la presencia de una habitación infantil. Y la presencia en el mismo lugar de varias personas de diferente sexo y edad está cargada de irritación. La mayoría de nosotros necesitamos soledad periódica. Y en una habitación con un diseño de estudio, esto es casi imposible.
La reurbanización implica una actitud seria hacia el tema de la ventilación de aire. La falta de un balcón te obliga a abandonar los cigarrillos, y combinar la cocina con la habitación te hace pensar en una potente campana extractora. La convección de aire juega un papel importante para el baño, ya que todos los aromas fluirán directamente a la habitación. También se requerirá un nuevo esquema de calefacción, ya que los borradores son visitantes frecuentes al aire libre. La mejor opción es un piso cálido con buen aislamiento térmico de la abertura de la ventana.
Tendremos que abandonar a los grandes representantes del mundo animal. Simplemente no hay ningún lugar para que una mascota se esconda en caso de que lleguen los invitados. Sin mencionar el hecho de que necesita a priori su propio ángulo.
Apartamento Estudio Rectangular
Los edificios nuevos a menudo pecan porque ofrecen una forma rectangular incómoda para organizar apartamentos tipo estudio. El espacio estrecho y estrecho se distingue por su larga longitud. Por lo tanto, un diseño interior competente es esencial para proporcionar comodidad a los residentes. La cuestión clave es la insolación de la habitación, una cantidad suficiente de luz. Los diseñadores experimentados saben cómo manejar esto. Utilizan las características de un estudio rectangular de la siguiente manera:
Las zonas funcionales se colocan lo más cerca posible de las paredes;
El salón está ubicado cerca de la ventana;
La unidad de cocina ocupa una pared;
El baño está divorciado al máximo del área de descanso. Está equipado cerca de la puerta principal;
Las superficies reflectantes se utilizan para expandir visualmente el espacio. Puede ser tanto elementos de un juego de cocina como varias particiones de vidrio resistente a los golpes. En el área del pasillo, los espejos montados uno frente al otro son bienvenidos.
Dado que solo hay una ventana abierta en tales habitaciones, la iluminación de la mayoría de las áreas funcionales deja mucho que desear. Por lo tanto, la organización de una buena iluminación debe complementarse con la selección correcta de los materiales de acabado.La opción clásica es el uso de blanco en todos sus tonos. El predominio de los tonos claros también crea la ilusión de más espacio. Este efecto se puede mejorar utilizando un sistema de iluminación combinado. La intensidad de su luz debería aumentar con la distancia desde una ventana con luz natural.
En cuanto al estilo del espacio alargado, no hay restricciones estrictas. Vale la pena abandonar el clásico pomposo en el estilo rococó, ya que involucra muchos elementos interiores elaborados. Se debe dar preferencia a los estilos minimalistas: alta tecnología, Provenza, país escandinavo. El conjunto de muebles debe caracterizarse por su movilidad y funcionalidad para ocupar el menor espacio posible. Es necesario abandonar todo lo que ensucia el área de la vivienda. Las cortinas pesadas también son inapropiadas en un espacio rectangular estrecho. La cantidad de decoración debe mantenerse al mínimo.
Consejo Antes de ordenar un proyecto de diseño en una oficina de arquitectura, vale la pena mirar las opciones existentes en Internet. Esto le permitirá determinar de antemano su propia visión del futuro interior.
Diseño de estudio con una ventana.
Una ventana que se abre en la vivienda del estudio impone una cierta responsabilidad al diseñador. Su proyecto debe organizar todos los elementos de decoración para que el interior no parezca oscuro y abarrotado. Dado que incluso la ausencia de particiones interiores no evita una sensación de hacinamiento con falta de luz. Un conjunto de muebles funcionales debe colocarse de la manera más compacta.
El proyecto de diseño de apartamentos con apertura de una ventana a menudo contiene una indicación del uso abundante de espejos. Las superficies reflectantes cubren varios planos. Se aprecia la textura brillante del conjunto de muebles, varios elementos de los utensilios de cocina. El espejo en sí está ubicado frente a la fuente de luz. Esto ilumina mucho el espacio.
La zonificación de los apartamentos tipo estudio con una ventana se realiza de acuerdo con el principio de importancia. Las áreas más significativas se encuentran más cerca de la fuente de luz. Esto suele ser una sala de estar o estudio. Para ahorrar espacio utilizable y recursos financieros, se utiliza un alféizar ancho en lugar de un escritorio. El área de invitados está separada del espacio de la cocina por una barra de bar o una mesa oblonga. La isla de cocina se usa solo con un número suficiente de metros cuadrados.
Atencion El apartamento de tamaño pequeño implica una combinación de áreas para huéspedes y para dormir.
Como no hay lugar para el pasillo en el apartamento tipo estudio, sus funciones las realiza un armario universal. Tanto la ropa como los zapatos están ocultos en su dispositivo. Este gigante se encuentra justo en la entrada.
Una variedad de proyectos de diseño sugiere la posibilidad de organizar el área de descanso si la abertura de la ventana no se encuentra en el centro de la pared. En este caso, la cama se coloca en esa esquina, que está más oscurecida. Está separado del resto del espacio por textiles ligeros de tipo opaco. Un alféizar duradero de la ventana también se puede utilizar como área de relajación.
Decoración de estudio con dos ventanas.
Dos ventanas permiten que el diseñador deambule. Con su ayuda, la zonificación se lleva a cabo:
Cerca de la primera ventana está el área de la cocina;
Cerca del segundo - invitado;
El área de dormir va después del comedor.
Tal versión funcional del interior es posible con dos ventanas en una pared ancha. Para distinguir entre el área de invitados y el área de trabajo, están separadas por pequeñas particiones de vidrio. Estas particiones se utilizan como estanterías para almacenar accesorios decorativos o libros.
Sin embargo, las particiones no son la única decoración. Algunos diseñadores lo hacen sin ellos. Utilizan dos fuentes de luz natural para la disposición competente de un conjunto de muebles. Por el contrario, una cocina está agrupada en una ventana, y en el otro lado, muebles para el área de dormir.El área de entrada permanece en la entrada.
A menudo puede encontrar la ubicación del televisor entre las ventanas y el área para dormir opuesta. Esto le permite crear un cine en casa con un cielo estrellado. Las áreas funcionales se encuentran a los lados, cerca de las paredes.
Zonificación
La zonificación de un estudio debe comenzar con el baño. Un plan abierto implica que las comunicaciones de ingeniería ya se han llevado a cabo en el baño y el inodoro. Por lo tanto, están cercados del resto de la habitación. Después de eso, comienzan a equipar el interior del estudio.
Dado que la planificación abierta implica la ubicación de las zonas a su propia discreción, se debe seguir el sentido común. Por ejemplo, no debe colocar un área para dormir cerca del baño. Lo mismo puede decirse sobre el área de trabajo. Es mejor proporcionar un área de cocina en este lugar. Y aleje el lugar para dormir del inodoro y la entrada. También se recomienda cerrarlo con el auricular o una partición densa para crear la ilusión de otra habitación.
El comedor está hecho al final. El diseño original puede exprimirlo en cualquier lugar. Sin embargo, un sitio cerca de la pared que está enfrente de las ventanas se considera adecuado.
Además de las particiones estándar, puede usar métodos de zonificación más interesantes. Estos incluyen acuarios de vidrio, diferencias en la altura del piso o la superficie del techo, lámparas locales y elementos decorativos. Con el nivel adecuado de imaginación, es posible proporcionar incluso un área de juego para el niño.
Estudio de diseño de 14 a 25 metros cuadrados. m
Un área muy pequeña contenía una sala de estar, mini vestidor y cocina. La zona de entrada está separada del resto por una cortina y un armario. Un rincón de la sala también cubre el refrigerador. La mesa de comedor en la sala realiza varias funciones a la vez: se puede plegar y convertir en un sofá para los invitados. Los sillones en ambos lados son huecos por dentro para su almacenamiento.El sofá cama también está equipado con un estante extraíble. Todas las partes son de madera. Se combinan perfectamente con el acabado acromático del estudio. Las manchas de color turquesa y limón en el diseño animan la decoración. Y la superficie del espejo del gabinete expande visualmente el pequeño espacio del apartamento.
Estudio de diseño de 25 a 30 metros cuadrados. m
Un diseño rectangular con una ventana está lleno de ciertas dificultades. Sin embargo, el diseñador encontró una solución adecuada. Un elemento clave del proyecto de diseño fue una partición translúcida entre las áreas de invitados y dormitorios. La insolación suavizó la decoración acromática del interior. En la sala de estar había un lugar para un sofá, un tocador y un panel de televisión. En la zona de noche hay una cama grande y una otomana. El área de la cocina estaba separada por una barra de bar compacta. El baño está justo al lado de la entrada, y el armario está ubicado a lo largo de la pared del pasillo y la cocina. Los colores pastel enmascaran los electrodomésticos incorporados.
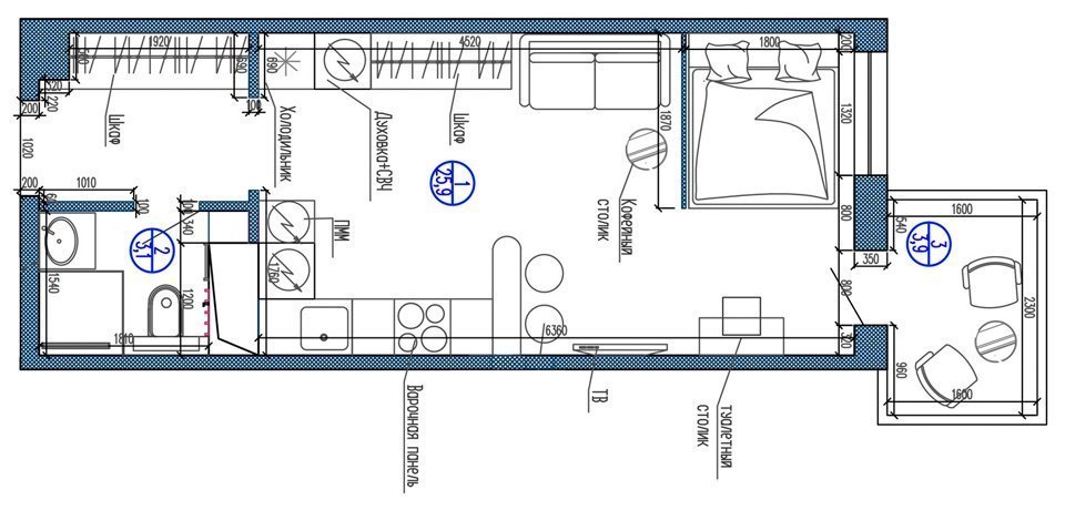
Estudio de diseño de 30 a 35 metros cuadrados. m
Como la abertura de la ventana de este apartamento no era grande, los diseñadores enmascararon cuidadosamente sus persianas. Y la iluminación se incrementó mediante iluminación local bajo el techo. Para expandir el espacio visible, también se utilizaron superficies brillantes y espejadas. En cuanto al diseño, se encontraron inmediatamente varias soluciones exitosas: la repisa de la pared se convirtió en el área de trabajo y el conjunto de muebles se convirtió en una partición multifuncional.
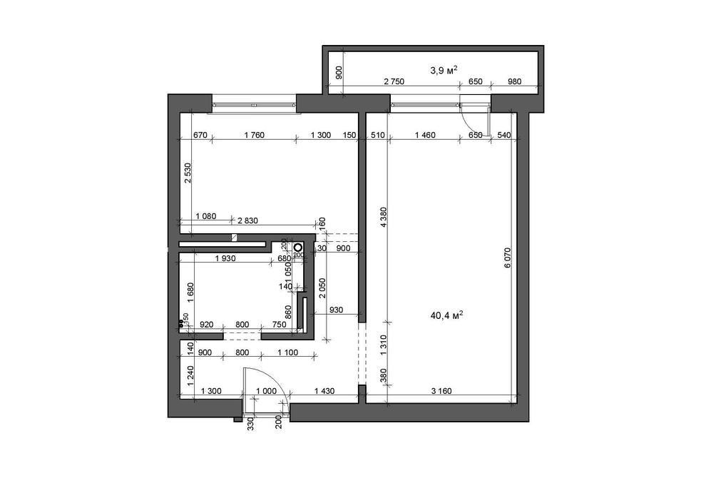
Estudio de diseño de 35 a 42 metros cuadrados. m
La zonificación de este estudio se realizó utilizando un esquema de color. El color negro contrastante en el interior se combina armoniosamente con tonos claros de madera y gres porcelánico. El piso está inusualmente duplicado en la pared, y en lugar de una silla, se usa una otomana suave. Para separar el área privada, se utilizó una colorida cortina negra. La organización competente de la iluminación en forma de lámparas con estilo enfatiza favorablemente el esquema de color de la decoración.Una cocina americana compacta está separada del área de invitados por una barra de bar tradicional. Los gabinetes están ubicados solo en un lado.
Conclusión
La adquisición de un apartamento tipo estudio es adecuada para una persona creativa que no está agobiada por la vida familiar. Un plan abierto contribuye a la creación de un interior original, lo que le permite equipar apartamentos representativos en un espacio reducido. La ausencia de paredes internas también ahorra metros útiles de espacio habitable. Solicitar un proyecto de diseño individual a los profesionales puede convertir una habitación compacta en una verdadera obra maestra de planificación arquitectónica y diseño artístico.
El alto costo de los apartamentos en los nuevos edificios urbanos modernos llevó a la popularidad del formato "estudio". Este pequeño espacio habitable se posiciona como una opción de presupuesto para familias sin hijos o personas solteras. Sin embargo, las posibilidades del diseño del diseñador pueden convertir un área pequeña en un hogar confortable. El proyecto de diseño original del estudio se valora tanto como la reparación exclusiva de un apartamento ordinario. Considere el diseño de los apartamentos tipo estudio con más detalle.
Contenido
Origen
La etimología del nombre se origina en América del Norte.El comienzo del siglo XX estuvo marcado por una gran afluencia de inmigrantes en los Estados Unidos. Hubo una grave escasez de viviendas para las personas pobres. Los estadounidenses recién desarrollados querían disfrutar de todos los beneficios de la civilización por una tarifa moderada. Por lo tanto, se encontró un compromiso en forma de apartamentos tipo estudio compactos. El área pequeña incluía todo lo necesario para una vida normal: una habitación, un espacio de cocina, un baño con inodoro. Las familias jóvenes de buena gana eligieron esta opción de presupuesto.
Con el tiempo, este tipo de vivienda ha dejado de considerarse presupuestario. Los desarrollos de diseño permitieron retirar apartamentos tipo estudio de un segmento no presentable.
La idea de combinar la cocina y el espacio habitable en un todo no ha encontrado respuesta en la Federación Rusa durante mucho tiempo. La Unión Soviética rechazó las tendencias de la moda capitalista, construyendo Jruschov inconveniente. La solución arquitectónica de estudio comenzó a disfrutar de popularidad solo a finales de los 90. Al mismo tiempo, la reurbanización a menudo debe hacerse de forma independiente: para limpiar las particiones y paredes interiores. Esto se debe en gran parte a la diferencia en las opiniones de diseñadores y arquitectos. El estándar oficial para tal diseño todavía falta en la Federación Rusa.
Hay opciones para organizar estudios de apartamentos de una habitación y de varias habitaciones. Por lo tanto, las categorías de precios pueden variar significativamente. La ubicación del alojamiento también es importante. Una gran área en el sector de élite pertenecerá al prestigioso segmento. La zonificación original y la popularidad del estilo loft determinan el alto costo del diseño del estudio.
Beneficios de planificar sin particiones
Contrariamente a la creencia popular, la eliminación de particiones o paredes se realiza no solo para salvar el área utilizable. Se pueden combinar áreas funcionales para que su hogar sea elegante.El diseño de moda permite a una persona con buena imaginación demostrar su gusto sofisticado y causar una impresión agradable en los invitados. Los estudios están equipados por diseñadores talentosos. Sus proyectos de diseño son populares en el entorno arquitectónico, porque se distinguen por su individualidad. Muchos proyectos se hacen por encargo. La reurbanización de la vivienda implica amplias oportunidades para la encarnación de la fantasía. En la sala de estudio, los experimentos pueden crear cualquier estilo.
Si baja al suelo y considera los beneficios del hogar de los apartamentos tipo estudio, serán los siguientes:
Las personas creativas a menudo se inclinan por la adquisición de apartamentos tipo estudio. La posibilidad de reurbanización por sí mismos los inspira a crear un taller en el espacio habitable.
Desventajas de diseño
Como cualquier otro proyecto de diseño, la versión de estudio de la disposición del apartamento tiene sus inconvenientes.Antes de comenzar la revisión y la reurbanización del apartamento, debe sopesar todo cuidadosamente. Los opositores a la demolición de particiones invocan las siguientes razones:
Apartamento Estudio Rectangular
Los edificios nuevos a menudo pecan porque ofrecen una forma rectangular incómoda para organizar apartamentos tipo estudio. El espacio estrecho y estrecho se distingue por su larga longitud. Por lo tanto, un diseño interior competente es esencial para proporcionar comodidad a los residentes. La cuestión clave es la insolación de la habitación, una cantidad suficiente de luz. Los diseñadores experimentados saben cómo manejar esto. Utilizan las características de un estudio rectangular de la siguiente manera:
Dado que solo hay una ventana abierta en tales habitaciones, la iluminación de la mayoría de las áreas funcionales deja mucho que desear. Por lo tanto, la organización de una buena iluminación debe complementarse con la selección correcta de los materiales de acabado.La opción clásica es el uso de blanco en todos sus tonos. El predominio de los tonos claros también crea la ilusión de más espacio. Este efecto se puede mejorar utilizando un sistema de iluminación combinado. La intensidad de su luz debería aumentar con la distancia desde una ventana con luz natural.
En cuanto al estilo del espacio alargado, no hay restricciones estrictas. Vale la pena abandonar el clásico pomposo en el estilo rococó, ya que involucra muchos elementos interiores elaborados. Se debe dar preferencia a los estilos minimalistas: alta tecnología, Provenza, país escandinavo. El conjunto de muebles debe caracterizarse por su movilidad y funcionalidad para ocupar el menor espacio posible. Es necesario abandonar todo lo que ensucia el área de la vivienda. Las cortinas pesadas también son inapropiadas en un espacio rectangular estrecho. La cantidad de decoración debe mantenerse al mínimo.
Diseño de estudio con una ventana.
Una ventana que se abre en la vivienda del estudio impone una cierta responsabilidad al diseñador. Su proyecto debe organizar todos los elementos de decoración para que el interior no parezca oscuro y abarrotado. Dado que incluso la ausencia de particiones interiores no evita una sensación de hacinamiento con falta de luz. Un conjunto de muebles funcionales debe colocarse de la manera más compacta.
El proyecto de diseño de apartamentos con apertura de una ventana a menudo contiene una indicación del uso abundante de espejos. Las superficies reflectantes cubren varios planos. Se aprecia la textura brillante del conjunto de muebles, varios elementos de los utensilios de cocina. El espejo en sí está ubicado frente a la fuente de luz. Esto ilumina mucho el espacio.
La zonificación de los apartamentos tipo estudio con una ventana se realiza de acuerdo con el principio de importancia. Las áreas más significativas se encuentran más cerca de la fuente de luz. Esto suele ser una sala de estar o estudio. Para ahorrar espacio utilizable y recursos financieros, se utiliza un alféizar ancho en lugar de un escritorio. El área de invitados está separada del espacio de la cocina por una barra de bar o una mesa oblonga. La isla de cocina se usa solo con un número suficiente de metros cuadrados.
Como no hay lugar para el pasillo en el apartamento tipo estudio, sus funciones las realiza un armario universal. Tanto la ropa como los zapatos están ocultos en su dispositivo. Este gigante se encuentra justo en la entrada.
Una variedad de proyectos de diseño sugiere la posibilidad de organizar el área de descanso si la abertura de la ventana no se encuentra en el centro de la pared. En este caso, la cama se coloca en esa esquina, que está más oscurecida. Está separado del resto del espacio por textiles ligeros de tipo opaco. Un alféizar duradero de la ventana también se puede utilizar como área de relajación.
Decoración de estudio con dos ventanas.
Dos ventanas permiten que el diseñador deambule. Con su ayuda, la zonificación se lleva a cabo:
Tal versión funcional del interior es posible con dos ventanas en una pared ancha. Para distinguir entre el área de invitados y el área de trabajo, están separadas por pequeñas particiones de vidrio. Estas particiones se utilizan como estanterías para almacenar accesorios decorativos o libros.
Sin embargo, las particiones no son la única decoración. Algunos diseñadores lo hacen sin ellos. Utilizan dos fuentes de luz natural para la disposición competente de un conjunto de muebles. Por el contrario, una cocina está agrupada en una ventana, y en el otro lado, muebles para el área de dormir.El área de entrada permanece en la entrada.
A menudo puede encontrar la ubicación del televisor entre las ventanas y el área para dormir opuesta. Esto le permite crear un cine en casa con un cielo estrellado. Las áreas funcionales se encuentran a los lados, cerca de las paredes.
Zonificación
La zonificación de un estudio debe comenzar con el baño. Un plan abierto implica que las comunicaciones de ingeniería ya se han llevado a cabo en el baño y el inodoro. Por lo tanto, están cercados del resto de la habitación. Después de eso, comienzan a equipar el interior del estudio.
Dado que la planificación abierta implica la ubicación de las zonas a su propia discreción, se debe seguir el sentido común. Por ejemplo, no debe colocar un área para dormir cerca del baño. Lo mismo puede decirse sobre el área de trabajo. Es mejor proporcionar un área de cocina en este lugar. Y aleje el lugar para dormir del inodoro y la entrada. También se recomienda cerrarlo con el auricular o una partición densa para crear la ilusión de otra habitación.
El comedor está hecho al final. El diseño original puede exprimirlo en cualquier lugar. Sin embargo, un sitio cerca de la pared que está enfrente de las ventanas se considera adecuado.
Además de las particiones estándar, puede usar métodos de zonificación más interesantes. Estos incluyen acuarios de vidrio, diferencias en la altura del piso o la superficie del techo, lámparas locales y elementos decorativos. Con el nivel adecuado de imaginación, es posible proporcionar incluso un área de juego para el niño.
Estudio de diseño de 14 a 25 metros cuadrados. m
Un área muy pequeña contenía una sala de estar, mini vestidor y cocina. La zona de entrada está separada del resto por una cortina y un armario. Un rincón de la sala también cubre el refrigerador. La mesa de comedor en la sala realiza varias funciones a la vez: se puede plegar y convertir en un sofá para los invitados. Los sillones en ambos lados son huecos por dentro para su almacenamiento.El sofá cama también está equipado con un estante extraíble. Todas las partes son de madera. Se combinan perfectamente con el acabado acromático del estudio. Las manchas de color turquesa y limón en el diseño animan la decoración. Y la superficie del espejo del gabinete expande visualmente el pequeño espacio del apartamento.
Estudio de diseño de 25 a 30 metros cuadrados. m
Un diseño rectangular con una ventana está lleno de ciertas dificultades. Sin embargo, el diseñador encontró una solución adecuada. Un elemento clave del proyecto de diseño fue una partición translúcida entre las áreas de invitados y dormitorios. La insolación suavizó la decoración acromática del interior. En la sala de estar había un lugar para un sofá, un tocador y un panel de televisión. En la zona de noche hay una cama grande y una otomana. El área de la cocina estaba separada por una barra de bar compacta. El baño está justo al lado de la entrada, y el armario está ubicado a lo largo de la pared del pasillo y la cocina. Los colores pastel enmascaran los electrodomésticos incorporados.
Estudio de diseño de 30 a 35 metros cuadrados. m
Como la abertura de la ventana de este apartamento no era grande, los diseñadores enmascararon cuidadosamente sus persianas. Y la iluminación se incrementó mediante iluminación local bajo el techo. Para expandir el espacio visible, también se utilizaron superficies brillantes y espejadas. En cuanto al diseño, se encontraron inmediatamente varias soluciones exitosas: la repisa de la pared se convirtió en el área de trabajo y el conjunto de muebles se convirtió en una partición multifuncional.
Estudio de diseño de 35 a 42 metros cuadrados. m
La zonificación de este estudio se realizó utilizando un esquema de color. El color negro contrastante en el interior se combina armoniosamente con tonos claros de madera y gres porcelánico. El piso está inusualmente duplicado en la pared, y en lugar de una silla, se usa una otomana suave. Para separar el área privada, se utilizó una colorida cortina negra. La organización competente de la iluminación en forma de lámparas con estilo enfatiza favorablemente el esquema de color de la decoración.Una cocina americana compacta está separada del área de invitados por una barra de bar tradicional. Los gabinetes están ubicados solo en un lado.
Conclusión
La adquisición de un apartamento tipo estudio es adecuada para una persona creativa que no está agobiada por la vida familiar. Un plan abierto contribuye a la creación de un interior original, lo que le permite equipar apartamentos representativos en un espacio reducido. La ausencia de paredes internas también ahorra metros útiles de espacio habitable. Solicitar un proyecto de diseño individual a los profesionales puede convertir una habitación compacta en una verdadera obra maestra de planificación arquitectónica y diseño artístico.