Dibujos de la casa desde el boceto hasta el proyecto terminado
Se realizan dibujos y diseños para controlar los procesos de construcción y decoración, desde el principio hasta el final. El plan se elabora con la ayuda de arquitectos, organismos autorizados o en persona. En el último caso, nada le impide buscar ayuda. También hay opciones listas para todos los casos: para objetos grandes y pequeños, de varias formas, con diferentes diseños internos. El esquema (figura) y el proyecto deben distinguirse. La primera es una designación esquemática de toda la instalación o algunas de sus partes, así como el área circundante. El proyecto incluye no solo los datos anteriores, sino también declaraciones sobre el consumo de materiales, el costo de ciertos tipos de trabajo y muchos otros indicadores. Contiene todo tipo de información necesaria para la construcción y preparación del edificio. Los proyectos son bidimensionales y tridimensionales.
Según la ley, es posible construir casas privadas tanto con el proyecto como sin él. Sin embargo, la experiencia de personas competentes en este campo muestra que la presencia de un proyecto es crucial en la etapa de construcción. Sin él, el trabajo se vuelve más complicado y aparecen fallas en el algoritmo de acciones y su precisión. Se vuelve aún más difícil si no hay un esquema de estructura y una estimación de costos. Además, el proyecto y los bocetos, incluso creados de forma independiente, ahorrarán en los servicios de ingenieros y arquitectos. No funcionará en todos los aspectos, pero todos pueden dominar los conceptos básicos del diseño de casas simples. También se han desarrollado programas especiales para la planificación.
Los proyectos ayudan a calcular el consumo de materiales, describir los parámetros de habitaciones y edificios, elegir el lugar ideal para puertas, ventanas y balcones, determinar el propósito de las instalaciones y la funcionalidad de los edificios. Se necesita un plan pintado detallado para calcular la construcción de los cimientos y el techo. Desempeña un papel clave en la colocación y localización:
calentamiento
sistema de abastecimiento de agua;
tanque séptico;
pozo negro
ventilación
Cómo hacer un proyecto: etapas preparatorias para crear un dibujo
En primer lugar, se tiene en cuenta el propósito del futuro edificio: se convertirá en un lugar para unas vacaciones en el campo o una vivienda permanente.Antes de comenzar a redactar un proyecto, debe considerar el número y las necesidades de todas las personas a las que está destinado el edificio. Las preferencias personales se acuerdan de antemano. Se recomienda elegir un lugar tranquilo lejos de la calzada. La construcción de viviendas se divide en etapas, con la fijación adecuada en las secciones del proyecto.
Primero, se crea un boceto. Luego vinieron las secciones arquitectónicas y constructivas. Después de ellos, se preparan declaraciones técnicas y de ingeniería y luego es el turno de crear dibujos para la sección de acabado / diseño sobre la etapa de trabajo correspondiente. Antes de crear el boceto principal, debe hacer bocetos. Luego, sobre la base del dibujo principal de la casa, se dibujan otros más detallados. Se convertirán en la base para mostrar un diseño aún más detallado.
Qué considerar al dibujar un diagrama de la casa
Para hacer un plan, es necesario determinar el número de pisos del edificio, la opción del techo, el exterior, incluido el número de aberturas de ventanas, balcones y logias. Debería ser posible equipar la terraza y el ático. Todos estos elementos deben mostrarse en secciones longitudinales y transversales, junto con las cualidades estructurales y los materiales necesarios. Se tienen en cuenta las características del sitio debajo de la casa, incluida la ubicación, la orientación a los puntos cardinales, la topografía y las características del suelo. El diseño interno óptimo, principalmente la ubicación de los locales, depende de ellos. El número y la configuración de las habitaciones se seleccionan teniendo en cuenta el número de residentes y la edad de cada uno de ellos.
La principal prioridad en los gráficos es la utilidad funcional. También se deben proporcionar instalaciones para acomodar a los constructores y otros trabajadores. En el plan, es aconsejable dejar un lugar en reserva: en algún momento puede "llenarse" con un garaje adicional o casa de huéspedes.
Algunos elementos funcionales que se prevén mejor de antemano:
taller
gabinete
invernadero
jardín de invierno
Sauna
piscina
un gimnasio
¡Las habitaciones grandes necesitan calefacción adicional!
Características del diseño de la casa: dibujos como base para la planificación.
Los dibujos ayudan a representar aproximadamente la apariencia final del edificio: por dentro y por fuera. No tiene sentido apresurarse a crear la versión final del boceto. Es mejor pasar mucho tiempo y anticipar más matices. Los dibujos se pueden ajustar una y otra vez a nuevas ideas, teniendo en cuenta las actividades futuras en el sitio y dentro del edificio. Incluso puede proporcionar la terminación de pisos.
En los esquemas, lo primero que indican es su número, así como el tipo de nivel superior. El techo es plano e inclinado, y se puede ubicar un ático debajo. Las zonas se planifican en el interior: trabajo, cocina, relajación, etc. Afuera: cuartos de servicio, dependencias, jardines, áreas comunes. Los territorios con una carga funcional similar se encuentran cerca uno del otro. Todos los aspectos anteriores son la base del diseño de los planes ya hechos. Cada proyecto terminado es una determinada opción con un conjunto completo de dispositivos y funciones necesarios.
Lo que se incluye en la estructura del proyecto de la casa.
Antes de comenzar a compilar un proyecto usted mismo, debe comprender su función, en primer lugar, el propósito de cada sección. Un plan detallado es principalmente una guía para llevar a cabo varios tipos de trabajo, de acuerdo con los estándares existentes y las preferencias personales. El documento está dotado de una función de control: para el consumo de materiales, costos y calidad del trabajo. El plan del edificio incluye el tamaño de las habitaciones y las aberturas, la ubicación de las escaleras, la configuración del techo, los cimientos, el sótano, los pisos y el ático.
Las secciones del proyecto están divididas condicionalmente en dos partes: arquitectura y construcción e ingeniería. El primero de ellos incluye dibujos de fachadas y esquemas arquitectónicos detallados. Allí, se indican los parámetros de longitud, distancia, intervalos, parámetros de sección, área y volúmenes de habitaciones y nodos.En cuanto a la segunda parte, se recogen dibujos de los sistemas de ventilación, calefacción, alcantarillado y fontanería, así como el circuito de alimentación.
¡El proyecto también incluye documentación estimada, sin la cual no será posible diseñar una casa como bienes raíces!
La lista de dibujos arquitectónicos obligatorios de la casa con dimensiones.
Estos incluyen bocetos arquitectónicos y de construcción:
planta baja;
segundo piso;
sótano y ático (si hay);
estructura de armadura;
secciones transversales y longitudinales.
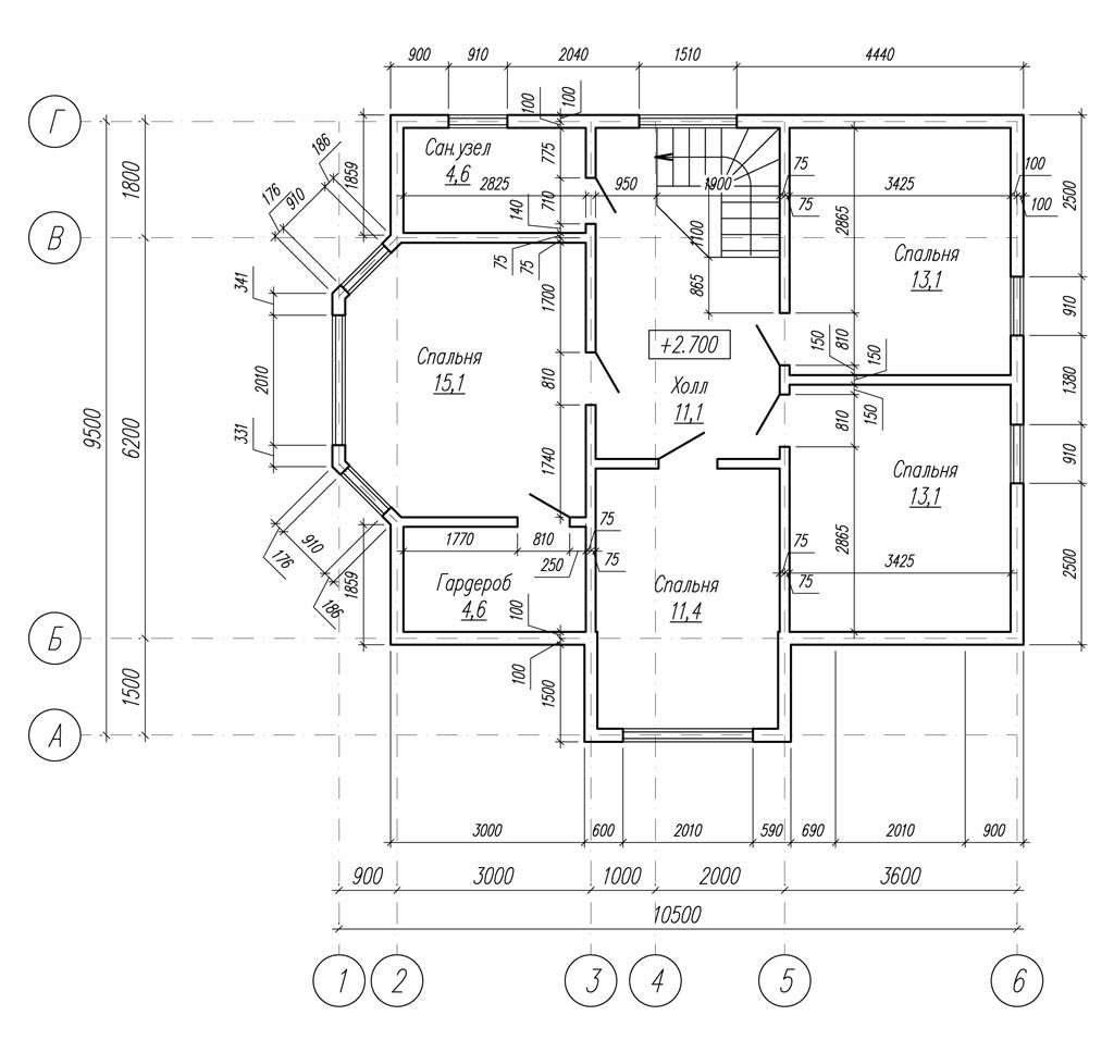
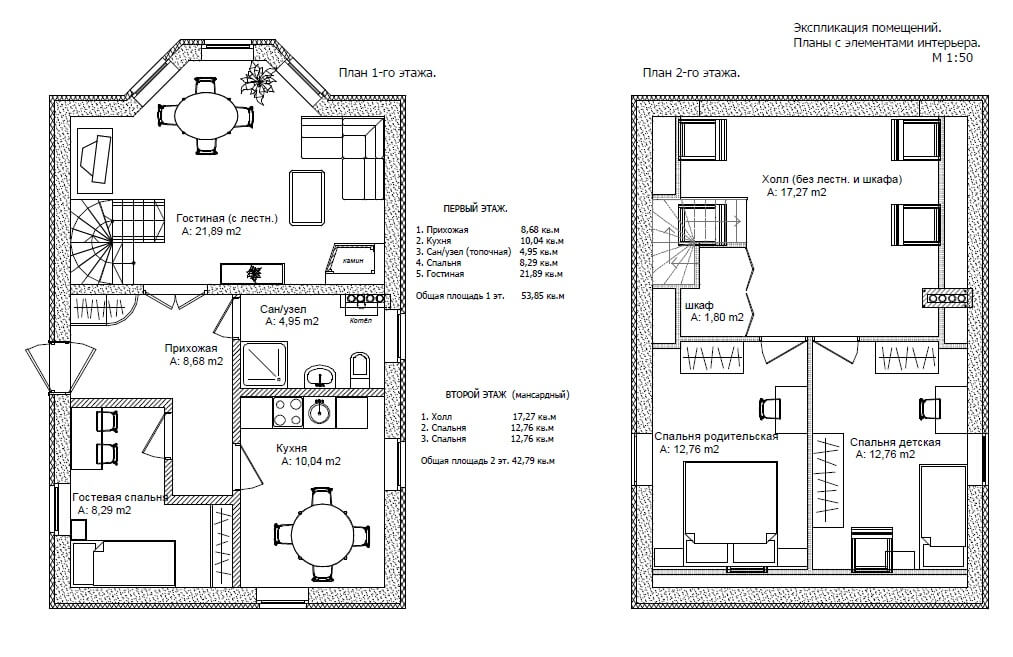
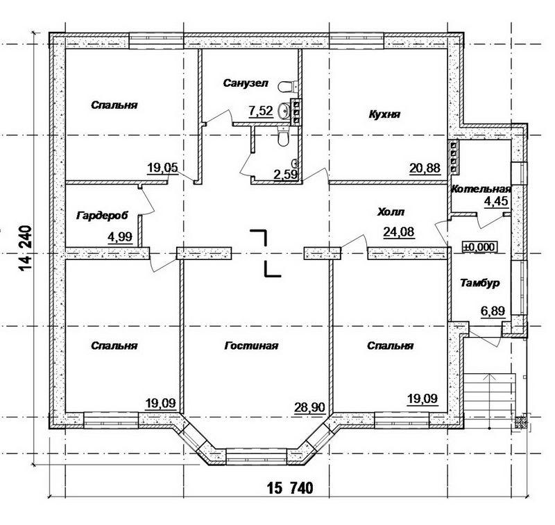
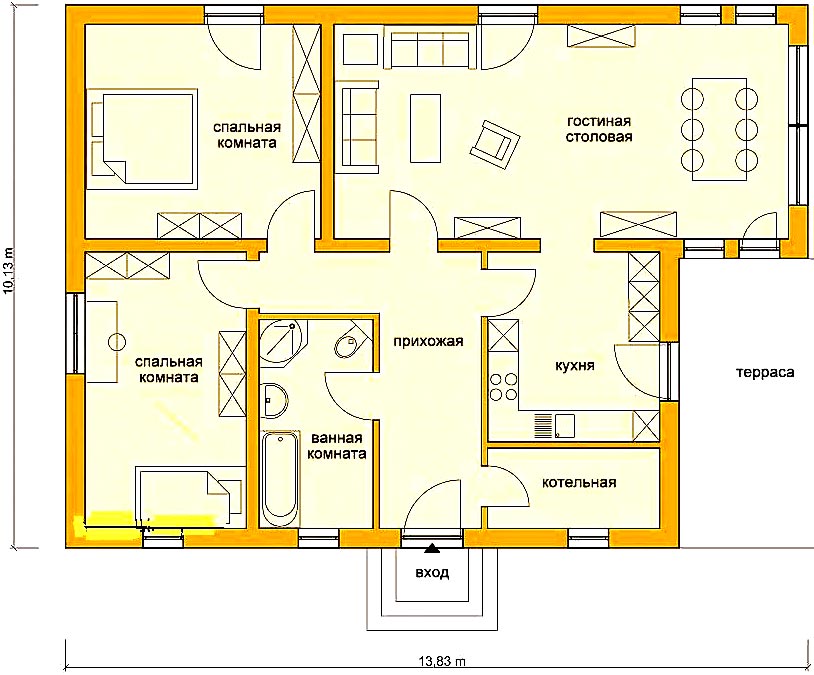
Los bocetos arquitectónicos permiten la aplicación de parámetros precisos, características generales de un edificio residencial, edificios auxiliares, partes de estructuras y estructuras individuales. Se elaboran planos para cada piso, con una clara indicación del rol funcional, ya sea residencial, técnico, de servicios o espacio de almacenamiento. Los documentos indican el área y todas las dimensiones lineales.
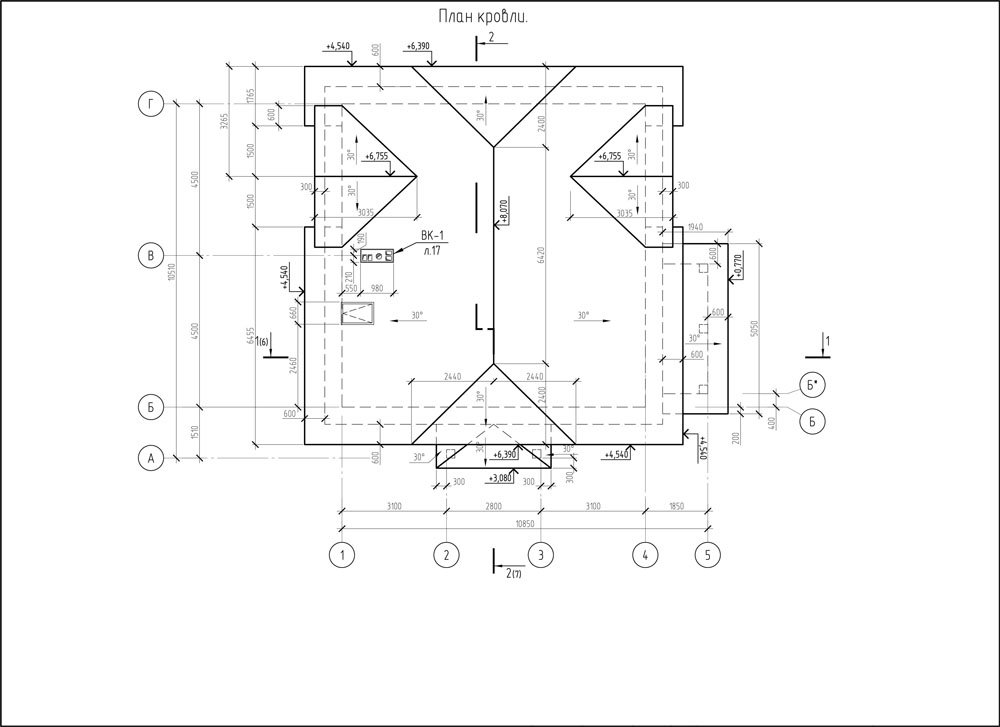
Aquí se aplica la ubicación de ventanas y puertas con los tamaños, intervalos y distancias correspondientes. También necesitará un plan para la construcción del marco del techo. Al mismo tiempo, se muestran todas las vigas y otros elementos del sistema. Se debe adjuntar una tabla al dibujo con la especificación de los detalles de este diseño. El plano del techo se forma por separado, lo que indica las dimensiones y los ángulos. También se muestra la ubicación de las escotillas, chimeneas, ventilación y lucarnes. Además, se compilan diagramas transversales de zonas espaciales, desde la base hasta el techo. Se requieren al menos 5 de estos dibujos, realizados desde diferentes lados.
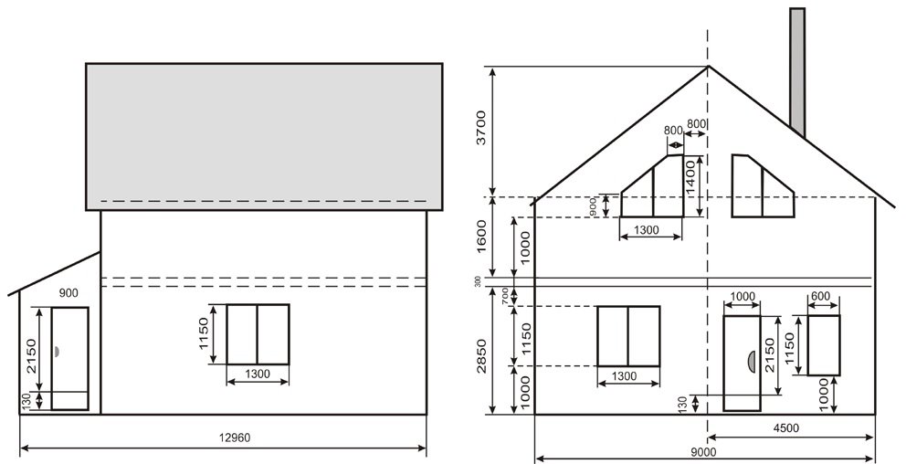
Dibujos seccionales de la casa y la imagen de fachadas de diferentes lados.
Los dibujos seccionales son direcciones transversales, longitudinales y verticales. Están diseñados para determinar la altura de las habitaciones en diferentes pisos, la profundidad del sótano o sótano, el ángulo de inclinación de varias partes del techo. Crear un proyecto es imposible sin bocetos de todas las fachadas. Para una casa de una configuración normal, estos son dibujos de 4 lados diferentes: frontal, posterior y final.Por lo tanto, las siguientes hojas se agregan a la documentación: Fachada frontal, Parte posterior del edificio, Fachada lateral No. 1, No. 2. La tabla con la especificación de varios elementos, incluyendo ventanas y puertas, complementará esta información.
Los esquemas de los lados de la casa son una especie de correspondencia del plan simplificado de la casa y los bocetos iniciales. Es por eso que la preparación de planes simples a través de programas de computadora no causará dificultades incluso para aquellos que no los han usado antes. El diseño, sin embargo, requiere la participación de especialistas en diferentes direcciones en la construcción. La apariencia de la fachada frontal es de fundamental importancia. Debería ser discutido más a fondo.
Los esquemas especifican los parámetros, la forma, el método de apertura y el número de componentes de la carpintería.
Sección de diseño: cómo dibujar dibujos y diagramas de elementos individuales
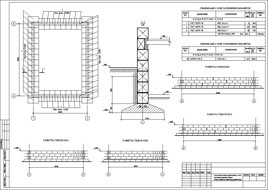
La sección constructiva incluye descripciones detalladas en diagramas con medidas en milímetros. Se repone con planos generales y dibujos individuales de diferentes elementos. Estos incluyen huecos de escaleras, cimientos, pisos, elementos del sistema de vigas. Para el proyecto debe indicar las características de los materiales y productos para cada nodo. El dibujo de la base muestra los parámetros de las estructuras de refuerzo, la ubicación en el suelo y los materiales para el trabajo. El plan de cimentación está representado por un dibujo general y dibujos de secciones longitudinales y transversales.
Algunos tipos de dibujos incluyen secciones de losas de piso en 2 planos a diferentes elevaciones: +0.00, +3.00 y +6.00. Los puntos de ajuste complejos de las partes estructurales se indican por separado. Para todos los nodos, se dan cálculos sobre estática y fuerza. Las tablas se agregan a la sección con una descripción de las características y algoritmos para usar barras transversales, barras de refuerzo y piezas de hormigón armado.
Sección de ingeniería: planos de salas y comunicaciones.
Esta sección incluye esquemas de equipos eléctricos, alcantarillado, suministro de agua, sistemas de calefacción, así como explicaciones de los cálculos. La especificación de los equipos individuales se muestra en forma de tablas de decodificación. La parte de ingeniería debe contener declaraciones sobre las partes del edificio y sobre los sistemas separados y autónomos dentro de los edificios. Los dibujos del sistema de suministro de agua incluyen un diseño de comunicaciones en todos los niveles y en el sótano. El sistema de alcantarillado se muestra de forma similar. A menudo, estas dos subsecciones se combinan.
Se agrega un diagrama axonométrico de la instalación de sistemas de suministro de agua (para agua caliente y fría) a la parte de ingeniería. El proyecto eléctrico debe contener un indicador de la potencia de diseño del edificio, un dibujo del cableado de las redes de iluminación y energía. La sección de montaje está llena de esquemas generales y de piso. La parte técnica del proyecto también incluye información sobre la ubicación de las instalaciones eléctricas y de gas y el esquema del dispositivo de pararrayos.
Sistema de alarma antirrobo en los planos de la casa.
Antes de diseñar una casa, es necesario prever el uso de una alarma de seguridad. En este caso, se requiere el desarrollo de un proyecto separado. El sistema de alarma se basa en una red estructural de dispositivos para organizar diferentes niveles de protección de objetos. La eficiencia debe ser la misma en todo el territorio.
El proyecto se crea de acuerdo con GOST y SNiP y el resto de la documentación reglamentaria. En este caso, se tienen en cuenta factores como la función de la habitación, el área del objeto, sus características de diseño y la opción de señalización (a veces inalámbrica y por cable). En el plano del edificio, se debe indicar un esquema de alarma de seguridad. Se le aplican sensores de rotura de cristales, movimiento, apertura, y también una sirena, un lector y una zona de detección de movimiento. El diseño de la alarma es revisado y aprobado por organizaciones autorizadas. Luego se crean diagramas detallados.
Documentación relacionada del proyecto y planos de construcción.
El proyecto contiene declaraciones sobre las etapas de construcción y la realización de ciertos tipos de trabajo. El plan maestro y los dibujos detallados se complementan con tablas explicativas y varios anexos. Además de los planes individuales que tienen en cuenta las preferencias personales y las necesidades especiales, necesitará documentos obligatorios con datos clave. Entre ellos: documentación con una lista de materiales de acabado y construcción, información sobre su tipo, documentos con una descripción de soluciones de ingeniería, información sobre finanzas y aspectos técnicos.
Necesitará datos sobre altura, área, masa y volumen en metros cúbicos (metro cúbico). Asegúrese de compilar una descripción de la funcionalidad del edificio. Esto también se aplica a la documentación con una evaluación arquitectónica y de construcción. Basado en el proyecto, es costumbre organizar un proceso que incluya una cierta secuencia de trabajo de construcción y los costos financieros asociados.
El pasaporte arquitectónico contiene:
Copia de la licencia del diseñador;
El plan y las imágenes esquemáticas del techo en el contexto;
Planos de planta;
La coloración de las paredes exteriores;
Nota explicativa
Programas de computadora para el diseño de casas
Puedes diseñar una casa usando aplicaciones:
Google SketchUp
VisiCon;
FloorPlan 3D;
CyberMotion 3D-Designer 13.0;
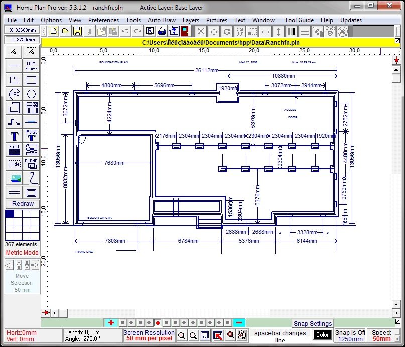
Home Plan Pro;
AutoCad
House-3D;
Envisioneer Express.
Estas herramientas están destinadas a modelar la arquitectura tridimensional, incluidas casas de un piso y dos pisos, casas de campo, casas de campo. Como una función adicional, el programa le permite hacer una disposición virtual de los muebles. Los complementos especiales y las extensiones de datos de aplicaciones representan objetos. Gracias a esta opción, puede ver cómo se ven los edificios desde arriba, en sección, en ángulo. Además, las aplicaciones de modelado le permiten trabajar con capas.
Los modelos se pueden editar en cualquier momento, así como girar alrededor de su eje o agrandarlos para ver los detalles más pequeños. Para almacenar diferentes proyectos, se proporcionan bibliotecas en las que puede ver objetos rápida y fácilmente.Los programas modernos también le permiten crear elementos dinámicos. Las aplicaciones gratuitas y de pago y los recursos en línea están disponibles en Internet para verificar las características de diseño con los parámetros más realistas.
Conclusión
Diseñar casas es un proceso complejo con muchos cálculos precisos. Antes de hacer un plan de construcción, todos los aspectos deben discutirse varias veces para considerar cualquier opción. Los proyectos listos simplificarán la tarea. Los especialistas utilizan la experiencia personal para recopilar en ellos un conjunto completo de funciones que son útiles en situaciones específicas. Sin embargo, puede diseñar una casa usted mismo, ya sea una estructura hecha de ladrillo, piedra o madera. Un proyecto se crea en varias secciones.
El diseño comienza con la creación de un gran plan general. A continuación, se agregan dibujos de pisos y secciones. El edificio se visualiza en cada lado y en el interior. Luego, se dibujan habitaciones separadas, nodos y comunicaciones domésticas. Será necesario indicar las dimensiones, en la última etapa, con una precisión de milímetros. Cuando los proyectos de la fundación, los edificios y los techos estén listos, será el turno de ventilación, alcantarillado, suministro de agua y otros sistemas. Después de esto, solo queda aprobar el proyecto.
Se realizan dibujos y diseños para controlar los procesos de construcción y decoración, desde el principio hasta el final. El plan se elabora con la ayuda de arquitectos, organismos autorizados o en persona. En el último caso, nada le impide buscar ayuda. También hay opciones listas para todos los casos: para objetos grandes y pequeños, de varias formas, con diferentes diseños internos. El esquema (figura) y el proyecto deben distinguirse. La primera es una designación esquemática de toda la instalación o algunas de sus partes, así como el área circundante. El proyecto incluye no solo los datos anteriores, sino también declaraciones sobre el consumo de materiales, el costo de ciertos tipos de trabajo y muchos otros indicadores. Contiene todo tipo de información necesaria para la construcción y preparación del edificio. Los proyectos son bidimensionales y tridimensionales.
Contenido
La necesidad de un proyecto y dibujos de la casa.
Según la ley, es posible construir casas privadas tanto con el proyecto como sin él. Sin embargo, la experiencia de personas competentes en este campo muestra que la presencia de un proyecto es crucial en la etapa de construcción. Sin él, el trabajo se vuelve más complicado y aparecen fallas en el algoritmo de acciones y su precisión. Se vuelve aún más difícil si no hay un esquema de estructura y una estimación de costos. Además, el proyecto y los bocetos, incluso creados de forma independiente, ahorrarán en los servicios de ingenieros y arquitectos. No funcionará en todos los aspectos, pero todos pueden dominar los conceptos básicos del diseño de casas simples. También se han desarrollado programas especiales para la planificación.
Los proyectos ayudan a calcular el consumo de materiales, describir los parámetros de habitaciones y edificios, elegir el lugar ideal para puertas, ventanas y balcones, determinar el propósito de las instalaciones y la funcionalidad de los edificios. Se necesita un plan pintado detallado para calcular la construcción de los cimientos y el techo. Desempeña un papel clave en la colocación y localización:
Cómo hacer un proyecto: etapas preparatorias para crear un dibujo
En primer lugar, se tiene en cuenta el propósito del futuro edificio: se convertirá en un lugar para unas vacaciones en el campo o una vivienda permanente.Antes de comenzar a redactar un proyecto, debe considerar el número y las necesidades de todas las personas a las que está destinado el edificio. Las preferencias personales se acuerdan de antemano. Se recomienda elegir un lugar tranquilo lejos de la calzada. La construcción de viviendas se divide en etapas, con la fijación adecuada en las secciones del proyecto.
Primero, se crea un boceto. Luego vinieron las secciones arquitectónicas y constructivas. Después de ellos, se preparan declaraciones técnicas y de ingeniería y luego es el turno de crear dibujos para la sección de acabado / diseño sobre la etapa de trabajo correspondiente. Antes de crear el boceto principal, debe hacer bocetos. Luego, sobre la base del dibujo principal de la casa, se dibujan otros más detallados. Se convertirán en la base para mostrar un diseño aún más detallado.
Qué considerar al dibujar un diagrama de la casa
Para hacer un plan, es necesario determinar el número de pisos del edificio, la opción del techo, el exterior, incluido el número de aberturas de ventanas, balcones y logias. Debería ser posible equipar la terraza y el ático. Todos estos elementos deben mostrarse en secciones longitudinales y transversales, junto con las cualidades estructurales y los materiales necesarios. Se tienen en cuenta las características del sitio debajo de la casa, incluida la ubicación, la orientación a los puntos cardinales, la topografía y las características del suelo. El diseño interno óptimo, principalmente la ubicación de los locales, depende de ellos. El número y la configuración de las habitaciones se seleccionan teniendo en cuenta el número de residentes y la edad de cada uno de ellos.
La principal prioridad en los gráficos es la utilidad funcional. También se deben proporcionar instalaciones para acomodar a los constructores y otros trabajadores. En el plan, es aconsejable dejar un lugar en reserva: en algún momento puede "llenarse" con un garaje adicional o casa de huéspedes.
Algunos elementos funcionales que se prevén mejor de antemano:
Características del diseño de la casa: dibujos como base para la planificación.
Los dibujos ayudan a representar aproximadamente la apariencia final del edificio: por dentro y por fuera. No tiene sentido apresurarse a crear la versión final del boceto. Es mejor pasar mucho tiempo y anticipar más matices. Los dibujos se pueden ajustar una y otra vez a nuevas ideas, teniendo en cuenta las actividades futuras en el sitio y dentro del edificio. Incluso puede proporcionar la terminación de pisos.
En los esquemas, lo primero que indican es su número, así como el tipo de nivel superior. El techo es plano e inclinado, y se puede ubicar un ático debajo. Las zonas se planifican en el interior: trabajo, cocina, relajación, etc. Afuera: cuartos de servicio, dependencias, jardines, áreas comunes. Los territorios con una carga funcional similar se encuentran cerca uno del otro. Todos los aspectos anteriores son la base del diseño de los planes ya hechos. Cada proyecto terminado es una determinada opción con un conjunto completo de dispositivos y funciones necesarios.
Lo que se incluye en la estructura del proyecto de la casa.
Antes de comenzar a compilar un proyecto usted mismo, debe comprender su función, en primer lugar, el propósito de cada sección. Un plan detallado es principalmente una guía para llevar a cabo varios tipos de trabajo, de acuerdo con los estándares existentes y las preferencias personales. El documento está dotado de una función de control: para el consumo de materiales, costos y calidad del trabajo. El plan del edificio incluye el tamaño de las habitaciones y las aberturas, la ubicación de las escaleras, la configuración del techo, los cimientos, el sótano, los pisos y el ático.
Las secciones del proyecto están divididas condicionalmente en dos partes: arquitectura y construcción e ingeniería. El primero de ellos incluye dibujos de fachadas y esquemas arquitectónicos detallados. Allí, se indican los parámetros de longitud, distancia, intervalos, parámetros de sección, área y volúmenes de habitaciones y nodos.En cuanto a la segunda parte, se recogen dibujos de los sistemas de ventilación, calefacción, alcantarillado y fontanería, así como el circuito de alimentación.
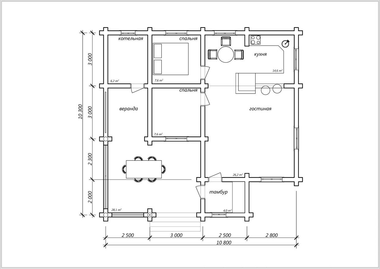
La lista de dibujos arquitectónicos obligatorios de la casa con dimensiones.
Estos incluyen bocetos arquitectónicos y de construcción:
Los bocetos arquitectónicos permiten la aplicación de parámetros precisos, características generales de un edificio residencial, edificios auxiliares, partes de estructuras y estructuras individuales. Se elaboran planos para cada piso, con una clara indicación del rol funcional, ya sea residencial, técnico, de servicios o espacio de almacenamiento. Los documentos indican el área y todas las dimensiones lineales.
Aquí se aplica la ubicación de ventanas y puertas con los tamaños, intervalos y distancias correspondientes. También necesitará un plan para la construcción del marco del techo. Al mismo tiempo, se muestran todas las vigas y otros elementos del sistema. Se debe adjuntar una tabla al dibujo con la especificación de los detalles de este diseño. El plano del techo se forma por separado, lo que indica las dimensiones y los ángulos. También se muestra la ubicación de las escotillas, chimeneas, ventilación y lucarnes. Además, se compilan diagramas transversales de zonas espaciales, desde la base hasta el techo. Se requieren al menos 5 de estos dibujos, realizados desde diferentes lados.
Dibujos seccionales de la casa y la imagen de fachadas de diferentes lados.
Los dibujos seccionales son direcciones transversales, longitudinales y verticales. Están diseñados para determinar la altura de las habitaciones en diferentes pisos, la profundidad del sótano o sótano, el ángulo de inclinación de varias partes del techo. Crear un proyecto es imposible sin bocetos de todas las fachadas. Para una casa de una configuración normal, estos son dibujos de 4 lados diferentes: frontal, posterior y final.Por lo tanto, las siguientes hojas se agregan a la documentación: Fachada frontal, Parte posterior del edificio, Fachada lateral No. 1, No. 2. La tabla con la especificación de varios elementos, incluyendo ventanas y puertas, complementará esta información.
Los esquemas de los lados de la casa son una especie de correspondencia del plan simplificado de la casa y los bocetos iniciales. Es por eso que la preparación de planes simples a través de programas de computadora no causará dificultades incluso para aquellos que no los han usado antes. El diseño, sin embargo, requiere la participación de especialistas en diferentes direcciones en la construcción. La apariencia de la fachada frontal es de fundamental importancia. Debería ser discutido más a fondo.
Sección de diseño: cómo dibujar dibujos y diagramas de elementos individuales
La sección constructiva incluye descripciones detalladas en diagramas con medidas en milímetros. Se repone con planos generales y dibujos individuales de diferentes elementos. Estos incluyen huecos de escaleras, cimientos, pisos, elementos del sistema de vigas. Para el proyecto debe indicar las características de los materiales y productos para cada nodo. El dibujo de la base muestra los parámetros de las estructuras de refuerzo, la ubicación en el suelo y los materiales para el trabajo. El plan de cimentación está representado por un dibujo general y dibujos de secciones longitudinales y transversales.
Algunos tipos de dibujos incluyen secciones de losas de piso en 2 planos a diferentes elevaciones: +0.00, +3.00 y +6.00. Los puntos de ajuste complejos de las partes estructurales se indican por separado. Para todos los nodos, se dan cálculos sobre estática y fuerza. Las tablas se agregan a la sección con una descripción de las características y algoritmos para usar barras transversales, barras de refuerzo y piezas de hormigón armado.
Sección de ingeniería: planos de salas y comunicaciones.
Esta sección incluye esquemas de equipos eléctricos, alcantarillado, suministro de agua, sistemas de calefacción, así como explicaciones de los cálculos. La especificación de los equipos individuales se muestra en forma de tablas de decodificación. La parte de ingeniería debe contener declaraciones sobre las partes del edificio y sobre los sistemas separados y autónomos dentro de los edificios. Los dibujos del sistema de suministro de agua incluyen un diseño de comunicaciones en todos los niveles y en el sótano. El sistema de alcantarillado se muestra de forma similar. A menudo, estas dos subsecciones se combinan.
Se agrega un diagrama axonométrico de la instalación de sistemas de suministro de agua (para agua caliente y fría) a la parte de ingeniería. El proyecto eléctrico debe contener un indicador de la potencia de diseño del edificio, un dibujo del cableado de las redes de iluminación y energía. La sección de montaje está llena de esquemas generales y de piso. La parte técnica del proyecto también incluye información sobre la ubicación de las instalaciones eléctricas y de gas y el esquema del dispositivo de pararrayos.
Sistema de alarma antirrobo en los planos de la casa.
Antes de diseñar una casa, es necesario prever el uso de una alarma de seguridad. En este caso, se requiere el desarrollo de un proyecto separado. El sistema de alarma se basa en una red estructural de dispositivos para organizar diferentes niveles de protección de objetos. La eficiencia debe ser la misma en todo el territorio.
El proyecto se crea de acuerdo con GOST y SNiP y el resto de la documentación reglamentaria. En este caso, se tienen en cuenta factores como la función de la habitación, el área del objeto, sus características de diseño y la opción de señalización (a veces inalámbrica y por cable). En el plano del edificio, se debe indicar un esquema de alarma de seguridad. Se le aplican sensores de rotura de cristales, movimiento, apertura, y también una sirena, un lector y una zona de detección de movimiento. El diseño de la alarma es revisado y aprobado por organizaciones autorizadas. Luego se crean diagramas detallados.
Documentación relacionada del proyecto y planos de construcción.
El proyecto contiene declaraciones sobre las etapas de construcción y la realización de ciertos tipos de trabajo. El plan maestro y los dibujos detallados se complementan con tablas explicativas y varios anexos. Además de los planes individuales que tienen en cuenta las preferencias personales y las necesidades especiales, necesitará documentos obligatorios con datos clave. Entre ellos: documentación con una lista de materiales de acabado y construcción, información sobre su tipo, documentos con una descripción de soluciones de ingeniería, información sobre finanzas y aspectos técnicos.
Necesitará datos sobre altura, área, masa y volumen en metros cúbicos (metro cúbico). Asegúrese de compilar una descripción de la funcionalidad del edificio. Esto también se aplica a la documentación con una evaluación arquitectónica y de construcción. Basado en el proyecto, es costumbre organizar un proceso que incluya una cierta secuencia de trabajo de construcción y los costos financieros asociados.
El pasaporte arquitectónico contiene:
Programas de computadora para el diseño de casas
Puedes diseñar una casa usando aplicaciones:
Estas herramientas están destinadas a modelar la arquitectura tridimensional, incluidas casas de un piso y dos pisos, casas de campo, casas de campo. Como una función adicional, el programa le permite hacer una disposición virtual de los muebles. Los complementos especiales y las extensiones de datos de aplicaciones representan objetos. Gracias a esta opción, puede ver cómo se ven los edificios desde arriba, en sección, en ángulo. Además, las aplicaciones de modelado le permiten trabajar con capas.
Los modelos se pueden editar en cualquier momento, así como girar alrededor de su eje o agrandarlos para ver los detalles más pequeños. Para almacenar diferentes proyectos, se proporcionan bibliotecas en las que puede ver objetos rápida y fácilmente.Los programas modernos también le permiten crear elementos dinámicos. Las aplicaciones gratuitas y de pago y los recursos en línea están disponibles en Internet para verificar las características de diseño con los parámetros más realistas.
Conclusión
Diseñar casas es un proceso complejo con muchos cálculos precisos. Antes de hacer un plan de construcción, todos los aspectos deben discutirse varias veces para considerar cualquier opción. Los proyectos listos simplificarán la tarea. Los especialistas utilizan la experiencia personal para recopilar en ellos un conjunto completo de funciones que son útiles en situaciones específicas. Sin embargo, puede diseñar una casa usted mismo, ya sea una estructura hecha de ladrillo, piedra o madera. Un proyecto se crea en varias secciones.
El diseño comienza con la creación de un gran plan general. A continuación, se agregan dibujos de pisos y secciones. El edificio se visualiza en cada lado y en el interior. Luego, se dibujan habitaciones separadas, nodos y comunicaciones domésticas. Será necesario indicar las dimensiones, en la última etapa, con una precisión de milímetros. Cuando los proyectos de la fundación, los edificios y los techos estén listos, será el turno de ventilación, alcantarillado, suministro de agua y otros sistemas. Después de esto, solo queda aprobar el proyecto.