Tener su propio rincón es un sueño brillante y sincero de cada persona. Alguien compra un edificio o departamento ya terminado, otros adquieren una parcela, planifican la casa, obtienen un permiso de construcción. La construcción de una nueva mansión o casa de campo, aunque está asociada con dificultades e inconvenientes temporales, pero el resultado vale la pena.
La estructura completa corresponderá a las ideas, gustos y deseos de su propietario. Cerca de una casa acogedora, cálida, grande o compacta en el patio puede haber una casa de baños, un garaje, una cocina de verano, un parque infantil, un cenador, macizos de flores y otros elementos decorativos funcionales. La comodidad y las comodidades de la vivienda dependerán en gran medida de un proyecto diseñado adecuadamente.
Características de la planificación durante el diseño.
La construcción de una hermosa casa de madera o ladrillo se basa en un proyecto aprobado, que incluye su diseño. A menudo, al elaborar un plan, solo se tienen en cuenta las necesidades actuales, que pueden cambiar de vez en cuando. Es importante comprender y recordar que la estructura funcionará durante más de uno, dos años o incluso una década. Con el tiempo, la familia puede crecer, aparecerán nuevos planes, necesidades, deseos y las capacidades físicas de los propietarios cambiarán con los años.
Al desarrollar el esquema, es necesario adherirse no solo a las normas y estándares existentes, sino también a tener en cuenta la funcionalidad de las premisas, su ubicación racional y óptima, para que en una determinada etapa de la vida no se decepcione con la elección. Por ejemplo, si es relevante que un bebé coloque la habitación de un niño con una entrada desde la habitación de los padres, a medida que crezca, ese diseño será inaceptable para todos los hogares.
La conveniencia de vivir no se ve afectada por el tamaño de la estructura, sino por la ubicación verificada del interior. Cada miembro de la familia debe tener su propio rincón separado, donde podría participar en su querido e interesante negocio, sin distraer a los demás. Por lo tanto, antes de contactar a un arquitecto, tomar un proyecto terminado, hacer un boceto de forma independiente, es necesario reunir un consejo familiar y tener en cuenta la opinión de todos.
En una casa debidamente planificada, saliendo de la calle, te encuentras en el hall de entrada, seguido de la sala de estar.
Zona óptima de la casa
Una casa privada, especialmente una casa de campo, puede construirse espaciosa y cómoda, mientras se gasta casi la misma cantidad que la compra de un apartamento. Dependiendo de los deseos de los propietarios, se determina el presupuesto disponible, el número de residentes permanentes, el tamaño de las habitaciones, el área de la estructura futura. Aquí puede colocar una habitación separada para cada miembro de la familia, una espaciosa sala de estar, comedor, uno o más baños, una cocina, una sala de calderas, una oficina, un garaje, una sala de billar y otras habitaciones funcionales.
Con fondos ilimitados, la lista es fácil de continuar. La mayoría de los ciudadanos dependen de ciertos fondos disponibles. Por lo tanto, la lista de habitaciones requeridas debe ser óptima; solo se deben mostrar las habitaciones más necesarias. Si esto no se hace, todo lo que se desea se incluye en el proyecto, entonces al final simplemente no habrá suficiente energía o dinero para completar la construcción, el proceso se prolongará durante mucho tiempo.
Los parámetros de la casa dependen directamente del número de habitaciones y sus tamaños. Estos indicadores determinan el costo de las facturas de servicios públicos. Es necesario planificar la estructura de manera muy racional, sin restringir a los residentes permanentes. Para una estancia confortable, se calcula un promedio de 30 m² por persona.
Todos pueden determinar de forma independiente el tamaño necesario de la estructura, sin embargo, al elaborar el plan, es imprescindible tener en cuenta las normas y estándares existentes especificados en SNiP 31-02-2001, RSN 70-88, SNiP 2.08.01-89. Si las dimensiones de las instalaciones son inferiores a los valores permitidos, el proyecto simplemente se negará a registrarse con el BTI.
Ubicación de la casa en la parcela.
Antes de continuar con la construcción, es necesario realizar estudios geológicos del sitio, durante los cuales se determina el nivel de ocurrencia de agua subterránea, composición del suelo y características del paisaje. Estos datos se transfieren al arquitecto, considerados de forma independiente.La elección de los materiales de construcción, la posibilidad de incluir en el proyecto un sótano ubicado debajo de la casa, que conduzca a la construcción de servicios subterráneos, depende de ellos.
Al planificar la colocación de una casa en un sitio, primero observan las reglas aprobadas. Por ejemplo, en SP 30-102-99 en el párrafo 5.3.2, las distancias desde un edificio residencial, la línea roja de calles y las entradas están claramente definidas. En el primer caso, es de 5 m, en el segundo - 3 m. Las dependencias para ambas opciones deben estar separadas al menos 5 m. En el párrafo 5.3.4. Se identifican todas las hendiduras del sitio vecino y los edificios ubicados en él. El código también indica las normas para todos los edificios domésticos y dependencias ubicadas en el territorio.
Un factor importante es la ubicación de la casa en relación con los puntos cardinales. La ubicación óptima será cuando las ventanas miren hacia el sur, suroeste, lado sureste. En la dirección norte debe haber una pared en blanco, habitaciones no residenciales con pequeñas ventanas. Esto proporcionará no solo una buena iluminación natural durante el día, sino que también le permitirá mantenerse caliente durante el invierno.
Planificación de altura de techo en proyectos
El cálculo de este parámetro se realiza teniendo en cuenta los valores mínimos especificados en SNiP 2.08.01-89 en el párrafo 1.1., Donde se estipula que la distancia desde el piso hasta el techo debe ser de al menos 2.5 my para edificios residenciales con fines sociales no más de 2, 8 my 3.0 m, la altura de los pasillos interiores es de 2.1 m. Según SNiP 31-02-2001 p. 4.5, la altura de la cocina, así como de la vivienda, es de al menos 2.5 m, en algunos casos determinada por el desarrollador, más de 2 , 3 m, en los pasillos - desde 2.1 m.
Dadas las reglas establecidas, el propietario debe decidir qué altura será óptima para él. Los techos demasiado bajos reducirán visualmente el espacio, causando depresión e incomodidad. Demasiada distancia arruinará el aspecto de cualquier habitación, será difícil cuidar el techo, durante la construcción se dejarán más materiales, el área calentada aumentará.
Para no crear una sensación de vacío en la habitación, sino para pasar tiempo aquí de manera cómoda y cómoda, es aconsejable encontrar un punto medio, elija el parámetro óptimo dentro de 2.5 - 3.2 m. En este caso, debe tener en cuenta la altura de la persona, el área de las habitaciones, el tipo de techo acabados y electrodomésticos, preferencias personales de todos los miembros de la familia.
Diseño de ventana de una casa de campo
Para cumplir con los requisitos sanitarios y epidemiológicos, de acuerdo con SNiP 31-02-2001, cláusula 8.9 sobre la provisión de iluminación natural, la relación entre las aberturas de las ventanas y el área del piso para la cocina y las instalaciones residenciales debe ser de más de 1 parte a 8, respectivamente, para los pisos del ático, al menos 1 : 10. No hay restricciones en el tamaño de las ventanas. En algunos casos, es apropiado instalar grandes ventanas modernas de doble acristalamiento sin preocuparse por la posible pérdida de calor.
Al organizar las aberturas de ventanas, vale la pena considerar los puntos cardinales. Por ejemplo, para el dormitorio y la guardería, la dirección este es la mejor opción, en la cocina y el baño, el norte, la sala de estar, el este y el sur, el corredor y la sala de calderas, el oeste. Esto se debe a los detalles de las habitaciones. Los rayos del sol no caen en las ventanas que miran hacia el norte, mientras que hay un exceso de ellos en las estructuras del sur.
Una gran cantidad de ventanas proporcionarán no solo iluminación y aire fresco, sino también una vista al patio. Existe la oportunidad de observar lo que sucede en la calle, las acciones de los niños, los transeúntes. Si el área lo permite, es aconsejable planificar, en lugar de una ventana grande, varias, incluso no estándar, la apariencia del edificio solo se beneficiará de esto, pero no exagere.
Elegir un proyecto de casa
A diferencia de los apartamentos estándar ubicados en edificios de varios pisos, su propio edificio residencial puede tener cualquier número de habitaciones, de uno o dos pisos, incluso hay edificios en tres pisos. Muchos prefieren modelos con una terraza, un balcón, una terraza y unen varias estructuras funcionales una al lado de la otra. Al mismo tiempo, las viviendas difieren en forma. Hay opciones cuadradas, rectangulares, con un diseño no estándar.
El plan puede incluir un ático y planta baja.En el espacio ubicado debajo del techo, generalmente equipan un dormitorio, una guardería, una oficina, un baño. El sótano se utiliza principalmente para las necesidades del hogar, aquí se colocan varias comunicaciones, se diseña una sala de billar o deportes, un garaje o una sala de calderas.
El tamaño y la cantidad de pisos de viviendas se ven afectados por el área del sitio, la cantidad de personas que viven en él. Las familias numerosas de varias generaciones dan preferencia a los edificios de dos pisos, que brindan comodidad y una ubicación separada para todos los hogares. Si la familia es pequeña, entonces la construcción compacta será suficiente.
Casa de una planta
Es más fácil construir y planificar viviendas de un piso que los modelos de varios niveles. Los edificios grandes son adecuados para personas que poseen un área de tierra correspondiente, así como para familias amigables. El edificio debe contener una lista estándar de habitaciones:
vestíbulo
pasillo
sala de estar
la cocina
un baño
sala de calderas;
dormitorios
cuartos de servicio.
Al redactar un proyecto, es aconsejable cumplir con ciertas recomendaciones y reglas:
La cocina y el baño deben ubicarse lo más cerca posible el uno del otro, o al menos a lo largo de una pared. Esto simplificará, organizará adecuadamente las comunicaciones de plomería, proporcionará un ángulo de inclinación de las tuberías utilizadas para la eliminación de aguas residuales.
Al planificar, es necesario excluir la presencia de habitaciones de paso, para que en todas las habitaciones sea cómodo y acogedor.
Las ventanas deben colocarse en los puntos cardinales de cada habitación, de acuerdo con sus características.
Las instalaciones auxiliares y técnicas deben estar separadas de las residenciales, para asignarles un lugar separado.
Al planificar el ático, es necesario colocar racionalmente la escalera para que no interfiera con la libre circulación.
Casa de dos pisos
En un área pequeña, la construcción de una gran vivienda de un piso se vuelve imposible e irracional.Incluso en áreas grandes será apropiado erigir una estructura de varios pisos, especialmente una buena opción para una familia numerosa. Al construir una casa de dos pisos, el propietario recibe las siguientes ventajas:
ahorro de espacio en el sitio;
buena visión general de los alrededores;
la capacidad de agregar un balcón al plan;
distribuir racionalmente habitaciones residenciales y de servicios públicos.
Tal estructura no está exenta de pequeños defectos:
los costos de construcción aumentarán debido a los cimientos reforzados, que deben soportar cargas significativas;
será necesario prever la presencia de una estructura de escalera, que ocupará el área utilizable.
Se debe prestar especial atención a los techos y paredes entre pisos, se deben fortalecer.
Al planificar salas, salas de servicios públicos, deben dividirse correctamente entre pisos. Por lo general, en la planta baja hay un vestíbulo, un hall de entrada, una sala de estar, una cocina, una sala de calderas, un baño y un tramo de escaleras. Si el área del edificio lo permite, aún puede agregar una oficina, comedor, dormitorio de invitados. El segundo piso se usa principalmente para dormitorios, guarderías, un hall, un armario, a veces se instala un baño adicional.
Casa con buhardilla
El equipamiento del espacio del ático para necesidades de vivienda le permite aumentar el área útil de la estructura. Esta es una opción de presupuesto, que es una alternativa a las estructuras de dos pisos. La construcción tiene un peso relativamente bajo, lo que permite ahorrar en los cimientos. Por lo general, en el ático colocan un dormitorio, una guardería, una oficina.
Al organizar el espacio debajo del techo, se debe prestar especial atención al aislamiento, la impermeabilización y la barrera de vapor. La temperatura en la habitación dependerá de estas acciones, tanto con un cambio diario de temperatura como estacional. Las ventanas inclinadas deben estar equipadas con ventanas especiales de doble acristalamiento para crear una buena iluminación.
Sin embargo, este piso no está exento de inconvenientes, a saber:
dificultades asociadas con la disposición del sistema de calefacción;
decoración interior inconveniente debido a paredes inclinadas;
altos costos de energía;
presión psicológica
difíciles reparaciones y mantenimiento.
Casa de dos habitaciones
Una casa compacta es muy adecuada para una familia pequeña de dos. Para elaborar un proyecto, puede considerar el diseño de apartamentos estándar en un edificio de gran altura. En el plan es necesario organizar racionalmente las dos salas principales, asignando el área más grande debajo de ellas. En algunos casos, será conveniente combinar la cocina con la sala de estar, que se utilizará simultáneamente como comedor.
En un edificio pequeño, un baño, sala de calderas, cocina debe estar a un lado del edificio, y las viviendas están separadas por un pasillo. Es conveniente usar entrepisos, despensas, espacio debajo de muebles tapizados, sillas para guardar cosas. Se debe proporcionar una cama adicional en el pasillo, se debe instalar un sofá plegable o una cama que se pueda ocultar en un nicho.
Al construir una casa de dos pisos, dos habitaciones principales están equipadas desde arriba, desde abajo hay un lugar adicional para expandir el espacio de la cocina, colocando un armario completo. En el pasillo ampliado, en lugar de una percha, hay un armario.
Casa de tres habitaciones
La construcción, que consta de tres habitaciones, se puede llamar completa. Puede acomodar fácilmente a una familia con dos hijos. Hay muchos proyectos de edificios de tres habitaciones. Hay opciones con una sala de estar, desde la cual puede acceder a dos dormitorios y una cocina. Pero es mejor dar preferencia a los modelos con una disposición separada de habitaciones, para que todos los hogares, los huéspedes que se quedan por la noche, se sientan cómodos.
La única diferencia de la casa de dos dormitorios es la presencia de otro dormitorio. En consecuencia, el área de la casa aumentará en al menos 8 metros cuadrados. Es mejor colocar el hall de entrada en el centro de la estructura para que lo divida en dos partes iguales. Por un lado, puede organizar dos dormitorios, por otro, un hall, una cocina, un baño, una sala de calderas, un armario.Si hay un ático, la sala de estar se transfiere al piso superior.
La disposición de las habitaciones en la casa.
Los muchos años de experiencia de los arquitectos, como la mayoría de los ciudadanos comunes, muestran que no es deseable usar cuartos de paso en la casa, y es necesario planificar y construir viviendas no solo teniendo en cuenta las necesidades actuales, sino también los planes para el futuro. Al elaborar un dibujo, se deben cumplir ciertas reglas y recomendaciones, a saber:
La forma óptima de cualquier habitación, incluida la cocina y el baño, debe estar lo más cerca posible de la plaza.
No ahorre en el área del baño, sala de cocina.
Para cada niño, es mejor equipar una habitación separada, especialmente si tienen una gran diferencia de edad o tienen un género diferente.
En edificios de dos pisos, el nivel inferior se otorga a la generación anterior. Además, al planificar un huésped debe proporcionar una cama extra o la posibilidad de convertir toda la habitación en un dormitorio.
El número de corredores debe reducirse, ya que ocupan un área utilizable.
El tamaño de las habitaciones está determinado por su funcionalidad, preferencias personales. Sus parámetros no deben ser inferiores al mínimo especificado en los documentos reglamentarios.
Corredor
Según SNiP 31-02-2001 p. 4.4. El ancho de la antesala debe ser de al menos 1,4 m, de los corredores interiores, desde 0,85 m. Teniendo en cuenta estos datos, así como el hecho de que todos los muebles se introducen a través de esta sala, se selecciona su área óptima. Para edificios pequeños, es recomendable combinar el hall de entrada con la sala de estar, adjuntar un pequeño vestíbulo en frente de la entrada.
La sala está mejor ubicada en el centro de la fachada. Por lo tanto, dividirá la estructura en dos partes, desde allí será posible ingresar a todas las habitaciones de la casa. Para las opciones de dos pisos, el pasillo debe cambiarse a una esquina, luego, a su alrededor, puede planificar una escalera al segundo piso. Es conveniente colocar un armario para ropa de calle y zapatos, para colocar un espejo grande.
La cocina
En la cláusula 2.7.SNiP 2.08.01-89 el ancho de la cocina debe ser de al menos 1.7 my un área de más de 6 m². Esto será suficiente para el área de cocción. Pero para su recepción, es mejor proporcionar al menos 10 m². También es conveniente combinar las instalaciones con la sala de estar, en lugar de particiones, hacer zonificación con una barra de bar.
Es necesario organizar la habitación, teniendo en cuenta las comunicaciones de plomería, más cerca del baño. Aquí debe considerar un buen sistema de ventilación, instale una campana. En la cocina no vale la pena guardar el espacio. En una habitación espaciosa será conveniente cocinar y reunirse en familia para la cena.
Sala de estar
El área mínima de la sala de estar común establecida por los documentos reglamentarios es de 12 m². Se puede combinar con un pasillo y una cocina. Con esta disposición, su cuadratura debe ser aproximadamente tres veces el tamaño del área de la cocina. Con el diseño correcto de la casa, la entrada conduce al pasillo, que se encuentra en la parte central de la casa.
La habitación debe ser la más grande de la casa. Aquí los huéspedes suelen ser bienvenidos, si es necesario, se quedan durante la noche, los residentes mismos pasan su tiempo libre. Uno de los requisitos principales es una buena iluminación, por lo que se instalan varias ventanas grandes en la habitación, se coloca una lámpara de araña en el techo y se proporcionan electrodomésticos adicionales.
Dormitorios
El mismo SNiP 31-02-2001 p. 4.4. establece que el dormitorio debe tener más de 8 m². El tamaño se determina dependiendo de quién pasará la noche en la habitación, la cantidad de muebles planificados. Los padres necesitarán más espacio, ya que muchos aquí equipan armarios, asignan un lugar para trabajar, cuelgan un televisor en la pared e instalan una computadora.
La habitación de invitados requiere menos espacio en el piso. La guardería ofrece un área de juego y trabajo para el estudiante, y varios niños pueden vivir en ella. Las habitaciones deben ubicarse por separado del resto.En una casa compacta de dos pisos para este propósito, puede usar todo el piso. Es mejor planificar las ventanas hacia el este, lo que hará que la habitación sea brillante, no se sobrecalentará en el verano.
Baño y aseo
Según el estándar, el ancho del baño comienza desde 1.5 m, el baño desde 0.8 m, su profundidad - desde 1.2 m. La mejor opción es aislar el local con tabiques. Pero en casas pequeñas sería aconsejable equipar un baño conjunto. Por razones estéticas, las habitaciones no pueden ubicarse en la parte central de la estructura, y la entrada a ellas no debe verse desde la sala de estar.
Al equipar una casa de dos pisos con instalaciones sanitarias, debe tenerse en cuenta que el lugar para las necesidades naturales no debe estar por encima de la sala de estar. Al mismo tiempo, en la planta baja suelen instalar un baño separado completo, y en el segundo piso se combinan, en lugar de un baño ponen una ducha.
Locales de servicios públicos
Los cuartos de servicio se colocan dependiendo de su propósito. Por ejemplo: una despensa para alimentos comestibles, espacios en blanco, utensilios de cocina, es mejor colocarla cerca de la cocina, un vestidor en el dormitorio o en el salón, planchar en la sala de estar, generalmente se puede colocar una máquina automática en el pasillo, escondiéndola en un armario o nicho.
Para lograr este objetivo, puede utilizar lugares poco prometedores, por ejemplo, el espacio debajo de las escaleras. Eso permitirá ahorrar espacio utilizable. En el garaje, sótano seco, puede proporcionar un cuarto de servicio separado para almacenar varios artículos que rara vez se usan.
Distribución del espacio en casas de varios tipos.
La construcción de mansiones y cabañas grandes y voluminosas es una actividad general que requiere inversiones significativas, más gastos de mantenimiento y mantenimiento. La mayoría de las personas eligen estructuras compactas que incluyen todo lo necesario para la vida.Hay dos formas de diseñar una casa: defina su perímetro y llene el espacio interior con habitaciones, o primero haga una lista de habitaciones y luego dibuje los límites de la estructura. Puede realizar acciones usted mismo usando AutoCAD, dibujar en un programa en línea.
Hay muchos planos y varias configuraciones de edificios, pero entre ellos hay varios diseños típicos: 6x6; 8x8; 10x10. En este caso, las estructuras pueden tener:
segundo piso;
el ático
sótano o sótano;
Un garaje.
Tipo 6 a 6
Diseño conveniente de una casa compacta en la que puede colocar solo dos salas de estar, una cocina, un hall de entrada y un baño. La opción es elegida por muchos residentes de verano. Es conveniente vivir aquí para una familia sin hijos o con un niño pequeño. Si el edificio se usa solo como una casa de campo, será un lugar ideal para relajar una pequeña empresa. La gente del pueblo que vive en Jruschov, los apartamentos de una habitación están acostumbrados a las habitaciones pequeñas.
Es aconsejable construir edificios de dos pisos o con un ático. En la parte superior puede equipar la sala de estar y el estudio, y debajo hay un lugar para dos dormitorios. O viceversa, saca dos habitaciones en el segundo piso. Antes de la entrada a la casa se ve una gran terraza, que servirá como cocina de verano. Para ahorrar espacio, el baño se puede equipar en la calle.
Tipo 8 a 8
Una casa de campo de 64 m² es más fácil de planificar. El proyecto puede incluir: una cocina, dos dormitorios, una pequeña sala de estar, un baño, un hall de entrada, cuartos de servicio. Dicha estructura es adecuada para una familia completa de 4 personas. Sería útil combinar la cocina con el salón, que además se utilizará como comedor.
La ubicación de las habitaciones depende en gran medida del propósito del edificio. Para una casa de campo utilizada para recreación, es suficiente para equipar el espacio de la cocina, un salón, un baño, una sala de vapor, un dormitorio. Durante la construcción de un edificio de dos pisos, el número de locales aumentará significativamente.Arriba puede colocar 2-3 dormitorios y un balcón, una oficina, un armario separado. A continuación, también se libera espacio para el garaje, el comedor y otras áreas funcionales.
Tipo 10 a 10
Una casa de un piso con tales dimensiones será autosuficiente. Es fácil organizar una cocina, una sala de estar, un dormitorio y dos guarderías, un vestíbulo, un hall de entrada, una sala de calderas e incluso un lugar para una oficina. Si hay un ático, es posible transferir las habitaciones de los niños al mismo, y en el espacio libre para organizar un área de relajación adicional, baño de vapor, sauna.
Si el plan prevé un segundo piso, la casa será adecuada para varias generaciones de residentes y familias numerosas. Al mismo tiempo, en la planta baja puede organizar un dormitorio separado para la generación más antigua, un salón en el que pueden relajarse y jugar con sus nietos, una cocina y un baño separado. Arriba puede equipar una sala de estar, 2-3 dormitorios para niños, uno para padres, un lugar de trabajo. Hay suficiente espacio para vivir para cualquier deseo de los propietarios.
Estilos y colores para la decoración del hogar.
Al decorar casas, puede utilizar tres áreas principales: moderna, clásica, étnica. El requisito principal: no puede mezclarlos. Consideremos con más detalle:
Moderno:
Minimalismo El forro utiliza color blanco, materias primas naturales con un tono claro. Cosas al menos, todas funcionales.
Escandinavo La base de color es un tono blanco, madera clara, como acento, colores oscuros y brillantes. Hay muchos textiles y accesorios ligeros en el diseño.
Loft Utilizamos materiales naturales, productos sin terminar, ladrillos, tuberías que sobresalen, vigas y columnas distinguidas. Para simular concreto, se usa yeso decorativo.
Clásico:
Moderno Líneas lisas para muebles y revestimientos. El interior se caracteriza por muchos accesorios desprovistos de lujo. La paleta se expresa en tonos naturales.
Provenza Se caracteriza por la comodidad. El diseño de interiores utiliza muchos textiles de colores pastel.La prioridad es un tinte de bronce.
Gótico Apto para hogares con techos altos. El diseño usa tonos oscuros. Vidrieras, elementos tallados, velas son bienvenidas.
Étnico:
Ingles La decoración utiliza colores gris y verde oscuro. Muebles de madera natural con elementos tallados.
Mediterraneo Solo los tonos claros son aplicables. Se utilizan grandes ventanales. El interior se caracteriza por una buena iluminación.
Africano Una gran opción para decorar el espacio. En el forro se utiliza cuero, pieles, bambú. Predominan los colores del desierto.
Cómo ampliar el espacio en una casa pequeña
Los propietarios de casas pequeñas pueden aumentar el espacio visualmente, usar elementos especiales para liberar los metros cuadrados faltantes, combinar varias áreas funcionales en una habitación. Cualquiera de las opciones ayudará a que la vivienda sea más cómoda y acogedora.
Para liberar un área ya pequeña, puede instalar sofás plegables, camas que estén ordenadas en un nicho, equipar entrepisos e instalar estantes abiertos. El televisor se puede colocar en la pared. Use el espacio debajo de los muebles tapizados para almacenar diferentes cosas.
Para agrandar visualmente la habitación, se hace una pared de espejo, se instalan más ventanas, se usan colores claros en la decoración, se usa iluminación artificial. Físicamente, puede aumentar el espacio habitable agregando una veranda simple. Si combina la cocina con la sala de estar, la segunda servirá como comedor.
Conclusión
El diseño de la casa es un momento importante en la vida de cualquier persona, que se acompaña de preocupaciones y dificultades. Para empezar, debe elegir un sitio, realizar una exploración geológica, elaborar un proyecto y luego coordinarlo en diferentes estructuras estatales, obtener todos los permisos para la construcción, las comunicaciones. Pero el resultado vale la pena, porque la casa es el sueño del propietario que decidió construirla.
Tener su propio rincón es un sueño brillante y sincero de cada persona. Alguien compra un edificio o departamento ya terminado, otros adquieren una parcela, planifican la casa, obtienen un permiso de construcción. La construcción de una nueva mansión o casa de campo, aunque está asociada con dificultades e inconvenientes temporales, pero el resultado vale la pena.
La estructura completa corresponderá a las ideas, gustos y deseos de su propietario. Cerca de una casa acogedora, cálida, grande o compacta en el patio puede haber una casa de baños, un garaje, una cocina de verano, un parque infantil, un cenador, macizos de flores y otros elementos decorativos funcionales. La comodidad y las comodidades de la vivienda dependerán en gran medida de un proyecto diseñado adecuadamente.
Contenido
Características de la planificación durante el diseño.
La construcción de una hermosa casa de madera o ladrillo se basa en un proyecto aprobado, que incluye su diseño. A menudo, al elaborar un plan, solo se tienen en cuenta las necesidades actuales, que pueden cambiar de vez en cuando. Es importante comprender y recordar que la estructura funcionará durante más de uno, dos años o incluso una década. Con el tiempo, la familia puede crecer, aparecerán nuevos planes, necesidades, deseos y las capacidades físicas de los propietarios cambiarán con los años.
Al desarrollar el esquema, es necesario adherirse no solo a las normas y estándares existentes, sino también a tener en cuenta la funcionalidad de las premisas, su ubicación racional y óptima, para que en una determinada etapa de la vida no se decepcione con la elección. Por ejemplo, si es relevante que un bebé coloque la habitación de un niño con una entrada desde la habitación de los padres, a medida que crezca, ese diseño será inaceptable para todos los hogares.
La conveniencia de vivir no se ve afectada por el tamaño de la estructura, sino por la ubicación verificada del interior. Cada miembro de la familia debe tener su propio rincón separado, donde podría participar en su querido e interesante negocio, sin distraer a los demás. Por lo tanto, antes de contactar a un arquitecto, tomar un proyecto terminado, hacer un boceto de forma independiente, es necesario reunir un consejo familiar y tener en cuenta la opinión de todos.
Zona óptima de la casa
Una casa privada, especialmente una casa de campo, puede construirse espaciosa y cómoda, mientras se gasta casi la misma cantidad que la compra de un apartamento. Dependiendo de los deseos de los propietarios, se determina el presupuesto disponible, el número de residentes permanentes, el tamaño de las habitaciones, el área de la estructura futura. Aquí puede colocar una habitación separada para cada miembro de la familia, una espaciosa sala de estar, comedor, uno o más baños, una cocina, una sala de calderas, una oficina, un garaje, una sala de billar y otras habitaciones funcionales.
Con fondos ilimitados, la lista es fácil de continuar. La mayoría de los ciudadanos dependen de ciertos fondos disponibles. Por lo tanto, la lista de habitaciones requeridas debe ser óptima; solo se deben mostrar las habitaciones más necesarias. Si esto no se hace, todo lo que se desea se incluye en el proyecto, entonces al final simplemente no habrá suficiente energía o dinero para completar la construcción, el proceso se prolongará durante mucho tiempo.
Los parámetros de la casa dependen directamente del número de habitaciones y sus tamaños. Estos indicadores determinan el costo de las facturas de servicios públicos. Es necesario planificar la estructura de manera muy racional, sin restringir a los residentes permanentes. Para una estancia confortable, se calcula un promedio de 30 m² por persona.
Ubicación de la casa en la parcela.
Antes de continuar con la construcción, es necesario realizar estudios geológicos del sitio, durante los cuales se determina el nivel de ocurrencia de agua subterránea, composición del suelo y características del paisaje. Estos datos se transfieren al arquitecto, considerados de forma independiente.La elección de los materiales de construcción, la posibilidad de incluir en el proyecto un sótano ubicado debajo de la casa, que conduzca a la construcción de servicios subterráneos, depende de ellos.
Al planificar la colocación de una casa en un sitio, primero observan las reglas aprobadas. Por ejemplo, en SP 30-102-99 en el párrafo 5.3.2, las distancias desde un edificio residencial, la línea roja de calles y las entradas están claramente definidas. En el primer caso, es de 5 m, en el segundo - 3 m. Las dependencias para ambas opciones deben estar separadas al menos 5 m. En el párrafo 5.3.4. Se identifican todas las hendiduras del sitio vecino y los edificios ubicados en él. El código también indica las normas para todos los edificios domésticos y dependencias ubicadas en el territorio.
Un factor importante es la ubicación de la casa en relación con los puntos cardinales. La ubicación óptima será cuando las ventanas miren hacia el sur, suroeste, lado sureste. En la dirección norte debe haber una pared en blanco, habitaciones no residenciales con pequeñas ventanas. Esto proporcionará no solo una buena iluminación natural durante el día, sino que también le permitirá mantenerse caliente durante el invierno.
Planificación de altura de techo en proyectos
El cálculo de este parámetro se realiza teniendo en cuenta los valores mínimos especificados en SNiP 2.08.01-89 en el párrafo 1.1., Donde se estipula que la distancia desde el piso hasta el techo debe ser de al menos 2.5 my para edificios residenciales con fines sociales no más de 2, 8 my 3.0 m, la altura de los pasillos interiores es de 2.1 m. Según SNiP 31-02-2001 p. 4.5, la altura de la cocina, así como de la vivienda, es de al menos 2.5 m, en algunos casos determinada por el desarrollador, más de 2 , 3 m, en los pasillos - desde 2.1 m.
Dadas las reglas establecidas, el propietario debe decidir qué altura será óptima para él. Los techos demasiado bajos reducirán visualmente el espacio, causando depresión e incomodidad. Demasiada distancia arruinará el aspecto de cualquier habitación, será difícil cuidar el techo, durante la construcción se dejarán más materiales, el área calentada aumentará.
Para no crear una sensación de vacío en la habitación, sino para pasar tiempo aquí de manera cómoda y cómoda, es aconsejable encontrar un punto medio, elija el parámetro óptimo dentro de 2.5 - 3.2 m. En este caso, debe tener en cuenta la altura de la persona, el área de las habitaciones, el tipo de techo acabados y electrodomésticos, preferencias personales de todos los miembros de la familia.
Diseño de ventana de una casa de campo
Para cumplir con los requisitos sanitarios y epidemiológicos, de acuerdo con SNiP 31-02-2001, cláusula 8.9 sobre la provisión de iluminación natural, la relación entre las aberturas de las ventanas y el área del piso para la cocina y las instalaciones residenciales debe ser de más de 1 parte a 8, respectivamente, para los pisos del ático, al menos 1 : 10. No hay restricciones en el tamaño de las ventanas. En algunos casos, es apropiado instalar grandes ventanas modernas de doble acristalamiento sin preocuparse por la posible pérdida de calor.
Al organizar las aberturas de ventanas, vale la pena considerar los puntos cardinales. Por ejemplo, para el dormitorio y la guardería, la dirección este es la mejor opción, en la cocina y el baño, el norte, la sala de estar, el este y el sur, el corredor y la sala de calderas, el oeste. Esto se debe a los detalles de las habitaciones. Los rayos del sol no caen en las ventanas que miran hacia el norte, mientras que hay un exceso de ellos en las estructuras del sur.
Una gran cantidad de ventanas proporcionarán no solo iluminación y aire fresco, sino también una vista al patio. Existe la oportunidad de observar lo que sucede en la calle, las acciones de los niños, los transeúntes. Si el área lo permite, es aconsejable planificar, en lugar de una ventana grande, varias, incluso no estándar, la apariencia del edificio solo se beneficiará de esto, pero no exagere.
Elegir un proyecto de casa
A diferencia de los apartamentos estándar ubicados en edificios de varios pisos, su propio edificio residencial puede tener cualquier número de habitaciones, de uno o dos pisos, incluso hay edificios en tres pisos. Muchos prefieren modelos con una terraza, un balcón, una terraza y unen varias estructuras funcionales una al lado de la otra. Al mismo tiempo, las viviendas difieren en forma. Hay opciones cuadradas, rectangulares, con un diseño no estándar.
El plan puede incluir un ático y planta baja.En el espacio ubicado debajo del techo, generalmente equipan un dormitorio, una guardería, una oficina, un baño. El sótano se utiliza principalmente para las necesidades del hogar, aquí se colocan varias comunicaciones, se diseña una sala de billar o deportes, un garaje o una sala de calderas.
El tamaño y la cantidad de pisos de viviendas se ven afectados por el área del sitio, la cantidad de personas que viven en él. Las familias numerosas de varias generaciones dan preferencia a los edificios de dos pisos, que brindan comodidad y una ubicación separada para todos los hogares. Si la familia es pequeña, entonces la construcción compacta será suficiente.
Casa de una planta
Es más fácil construir y planificar viviendas de un piso que los modelos de varios niveles. Los edificios grandes son adecuados para personas que poseen un área de tierra correspondiente, así como para familias amigables. El edificio debe contener una lista estándar de habitaciones:
Al redactar un proyecto, es aconsejable cumplir con ciertas recomendaciones y reglas:
Casa de dos pisos
En un área pequeña, la construcción de una gran vivienda de un piso se vuelve imposible e irracional.Incluso en áreas grandes será apropiado erigir una estructura de varios pisos, especialmente una buena opción para una familia numerosa. Al construir una casa de dos pisos, el propietario recibe las siguientes ventajas:
Tal estructura no está exenta de pequeños defectos:
Al planificar salas, salas de servicios públicos, deben dividirse correctamente entre pisos. Por lo general, en la planta baja hay un vestíbulo, un hall de entrada, una sala de estar, una cocina, una sala de calderas, un baño y un tramo de escaleras. Si el área del edificio lo permite, aún puede agregar una oficina, comedor, dormitorio de invitados. El segundo piso se usa principalmente para dormitorios, guarderías, un hall, un armario, a veces se instala un baño adicional.
Casa con buhardilla
El equipamiento del espacio del ático para necesidades de vivienda le permite aumentar el área útil de la estructura. Esta es una opción de presupuesto, que es una alternativa a las estructuras de dos pisos. La construcción tiene un peso relativamente bajo, lo que permite ahorrar en los cimientos. Por lo general, en el ático colocan un dormitorio, una guardería, una oficina.
Al organizar el espacio debajo del techo, se debe prestar especial atención al aislamiento, la impermeabilización y la barrera de vapor. La temperatura en la habitación dependerá de estas acciones, tanto con un cambio diario de temperatura como estacional. Las ventanas inclinadas deben estar equipadas con ventanas especiales de doble acristalamiento para crear una buena iluminación.
Sin embargo, este piso no está exento de inconvenientes, a saber:
Casa de dos habitaciones
Una casa compacta es muy adecuada para una familia pequeña de dos. Para elaborar un proyecto, puede considerar el diseño de apartamentos estándar en un edificio de gran altura. En el plan es necesario organizar racionalmente las dos salas principales, asignando el área más grande debajo de ellas. En algunos casos, será conveniente combinar la cocina con la sala de estar, que se utilizará simultáneamente como comedor.
En un edificio pequeño, un baño, sala de calderas, cocina debe estar a un lado del edificio, y las viviendas están separadas por un pasillo. Es conveniente usar entrepisos, despensas, espacio debajo de muebles tapizados, sillas para guardar cosas. Se debe proporcionar una cama adicional en el pasillo, se debe instalar un sofá plegable o una cama que se pueda ocultar en un nicho.
Al construir una casa de dos pisos, dos habitaciones principales están equipadas desde arriba, desde abajo hay un lugar adicional para expandir el espacio de la cocina, colocando un armario completo. En el pasillo ampliado, en lugar de una percha, hay un armario.
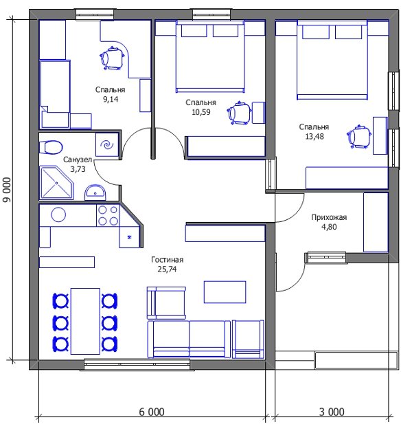
Casa de tres habitaciones
La construcción, que consta de tres habitaciones, se puede llamar completa. Puede acomodar fácilmente a una familia con dos hijos. Hay muchos proyectos de edificios de tres habitaciones. Hay opciones con una sala de estar, desde la cual puede acceder a dos dormitorios y una cocina. Pero es mejor dar preferencia a los modelos con una disposición separada de habitaciones, para que todos los hogares, los huéspedes que se quedan por la noche, se sientan cómodos.
La única diferencia de la casa de dos dormitorios es la presencia de otro dormitorio. En consecuencia, el área de la casa aumentará en al menos 8 metros cuadrados. Es mejor colocar el hall de entrada en el centro de la estructura para que lo divida en dos partes iguales. Por un lado, puede organizar dos dormitorios, por otro, un hall, una cocina, un baño, una sala de calderas, un armario.Si hay un ático, la sala de estar se transfiere al piso superior.
La disposición de las habitaciones en la casa.
Los muchos años de experiencia de los arquitectos, como la mayoría de los ciudadanos comunes, muestran que no es deseable usar cuartos de paso en la casa, y es necesario planificar y construir viviendas no solo teniendo en cuenta las necesidades actuales, sino también los planes para el futuro. Al elaborar un dibujo, se deben cumplir ciertas reglas y recomendaciones, a saber:
Corredor
Según SNiP 31-02-2001 p. 4.4. El ancho de la antesala debe ser de al menos 1,4 m, de los corredores interiores, desde 0,85 m. Teniendo en cuenta estos datos, así como el hecho de que todos los muebles se introducen a través de esta sala, se selecciona su área óptima. Para edificios pequeños, es recomendable combinar el hall de entrada con la sala de estar, adjuntar un pequeño vestíbulo en frente de la entrada.
La sala está mejor ubicada en el centro de la fachada. Por lo tanto, dividirá la estructura en dos partes, desde allí será posible ingresar a todas las habitaciones de la casa. Para las opciones de dos pisos, el pasillo debe cambiarse a una esquina, luego, a su alrededor, puede planificar una escalera al segundo piso. Es conveniente colocar un armario para ropa de calle y zapatos, para colocar un espejo grande.
La cocina
En la cláusula 2.7.SNiP 2.08.01-89 el ancho de la cocina debe ser de al menos 1.7 my un área de más de 6 m². Esto será suficiente para el área de cocción. Pero para su recepción, es mejor proporcionar al menos 10 m². También es conveniente combinar las instalaciones con la sala de estar, en lugar de particiones, hacer zonificación con una barra de bar.
Es necesario organizar la habitación, teniendo en cuenta las comunicaciones de plomería, más cerca del baño. Aquí debe considerar un buen sistema de ventilación, instale una campana. En la cocina no vale la pena guardar el espacio. En una habitación espaciosa será conveniente cocinar y reunirse en familia para la cena.
Sala de estar
El área mínima de la sala de estar común establecida por los documentos reglamentarios es de 12 m². Se puede combinar con un pasillo y una cocina. Con esta disposición, su cuadratura debe ser aproximadamente tres veces el tamaño del área de la cocina. Con el diseño correcto de la casa, la entrada conduce al pasillo, que se encuentra en la parte central de la casa.
La habitación debe ser la más grande de la casa. Aquí los huéspedes suelen ser bienvenidos, si es necesario, se quedan durante la noche, los residentes mismos pasan su tiempo libre. Uno de los requisitos principales es una buena iluminación, por lo que se instalan varias ventanas grandes en la habitación, se coloca una lámpara de araña en el techo y se proporcionan electrodomésticos adicionales.
Dormitorios
El mismo SNiP 31-02-2001 p. 4.4. establece que el dormitorio debe tener más de 8 m². El tamaño se determina dependiendo de quién pasará la noche en la habitación, la cantidad de muebles planificados. Los padres necesitarán más espacio, ya que muchos aquí equipan armarios, asignan un lugar para trabajar, cuelgan un televisor en la pared e instalan una computadora.
La habitación de invitados requiere menos espacio en el piso. La guardería ofrece un área de juego y trabajo para el estudiante, y varios niños pueden vivir en ella. Las habitaciones deben ubicarse por separado del resto.En una casa compacta de dos pisos para este propósito, puede usar todo el piso. Es mejor planificar las ventanas hacia el este, lo que hará que la habitación sea brillante, no se sobrecalentará en el verano.
Baño y aseo
Según el estándar, el ancho del baño comienza desde 1.5 m, el baño desde 0.8 m, su profundidad - desde 1.2 m. La mejor opción es aislar el local con tabiques. Pero en casas pequeñas sería aconsejable equipar un baño conjunto. Por razones estéticas, las habitaciones no pueden ubicarse en la parte central de la estructura, y la entrada a ellas no debe verse desde la sala de estar.
Al equipar una casa de dos pisos con instalaciones sanitarias, debe tenerse en cuenta que el lugar para las necesidades naturales no debe estar por encima de la sala de estar. Al mismo tiempo, en la planta baja suelen instalar un baño separado completo, y en el segundo piso se combinan, en lugar de un baño ponen una ducha.
Locales de servicios públicos
Los cuartos de servicio se colocan dependiendo de su propósito. Por ejemplo: una despensa para alimentos comestibles, espacios en blanco, utensilios de cocina, es mejor colocarla cerca de la cocina, un vestidor en el dormitorio o en el salón, planchar en la sala de estar, generalmente se puede colocar una máquina automática en el pasillo, escondiéndola en un armario o nicho.
Para lograr este objetivo, puede utilizar lugares poco prometedores, por ejemplo, el espacio debajo de las escaleras. Eso permitirá ahorrar espacio utilizable. En el garaje, sótano seco, puede proporcionar un cuarto de servicio separado para almacenar varios artículos que rara vez se usan.
Distribución del espacio en casas de varios tipos.
La construcción de mansiones y cabañas grandes y voluminosas es una actividad general que requiere inversiones significativas, más gastos de mantenimiento y mantenimiento. La mayoría de las personas eligen estructuras compactas que incluyen todo lo necesario para la vida.Hay dos formas de diseñar una casa: defina su perímetro y llene el espacio interior con habitaciones, o primero haga una lista de habitaciones y luego dibuje los límites de la estructura. Puede realizar acciones usted mismo usando AutoCAD, dibujar en un programa en línea.
Hay muchos planos y varias configuraciones de edificios, pero entre ellos hay varios diseños típicos: 6x6; 8x8; 10x10. En este caso, las estructuras pueden tener:
Tipo 6 a 6
Diseño conveniente de una casa compacta en la que puede colocar solo dos salas de estar, una cocina, un hall de entrada y un baño. La opción es elegida por muchos residentes de verano. Es conveniente vivir aquí para una familia sin hijos o con un niño pequeño. Si el edificio se usa solo como una casa de campo, será un lugar ideal para relajar una pequeña empresa. La gente del pueblo que vive en Jruschov, los apartamentos de una habitación están acostumbrados a las habitaciones pequeñas.
Es aconsejable construir edificios de dos pisos o con un ático. En la parte superior puede equipar la sala de estar y el estudio, y debajo hay un lugar para dos dormitorios. O viceversa, saca dos habitaciones en el segundo piso. Antes de la entrada a la casa se ve una gran terraza, que servirá como cocina de verano. Para ahorrar espacio, el baño se puede equipar en la calle.
Tipo 8 a 8
Una casa de campo de 64 m² es más fácil de planificar. El proyecto puede incluir: una cocina, dos dormitorios, una pequeña sala de estar, un baño, un hall de entrada, cuartos de servicio. Dicha estructura es adecuada para una familia completa de 4 personas. Sería útil combinar la cocina con el salón, que además se utilizará como comedor.
La ubicación de las habitaciones depende en gran medida del propósito del edificio. Para una casa de campo utilizada para recreación, es suficiente para equipar el espacio de la cocina, un salón, un baño, una sala de vapor, un dormitorio. Durante la construcción de un edificio de dos pisos, el número de locales aumentará significativamente.Arriba puede colocar 2-3 dormitorios y un balcón, una oficina, un armario separado. A continuación, también se libera espacio para el garaje, el comedor y otras áreas funcionales.
Tipo 10 a 10
Una casa de un piso con tales dimensiones será autosuficiente. Es fácil organizar una cocina, una sala de estar, un dormitorio y dos guarderías, un vestíbulo, un hall de entrada, una sala de calderas e incluso un lugar para una oficina. Si hay un ático, es posible transferir las habitaciones de los niños al mismo, y en el espacio libre para organizar un área de relajación adicional, baño de vapor, sauna.
Si el plan prevé un segundo piso, la casa será adecuada para varias generaciones de residentes y familias numerosas. Al mismo tiempo, en la planta baja puede organizar un dormitorio separado para la generación más antigua, un salón en el que pueden relajarse y jugar con sus nietos, una cocina y un baño separado. Arriba puede equipar una sala de estar, 2-3 dormitorios para niños, uno para padres, un lugar de trabajo. Hay suficiente espacio para vivir para cualquier deseo de los propietarios.
Estilos y colores para la decoración del hogar.
Al decorar casas, puede utilizar tres áreas principales: moderna, clásica, étnica. El requisito principal: no puede mezclarlos. Consideremos con más detalle:
Moderno:
Clásico:
Étnico:
Cómo ampliar el espacio en una casa pequeña
Los propietarios de casas pequeñas pueden aumentar el espacio visualmente, usar elementos especiales para liberar los metros cuadrados faltantes, combinar varias áreas funcionales en una habitación. Cualquiera de las opciones ayudará a que la vivienda sea más cómoda y acogedora.
Para liberar un área ya pequeña, puede instalar sofás plegables, camas que estén ordenadas en un nicho, equipar entrepisos e instalar estantes abiertos. El televisor se puede colocar en la pared. Use el espacio debajo de los muebles tapizados para almacenar diferentes cosas.
Para agrandar visualmente la habitación, se hace una pared de espejo, se instalan más ventanas, se usan colores claros en la decoración, se usa iluminación artificial. Físicamente, puede aumentar el espacio habitable agregando una veranda simple. Si combina la cocina con la sala de estar, la segunda servirá como comedor.
Conclusión
El diseño de la casa es un momento importante en la vida de cualquier persona, que se acompaña de preocupaciones y dificultades. Para empezar, debe elegir un sitio, realizar una exploración geológica, elaborar un proyecto y luego coordinarlo en diferentes estructuras estatales, obtener todos los permisos para la construcción, las comunicaciones. Pero el resultado vale la pena, porque la casa es el sueño del propietario que decidió construirla.