Para muchas personas, desde propietarios de casas privadas, instituciones públicas hasta servidores públicos, la cuestión de cómo colocar losas de pavimento es bastante relevante. Después de todo, utilizando ladrillos artificiales, puede ennoblecer el patio, diseñar caminos, crear áreas convenientes cerca de edificios, pavimentar la calle o la acera. El material es bastante popular, en demanda. Gracias a una gran selección de formas, colores y tamaños, le permite crear no solo mampostería estándar, sino incluso crear un adorno 3D, diseñar diferentes patrones, formas y otros elementos que difieren en color del fondo principal.
La disposición de grandes instalaciones públicas se lleva a cabo por equipos de trabajo con equipos especiales, pero los propietarios de su pequeña área contigua pueden hacer frente al trabajo de forma independiente sin recurrir a la ayuda de especialistas o tecnologías sofisticadas.Esto ahorrará el presupuesto familiar, ganará experiencia útil. Lo principal es seguir instrucciones e instrucciones para que el resultado del trabajo traiga placer estético, es una cuestión de orgullo.
El material de construcción se ha demostrado en paisajismo, ya sea acceso al garaje o estacionamiento, jardín o sendero peatonal, complementando el paisaje de un país, área suburbana o parque público. La colocación de baldosas en diferentes áreas ha sido posible gracias a sus ventajas sobre las opciones alternativas de recubrimiento:
Es inmune a los cambios de temperatura, lo que le permite ser utilizado en diferentes zonas climáticas. A diferencia del asfalto, el material de construcción no se deforma cuando se calienta, no emite sustancias nocivas.
La superficie es resistente a la abrasión, y cuando se coloca, el ladrillo es lo suficientemente fuerte como para soportar cargas significativas.
Se caracteriza por una larga vida útil, que es de 15-20 años.
Se distingue del peso pequeño del paño, de bajo costo.
Es fácil de montar, realizar trabajos de reparación, en caso de daños a elementos individuales, desmóntelo si es necesario para acceder a los servicios públicos subterráneos.
Este es un producto ecológico, se utilizan materias primas naturales en su producción.
Tiene una apariencia atractiva, una amplia variedad de formas, muchos métodos de estilo.
El agua no se acumula en el plano pavimentado, parcialmente va al suelo a través de las uniones entre los bloques, los desagües hacia un lado, debido a una ligera pendiente, se descargan mediante canales de pavimentación.
La dificultad radica en el hecho de que el proceso de instalación es lento, ya que se realiza manualmente, y los bloques colocados incorrectamente se caerán.
Dependiendo de la carga ejercida sobre la superficie del lienzo, se selecciona el grosor del producto. 3-5 cm son suficientes para peatones, y 6-8 cm para automóviles, 8-10 cm para camiones.
Especie
Las losas varían de muchas maneras. Se puede hacer de diferentes materias primas, difieren en formas, tamaños, grosores, colores, método de producción. Si consideramos los componentes que componen la mezcla de concreto, podemos distinguir los siguientes tipos:
Hormigón Un producto estándar que consiste en una mezcla de cemento, arena, agua.
De una piedra natural. El más caro, hecho de mármol, fracciones de piedra natural.
Clinker Hecho de arcilla quemada.
Adoquines Incluye chips de granito.
Con relleno de goma. Tiene una superficie suave, que permite su colocación en terrenos infantiles y deportivos.
Arena polimérica. En lugar de cemento, se utiliza PVD (polietileno de alta presión).
Con un patrón tridimensional. Usando moldes, la impresión fotográfica se aplica a la cara superior, así como un recubrimiento protector especial.
Con refuerzo. Está hecho solo por vibrocasting. La composición agregó refuerzo plano o malla de fibrina.
El producto terminado se produce por tres métodos principales:
fundición por vibración;
vibrocompresión;
hiperpresion
Dimensiones
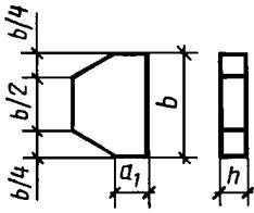
Los fabricantes producen una amplia gama de productos que difieren en sus parámetros. Cada modelo específico tiene sus propias dimensiones. Usando la tabla como ejemplo, consideramos los tipos más populares de losas de pavimento de acuerdo con GOST 17608-91, que tienen sus propias características de altura - h, longitud - a, ancho - b.
Nombre
Dibujo
Longitud
Ancho
Altura h (mm)
un mm
A1 mm
b mm
Para peatones
Con posibilidad de facturar coches
Con posibilidad de facturar camiones
Square
200
—
200
50
60
80
250
250
100
280
280
300
300
375
375
70
400
400
500
500
750
750
60
80
1000
1000
80
100
Rectángulo
240
—
120
70
70
100
375
250
50
60
70
500
250
500
375
750
375
60
750
500
1000
1000
80
80
Hexágono
250
—
432
50
60
100
375
648
70
500
865
60
80
Adicional pentagonal
125
125
432
50
60
100
187
375
648
70
250
250
865
60
80
Cuadrangular adicional
—
216
500
50
60
100
324
750
70
433
1000
60
80
La tabla muestra algunos de los principales estándares. También hay varios patrones decorativos y rizados. Cada fabricante individual produce sus propios productos de acuerdo con su propio desarrollo, por lo que los parámetros del producto a menudo no cumplen con los estándares generales.
Forma
Hay muchas opciones para losas de pavimento, que difieren en textura, disposición mutua de bordes. Su forma en la mayoría de los casos depende del material utilizado en la fabricación del producto final:
La piedra natural es difícil de procesar, por lo que el pavimento de granito tiene una forma limitada. Por el método de procesamiento de materias primas, se pueden distinguir: adoquines aserrados: cortar en la imagen de un cuadrado o rectángulo con superficies lisas; astillado - formado como resultado de romper una sola pieza de piedra de granito en partes pequeñas, tiene una textura desigual; aserrado astillado: la forma se forma aserrando, por lo que es conveniente colocarla y la cara superior difiere en relieve.
Los mosaicos de clínker tienen una pequeña selección de formas, en su mayoría opciones rectangulares, su costo es varias veces más costoso que sus contrapartes de concreto, la paleta de colores está limitada por el rango de tonos rojos y amarillos, se usa extremadamente raramente.
Los productos de cemento estándar están representados por una amplia gama de modelos; difieren tanto externamente como en tamaño. Muchas especies tienen nombres que corresponden a ciertos parámetros.
Consideremos algunas opciones:
Clasico Está representado por un cuadrado, tiene una gran selección de colores en la superficie exterior.
Un ladrillo Exteriormente similar a un ladrillo, pero más pequeño, le permite crear varias combinaciones de colocación.
Parquet Adoquines cuadrados con patrón de parquet en varias tablas.
Caso Se caracteriza por la presencia de un adorno gótico.
La ola Tiene líneas laterales curvas, lo que contribuye a un mejor agarre.
Trébol Rombo con lados redondeados.
Telaraña Tiene un patrón que imita una web.
Bobina Recuerda una bobina estándar, con repisas en los extremos.
Galtovannaya Se caracteriza por bordes redondeados.
Escalas Parece una escama de pescado.
Una nube Artículos cuadrados con una superficie decorativa como las nubes.
Flor Una plaza con una imagen de margaritas.
Frontera Protege los límites del sitio, los caminos, le da un aspecto final al lienzo establecido.
Escurrir Un elemento especial diseñado para drenar el agua.
Material de producción
La apariencia, el tamaño y la disposición de los bordes son características importantes de este artículo. Pero la durabilidad, las propiedades técnicas del producto dependen de la materia prima de la que están hechas las losas. Analizaremos con más detalle los tipos de materiales utilizados en la producción:
Piedra natural. Para el trabajo, use granito, mármol basalto. Se caracteriza por su durabilidad, resistencia al desgaste, inmunidad a la humedad, diferencias de temperatura. Las únicas desventajas son el alto costo, la complejidad del procesamiento de material natural.
Mezclas de hormigón coloreado. Se componen de cemento de grado no inferior a M400 y arena. Para mejorar las características, como la resistencia, la resistencia a las heladas, la higroscopicidad, las impurezas especiales y los aditivos en forma de piedra triturada, arcilla expandida, fibra, aditivos especiales, plastificantes se agregan a la composición.
Clinker El producto se obtiene cociendo a alta temperatura arcillas refractarias de esquisto. Utilizado para pavimentar caminos, pisos industriales. Cuenta con una pequeña selección de colores, cuesta 5 veces más que sus contrapartes de hormigón.
Arena polimérica.El 75% consiste en arena de cuarzo tamizada, el resto son polímeros: poliestireno, polipropileno. El producto terminado es capaz de soportar cambios de temperatura de - 70 a + 100 ° C. La plasticidad de las materias primas evita la formación de microgrietas, lo que conduce a la destrucción de adoquines.
Color
El mercado de la construcción ofrece una gran selección de diferentes colores de adoquines, lo que le permite resolver cualquier problema de diseño. Sin embargo, dependiendo de los colorantes utilizados en la producción, se determina la resistencia a la decoloración. Lo mejor son los pigmentos naturales, como el hollín, que le da al azulejo un color negro, una mezcla de óxidos de hierro, un color rojo.
El amarillo y sus tonos también se consideran bastante estables, sin embargo, debido al constante asentamiento del polvo, la superficie adquiere un color gris. Los tintes azul y verde sufren el peor de los factores ambientales, pueden pasar menos de dos años antes de que el material adquiera un tono gris.
Por separado, vale la pena señalar la piedra natural y el clínker. Son de color limitado, pero con el tiempo no cambia. Los ladrillos de hormigón se pintan en el proceso de producción de dos maneras:
Superficial Alquídico, se utilizan tintes de poliuretano. La pintura se realiza sobre la acera tendida o sobre productos terminados. Le permite cambiar el color del revestimiento terminado, aumentar la resistencia, la resistencia al desgaste.
Penetrante. El pigmento se agrega directamente a la solución. Se utilizan tintes naturales y artificiales.
Es mejor usar elementos colorantes naturales. Tales sustancias no pierden color, no se desvanecen bajo la influencia de la luz solar, tienen un impacto menos negativo en las propiedades del producto terminado.
Reglas y diseños
El diseño del producto terminado depende del tipo particular de adoquines, su color, la presencia de un patrón, relieve, tamaño. La apariencia del recubrimiento depende del método de instalación. Además, el diseño del lienzo debe combinarse con el paisaje.Considere las muestras de mampostería más populares:
Lineal También este método se llama clásico, cuchara, manojo de ladrillos. La vista estándar de la mampostería con una imagen sencilla. La pavimentación se puede hacer de dos maneras: sin turno; Con desplazamiento. La primera opción se usa extremadamente raramente, ya que reduce las características de carga del lienzo. El segundo método es el más común. La condición principal para la colocación: las juntas no deben coincidir, de acuerdo con el principio de construir una pared de ladrillo ordinaria. El desplazamiento puede ser medio y tres cuartos, además de jugar con flores, puede obtener un patrón diagonal y de oruga.
Lineal-angular. La capacidad de carga de la superficie aumenta, por lo que este método se usa bien en lugares con mayor carga. Dependiendo de la ubicación de los elementos, se pueden distinguir dos esquemas principales: espiga y trenza. En el primer caso, los ladrillos rectangulares deben colocarse en filas en un ángulo de 45 °, mientras que cada elemento posterior ubicado en la misma curva está en contacto con una media cuchara del anterior presionando. En la segunda realización, el método de pavimentación no difiere del anterior, solo la loseta se ubica en un ángulo recto de 90 °.
Blocky El ladrillo se hace en bloques. Puede apilar módulos de dos elementos, alternando su disposición horizontal y vertical, así como apilar pares a través de un ladrillo perpendicular. En el primer caso, usando solo dos colores, se obtiene un tablero de ajedrez.
Diseño aleatorio Una excelente opción, los azulejos se utilizan "Old Town", "Brick", "Classic Rusto", losa. Los elementos se colocan en orden aleatorio, lo que le permite crear una imagen original y única.
Espiral, circular. Uno de los mas dificiles. Los componentes están dispuestos en forma de círculo o cuadrado.
Artístico Debido a los diferentes colores, la combinación de diferentes métodos, un esquema de diseño detallado, puede diseñar hermosos dibujos, adornos, formas geométricas.
Cómo mosaico
Sin saber por dónde empezar, el trabajo puede parecer complicado, problemático. Pero si comprende todas las complejidades, es muy posible hacerlo usted mismo, sin recurrir a la ayuda de especialistas. El proceso comienza con la elaboración de un dibujo, la preparación de materiales, herramientas, luego se toman los pasos para equipar la base, rellenar las almohadas, instalar el bordillo, instalar el lienzo superior, rejuntar las juntas. Consideramos en detalle cada etapa.
Materiales y herramientas necesarios.
Es muy importante preparar todo lo necesario para su implementación antes de comenzar a trabajar. Estas acciones posteriormente ahorrarán tiempo, no tendrá que distraerse con la búsqueda de elementos faltantes. Además, al comprar baldosas, se recomienda proporcionar su suministro, ya que puede romperse al moverse, durante la instalación, cuando se contrae con un martillo de goma. Para no perderse nada, debe familiarizarse con los materiales y las herramientas utilizadas para realizar el trabajo:
arena, piedra triturada, cemento;
geotextiles;
losas de pavimento, elementos de borde, ciruelas;
hormigonera o baño antiguo, para mezclar el mortero;
molinillo
disco rociado para cortar hormigón;
carretilla
manipulación manual, eléctrica;
bayoneta y pala;
llana, regla larga y corta;
cubo, escoba;
nivel, cinta métrica;
rastrillo para nivelar materiales a granel;
mazo ordinario y de goma;
hilo fuerte;
tubos redondos, perfil especial para balizas;
clavijas de metal.
Diseño para la colocación
El trabajo de mejora del territorio comienza con un diseño claro. Por supuesto, si solo se considera un país pequeño, se considera el camino del jardín, entonces todo se puede calcular en la mente, pero al pavimentar áreas grandes, no se puede prescindir de un esquema.
Una vez hecho un plan, puede comenzar a marcar el territorio. Esto requerirá un nivel de construcción, cinta métrica, hilo fuerte, clavijas de metal o piezas de refuerzo.Primero, se toman medidas. Deben comenzar desde la esquina de la estructura con la que el lienzo entrará en contacto. Si no hay ninguno, entonces las apuestas se dirigen a la parte superior del sitio en cuestión.
Después del marcado preliminar, es necesario realizar medidas adicionales para instalar clavijas auxiliares a una distancia de 1.5 - 2 m, lo que ayudará en el futuro a organizar correctamente las filas, alinear las costuras, colocar las piezas. Se estira un hilo entre las estacas de metal en el nivel, mientras que se debe proporcionar una ligera pendiente en uno de los lados, donde se ubicarán los desagües. No pierda de vista la parte del avión ocupada por los bordillos.
Preparación de la superficie: capa protectora y dispositivo de drenaje
Después de marcar el sitio, es necesario preparar la base. Para esto, se elimina la parte superior del suelo. Dependiendo de la capa de la almohada, la profundidad del pozo puede ser de 40-50 cm. Además, la superficie del receso se limpia de raíces, se nivela, la tierra se compacta con un golpe manual. Está cubierto con tejido geográfico en la parte superior, evitando la germinación de vegetación innecesaria.
Es muy importante considerar y equipar el dispositivo de drenaje. En suelos arcillosos, donde el agua subterránea no es profunda, se forma una pendiente en la etapa de excavación y se instalan tuberías de drenaje. Si el suelo consiste en arenisca, absorbe rápidamente la humedad, es suficiente para llevar a cabo la pendiente del lienzo en uno de los lados, así como para proporcionar la presencia de sistemas de drenaje, desagües.
Después de completar el trabajo preparatorio, comienza a formarse la primera capa de drenaje de la torta. Para hacer esto, se llenan 10-30 cm de grava finamente fina o tamices, se nivela con un rastrillo y se apisona.
Instalación de un borde o bordillo
El bordillo no solo le da al sitio una hermosa vista, lo protege, sino que también arregla el mosaico, no le permite gatear. Se instala a lo largo del camino en el jardín, a lo largo del perímetro del avión ubicado cerca de la casa, las instituciones públicas.La fijación correcta de la acera es una de las etapas difíciles; requiere la máxima precisión y atención. Los bloques deben elevarse por encima del azulejo a la mitad de su altura de 10-15 cm.
Los bordillos se fijan en una plataforma de concreto antes de aplicar la capa de arena, usando mortero de cemento. Su altura está determinada por el hilo estirado y la uniformidad, por el nivel. Si es necesario, se pueden levantar, fijar con un mazo de goma. También hay variedades de cercas que no son visibles. Dichas opciones se instalan junto con adoquines en un cojín de arena de cemento, se sujetan con clavijas metálicas, segmentos de refuerzo.
Preparación de la base del azulejo
Se coloca una capa de arena sobre la grava o gravilla, se nivela con un rastrillo, se vierte con agua y se apisona con un tamper eléctrico o manual. Después de la compactación, su grosor debe ser de 5-10 cm.
Luego, se vierte una mezcla de cemento y arena, obtenida al mezclar una parte de cemento con seis partes de arena de cantera. A veces las baldosas se colocan directamente sobre arena compactada. La mezcla también se humedece y embiste, alineada con balizas usando la regla. El espesor de la capa debe ser de 2-4 cm.
Para cargas pesadas, el circuito es ligeramente diferente. Primero, se vierte una capa de arena de 10-15 cm sobre el suelo compactado, luego la piedra triturada o la grava es de 10-15 cm, y se vierte un piso de concreto reforzado de 10-12 cm de espesor en la parte superior, sobre el cual ya están instalados los bordillos, se colocan balizas, mortero de cemento y arena 2 de espesor -4 cm, alineado con la regla.
Colocación de azulejos
En la arena, así como en su mezcla con cemento, el ladrillo se coloca de la misma manera. La mampostería debe iniciarse desde la pared de la casa o desde el borde instalado, lo cual es más conveniente porque se establece de acuerdo con la marca. La primera fila se presenta en una línea recta definida. En el caso de colocar productos rizados, la moldura, que debe llenar los espacios entre la baldosa y la pared o la acera, se instala en el último momento, después de la finalización del trabajo de instalación principal.
El azulejo puede variar en grosor, por lo que debajo de algunos elementos tendrá que verter la mezcla y otros para plantar con un mazo de goma. Pero todos los adoquines deben presionarse firmemente contra la superficie. Además, al colocar ladrillos, es necesario observar la brecha entre las partes individuales. Las filas posteriores se colocan según el patrón elegido y el tipo de adoquines.
Si hay obstáculos en la forma de los servicios públicos necesarios, tuberías, árboles en el camino de mampostería, entonces se pueden instalar bordillos alrededor de ellos, o el ladrillo se acercará. Pero los recortes también se montan en último lugar. Después de colocar una cierta parte, observan la uniformidad de las juntas, si es necesario, se recortan, luego se rocían con una mezcla seca de cemento y arena y se barren para llenar los espacios entre los ladrillos. Después de la finalización del trabajo principal, proceden a los vacíos restantes entre la pared y el lienzo. Para esto, las piezas medidas se cortan de la baldosa.
Lechada
Hay varias formas de cerrar las costuras de los azulejos. Este es un procedimiento necesario para garantizar la estabilidad y durabilidad del pavimento. Una opción es una mezcla de cemento y arena. Después de mezclar bien los componentes secos, se vierte sobre la superficie y se distribuye a lo largo de las costuras con un cepillo o una escoba suave. La nivelación continúa hasta que el material llena el espacio debajo de la parte superior. Los restos se retiran y se vierten sobre la baldosa con agua de la manguera.
También para lechada, se puede usar mortero de cemento. Se vierte en la dirección de las costuras y se nivela con una espátula de goma. Inmediatamente después de llenar todos los huecos, hasta que la solución comience a endurecerse, sus residuos se eliminan con un trapo. Después de un par de días, si el cemento se encoge, el procedimiento debe repetirse.
Cómo cuidar las losas de pavimento
Las losas son materiales sin pretensiones, pero requieren un cuidado especial con cierta frecuencia. Solo con una limpieza adecuada durará décadas.Se deben seleccionar herramientas especiales según la época del año y el método de uso.
En verano, el mayor problema es el polvo y los escombros. Puedes lidiar con esto simplemente barriendo. Los contaminantes graves se eliminan con una corriente de agua. Las baldosas en lugares de alta humedad, por ejemplo, junto a la piscina, la fuente, deben cubrirse con sustancias repelentes al agua. La limpieza de los azulejos debe realizarse con la menor contaminación, especialmente si se trata de manchas aceitosas del automóvil, hollín, cemento seco.
El principal enemigo de los azulejos de la calle en invierno es el hielo y la nieve. En este caso, las tensiones mecánicas bruscas, como picar con una palanca, no funcionarán. Es mejor derretir una corteza fuerte con agua tibia o usar productos químicos especiales. La pala para nieve debe ser de plástico o madera. Puede proteger el recubrimiento de la penetración de humedad utilizando soluciones impermeabilizantes. Deben aplicarse inmediatamente después de la instalación.
Conclusión
Las losas son uno de los mejores materiales para organizar las superficies. Con sus propias manos, puede hacer fácilmente la colocación de senderos y parques infantiles en la casa de campo, la finca, en el jardín, hacer una carrera para el automóvil, estacionamiento. Gracias a una gran selección de materiales de construcción, formas, tamaños, colores, métodos de instalación, el uso de adoquines puede resolver cualquier tarea de diseño para el diseño del paisaje.
Para muchas personas, desde propietarios de casas privadas, instituciones públicas hasta servidores públicos, la cuestión de cómo colocar losas de pavimento es bastante relevante. Después de todo, utilizando ladrillos artificiales, puede ennoblecer el patio, diseñar caminos, crear áreas convenientes cerca de edificios, pavimentar la calle o la acera. El material es bastante popular, en demanda. Gracias a una gran selección de formas, colores y tamaños, le permite crear no solo mampostería estándar, sino incluso crear un adorno 3D, diseñar diferentes patrones, formas y otros elementos que difieren en color del fondo principal.
La disposición de grandes instalaciones públicas se lleva a cabo por equipos de trabajo con equipos especiales, pero los propietarios de su pequeña área contigua pueden hacer frente al trabajo de forma independiente sin recurrir a la ayuda de especialistas o tecnologías sofisticadas.Esto ahorrará el presupuesto familiar, ganará experiencia útil. Lo principal es seguir instrucciones e instrucciones para que el resultado del trabajo traiga placer estético, es una cuestión de orgullo.
Contenido
Características de losas de pavimento
El material de construcción se ha demostrado en paisajismo, ya sea acceso al garaje o estacionamiento, jardín o sendero peatonal, complementando el paisaje de un país, área suburbana o parque público. La colocación de baldosas en diferentes áreas ha sido posible gracias a sus ventajas sobre las opciones alternativas de recubrimiento:
Especie
Las losas varían de muchas maneras. Se puede hacer de diferentes materias primas, difieren en formas, tamaños, grosores, colores, método de producción. Si consideramos los componentes que componen la mezcla de concreto, podemos distinguir los siguientes tipos:
El producto terminado se produce por tres métodos principales:
Dimensiones
Los fabricantes producen una amplia gama de productos que difieren en sus parámetros. Cada modelo específico tiene sus propias dimensiones. Usando la tabla como ejemplo, consideramos los tipos más populares de losas de pavimento de acuerdo con GOST 17608-91, que tienen sus propias características de altura - h, longitud - a, ancho - b.
Square
Rectángulo
Hexágono
Adicional pentagonal
Cuadrangular adicional
La tabla muestra algunos de los principales estándares. También hay varios patrones decorativos y rizados. Cada fabricante individual produce sus propios productos de acuerdo con su propio desarrollo, por lo que los parámetros del producto a menudo no cumplen con los estándares generales.
Forma
Hay muchas opciones para losas de pavimento, que difieren en textura, disposición mutua de bordes. Su forma en la mayoría de los casos depende del material utilizado en la fabricación del producto final:
Consideremos algunas opciones:
Material de producción
La apariencia, el tamaño y la disposición de los bordes son características importantes de este artículo. Pero la durabilidad, las propiedades técnicas del producto dependen de la materia prima de la que están hechas las losas. Analizaremos con más detalle los tipos de materiales utilizados en la producción:
Color
El mercado de la construcción ofrece una gran selección de diferentes colores de adoquines, lo que le permite resolver cualquier problema de diseño. Sin embargo, dependiendo de los colorantes utilizados en la producción, se determina la resistencia a la decoloración. Lo mejor son los pigmentos naturales, como el hollín, que le da al azulejo un color negro, una mezcla de óxidos de hierro, un color rojo.
El amarillo y sus tonos también se consideran bastante estables, sin embargo, debido al constante asentamiento del polvo, la superficie adquiere un color gris. Los tintes azul y verde sufren el peor de los factores ambientales, pueden pasar menos de dos años antes de que el material adquiera un tono gris.
Por separado, vale la pena señalar la piedra natural y el clínker. Son de color limitado, pero con el tiempo no cambia. Los ladrillos de hormigón se pintan en el proceso de producción de dos maneras:
Reglas y diseños
El diseño del producto terminado depende del tipo particular de adoquines, su color, la presencia de un patrón, relieve, tamaño. La apariencia del recubrimiento depende del método de instalación. Además, el diseño del lienzo debe combinarse con el paisaje.Considere las muestras de mampostería más populares:
Cómo mosaico
Sin saber por dónde empezar, el trabajo puede parecer complicado, problemático. Pero si comprende todas las complejidades, es muy posible hacerlo usted mismo, sin recurrir a la ayuda de especialistas. El proceso comienza con la elaboración de un dibujo, la preparación de materiales, herramientas, luego se toman los pasos para equipar la base, rellenar las almohadas, instalar el bordillo, instalar el lienzo superior, rejuntar las juntas. Consideramos en detalle cada etapa.
Materiales y herramientas necesarios.
Es muy importante preparar todo lo necesario para su implementación antes de comenzar a trabajar. Estas acciones posteriormente ahorrarán tiempo, no tendrá que distraerse con la búsqueda de elementos faltantes. Además, al comprar baldosas, se recomienda proporcionar su suministro, ya que puede romperse al moverse, durante la instalación, cuando se contrae con un martillo de goma. Para no perderse nada, debe familiarizarse con los materiales y las herramientas utilizadas para realizar el trabajo:
Diseño para la colocación
El trabajo de mejora del territorio comienza con un diseño claro. Por supuesto, si solo se considera un país pequeño, se considera el camino del jardín, entonces todo se puede calcular en la mente, pero al pavimentar áreas grandes, no se puede prescindir de un esquema.
Una vez hecho un plan, puede comenzar a marcar el territorio. Esto requerirá un nivel de construcción, cinta métrica, hilo fuerte, clavijas de metal o piezas de refuerzo.Primero, se toman medidas. Deben comenzar desde la esquina de la estructura con la que el lienzo entrará en contacto. Si no hay ninguno, entonces las apuestas se dirigen a la parte superior del sitio en cuestión.
Después del marcado preliminar, es necesario realizar medidas adicionales para instalar clavijas auxiliares a una distancia de 1.5 - 2 m, lo que ayudará en el futuro a organizar correctamente las filas, alinear las costuras, colocar las piezas. Se estira un hilo entre las estacas de metal en el nivel, mientras que se debe proporcionar una ligera pendiente en uno de los lados, donde se ubicarán los desagües. No pierda de vista la parte del avión ocupada por los bordillos.
Preparación de la superficie: capa protectora y dispositivo de drenaje
Después de marcar el sitio, es necesario preparar la base. Para esto, se elimina la parte superior del suelo. Dependiendo de la capa de la almohada, la profundidad del pozo puede ser de 40-50 cm. Además, la superficie del receso se limpia de raíces, se nivela, la tierra se compacta con un golpe manual. Está cubierto con tejido geográfico en la parte superior, evitando la germinación de vegetación innecesaria.
Es muy importante considerar y equipar el dispositivo de drenaje. En suelos arcillosos, donde el agua subterránea no es profunda, se forma una pendiente en la etapa de excavación y se instalan tuberías de drenaje. Si el suelo consiste en arenisca, absorbe rápidamente la humedad, es suficiente para llevar a cabo la pendiente del lienzo en uno de los lados, así como para proporcionar la presencia de sistemas de drenaje, desagües.
Después de completar el trabajo preparatorio, comienza a formarse la primera capa de drenaje de la torta. Para hacer esto, se llenan 10-30 cm de grava finamente fina o tamices, se nivela con un rastrillo y se apisona.
Instalación de un borde o bordillo
El bordillo no solo le da al sitio una hermosa vista, lo protege, sino que también arregla el mosaico, no le permite gatear. Se instala a lo largo del camino en el jardín, a lo largo del perímetro del avión ubicado cerca de la casa, las instituciones públicas.La fijación correcta de la acera es una de las etapas difíciles; requiere la máxima precisión y atención. Los bloques deben elevarse por encima del azulejo a la mitad de su altura de 10-15 cm.
Los bordillos se fijan en una plataforma de concreto antes de aplicar la capa de arena, usando mortero de cemento. Su altura está determinada por el hilo estirado y la uniformidad, por el nivel. Si es necesario, se pueden levantar, fijar con un mazo de goma. También hay variedades de cercas que no son visibles. Dichas opciones se instalan junto con adoquines en un cojín de arena de cemento, se sujetan con clavijas metálicas, segmentos de refuerzo.
Preparación de la base del azulejo
Se coloca una capa de arena sobre la grava o gravilla, se nivela con un rastrillo, se vierte con agua y se apisona con un tamper eléctrico o manual. Después de la compactación, su grosor debe ser de 5-10 cm.
Luego, se vierte una mezcla de cemento y arena, obtenida al mezclar una parte de cemento con seis partes de arena de cantera. A veces las baldosas se colocan directamente sobre arena compactada. La mezcla también se humedece y embiste, alineada con balizas usando la regla. El espesor de la capa debe ser de 2-4 cm.
Para cargas pesadas, el circuito es ligeramente diferente. Primero, se vierte una capa de arena de 10-15 cm sobre el suelo compactado, luego la piedra triturada o la grava es de 10-15 cm, y se vierte un piso de concreto reforzado de 10-12 cm de espesor en la parte superior, sobre el cual ya están instalados los bordillos, se colocan balizas, mortero de cemento y arena 2 de espesor -4 cm, alineado con la regla.
Colocación de azulejos
En la arena, así como en su mezcla con cemento, el ladrillo se coloca de la misma manera. La mampostería debe iniciarse desde la pared de la casa o desde el borde instalado, lo cual es más conveniente porque se establece de acuerdo con la marca. La primera fila se presenta en una línea recta definida. En el caso de colocar productos rizados, la moldura, que debe llenar los espacios entre la baldosa y la pared o la acera, se instala en el último momento, después de la finalización del trabajo de instalación principal.
El azulejo puede variar en grosor, por lo que debajo de algunos elementos tendrá que verter la mezcla y otros para plantar con un mazo de goma. Pero todos los adoquines deben presionarse firmemente contra la superficie. Además, al colocar ladrillos, es necesario observar la brecha entre las partes individuales. Las filas posteriores se colocan según el patrón elegido y el tipo de adoquines.
Si hay obstáculos en la forma de los servicios públicos necesarios, tuberías, árboles en el camino de mampostería, entonces se pueden instalar bordillos alrededor de ellos, o el ladrillo se acercará. Pero los recortes también se montan en último lugar. Después de colocar una cierta parte, observan la uniformidad de las juntas, si es necesario, se recortan, luego se rocían con una mezcla seca de cemento y arena y se barren para llenar los espacios entre los ladrillos. Después de la finalización del trabajo principal, proceden a los vacíos restantes entre la pared y el lienzo. Para esto, las piezas medidas se cortan de la baldosa.
Lechada
Hay varias formas de cerrar las costuras de los azulejos. Este es un procedimiento necesario para garantizar la estabilidad y durabilidad del pavimento. Una opción es una mezcla de cemento y arena. Después de mezclar bien los componentes secos, se vierte sobre la superficie y se distribuye a lo largo de las costuras con un cepillo o una escoba suave. La nivelación continúa hasta que el material llena el espacio debajo de la parte superior. Los restos se retiran y se vierten sobre la baldosa con agua de la manguera.
También para lechada, se puede usar mortero de cemento. Se vierte en la dirección de las costuras y se nivela con una espátula de goma. Inmediatamente después de llenar todos los huecos, hasta que la solución comience a endurecerse, sus residuos se eliminan con un trapo. Después de un par de días, si el cemento se encoge, el procedimiento debe repetirse.
Cómo cuidar las losas de pavimento
Las losas son materiales sin pretensiones, pero requieren un cuidado especial con cierta frecuencia. Solo con una limpieza adecuada durará décadas.Se deben seleccionar herramientas especiales según la época del año y el método de uso.
En verano, el mayor problema es el polvo y los escombros. Puedes lidiar con esto simplemente barriendo. Los contaminantes graves se eliminan con una corriente de agua. Las baldosas en lugares de alta humedad, por ejemplo, junto a la piscina, la fuente, deben cubrirse con sustancias repelentes al agua. La limpieza de los azulejos debe realizarse con la menor contaminación, especialmente si se trata de manchas aceitosas del automóvil, hollín, cemento seco.
El principal enemigo de los azulejos de la calle en invierno es el hielo y la nieve. En este caso, las tensiones mecánicas bruscas, como picar con una palanca, no funcionarán. Es mejor derretir una corteza fuerte con agua tibia o usar productos químicos especiales. La pala para nieve debe ser de plástico o madera. Puede proteger el recubrimiento de la penetración de humedad utilizando soluciones impermeabilizantes. Deben aplicarse inmediatamente después de la instalación.
Conclusión
Las losas son uno de los mejores materiales para organizar las superficies. Con sus propias manos, puede hacer fácilmente la colocación de senderos y parques infantiles en la casa de campo, la finca, en el jardín, hacer una carrera para el automóvil, estacionamiento. Gracias a una gran selección de materiales de construcción, formas, tamaños, colores, métodos de instalación, el uso de adoquines puede resolver cualquier tarea de diseño para el diseño del paisaje.