Opciones de reurbanización de Jruschov: 1, 2, 3 y 4 habitaciones
Cada persona quiere rodearse de un interior hermoso y cómodo que sea adecuado para él. Para querer regresar a casa, debe ser acogedor y conveniente. Sin embargo, nuestros deseos no siempre coinciden con nuestras capacidades. En los últimos años, una moda para los llamados espacios abiertos. Aunque la tendencia en el estudio fue dictada por la necesidad de viviendas económicas, las habitaciones combinadas se han convertido en una especie de punto culminante de los elegantes apartamentos. Varias direcciones en el diseño (escandinavo, loft, minimalismo) a la vez recogieron estas ideas y ahora en cada paso hay cientos de opciones para zonificar los espacios combinados. Sin embargo, no todos tuvieron la suerte de convertirse en propietarios de viviendas en un edificio nuevo, donde casi todos los apartamentos tienen un diseño individual y es fácil elegir una opción para usted. El panel y los edificios de ladrillo de cinco pisos del edificio Jruschov tienen una apariencia simple no solo desde el exterior. Los apartamentos típicos en tales casas son similares entre sí, como los gemelos.¿Qué podría ser peor en un momento en que la individualidad y el diseño del diseñador se valoran por encima de todo? Solo queda reorganizar el espacio con sus propias manos en el marco de los cambios permitidos por la ley para los propietarios de apartamentos. Hablemos de las características de la reurbanización de Khrushchev y consideremos una serie de soluciones listas para usar.
¿Qué se puede y no se puede hacer durante la reurbanización?
La mayoría de las reparaciones deberán coordinarse con la inspección de la vivienda. La lista de transformaciones que no se pueden llevar a cabo de forma independiente incluye:
Trabajos exteriores en la fachada, que pueden afectar el aspecto arquitectónico de toda la casa. Esta regla se aplica especialmente a aquellos apartamentos que se encuentran en edificios de valor histórico. La instalación de unidades externas de sistemas divididos (aires acondicionados) es una excepción a esta regla.
Cualquier opción para reorganizar el piso. Por ejemplo, la celebración del llamado piso cálido.
Mover o crear nuevos baños, inodoros.
Cualquier trabajo con equipos de gas que impliquen sistemas de comunicación adicionales. En este caso, se permite mover la estufa de la cocina.
Desmontaje, demolición parcial, creación de nuevas puertas en muros de carga. También vale la pena estar preparado para el hecho de que las siguientes opciones para reorganizar un apartamento en Jruschov nunca serán aprobadas:
Disposición de terrazas o balcones en apartamentos ubicados en el segundo piso y arriba.
Instalación de reguladores o "interruptores" personales en redes de ingeniería, que se consideran de uso común.
Transferencia de equipos de calefacción fuera del apartamento a un balcón o logia.
Combinando la cocina con otras habitaciones en el estudio, si hay una estufa de gas.Según las normas, en aquellos apartamentos donde se conduce gas, la presencia de puertas interiores es obligatoria. Una habitación bien cerrada puede salvar la vida de los residentes durante una fuga.
Además, no puede realizar reparaciones en la vivienda, que oficialmente se considera de emergencia. Aunque generalmente vale la pena considerar la viabilidad de tales acciones. No se aprobará ningún trabajo que pueda debilitar la construcción de la casa o empeorar las condiciones de vida de los propietarios de los apartamentos o sus vecinos. Sin embargo, no todo es tan malo. Hay una serie de trabajos de reparación para los cuales no se requiere aprobación:
Realización de reparaciones cosméticas.
Cambio de equipo de ingeniería (incluso especificado en la hoja de datos) a uno nuevo similar.
Desmontaje de muebles empotrados, cuya presencia no está indicada en el pasaporte técnico del apartamento.
Reemplazo de materiales de acabado.
Mover aparatos de gas y calefacción, si esto no requiere establecer nuevas comunicaciones.
Acabado de balcones y logias.
También hay una lista de trabajos que se pueden hacer sin aprobación, pero con una notificación (incluso después del hecho) de las autoridades pertinentes:
Acristalamiento de balcones y logias.
Mover equipos dentro de la cocina o el baño, pero sin cambiar las dimensiones de estas habitaciones.
La eliminación de puertas en los muros de carga.
Instalación de particiones, si no dan carga adicional en el piso.
Cambiar la configuración de los vestíbulos o su eliminación.
Disposición de nuevas aberturas en muros cortina.
Demolición o desmontaje parcial de muros cortina.
En los últimos dos casos, la regla no se aplica a las paredes entre salas.
¿Dónde coordinar la reurbanización?
La reurbanización debe llevarse a cabo por ley. Si el propietario realiza reparaciones de forma independiente con una serie de cambios serios sin notificar a las autoridades pertinentes, se convierte en un infractor. Es importante comprender que el desmantelamiento o un cambio en los muros de carga reduce la resistencia estructural de toda la casa, lo que puede conducir a su destrucción.Primero debe preparar un proyecto de reurbanización y recopilar un paquete de documentos necesarios. Se ordena un plan para futuros cambios a las oficinas de diseño. El paquete de documentos incluye:
Declaración
Proyecto de reurbanización.
Documentos que prueben el derecho a ser propietario de un apartamento ("verde"). No son necesarios si los datos están presentes en Rosreestr.
El certificado de registro del apartamento (disponible en BTI). Para los residentes de Moscú, este documento no es necesario, ya que está almacenado en la inspección local de viviendas en formato electrónico.
Si los inquilinos tienen un contrato social de trabajo en sus manos, y el apartamento no está en su propiedad personal, entonces es necesario el consentimiento de todos los miembros de la familia para volver a planificar. Para quienes viven en casas reconocidas como monumentos arquitectónicos, también se requerirá el consentimiento por escrito de las autoridades que preservan y protegen dichos edificios. Se transfiere un paquete de documentos a la inspección de la vivienda. La inspección toma una decisión dentro de los 45 días. Además de este período, agregan otros 3-5 días hábiles hasta que el documento llegue al MFC, ya que muchos se aplican a dichos centros. Esta organización también acepta documentos de este tipo y los pasa a la inspección. Si se rechaza al solicitante, la decisión debe estar respaldada por una justificación. Puede ser impugnado en la corte. Si se obtiene el permiso, el propietario del apartamento se repara a sí mismo e invita a una comisión a firmar la ley de reurbanización. Se están realizando nuevas mediciones del apartamento y se realizarán cambios en su hoja de datos.
Muchos Jruschov y Brezhnevka permiten varios proyectos de reurbanización, pero en cantidades limitadas. Es decir, si un vecino de arriba decidió reorganizar su departamento y se le dio permiso para hacerlo, entonces las posibilidades de que se reciba el consentimiento para cambios similares en su departamento se reducirán. La misma remodelación debilita el diseño. Por lo tanto, es importante ser el primero.
Reurbanización de Jruschov de una habitación
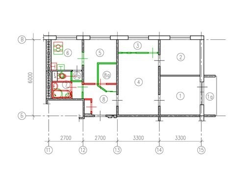
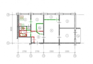
Hay varias opciones para rehacer odnushki en Jruschov. Por lo general, los apartamentos típicos tienen un pequeño hall de entrada, desde el cual se accede a un pasillo con puertas a la cocina, al baño y a una habitación grande que actúa como dormitorio y pasillo. En tales apartamentos hay mucha gente. La vida de una familia joven con un niño se convierte en una prueba severa. En el primer caso, se desmantela la pared que separa la cocina de la habitación. Resulta un pequeño estudio. Ahora su pasillo conduce a dos puertas: al baño y a las habitaciones combinadas. Como cada metro cuenta en apartamentos pequeños, puede ahorrar en muebles voluminosos organizando un vestidor en la antigua sala de estar, al lado del pasillo a través de la pared. En otra realización, la pared entre la cocina y la sala de estar también se retira, sin embargo, el pasillo se une al espacio combinado y no está separado por puertas. Resulta una especie de corredor de forma compleja. Se asigna una pequeña habitación para una litera. La opción se materializa solo en apartamentos de esquina. En dicha vivienda hay una ventana adicional que proporcionará luz natural al dormitorio.
Alteración de la Jruschov de dos habitaciones
Los diseños típicos de apartamentos en Jruschov, que incluso recibieron sus nombres "populares" individuales, en la mayoría de los casos se consideran obsoletos e incómodos. En comparación con la variedad de opciones para la disposición de habitaciones en edificios nuevos, realmente pierden mucho. Sin embargo, tales viviendas se consideran estadísticamente las más vendidas debido a su bajo costo. Por lo tanto, la demanda de proyectos de reurbanización para apartamentos obsoletos no se reduce.
El libro
El "libro" de Jruschovka recibió su nombre debido a la similitud externa del diseño del apartamento con una publicación abierta. Los locales en viviendas de dos habitaciones están ubicados en una línea y están interconectados por puertas. Una habitación se convierte en un punto de control. Por lo general, se utiliza como sala. A los lados hay un dormitorio y una cocina con baño y pasillo.Como regla general, estos apartamentos tienen un balcón o una logia (generalmente ubicados en el pasillo). Este tipo de diseño se considera el más infructuoso. Rehacer cualquier cosa en el "libro" es muy problemático. Lo único con lo que los propietarios pueden contar es con la demolición parcial de las paredes entre el pasillo y el pasillo. El corredor ampliado conduce a las puertas de la sala de estar y el dormitorio, dejando el mensaje a la cocina intacto. Anteriormente se limpian las entradas existentes desde la sala. Así se deshacen de la sala de paso y aíslan cada habitación, pero al mismo tiempo sacrifican un área pequeña de la sala. También cumple con otra opción, que consume más tiempo. Se demuele una pared entre la cocina y la sala de estar, combinando los dos espacios en un estudio, mientras que el área del pasillo se reduce, como en la versión anterior. En este pequeño callejón sin salida es conveniente equipar una despensa o vestidor.
Tranvía
El "tranvía" de Jruschovka (como la gente llama cariñosamente a este apartamento) tiene una disposición angular desde el final del edificio. Un pequeño hall de entrada conduce a la cocina, el baño y uno de los apartamentos de dos habitaciones, que, a su vez, es un punto de control y se comunica con la segunda habitación. Los diseñadores proponen no realizar cambios importantes en los "tranvías". La cocina y el baño no se ven afectados en absoluto, pero se deshacen de la sala de paso. Su metraje disminuirá ligeramente, pero aparecerán dos salas aisladas. Los cambios se realizan aumentando el área del pasillo. Simplemente se extiende hasta que se detiene y se realizan dos salidas a las habitaciones. Resulta un largo corredor en el que es fácil equipar una despensa o vestidor, descargando así las habitaciones. El nuevo diseño se parece remotamente a una "mariposa" de dos habitaciones con la única diferencia de que no hay cocina en el medio. Depende de los propios propietarios decidir si dividir el corredor con una partición en dos secciones (hall de entrada + área de entrada con puertas).
Mini mejora
La mini mejora prácticamente no es diferente de los apartamentos estándar en edificios de nueve pisos, con una excepción: el tamaño pequeño de la cocina (5.5 metros cuadrados).Es esta falla la que la mayoría de los propietarios intentan solucionar. Como regla general, en tales apartamentos hay una despensa y un baño separado. Para aumentar el área útil de la cocina, es necesario mover el baño y el inodoro utilizando el área de la despensa anterior. También puedes combinar el baño. Si la mini mejora tiene un balcón o una logia, se pueden combinar con una sala de estar como oficina o con una cocina, que se utiliza como comedor.
Camiseta interior
Otro tipo de diseño popular para apartamentos de dos habitaciones es la camiseta. Las ventanas en tales viviendas están orientadas en diferentes direcciones. Las habitaciones recuerdan un poco las mangas de una camisa, conectadas por un "torso" en forma de cocina o corredor. Las familias jóvenes con un niño generalmente comparten espacio, en lugar de combinarlo. En la sala grande, que se utiliza como sala de estar, se coloca una partición. Por lo tanto, resulta una pequeña guardería. Una partición es preferible a una pared de ladrillo o paneles de yeso en habitaciones donde solo hay una ventana. Para no dejar una de las habitaciones sin luz natural, la separación se realiza mejor con muebles o puertas correderas. En otras versiones, la cocina se combina con la sala de estar, a veces añadiéndoles también el pasillo. El último caso es más adecuado para viviendas de "soltero" para una persona. La combinación con la sala de estar se lleva a cabo por aquellas familias a las que les gusta albergar grandes grupos de invitados. Por lo tanto, es realmente más conveniente cocinar la cena y poner la mesa sin distraerse de la conversación.
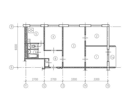
Reurbanización de un Jruschov de tres habitaciones
El principal inconveniente del Jruschov de tres habitaciones es el área escasa del baño y el inodoro. Los apartamentos están remodelados principalmente para aumentar el metraje del baño. El baño y el inodoro se combinan, agregando el área del antiguo corredor, que anteriormente era parte del pasillo y conducía a la cocina. Es necesario terminar el baño ya combinado, ya que la zona adicional no tiene la impermeabilización necesaria.La puerta que conduce a la cocina está hecha en la habitación de al lado, que anteriormente estaba aislada. Ahora esta sala se convertirá en un pasaje. Sin embargo, la opción de combinar los dos espacios está permitida, ya que esto no causará daños graves al treshka. La sala combinada está equipada con una cocina y sala de estar, separadas por una barra.
Alteración de la Jruschov de cuatro habitaciones
Los Khrushchevs de cuatro habitaciones son bastante raros. Pueden considerarse legítimamente "lujo". La opción más popular para reorganizar un espacio es mover la cocina a un antiguo espacio habitable. Se puede dividir en dos zonas compactas: comedor y cocina. El primero se combina con una sala de estar bastante espaciosa, y el segundo se saca por completo al pasillo. La habitación, anteriormente utilizada como cocina, se convierte en una oficina. Desafortunadamente, de acuerdo con las reglas, está prohibido colocar salas de estar debajo de las cocinas de los vecinos en la parte superior. Esta regla no se aplica solo a los propietarios de apartamentos en los pisos superiores. En otra realización, la cocina se combina con una habitación adyacente. Como regla general, en el espacio combinado equipan un lujoso salón, un comedor y un área de cocina. En dicha habitación, puede colocar de forma segura una chimenea o un pequeño cine en casa para unas vacaciones conjuntas con amigos. Otra opción popular de reurbanización es aumentar el metraje del baño, debido al área de locales no residenciales. Por lo general, abandonan un pasillo o un pasillo para ser despedazado. En casos raros, use el área de la cocina, pero compense la combinación de este último con una habitación adyacente.
Conclusión
Muchas series de Khrushchevs (50) se están preparando para la demolición, ya que los edificios han agotado sus reservas de seguridad y ya no son adecuados para la operación. Sin embargo, hay varias casas (80) que seguirán en pie durante más de un año, lo que significa que es demasiado pronto para esperar que los residentes cambien de apartamento. No todos tienen la oportunidad de comprar apartamentos de lujo que cumplan con todos los requisitos.Por lo tanto, solo hay una salida: mejorar las viviendas existentes, remodelarlas a su manera, combinar o separar habitaciones para aumentar la comodidad del apartamento.
Cada persona quiere rodearse de un interior hermoso y cómodo que sea adecuado para él. Para querer regresar a casa, debe ser acogedor y conveniente. Sin embargo, nuestros deseos no siempre coinciden con nuestras capacidades. En los últimos años, una moda para los llamados espacios abiertos. Aunque la tendencia en el estudio fue dictada por la necesidad de viviendas económicas, las habitaciones combinadas se han convertido en una especie de punto culminante de los elegantes apartamentos. Varias direcciones en el diseño (escandinavo, loft, minimalismo) a la vez recogieron estas ideas y ahora en cada paso hay cientos de opciones para zonificar los espacios combinados. Sin embargo, no todos tuvieron la suerte de convertirse en propietarios de viviendas en un edificio nuevo, donde casi todos los apartamentos tienen un diseño individual y es fácil elegir una opción para usted. El panel y los edificios de ladrillo de cinco pisos del edificio Jruschov tienen una apariencia simple no solo desde el exterior. Los apartamentos típicos en tales casas son similares entre sí, como los gemelos.¿Qué podría ser peor en un momento en que la individualidad y el diseño del diseñador se valoran por encima de todo? Solo queda reorganizar el espacio con sus propias manos en el marco de los cambios permitidos por la ley para los propietarios de apartamentos. Hablemos de las características de la reurbanización de Khrushchev y consideremos una serie de soluciones listas para usar.
Contenido
¿Qué se puede y no se puede hacer durante la reurbanización?
La mayoría de las reparaciones deberán coordinarse con la inspección de la vivienda. La lista de transformaciones que no se pueden llevar a cabo de forma independiente incluye:
También vale la pena estar preparado para el hecho de que las siguientes opciones para reorganizar un apartamento en Jruschov nunca serán aprobadas:
Además, no puede realizar reparaciones en la vivienda, que oficialmente se considera de emergencia. Aunque generalmente vale la pena considerar la viabilidad de tales acciones. No se aprobará ningún trabajo que pueda debilitar la construcción de la casa o empeorar las condiciones de vida de los propietarios de los apartamentos o sus vecinos. Sin embargo, no todo es tan malo. Hay una serie de trabajos de reparación para los cuales no se requiere aprobación:
También hay una lista de trabajos que se pueden hacer sin aprobación, pero con una notificación (incluso después del hecho) de las autoridades pertinentes:
En los últimos dos casos, la regla no se aplica a las paredes entre salas.
¿Dónde coordinar la reurbanización?
La reurbanización debe llevarse a cabo por ley. Si el propietario realiza reparaciones de forma independiente con una serie de cambios serios sin notificar a las autoridades pertinentes, se convierte en un infractor. Es importante comprender que el desmantelamiento o un cambio en los muros de carga reduce la resistencia estructural de toda la casa, lo que puede conducir a su destrucción.Primero debe preparar un proyecto de reurbanización y recopilar un paquete de documentos necesarios. Se ordena un plan para futuros cambios a las oficinas de diseño. El paquete de documentos incluye:
Si los inquilinos tienen un contrato social de trabajo en sus manos, y el apartamento no está en su propiedad personal, entonces es necesario el consentimiento de todos los miembros de la familia para volver a planificar. Para quienes viven en casas reconocidas como monumentos arquitectónicos, también se requerirá el consentimiento por escrito de las autoridades que preservan y protegen dichos edificios. Se transfiere un paquete de documentos a la inspección de la vivienda. La inspección toma una decisión dentro de los 45 días. Además de este período, agregan otros 3-5 días hábiles hasta que el documento llegue al MFC, ya que muchos se aplican a dichos centros. Esta organización también acepta documentos de este tipo y los pasa a la inspección. Si se rechaza al solicitante, la decisión debe estar respaldada por una justificación. Puede ser impugnado en la corte. Si se obtiene el permiso, el propietario del apartamento se repara a sí mismo e invita a una comisión a firmar la ley de reurbanización. Se están realizando nuevas mediciones del apartamento y se realizarán cambios en su hoja de datos.
Reurbanización de Jruschov de una habitación
Hay varias opciones para rehacer odnushki en Jruschov. Por lo general, los apartamentos típicos tienen un pequeño hall de entrada, desde el cual se accede a un pasillo con puertas a la cocina, al baño y a una habitación grande que actúa como dormitorio y pasillo. En tales apartamentos hay mucha gente. La vida de una familia joven con un niño se convierte en una prueba severa. En el primer caso, se desmantela la pared que separa la cocina de la habitación. Resulta un pequeño estudio. Ahora su pasillo conduce a dos puertas: al baño y a las habitaciones combinadas. Como cada metro cuenta en apartamentos pequeños, puede ahorrar en muebles voluminosos organizando un vestidor en la antigua sala de estar, al lado del pasillo a través de la pared. En otra realización, la pared entre la cocina y la sala de estar también se retira, sin embargo, el pasillo se une al espacio combinado y no está separado por puertas. Resulta una especie de corredor de forma compleja. Se asigna una pequeña habitación para una litera. La opción se materializa solo en apartamentos de esquina. En dicha vivienda hay una ventana adicional que proporcionará luz natural al dormitorio.
Alteración de la Jruschov de dos habitaciones
Los diseños típicos de apartamentos en Jruschov, que incluso recibieron sus nombres "populares" individuales, en la mayoría de los casos se consideran obsoletos e incómodos. En comparación con la variedad de opciones para la disposición de habitaciones en edificios nuevos, realmente pierden mucho. Sin embargo, tales viviendas se consideran estadísticamente las más vendidas debido a su bajo costo. Por lo tanto, la demanda de proyectos de reurbanización para apartamentos obsoletos no se reduce.
El libro
El "libro" de Jruschovka recibió su nombre debido a la similitud externa del diseño del apartamento con una publicación abierta. Los locales en viviendas de dos habitaciones están ubicados en una línea y están interconectados por puertas. Una habitación se convierte en un punto de control. Por lo general, se utiliza como sala. A los lados hay un dormitorio y una cocina con baño y pasillo.Como regla general, estos apartamentos tienen un balcón o una logia (generalmente ubicados en el pasillo). Este tipo de diseño se considera el más infructuoso. Rehacer cualquier cosa en el "libro" es muy problemático. Lo único con lo que los propietarios pueden contar es con la demolición parcial de las paredes entre el pasillo y el pasillo. El corredor ampliado conduce a las puertas de la sala de estar y el dormitorio, dejando el mensaje a la cocina intacto. Anteriormente se limpian las entradas existentes desde la sala. Así se deshacen de la sala de paso y aíslan cada habitación, pero al mismo tiempo sacrifican un área pequeña de la sala. También cumple con otra opción, que consume más tiempo. Se demuele una pared entre la cocina y la sala de estar, combinando los dos espacios en un estudio, mientras que el área del pasillo se reduce, como en la versión anterior. En este pequeño callejón sin salida es conveniente equipar una despensa o vestidor.
Tranvía
El "tranvía" de Jruschovka (como la gente llama cariñosamente a este apartamento) tiene una disposición angular desde el final del edificio. Un pequeño hall de entrada conduce a la cocina, el baño y uno de los apartamentos de dos habitaciones, que, a su vez, es un punto de control y se comunica con la segunda habitación. Los diseñadores proponen no realizar cambios importantes en los "tranvías". La cocina y el baño no se ven afectados en absoluto, pero se deshacen de la sala de paso. Su metraje disminuirá ligeramente, pero aparecerán dos salas aisladas. Los cambios se realizan aumentando el área del pasillo. Simplemente se extiende hasta que se detiene y se realizan dos salidas a las habitaciones. Resulta un largo corredor en el que es fácil equipar una despensa o vestidor, descargando así las habitaciones. El nuevo diseño se parece remotamente a una "mariposa" de dos habitaciones con la única diferencia de que no hay cocina en el medio. Depende de los propios propietarios decidir si dividir el corredor con una partición en dos secciones (hall de entrada + área de entrada con puertas).
Mini mejora
La mini mejora prácticamente no es diferente de los apartamentos estándar en edificios de nueve pisos, con una excepción: el tamaño pequeño de la cocina (5.5 metros cuadrados).Es esta falla la que la mayoría de los propietarios intentan solucionar. Como regla general, en tales apartamentos hay una despensa y un baño separado. Para aumentar el área útil de la cocina, es necesario mover el baño y el inodoro utilizando el área de la despensa anterior. También puedes combinar el baño. Si la mini mejora tiene un balcón o una logia, se pueden combinar con una sala de estar como oficina o con una cocina, que se utiliza como comedor.
Camiseta interior
Otro tipo de diseño popular para apartamentos de dos habitaciones es la camiseta. Las ventanas en tales viviendas están orientadas en diferentes direcciones. Las habitaciones recuerdan un poco las mangas de una camisa, conectadas por un "torso" en forma de cocina o corredor. Las familias jóvenes con un niño generalmente comparten espacio, en lugar de combinarlo. En la sala grande, que se utiliza como sala de estar, se coloca una partición. Por lo tanto, resulta una pequeña guardería. Una partición es preferible a una pared de ladrillo o paneles de yeso en habitaciones donde solo hay una ventana. Para no dejar una de las habitaciones sin luz natural, la separación se realiza mejor con muebles o puertas correderas. En otras versiones, la cocina se combina con la sala de estar, a veces añadiéndoles también el pasillo. El último caso es más adecuado para viviendas de "soltero" para una persona. La combinación con la sala de estar se lleva a cabo por aquellas familias a las que les gusta albergar grandes grupos de invitados. Por lo tanto, es realmente más conveniente cocinar la cena y poner la mesa sin distraerse de la conversación.
Reurbanización de un Jruschov de tres habitaciones
El principal inconveniente del Jruschov de tres habitaciones es el área escasa del baño y el inodoro. Los apartamentos están remodelados principalmente para aumentar el metraje del baño. El baño y el inodoro se combinan, agregando el área del antiguo corredor, que anteriormente era parte del pasillo y conducía a la cocina. Es necesario terminar el baño ya combinado, ya que la zona adicional no tiene la impermeabilización necesaria.La puerta que conduce a la cocina está hecha en la habitación de al lado, que anteriormente estaba aislada. Ahora esta sala se convertirá en un pasaje. Sin embargo, la opción de combinar los dos espacios está permitida, ya que esto no causará daños graves al treshka. La sala combinada está equipada con una cocina y sala de estar, separadas por una barra.
Alteración de la Jruschov de cuatro habitaciones
Los Khrushchevs de cuatro habitaciones son bastante raros. Pueden considerarse legítimamente "lujo". La opción más popular para reorganizar un espacio es mover la cocina a un antiguo espacio habitable. Se puede dividir en dos zonas compactas: comedor y cocina. El primero se combina con una sala de estar bastante espaciosa, y el segundo se saca por completo al pasillo. La habitación, anteriormente utilizada como cocina, se convierte en una oficina. Desafortunadamente, de acuerdo con las reglas, está prohibido colocar salas de estar debajo de las cocinas de los vecinos en la parte superior. Esta regla no se aplica solo a los propietarios de apartamentos en los pisos superiores. En otra realización, la cocina se combina con una habitación adyacente. Como regla general, en el espacio combinado equipan un lujoso salón, un comedor y un área de cocina. En dicha habitación, puede colocar de forma segura una chimenea o un pequeño cine en casa para unas vacaciones conjuntas con amigos. Otra opción popular de reurbanización es aumentar el metraje del baño, debido al área de locales no residenciales. Por lo general, abandonan un pasillo o un pasillo para ser despedazado. En casos raros, use el área de la cocina, pero compense la combinación de este último con una habitación adyacente.
Conclusión
Muchas series de Khrushchevs (50) se están preparando para la demolición, ya que los edificios han agotado sus reservas de seguridad y ya no son adecuados para la operación. Sin embargo, hay varias casas (80) que seguirán en pie durante más de un año, lo que significa que es demasiado pronto para esperar que los residentes cambien de apartamento. No todos tienen la oportunidad de comprar apartamentos de lujo que cumplan con todos los requisitos.Por lo tanto, solo hay una salida: mejorar las viviendas existentes, remodelarlas a su manera, combinar o separar habitaciones para aumentar la comodidad del apartamento.