Una casa o departamento es un lugar de donde venimos del trabajo, donde nos relajamos del ajetreo que crea un estado de ánimo y da fuerzas para el día siguiente. Si la casa es grande, en una habitación puede colocar una oficina, en otra guardería, en el tercer dormitorio, y un armario con cocina ocupará una cantidad considerable de material y un lugar de honor. Pero, ¿qué pasa si el apartamento es pequeño, pero todo necesita ser equipado, el mismo vestidor y área de comedor, para asignar un lugar para relajarse y recibir invitados? Apartamento de diseño de una habitación de 40 metros cuadrados. m. - esto es, sobre todo, una combinación de conveniencia, practicidad y ahorro de espacio en un pequeño metraje. Hay una propiedad residencial con un área de 100 metros cuadrados. m. y más, pero hay apartamentos de menos de 30 metros cuadrados. m. Entonces, 40 metros cuadrados. m. - esto no es tan pequeño si prioriza correctamente y utiliza el espacio libre máximo sin pesarlo y dejando la visibilidad del volumen interno.
Contenido
- Lo que debe proporcionarse antes de la reparación
- Diseño
- Eliminamos las paredes extra.
- Zonificación o resolución de todos los problemas.
- Características del diseño para una familia con un niño
- Combinando con un balcón - expandiendo horizontes
- Consideremos algunos proyectos
- Apartamento tipo estudio de 40 m2.
- Apartamento de planta abierta de 40 metros cuadrados. m con particiones transparentes
- Apartamento tipo loft
- Apartamento para tres
- Proyecto de un apartamento con muebles transformadores.
- Diseño de apartamentos de estilo escandinavo
- Desde odnushki hacemos un apartamento de dos habitaciones.
Lo que debe proporcionarse antes de la reparación
- Elija el estilo general del apartamento, o al menos un elemento común. Este puede ser un apartamento de estilo urbano: líneas claras, revestimientos de paredes combinados, un detalle que se mueve de una habitación a una cocina, por ejemplo, un cierto tipo de flor o el tema de "París", "Países del mundo". El minimalismo en el diseño se ve muy impresionante, pero es adecuado si viven 1-2 personas en el apartamento.
- Decida el número de zonas necesarias: para descansar, trabajar, cocinar, comer, ir al baño y bañarse. Considere el número y la ubicación de los puntos de venta, proporcione la necesidad de un piso con calefacción en el balcón y en lugares cubiertos con azulejos o porcelana. Es obligatorio que haya tomas de corriente en todas las habitaciones, incluido un pasillo y un inodoro, idealmente en todos los rincones, porque incluso el modelado y el diseño más ideales, frente a las realidades de ejecución, requerirán ajustes y monitoreo constante, y tal vez cambios cardinales en la ubicación de los elementos individuales.
- Al abastecerse de materiales de construcción para uso futuro, antes del comienzo de la etapa en la que son útiles, asegúrese de guardar los recibos de las tiendas para la devolución de los saldos. Al comprar, asegúrese de que más tarde habrá una oportunidad de comprar los que faltan. Las ventas y promociones de material de calidad son maravillosas, pero dónde obtener los mosaicos de diseño más tarde, parte de lo cual, por negligencia, fue arruinado por el maestro si tomaba las sobras y ordenaba uno nuevo y esperaba más de una semana.
- Tenga mucho cuidado al elegir una organización que diseñará y reparará: lea las reseñas en el sitio, familiarícese con su trabajo, aunque esto no le dará una garantía del 100% de la calidad del trabajo realizado. Es mejor no ponerse en contacto con "conocidos de conocidos", "Un maestro maravilloso que a buen precio, casi por nada, hizo reparaciones perfectas a la tía de mi tía ..." es una utopía, tal vez con suerte, pero los precios serán un poco más bajos, y si el proyecto es complicado, el control será mucho más Un proyecto y reparación ideales: hecho de forma independiente, nadie conoce tan bien sus necesidades y visiones del concepto de comodidad y confort de un apartamento.
- Proporcione un lugar de residencia alternativo durante la reparación. Los términos del trabajo propuesto muy a menudo difieren, y hacia arriba. El laminado quería, y había linóleo: prepárese para la necesidad de nivelar el piso, y este es un mes más. Decidimos instalar un piso calefactado, y el cableado es viejo. ¡Cambiamos el cableado y aumentamos el plazo una semana más! El diseño y la reparación es algo creativo, e incluso trae mucho polvo y suciedad, en los que es simplemente imposible vivir.
Diseño
Al comenzar a transformar un apartamento de una habitación, debe saber claramente qué le gustaría obtener como resultado: un apartamento de soltero, un lugar para relajarse del trabajo y ponerse en orden o un espacio multifuncional, para un pasatiempo constante de una gran cantidad de personas. En el caso de que haya un niño, la organización del espacio de juego y el cumplimiento de las condiciones de seguridad son importantes. Una habitación, con la distribución adecuada de los muebles, puede convertirse en un mínimo de dos, máximo varias zonas autosuficientes. Si tiene un balcón en la habitación, puede crear la opción perfecta para un área de trabajo o de juegos, sujeta a un aislamiento adecuado, y para los niños, la presencia de una alfombra caliente o calefacción por suelo radiante. No te olvides de los muebles empotrados: el armario hasta el techo es muy espacioso, además de distribuir ropa casual y tops, puedes proporcionar opciones como:
- armario giratorio para zapatos;
- tabla de planchar plegable;
- lugar de trabajo en uno de los departamentos;
- lugar para una tabla de planchar y secadora, aspiradora;
- Soporte de pared para bicicleta, otros equipos deportivos, en ausencia de un balcón libre, sótano, pero un estilo de vida activo.
Importante! ¡Piensa en las pequeñas cosas, usa el espacio sabiamente!
Eliminamos las paredes extra.
El diseño del apartamento estudio es significativamente diferente de un apartamento simple de una habitación. Este diseño le da un estilo a la habitación, pero requiere un diseño más completo y elementos pensados. Ideal para una o dos y amplias oportunidades para realizar su imaginación. Primero, determinamos qué es necesario, qué es problemático transferir a otro lugar: un baño. A continuación, consideramos la selección de opciones de zona de tal manera que aumente la funcionalidad: la dividimos en sectores y, si es necesario, hacemos particiones decorativas. Las opciones de ubicación para las zonas dependen de la forma del estudio: un cuadrado, un rectángulo o una forma no estándar, por ejemplo, un trapecio. Si el diseño del apartamento permite el alojamiento de una sola persona, puede ahorrar espacio significativamente sin tener que averiguar dónde colocar una cama doble, dando este lugar al vestidor. Ideas y patrones básicos de interior para un estudio de 40 metros cuadrados. m., dependiendo de la forma del apartamento:
| Square | Rectángulo | No estándar (trapecio, en forma de "g") |
| Destacando una zona circular en el centro - para un dormitorio o vestidor | Las salas comunes se encuentran más cerca de la entrada. | Relleno de esquinas con elementos funcionales, alineación visual del espacio. |
| Asignación de la plaza lejana para el área de recreación, y combinada con ella, para la sala de estar | El dormitorio, el área de trabajo se organizará en la parte trasera del apartamento. | Batir la asimetría |
| Dividido en 2 rectángulos iguales: salas comunes y una amplia sala de estar. | Usamos un pequeño redondeo de esquinas para expandir el espacio. | La división del apartamento en forma de "g" en 3 cuadrados, el más alejado de los cuales representa un lugar para un dormitorio |
Zonificación o resolución de todos los problemas.
La división del espacio en áreas de trabajo con alta funcionalidad durante mucho tiempo no ha sido infrecuente y no es moda, sino una necesidad. Cuanto más pequeño es el cuadrado del espacio habitable, más tareas enfrenta el diseñador cuando planifica el interior de un apartamento de una habitación de 40 metros cuadrados. metros La principal dificultad no es distribuir uniformemente el espacio, sino hacer que esta distribución sea lo más eficiente y considerada posible. Al hacer la zonificación del espacio usted mismo, debe prestar especial atención a la determinación de las funciones que debe realizar el departamento, asegúrese de discutir con anticipación con todos los miembros de la familia qué elementos deben proporcionarse para cada uno de ellos. Al planificar, debe tener en cuenta las características del apartamento: la ubicación de la alcantarilla, los pozos de ventilación.
Los principales elementos de la zonificación:
- Pasillo Esta parte de la habitación al menos debe consistir en un tapete de puerta, perchas para las cosas superiores. Un espejo con una otomana no será superfluo, ahora las otomanas con estantes para zapatos son muy populares, otro método para ahorrar espacio. El guarda llaves y los colgadores originales en las puertas le darán comodidad.
Corredor. Si es posible, reducimos esta parte del apartamento al mínimo o la eliminamos por completo, un desperdicio de espacio que no tiene ninguna funcionalidad. - El baño Un inodoro con bañera, como regla, se combina en un apartamento pequeño, pero tiene sentido separar el inodoro de la bañera con una pequeña partición para fines higiénicos. Al vivir en un apartamento de más de 1 persona, tiene sentido ubicar el baño en 2 áreas separadas, lo que hace que la bañera sea un pasaje. El cambio de ubicación no es práctico.
- Área de cocina. El lugar de cocción y la cocina están solo a lo largo de la pared donde se encuentra el conducto de ventilación. Una buena campana extractora en la cocina es vital, si no hay acceso directo al balcón o ventana, la campana se convierte en la única forma de eliminar los olores de terceros.
- Armario / armario.No importa cuán grande sea el armario o el vestidor, con el tiempo no quedará espacio, por lo que le asignamos el máximo espacio posible. A veces, tiene sentido, en lugar de un armario voluminoso, hacer 2-3 pequeños, en diferentes lados del apartamento: será más costoso, pero más conveniente.
- El dormitorio Si lo desea, incluso puede pagar una cama doble. Con la ubicación adecuada, solo el propietario del apartamento sabrá sobre su existencia: puertas correderas, estanterías, particiones decorativas: hay muchas opciones para una privacidad cómoda.
- Área de trabajo Al menos: un estante plegable para una computadora portátil, como máximo un medidor de lugar de trabajo completo por metro con una mesa, estantes, silla. Debe tenerse en cuenta que este no debe ser un lugar adyacente a la cocina o al baño, sino más apartado, lo más lejos posible de los lugares públicos.
- De los niños. En el concepto de niños, la guardería es todo el espacio de la habitación. Con el diseño interior de un estudio de 40 metros cuadrados. m. usted puede donar un vestidor, limitándose a un armario, pero asignar al menos 8 metros cuadrados. Para el descanso y los juegos del niño.
Importante! La necesidad no explicada de cualquiera de los miembros de la familia puede negar todas las maravillosas ideas y soluciones originales.
Características del diseño para una familia con un niño
El diseño de un apartamento de una habitación de 40 metros cuadrados, si hay un niño, requiere que le des tu propio rincón. Incluso si por el momento sigue siendo un niño, es mejor prever esto por adelantado que hacer reparaciones nuevamente en un par de años. Para una vida familiar completa, es necesaria una división clara del espacio para los padres y el espacio para el niño. Varios proyectos que ofrecen una cama doble: para los padres con un hijo que viven juntos, parece que sus artistas simplemente no tenían hijos. Lo más exitoso será la ubicación de la zona de padres e hijos en los rincones opuestos del apartamento: el respeto, la atención a su propio territorio, la máxima absorción de sonido posible, reducirá significativamente el número.Será bastante apropiado usar la sala de estar como habitación para los padres: si es necesario, hay un lugar donde recibir invitados, y por la noche hay un rincón apartado para descansar y dormir. Con este diseño, la sala de estar-dormitorio de los padres y la habitación del niño no se deben recorrer.
Sala de estar
Como regla general, una sala de estar elegante es minimalista. Por lo tanto, al diseñar 40 metros cuadrados. m. los apartamentos se le pueden dar no mucho espacio. Si hacemos que la sala de estar sea parte de la cocina, entonces la partición en forma de barra de bar se verá orgánicamente. Si la sala de estar se asigna en una zona separada, incluirá un mínimo de un sofá, TV, audio, sistemas estéreo, es bueno proporcionar un cable HDMI para ver películas por Internet. Es mejor no usar una mesa de café en una pequeña sala de estar o, si realmente lo desea, limitarse a un mueble pequeño y simbólico. La alfombra en la sala de estar frente al sofá brindará comodidad y expandirá el espacio. Las paredes de diferentes formatos y texturas también serán apropiadas, lo que le permitirá ganar visualmente un poco de espacio. Los estantes incorporados, la iluminación, diferentes en tipo, color, son formas de darle estilo a la sala de estar, hacer que el tiempo que pase en él sea lo más agradable y cómodo posible.
Dormitorio
Un lugar para un buen descanso es una necesidad. Hay partidarios del sueño nocturno en la sala de estar, pero incluso admiten que una cama doble con un colchón ortopédico es mucho más atractiva que incluso el sofá más cómodo y grande. Despliegue constante y levantando una litera en el momento en que solo quieres relajarte, envuelto en una manta, escape. Elegir un proyecto de diseño de un apartamento de 40 metros cuadrados. m. Primero nos damos cuenta de la necesidad de un dormitorio, luego convencemos a aquellos que necesitan un vestidor o un pasillo. Además, a priori, el dormitorio debe ser un lugar apartado. Incluso si se supone que una persona vivirá sola, nadie estará a salvo de la llegada de familiares y amigos.Y si una pareja joven planea vivir en un apartamento, entonces un "nido acogedor" es simplemente una necesidad. Para ahorrar espacio, es muy conveniente utilizar una cama con mecanismo de elevación. Considere las principales opciones para separar el dormitorio, aunque solo puede ser una cama con estantes o un panel sobre su cabeza:
- Puerta corredera. Tradicional será inconveniente en la apertura, ocupará mucho espacio.
- Estanterías / tabiques con estanterías. Práctico, conveniente: al colocar una cama y un estante, es necesario garantizar que la cama se coloque de manera que al ingresar a la habitación anterior, el estante cierre la cama al máximo, pero no sobrecargue la habitación.
- Cortinas Siglo pasado? No! No solo en ropa, la moda está volviendo.
- Podio con cajones. Se necesita mucho espacio, pero se ve espectacular, elegante.
- Diseñado como una cama en la sala de estar encima del sofá. Ahorra espacio, pero en el aspecto estético depende del rendimiento y las preferencias individuales.
- Compartimento de cristal del dormitorio y salón. La funcionalidad es simbólica, pero se ve fresca, audaz.
- Tabique decorativo. Generalmente de madera, puede ser con elementos de vidrio.
La cocina
El lugar donde cocinará es una parte muy importante del apartamento. El espacio para cocinar implica su propia zonificación interna. Si la cocina se combina con la sala de estar, se debe prestar especial atención a una campana de calidad, mejor incluso para un área más grande que la indicada por el fabricante. La ubicación de la cocina está vinculada a la ubicación de los ejes de ventilación, al diseñar las opciones de cocina, esto debe tenerse en cuenta. Por lo general, su ubicación se muestra en el plan del apartamento, también puede encontrar esta información de la compañía de administración o del desarrollador si se está preparando un nuevo proyecto de cocina. Los gabinetes se hacen mejor "debajo del techo", aumentando su capacidad y practicidad. Entre el fregadero y la placa, dejamos la superficie de trabajo, prevemos la ubicación de los aparatos eléctricos, enchufes para ellos de antemano.Las "Islas de la cocina" se ven muy frescas y originales, pueden ahorrar mucho espacio cuando se colocan correctamente.
El baño
Es muy posible, incluso necesario, hacer que el baño en un apartamento de una habitación sea práctico y cómodo. El inodoro se coloca más cerca de la alcantarilla, pero no debe tomar esto como una regla muda: se puede colocar en otro lugar, observando un ángulo suficiente del desagüe. La instalación es elegante, pero no es nada nueva, ahorra espacio, se ve más estéticamente agradable. Si decidimos separar el inodoro del baño por la partición, entonces podemos limitarnos a una partición simbólica que persigue objetivos higiénicos, o hacemos un inodoro cerrado completo con un baño. Si hay una posibilidad y una necesidad, proporcionamos inmediatamente un lugar para un calentador de agua, al menos 30 litros o uno de flujo. El azulejo en tonos pastel y tonos de gris es relevante en color, la pequeña celda de ajedrez, la tela escocesa roja y negra se ve fresca. Para optimizar el espacio del baño, utilizamos las siguientes características:
- Coloque la lavadora debajo del fregadero. Un fregadero cuadrado con una caja para lavadora ahorrará espacio, será una solución conveniente.
- Llenamos el espacio sobre el inodoro con un gabinete o estantes ergonómicos. Ofrecemos un lugar para una escoba, accesorios para el cuidado del piso.
- El espejo Un espejo grande sobre el lavabo expandirá el espacio, le dará estilo. Si desea usar estantes con una puerta de espejo, vale la pena considerar su pequeña profundidad.
- Escondemos las tuberías en una caja, que cosimos y hacemos estanterías, sin olvidarnos de la ventana requerida.
- Ofrecemos un lugar para la ropa sucia. Tales pequeñeces a menudo quedan fuera de la atención, cuando se usan, surgen preguntas domésticas con una violación de la apariencia.
Combinando con un balcón - expandiendo horizontes
Un balcón o logia es una gran oportunidad para aumentar el tamaño del apartamento.Después de un aislamiento de calidad, idealmente: calefacción por suelo radiante, extracción de la batería en el balcón aislado, puede pensar en la designación de 2 m2 adicionales. y área más utilizable. Si no es posible instalar un piso calentado, una alfombra con una pila larga ayudará.
Considere las principales opciones para combinar con un balcón, su propósito funcional:
- Lugar de trabajo Un área completamente aislada para el trabajo o el estudio, se puede separar mediante puertas correderas.
- Cocina / parte de la cocina. Dividimos la cocina en dos zonas: la principal, para cocinar, en el apartamento, la segunda, para comer en el balcón o en la abertura entre el balcón y la cocina. Otra opción es sacar el refrigerador o parte de la cocina con horno en el balcón.
- Bar Barra de bar, minibar, vista de la ciudad de noche, un lugar romántico y relajante.
- Área de recreación. Un sofá o una silla con un estante plegable para una computadora portátil le permitirán retirarse, distraerse.
Importante! Incluso con el aislamiento de la más alta calidad, el balcón no es adecuado para una litera en la estación fría.
Consideremos algunos proyectos
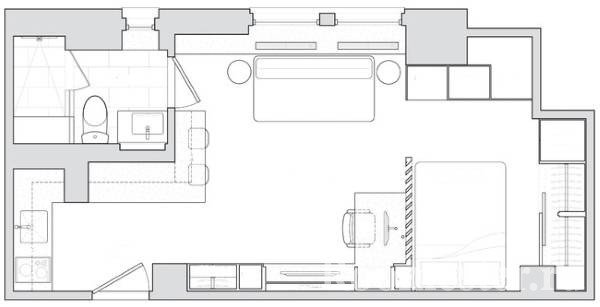
Apartamento tipo estudio de 40 m2.
Esta versión del apartamento tiene una forma rectangular. La litera se encuentra en el lado más alejado de la entrada, las persianas sirven como partición. La sala de estar se combina con el lugar de trabajo. Los detalles de madera clara son llamativos, que unen y dividen el apartamento en sectores al mismo tiempo. Usando colores pastel en el interior, es necesario diluir su severidad con detalles brillantes: almohadas, platos, jarrones de colores, pinturas o fotos. Un bar en la sala de estar es una opción práctica. Un espejo grande en la bañera aumenta el espacio, un lavabo cuadrado con un armario permite mezclar toallas por un lado y papel higiénico por el otro. Se debe prestar especial atención a un alma aislada: es higiénica y elegante. El baño está dominado por los colores blanco, gris-beige. El apartamento sorprende con una gran cantidad de diferentes armarios, departamentos. Opción bastante práctica y elegante.
Apartamento de planta abierta de 40 metros cuadrados. m con particiones transparentes
Otra combinación de gris y madera: ¡un clásico elegante! Se asigna un área grande con una funcionalidad considerable para el baño. El espectacular patrón gris en las paredes en combinación con azulejos blancos lo convencerá una vez más de la confiabilidad de esta combinación de colores. Una de las raras opciones con un amplio pasillo, que combina un vestidor. La mayor parte del apartamento consta de dos áreas: la primera es la cocina y el comedor, la segunda es la sala de trabajo y el dormitorio, representados por una elevación en el podio. El diseño del apartamento es intencionalmente un poco descuidado: lámparas colgantes al azar sobre el área de trabajo, pinturas multiformato sobre la cabecera de la cama. Una pared de vidrio sin peso separa la cama del sofá. La elección del color de la superficie del piso al lado del sofá es muy interesante: acentos brillantes que dan vida al interior. El delantal en la cocina coincide con el estilo general del apartamento, continuando con el tema de la asimetría.
Apartamento tipo loft
¡Nos inspiramos en el estilo "loft"! La reparación en un edificio nuevo es muy costosa, especialmente para los jóvenes que acaban de comenzar una vida independiente. Paredes de ladrillo combinadas con superficies en relieve grises. Un mínimo de diseños complejos, el uso de muebles antiguos y cosas actualizadas. Al mismo tiempo, en esta realización, una cocina bastante espaciosa con una espectacular mesa alta de madera con taburetes. En un área separada hay un dormitorio. Desde el exterior puede parecer que el interior es muy simple, descuidado, pero a pesar de los materiales de basura de los que están hechas las cosas de diseño, el apartamento no parece barato, sino que parece joven. Un baño bastante estándar con cabina de ducha e instalación, solo una pared decorada con tonos de ladrillo y color pastel recuerda el estilo "loft".
Apartamento para tres
Opción para una familia con dos hijos.En este caso, la zonificación, debido a la gran cantidad de residentes, tuvo que llevarse a cabo, centrándose no en las necesidades, sino en la funcionalidad mínima necesaria. El balcón estaba aislado, dispuesto debajo del área de trabajo de uno de los niños. Para el segundo niño construyó un podio con una cama, una mesa. Hay una gran cantidad de gabinetes espaciosos. El elemento original es un tablero negro con estantes en la cocina. Una cocina moderna, pequeña, bastante austera, de dos lados, con un delantal de espejo y lámparas en forma de varios vasos. Suelos muy tópicos, con un pequeño diseño moderno en blanco y negro. El baño está diseñado en el mismo patrón, diseñado en el estilo de "minimalismo". Las paredes decoradas son llamativas, la falta de espacio libre, que, por el contrario, agranda visualmente la habitación.
Proyecto de un apartamento con muebles transformadores.
Solo una versión brillante del diseño del apartamento. Enorme espacio vacío, la ilusión de minimalismo en la habitación. De hecho, gabinetes muy espaciosos con un sofá incorporado en una habitación grande, los mismos gabinetes enormes por otro lado, un nicho para un televisor. La división entre la habitación y la cocina se transforma en un escritorio de trabajo por un lado y un comedor por el otro. Una cama grande con un mecanismo de elevación está inscrita orgánicamente en el techo. El tabique de madera se complementa con puertas correderas de cristal. La combinación de blanco y beige se diluye con otro tono verde. Los materiales y colores naturales armonizan, enfatizando el minimalismo exterior del apartamento. Las soluciones interesantes con la geometría correcta expanden el espacio. Es de destacar que la mesa de trabajo se transforma en una más grande, para recibir invitados.
Diseño de apartamentos de estilo escandinavo
Una característica de diseño llamativa de este apartamento es una cama con estantes encima del sofá. Un ático tan peculiar libera espacio en el piso, no absorbe mucho el espacio visualmente, debido a la ejecución blanca de las paredes, así como el piso claro.La pared entre la habitación y la cocina tiene una gran ventana. Los detalles interiores son grandes, más oscuros, pero sostenidos en el esquema de color. La cocina continúa con el estilo general del apartamento. Se destacan las sillas y una lámpara de araña. Tal mezcla de modernidad y tradicionalidad causa una impresión ambigua. Uno debe tener un gusto refinado, un sentido del estilo para diseñar independientemente un apartamento de esta forma, evitando innecesarios, encontrando un equilibrio de dos épocas. El baño se adhiere al mismo estilo simple: piso gris, baldosas blancas con lechada gris. El piso común, sin la asignación de una cabina de ducha, aumenta el espacio.
Desde odnushki hacemos un apartamento de dos habitaciones.
Esta es una de las opciones sobre cómo organizar adecuadamente el espacio para una familia con dos hijos. También audazmente jugando con el color. El diseño del apartamento proporciona una gran cantidad de gabinetes en diferentes rincones del apartamento. La cocina y la sala se combinan en el estudio. El dormitorio es compartido, pero está dividido en un área de descanso para padres y una litera separada para niños. El dormitorio conjunto está hecho en el estilo "marino". La sala de estar es más espaciosa y elegante, se prefieren los colores cálidos y los diseños livianos. Una cocina pequeña y luminosa se diluye con un delantal brillante que da jugosidad a la habitación. Incluso un gran reloj en la pared enfatiza una cierta frivolidad y calidez de la habitación. El pasillo está en los mismos colores cálidos. El baño extiende el espacio tanto como sea posible, llenándose de gabinetes de espejo sobre el lavabo, lavadora.

































































Por un lado, este diseño de un apartamento de una habitación de 40 metros cuadrados incluye solo elementos decorativos simples, pero juntos crean una atmósfera muy hermosa y alegre en el hogar.