La comodidad en la casa es un aspecto importante del que depende tanto la comodidad del individuo como la de todos los miembros de la familia. En un esfuerzo por equipar la vivienda, las personas comienzan a buscar ideas interesantes, poner en práctica las ideas más atrevidas. Una de estas soluciones, utilizada activamente por los diseñadores, es la disposición de la cocina-sala de estar. El diseño, que combina varias habitaciones funcionales diferentes, se utiliza en la construcción de casas nuevas, pero muchas logran organizarlo en los apartamentos del antiguo parque de viviendas.
Re-planificar puede conducir a problemas serios, y luego devolver todo a su estado original es difícil. Antes de elegir esta opción, vale la pena considerar una serie de puntos, principalmente relacionados con la violación de la arquitectura. La sala de estar es una sala de estar, un lugar de descanso, y la cocina es una sala de servicio para cocinar. Combinarlos en un solo espacio no es deseable, pero en algunos casos tal combinación es necesaria, le permite resolver problemas importantes.
La ausencia de una pared en blanco entre la cocina y la sala de estar implica un sistema completamente diferente de organización del espacio, en comparación con la disposición de las habitaciones separadas. Este diseño no es adecuado para todos, pero es una buena opción en los siguientes casos:
el apartamento tiene un área pequeña y es imposible colocar todo lo que necesita en la cocina;
una familia numerosa vive en una casa privada y, independientemente de lo que hagan sus padres, sus hijos deben ser supervisados constantemente;
la cocina rara vez se usa o no se usa para el propósito para el que fue diseñada;
La vivienda está destinada exclusivamente para fiestas;
una persona ama cocinar, quiere jactarse de su habilidad, realizar todas las acciones a la vista de otros miembros del hogar e invitados;
La casa es grande, cada residente tiene su propio rincón personal.
Esto es solo una parte de las opciones. Hay muchas otras situaciones en las que dicho diseño es apropiado. Por ejemplo, la anfitriona pasa mucho tiempo en la cocina, mientras quiere comunicarse con el resto de la familia que descansa cerca. Sin embargo, antes de optar por tal esquema, vale la pena considerar todas las ventajas y desventajas de un solo espacio. Entre las principales ventajas combinadas en una habitación de un área residencial y de servicio, podemos distinguir:
Uso racional del espacio vital.Aquí puede colocar tres zonas: un lugar para cocinar, para comer, para organizar el ocio y la recreación.
En la cocina puede organizar todos los artículos de cocina, muebles, electrodomésticos necesarios, se hace posible ampliar la superficie de trabajo.
Conveniencia en la organización de comidas. Los platos después de cocinar inmediatamente caen sobre la mesa.
El aumento en el número de ventanas y, en consecuencia, la penetración de la luz natural.
Ahorro en electrodomésticos. En una sola habitación grande, puede instalar un televisor que todos puedan ver.
Una familia puede pasar más tiempo juntos.
Todas las cosas están a la vista, lo que hace que el ambiente sea lo suficientemente agradable.
Cada medalla tiene su lado opuesto. La cocina-sala no es la excepción. Las principales desventajas de este vecindario son las siguientes:
Costos adicionales para actividades de reurbanización y reparación. Tendrá que cambiar el acabado del piso, las paredes y el techo por materiales resistentes a la alta humedad.
Tiempo y esfuerzo adicionales para obtener permiso para la reurbanización en el BTI.
Falta de aislamiento acústico. Todos los presentes escucharán ruidos provenientes del fregadero, campana extractora, lavavajillas y otros equipos.
El olor a comida penetrará en la sala de estar y penetrará en las paredes, muebles y objetos circundantes. Una capucha potente ayudará a resolver parcialmente el problema, pero también requerirá fondos para comprarlo.
Mantener el área de trabajo en constante limpieza.
Necesitará un diseño competente para un espacio abierto, que no todos pueden hacer solos.
La cocina se realiza en exhibición pública, lo que no es adecuado para todas las amas de casa.
Características de diseño
Las principales ventajas de cualquier hogar son su originalidad, exclusividad. Esta declaración se aplica incluso a los apartamentos con un diseño estándar, pero para crear un interior único, una fantasía no es suficiente, se necesitan habilidades de diseño. Si se guía por los principios correctos al diseñar una cocina-sala de estar, entonces la vivienda será lo más cómoda posible, los residentes se sentirán cómodos.
Al crear un proyecto para una nueva cabaña o una casa privada, puede equipar la sala de estar y la cocina en un solo espacio sin ningún problema. Sin embargo, para apartamentos típicos es mucho más difícil implementar tal tarea. Para que el proyecto sea de alta calidad, cumpla con todos los estándares aceptados, tenga en cuenta los deseos de los residentes, se requerirán las siguientes acciones:
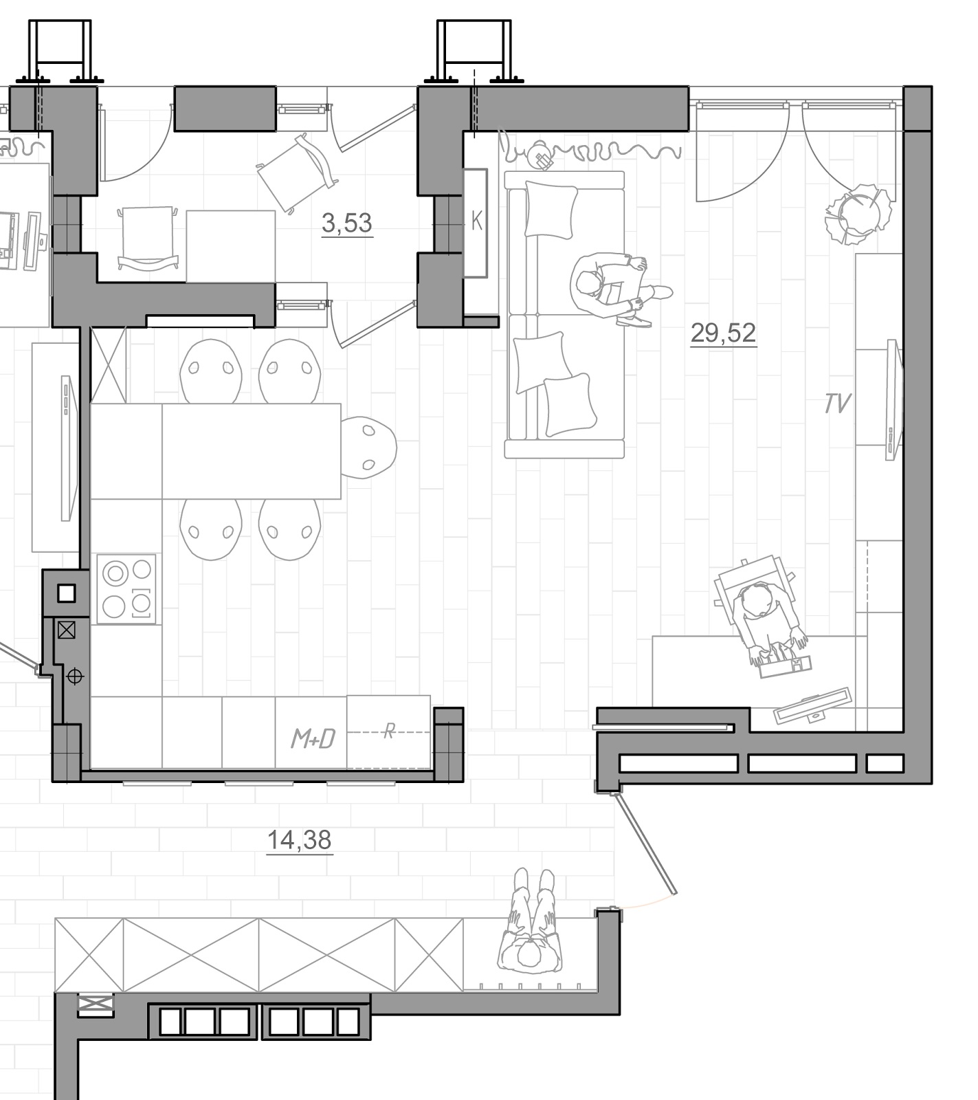
Medición Se mide el área de ambas habitaciones.
Bosquejo preliminar Según las mediciones, se crea un plano de planta aproximado. Aquí se indican todas las ventanas, puertas, la ubicación de los conductos de ventilación y otros elementos estructurales.
Diseño. Inicialmente, la zona de la cocina se destaca, contiene los electrodomésticos y equipos necesarios, porque todos los elementos dependen de los servicios públicos. Luego se determina el lugar para el comedor y la sala de estar.
Zonificación Puede usar muchas opciones: iluminación, materiales de decoración, pantallas y particiones, etc.
La situacion. Para cada área funcional, se seleccionan los muebles y elementos interiores correspondientes.
Iluminación En el pasillo puede colgar una lámpara de araña central, mientras que en la cocina necesita iluminar el área de trabajo.
Estilo. El espacio común debe corresponder a una sola dirección.
Materiales de acabado. Vale la pena considerar el hecho del aumento de la humedad, los cambios de temperatura.
Cómo legalizar la reurbanización
Antes de continuar con la reconstrucción del apartamento, el propietario está obligado a averiguar qué cambios están permitidos y qué está estrictamente prohibido. La sala de estar solo se puede combinar con una cocina en la que está instalada una estufa eléctrica. Al mismo tiempo, la partición no puede ser completamente demolida. En la pared de soporte solo es posible hacer una puerta angosta con refuerzo, y en la partición, ancha con puertas correderas, batientes o un arco.
Es inaceptable llevar a cabo la reconstrucción en casas reconocidas como de emergencia, demoler los muros de carga, conectar la sala y la sala de la cocina con una estufa de gas.Nadie aprobará dicha reurbanización, y si ya se ha completado, deberá pagar una multa y devolver todo a su lugar.
Si se cumplen las normas anteriores, el propietario planea cambiar el diseño, entonces en la etapa inicial debe ser legalizado. Este proceso tiene lugar en varias etapas:
Preparación de proyectos. Para hacer esto, debe comunicarse con la BTI o una oficina de diseño que tenga la aprobación de la SRO y solicitarles un boceto o proyecto de diseño.
Presentación de una solicitud. Una vez recopilados todos los documentos necesarios (proyecto de reurbanización, certificado de registro, documentos sobre el derecho de propiedad, etc.), la solicitud correspondiente se presenta a la administración del distrito.
Trabajos de reparación. Después de recibir el permiso de la inspección de la vivienda, puede proceder con las medidas de reparación.
Nueva hoja de datos. Una vez completada la reparación, se presenta una apelación a la inspección de la vivienda, después de lo cual debe presentarse una comisión interinstitucional para cambiar la planificación, que elaborará el acto pertinente. Con el certificado recibido, el pasaporte, el extracto del registro estatal unificado, el propietario del apartamento debe comunicarse con BTI, que, después de pagar el servicio, proporcionará un nuevo pasaporte técnico.
Tomamos en cuenta la forma y dimensiones de la habitación.
Puede combinar la cocina con la sala de estar de varias maneras: parcialmente con una abertura estrecha, parcialmente con una abertura amplia, completamente. La primera opción se usa solo cuando hay una pared de soporte entre las habitaciones y, dependiendo de los documentos reglamentarios, no hay forma de organizar un paso libre. El segundo y tercer método proporcionan más ideas para organizar un solo espacio.
La sala de la cocina puede tener una gran variedad de dimensiones y formas. Las más comunes son las habitaciones cuadradas y rectangulares, pero también hay opciones no estándar que tienen una, dos esquinas más atípicas. La disposición de cada uno de los tipos enumerados debe abordarse individualmente:
RectangularLos muebles se colocan mejor a lo largo de una pared, lo que permite aumentar el área libre. Además, los expertos recomiendan usar diseños en forma de g o p que le permitan maximizar el uso de esquinas.
Plaza El tipo de diseño de la isla se verá genial aquí. Teniendo los muebles en pequeños grupos, puede planificar claramente el espacio. También es apropiado usar el método de disposición en forma de L.
No estándar En habitaciones redondas, ovales y trapezoidales, puede crear un interior único. Usando muebles especiales, un sistema de nichos, estantes, es posible hacer ángulos rectos en la habitación.
Un factor importante en la organización de la sala de la cocina es la cantidad de ventanas, su ubicación. La simetría general, la división en zonas funcionales y la disposición de los objetos dependen de esto. También vale la pena considerar las dimensiones. Casi cualquier estilo es adecuado para habitaciones grandes. En los pequeños, uno debe usar técnicas de aumento visual en el espacio vital.
Opciones para acabado y espacio de zonificación
Es imposible diseñar una sala de cocina sin el uso de técnicas de zonificación. Después de todo, la habitación combina una cocina, comedor, sala de estar. Para dividir el espacio en varias áreas funcionales y, al mismo tiempo, racionalizar el interior, realizado en el mismo estilo, deberá tener en cuenta muchos matices, pensar detenidamente en todos los detalles. Puede organizar la demarcación condicional de una habitación de diferentes maneras. Considere algunas de las opciones:
Barra de bar. Ayuda a crear un ambiente acogedor. Es indispensable en habitaciones pequeñas, ayuda a ahorrar espacio. Se puede utilizar tanto para su propósito previsto como como mesa de comedor, área de trabajo. Hay dos formas de colocarlo: adjuntarlo al juego de cocina, utilizarlo como un elemento de barra independiente.El diseño no debe instalarse si niños pequeños, personas mayores viven en la casa.
Piso de dos niveles. Si la altura del techo lo permite, el podio puede ser una buena herramienta para dividir la habitación en zonas. Es muy importante tener en cuenta las proporciones de la habitación y el podio para que el diseño se adapte armoniosamente al interior general. Este elemento también ayudará a ocultar varias utilidades de cocina, puede organizar un sistema de almacenamiento.
Diseño de isla. La isla te permite hacer la habitación más funcional. Lo principal en la organización: ubicación central, apertura. La forma más fácil de construir una estructura de este tipo es llevar al centro los módulos estándar del conjunto de cocina, comedor y sofá.
Particiones Estas estructuras le permiten resolver cualquier problema asociado con la división de las instalaciones en secciones separadas. La forma más fácil de organizar la zonificación es construir un muro a partir de paneles de yeso. Pero para estos fines, se pueden utilizar una variedad de elementos: muebles, estanterías, pantallas, persianas, etc.
Arcos Este elemento arquitectónico bloqueará parcialmente la abertura en la pared, divide la habitación. De hecho, este es un tipo de partición que puede estar hecha de varios materiales, ya sea madera, metal o vidrio.
Puertas correderas. Esta opción será indispensable para una cocina y sala de estar parcialmente combinadas. Las puertas de vidrio a través de las cuales se ve todo el espacio se ven especialmente bien.
Acuario Este artículo puede actuar como una partición independiente, o puede integrarse en una parte de la pared, montada en un pedestal.
Área de cocina
Al organizar un lugar para cocinar, en primer lugar, debe centrarse en su tamaño. Inicialmente, debe colocar correctamente el "triángulo" de la cocina, que consiste en una estufa, fregadero, refrigerador. Determine las dimensiones y la ubicación de la superficie de trabajo.Por lo general, se encuentra entre la estufa y el fregadero, pero en una habitación grande puede proporcionar una opción de isla.
Se debe prestar especial atención al sistema de ventilación. Los expertos recomiendan que instale una campana extractora potente para que durante la preparación de los productos alimenticios los olores no se propaguen por la habitación, no sean absorbidos por los muebles y otros artículos. El equipo se selecciona en silencio para que en el proceso no interfiera con todos los presentes.
Al elegir muebles, se tiene en cuenta el estilo de toda la habitación. En color, forma, debe corresponder al interior general. También tiene que ser funcional y cómodo. Al organizar la iluminación, es necesario tener en cuenta el hecho de que el candelabro central estará en el pasillo, por lo que lo principal aquí es iluminar el área de trabajo. La decoración del piso, paredes, techo debe mantenerse en el mismo estilo con el resto del espacio.
Sala de estar
Hay varias formas de separar un área de otra. El método más fácil para realizar la zonificación es usar muebles. Para estos fines, son adecuados los sofás de esquina y estándar, una variedad de bastidores, incluidos los escalones, gabinetes, mostradores de bar. También puede usar un esquema de color, diferentes revestimientos texturizados de paredes y pisos. Con la ayuda de la iluminación para cada zona, puede hacer su propio acento de luz.
Zona de comedor
El factor más importante para determinar el lugar para un comedor es el área que ocupará. Este parámetro depende principalmente del número de miembros del hogar, las preferencias personales de los propietarios de la casa y las dimensiones de la habitación. Si la familia está compuesta por dos personas, entonces una pequeña mesa es suficiente, pero puedes salir con una barra de bar.
Para una ubicación cómoda, una familia numerosa necesitará una mesa impresionante. Es racional colocar el comedor en el centro en forma de "isla", pero esta disposición solo es adecuada para habitaciones espaciosas.Si la habitación tiene una forma rectangular alargada, se elige un lugar a lo largo de una de las paredes.
Puede resaltar un lugar para comer con la ayuda del piso y su combinación. Por ejemplo, en toda la habitación para colocar linóleo, y en el comedor - laminado. La mesa montada en el podio se ve genial. No descuides los muebles. Usando el sofá de un lado, el área de comedor se puede separar de la sala de estar y una partición de la cocina.
Estilo y esquema de color
Para seleccionar el diseño y el color perfectos en la sala de estar de la cocina, los creadores de interiores profesionales se guían por algunas reglas. Debe recordarse que un patrón de acabado pequeño, tiras de intersección aumentan visualmente el espacio, y uno grande, por el contrario, lo estrecha. La ilusión de movimiento en el pasillo, combinada con la cocina, ayudará a crear rayas diagonales. El diseño de una moderna sala de cocina puede realizarse de acuerdo con una variedad de proyectos estilísticos experimentales.
Loft
Darse cuenta de que tal proyecto es real solo en una habitación de un área grande. La sala debe ser lo más espaciosa posible, sin tabiques ni arcos. La combinación de la cocina con la sala de estar en el estilo loft debe tener en cuenta las siguientes características:
Acabado rugoso de paredes, techo. Yeso texturizado, hormigón desnudo, ladrillo será suficiente Se instalan tuberías y vigas de madera macizas en el techo, y las comunicaciones se dejan abiertas.
No hay arcos y particiones. La separación se lleva a cabo utilizando una barra, una isla, una altura de piso diferente, diversos elementos interiores, como un sofá, una cómoda.
Solo iluminación artificial cálida. El ambiente y la comodidad del hogar se crean con la ayuda de lámparas colgantes originales, focos, puntos rotativos y bombillas desnudas en los mismos cables.
La simplicidad de los materiales. Para la decoración use piedra, madera, metal o sus sustitutos artificiales. Algunos elementos están especialmente envejecidos en diversas técnicas.
Grandes ventanas abiertas.Deben dejar entrar mucha luz y coincidir con el origen del estilo.
Estilo escandinavo
Se utiliza una paleta de colores tradicional. Tales salas de cocina hacen blanco, crema, gris. Contra un fondo tan universal, es posible una decoración brillante. Con mayor frecuencia, los colores de acento son tan cercanos a los tonos naturales como sea posible (azul, verde, marrón). Para agregar profundidad y expresividad, se utilizan elementos negros.
El mobiliario para la sala escandinava se elige pequeño y conciso. La habitación no debe sobrecargarse con decoración y cosas inútiles. Los estantes y los cajones deben estar cerrados para garantizar la comodidad y ocultar todo lo innecesario. Las estanterías abiertas generalmente sirven para acomodar la decoración y las plantas de interior.
El grupo de comedor incluye grandes mesas de madera, sillas de diseño desigual de diferentes épocas con marcas notables. En amplios apartamentos con nichos, el área de relajación está amueblada con cómodos sillones luminosos.
Minimalismo
Un diseño estricto se acompaña principalmente de una sensación de proporción y libertad, solo líneas rectas y máxima iluminación. La decoración de las paredes, el piso y el techo carece por completo de decoración. El comedor minimalista puede ser de cualquier diseño: cuadrado, en forma de L. Los electrodomésticos son los mejores para elegir integrados y de máxima funcionalidad. El diseño del comedor moderno implica la presencia de fachadas lisas de metal, vidrio, plástico, textiles lisos.
El esquema de color generalmente se usa en contraste. Una combinación de blanco y negro, gris y beige se verá bien. Las siguientes características básicas de los muebles cumplen con el concepto general de diseño:
Superficies simples: sin decoración, tallado ni molduras;
Forma estricta de muebles y otros artículos de interior;
Solo fachadas lisas;
Tapicería sólida y textiles.
Alta tecnología
Los principios básicos de este estilo son la modernidad, el dinamismo y la alta tecnología.Los componentes obligatorios son la uniformidad de ángulos y formas, la severidad y claridad de las líneas. Tal cocina-sala de estar es elegida por los seguidores de la vanguardia, manteniendo el ritmo de los tiempos.
Si las paredes de la habitación están hechas de ladrillo u hormigón, no están pintadas, use solo yeso liso. Arcos, particiones hacen el tono de la decoración de la pared. Uso de iluminación incorporado, monte la lámpara en el techo, paredes y piso. Los muebles de cocina cromados a menudo tienen su propia iluminación.
Provenza
El elegante estilo francés hará que la sala de la cocina sea romántica y rústica. La decoración utiliza una paleta de colores pastel. Más a menudo son colores rosa, azul y lavanda apagados. El tema del color se diluye no con acentos pegadizos, sino con encajes y patrones. Los textiles sintéticos y el plástico no se utilizan para la decoración.
En el comedor de estilo provenzal, todos los electrodomésticos modernos deben estar ocultos en muebles antiguos. Para obtener una composición aireada y amigable, es necesario llevar a cabo una zonificación competente. Para hacer esto, a menudo usan columnas de imitación, un ventanal y pequeños techos rectangulares debajo del techo.
Estilo clasico
El estilo clásico tradicional se expresa en calidad y perfección. Se caracteriza por techos altos, muebles sólidos y sólidos y una rica paleta de colores. La característica principal de tales interiores es el predominio de productos hechos de madera natural o lo más cerca posible.
El acabado y los muebles se eligen solo de materiales naturales. Se puede usar tela de cortina de alta calidad, encimeras de piedra, fachadas de vidrio, mesas de madera. La decoración en la cocina-sala de estar clásica es mucho. Moldeado de estuco, jarrones de cerámica, varios detalles forjados serán apropiados.
Pais
A pesar del clasicismo de esta tendencia, el estilo country es muy popular entre los diseñadores modernos. La atmósfera del hogar familiar y la comodidad se crean mediante múltiples elementos de decoración. Deben estar correctamente combinados.En tal habitación, alfombras, pinturas, colchas de lana, una chimenea en la entrada sería apropiado.
La cocina-estudio de estilo rústico debe tener un diseño único. Cada zona debe estar bien iluminada, por lo que una gran cantidad de accesorios son bienvenidos. Los muebles se arreglan teniendo en cuenta la conveniencia para todos los hogares, la simetría no es una prioridad.
Art Decó
El diseño interior de moda consta de varios estilos. La característica principal que lo hace reconocible es la presencia de una decoración contrastante. Más a menudo dominado por gamma blanco y negro. Como colores adicionales use oliva, arena, esmeralda.
Para la decoración, combinada con el comedor, use materiales caros de alta calidad (madera lacada, mármol, cerámica). Visualmente, la sala se divide con pisos, revestimientos de paredes. El área de trabajo se designa con la ayuda de mosaico monocromo, cullet con lentejuelas doradas y plateadas.
Moderno
Para que coincida con el estilo moderno, la sala de la cocina debe ser lo más simple posible. El esquema de color puede ser desde un monocromo estándar hasta brillante con un patrón u ornamento extraordinario. Tal comedor debería crear una imagen dinámica, pero no sobrecargarse con detalles innecesarios. Los muebles deben elegirse con estilo, compactos y funcionales. Las mesas y sillas de forma estricta se colocan en líneas rectas, formando islas y penínsulas. Para dividir la habitación en zonas, se utilizan varios métodos:
Barra de bar;
Diferentes niveles de género
Falsos techos;
Iluminación;
Decoración de la pared;
Artículos de mobiliario;
Suelos combinados;
Columnas, arcos, nichos funcionales.
Elección y disposición competente de los muebles.
Para organizar los muebles en una habitación combinada es necesario de acuerdo con un plan previamente pensado. La elaboración de un dibujo debe tener en cuenta las normas de seguridad contra incendios. En primer lugar, designan un lugar para auriculares y dispositivos técnicos.La elección de un método específico depende del tamaño y el diseño de la habitación.
Juego de cocina
Los muebles y estantes con fachadas lisas y lisas en el color de las paredes son adecuados para una habitación pequeña. Una gran opción son los gabinetes cerrados sin manijas que se abren cuando se presionan. Si el área lo permite, los auriculares pueden acentuarse. Un delantal espectacular, hermosos accesorios atraerán la vista y crearán un estado de ánimo.
El área de la cocina se puede ubicar de diferentes maneras, pero debe estar cerca de las comunicaciones y no entrar en la sala de estar. En la sala en forma de cuadrado, los auriculares se instalan en la esquina. Si esta es la cocina de Jruschov, entonces la mesa y los estantes colgantes se colocan en un nicho conveniente. La ubicación directa a lo largo de una pared es adecuada para amplias salas de estar en edificios nuevos o apartamentos tipo estudio.
Muebles de comedor
Para una gran sala de cocina, elija una mesa de comedor masiva, diseñada para un mínimo de 8 personas. Puede ser un diseño integral o un transformador. La sala en miniatura está amueblada con productos concisos y compactos. La ubicación ideal para todas las opciones sería la parte central o área cerca de la ventana.
El tamaño y la forma de las sillas dependen del estilo de la sala. En habitaciones grandes, las sillas y los asientos con reposabrazos serán apropiados. Para los más pequeños, es mejor usar opciones de heces transparentes y plegables.
Muebles de sala
Para una sala de estar, debe elegir muebles que sean funcionales y solo necesarios para su uso. Cajoneras voluminosas, armarios, estanterías no deben abarrotar el espacio. En la sala de estar puede colocar un sofá bajo, una mesa de café y varios sillones. El límite de las zonas a menudo se indica mediante un bar o grupo de restaurantes.
Alrededor de la sala se colocan armarios altos y otros sistemas de almacenamiento. Agregue calor al hogar. Los apartamentos utilizan chimeneas eléctricas y decorativas. Puede colocarlos debajo del panel de TV o en el área debajo de la partición decorativa.
Espacio de equipamiento técnico
Al combinar varias áreas funcionales, es importante seguir las reglas de ergonomía. También debe entenderse que dos habitaciones completamente diferentes permanecerán en sus lugares. Está estrictamente prohibido transferir comunicaciones a un lugar más adecuado en apartamentos.
Lucha contra los olores: campana extractora y sistema de ventilación
Para estar cómodo en la habitación combinada, debe estar equipado con un buen sistema de ventilación. En los apartamentos típicos solo hay una campana, y el flujo está garantizado por la ventilación. Por lo tanto, se debe instalar una campana potente sobre la estufa o la placa para limpiar el aire.
Es mejor no tratar de resolver el mal olor de la cocina instalando un aire acondicionado en la sala de estar. Esto no salvará la habitación de los aromas de los alimentos, sino que solo provocará daños en el equipo y la sustitución frecuente de los filtros.
Pensamos en la iluminación y la luz de fondo.
Para iluminar cualquier habitación combinada utilizando fuentes locales. Para la comodidad de permanecer en cada zona, se instalan apliques, lámparas de pie, lámparas de techo. Para las áreas más utilizadas, haga la mayor iluminación de contraste.
La superficie de trabajo debe enfatizarse con una luz brillante, pero no molesta. Para hacer esto, se montan mini-lámparas en la parte inferior de los estantes colgantes de los auriculares para que la luz pase por toda la superficie. Como iluminación de un fregadero, una superficie de cocción utiliza una cinta LED.
La elección de decoración y textiles.
Con la ayuda de pantallas de tela, es posible llevar a cabo una zonificación exitosa. Esta opción es adecuada para cualquier tipo de local, ya que los textiles blandos ocupan poco espacio y son fáciles de limpiar. El material para las cortinas es práctico y no arruga.
Los elementos decorativos se seleccionan para un estilo y tema específicos de la habitación. Puede concentrarse en la hermosa lámpara de araña sobre el grupo de comedor, una estantería con plantas vivas. Si el espacio lo permite, instale jarrones de piso, diseños abstractos forjados con letras.
Conclusión
Combine la cocina con la sala de estar en una casa de campo o apartamento de cualquier tamaño. La parte más ligera y espaciosa debe reservarse para esta zona. Puede colocar áreas funcionales de diferentes maneras utilizando cualquier medio disponible. Los diseñadores modernos equipan dicha habitación de acuerdo con todas las reglas de ergonomía.
La comodidad en la casa es un aspecto importante del que depende tanto la comodidad del individuo como la de todos los miembros de la familia. En un esfuerzo por equipar la vivienda, las personas comienzan a buscar ideas interesantes, poner en práctica las ideas más atrevidas. Una de estas soluciones, utilizada activamente por los diseñadores, es la disposición de la cocina-sala de estar. El diseño, que combina varias habitaciones funcionales diferentes, se utiliza en la construcción de casas nuevas, pero muchas logran organizarlo en los apartamentos del antiguo parque de viviendas.
Re-planificar puede conducir a problemas serios, y luego devolver todo a su estado original es difícil. Antes de elegir esta opción, vale la pena considerar una serie de puntos, principalmente relacionados con la violación de la arquitectura. La sala de estar es una sala de estar, un lugar de descanso, y la cocina es una sala de servicio para cocinar. Combinarlos en un solo espacio no es deseable, pero en algunos casos tal combinación es necesaria, le permite resolver problemas importantes.
Contenido
Ventajas y desventajas.
La ausencia de una pared en blanco entre la cocina y la sala de estar implica un sistema completamente diferente de organización del espacio, en comparación con la disposición de las habitaciones separadas. Este diseño no es adecuado para todos, pero es una buena opción en los siguientes casos:
Esto es solo una parte de las opciones. Hay muchas otras situaciones en las que dicho diseño es apropiado. Por ejemplo, la anfitriona pasa mucho tiempo en la cocina, mientras quiere comunicarse con el resto de la familia que descansa cerca. Sin embargo, antes de optar por tal esquema, vale la pena considerar todas las ventajas y desventajas de un solo espacio. Entre las principales ventajas combinadas en una habitación de un área residencial y de servicio, podemos distinguir:
Cada medalla tiene su lado opuesto. La cocina-sala no es la excepción. Las principales desventajas de este vecindario son las siguientes:
Características de diseño
Las principales ventajas de cualquier hogar son su originalidad, exclusividad. Esta declaración se aplica incluso a los apartamentos con un diseño estándar, pero para crear un interior único, una fantasía no es suficiente, se necesitan habilidades de diseño. Si se guía por los principios correctos al diseñar una cocina-sala de estar, entonces la vivienda será lo más cómoda posible, los residentes se sentirán cómodos.
Al crear un proyecto para una nueva cabaña o una casa privada, puede equipar la sala de estar y la cocina en un solo espacio sin ningún problema. Sin embargo, para apartamentos típicos es mucho más difícil implementar tal tarea. Para que el proyecto sea de alta calidad, cumpla con todos los estándares aceptados, tenga en cuenta los deseos de los residentes, se requerirán las siguientes acciones:
Cómo legalizar la reurbanización
Antes de continuar con la reconstrucción del apartamento, el propietario está obligado a averiguar qué cambios están permitidos y qué está estrictamente prohibido. La sala de estar solo se puede combinar con una cocina en la que está instalada una estufa eléctrica. Al mismo tiempo, la partición no puede ser completamente demolida. En la pared de soporte solo es posible hacer una puerta angosta con refuerzo, y en la partición, ancha con puertas correderas, batientes o un arco.
Si se cumplen las normas anteriores, el propietario planea cambiar el diseño, entonces en la etapa inicial debe ser legalizado. Este proceso tiene lugar en varias etapas:
Tomamos en cuenta la forma y dimensiones de la habitación.
Puede combinar la cocina con la sala de estar de varias maneras: parcialmente con una abertura estrecha, parcialmente con una abertura amplia, completamente. La primera opción se usa solo cuando hay una pared de soporte entre las habitaciones y, dependiendo de los documentos reglamentarios, no hay forma de organizar un paso libre. El segundo y tercer método proporcionan más ideas para organizar un solo espacio.
La sala de la cocina puede tener una gran variedad de dimensiones y formas. Las más comunes son las habitaciones cuadradas y rectangulares, pero también hay opciones no estándar que tienen una, dos esquinas más atípicas. La disposición de cada uno de los tipos enumerados debe abordarse individualmente:
Un factor importante en la organización de la sala de la cocina es la cantidad de ventanas, su ubicación. La simetría general, la división en zonas funcionales y la disposición de los objetos dependen de esto. También vale la pena considerar las dimensiones. Casi cualquier estilo es adecuado para habitaciones grandes. En los pequeños, uno debe usar técnicas de aumento visual en el espacio vital.
Opciones para acabado y espacio de zonificación
Es imposible diseñar una sala de cocina sin el uso de técnicas de zonificación. Después de todo, la habitación combina una cocina, comedor, sala de estar. Para dividir el espacio en varias áreas funcionales y, al mismo tiempo, racionalizar el interior, realizado en el mismo estilo, deberá tener en cuenta muchos matices, pensar detenidamente en todos los detalles. Puede organizar la demarcación condicional de una habitación de diferentes maneras. Considere algunas de las opciones:
Área de cocina
Al organizar un lugar para cocinar, en primer lugar, debe centrarse en su tamaño. Inicialmente, debe colocar correctamente el "triángulo" de la cocina, que consiste en una estufa, fregadero, refrigerador. Determine las dimensiones y la ubicación de la superficie de trabajo.Por lo general, se encuentra entre la estufa y el fregadero, pero en una habitación grande puede proporcionar una opción de isla.
Se debe prestar especial atención al sistema de ventilación. Los expertos recomiendan que instale una campana extractora potente para que durante la preparación de los productos alimenticios los olores no se propaguen por la habitación, no sean absorbidos por los muebles y otros artículos. El equipo se selecciona en silencio para que en el proceso no interfiera con todos los presentes.
Al elegir muebles, se tiene en cuenta el estilo de toda la habitación. En color, forma, debe corresponder al interior general. También tiene que ser funcional y cómodo. Al organizar la iluminación, es necesario tener en cuenta el hecho de que el candelabro central estará en el pasillo, por lo que lo principal aquí es iluminar el área de trabajo. La decoración del piso, paredes, techo debe mantenerse en el mismo estilo con el resto del espacio.
Sala de estar
Hay varias formas de separar un área de otra. El método más fácil para realizar la zonificación es usar muebles. Para estos fines, son adecuados los sofás de esquina y estándar, una variedad de bastidores, incluidos los escalones, gabinetes, mostradores de bar. También puede usar un esquema de color, diferentes revestimientos texturizados de paredes y pisos. Con la ayuda de la iluminación para cada zona, puede hacer su propio acento de luz.
Zona de comedor
El factor más importante para determinar el lugar para un comedor es el área que ocupará. Este parámetro depende principalmente del número de miembros del hogar, las preferencias personales de los propietarios de la casa y las dimensiones de la habitación. Si la familia está compuesta por dos personas, entonces una pequeña mesa es suficiente, pero puedes salir con una barra de bar.
Para una ubicación cómoda, una familia numerosa necesitará una mesa impresionante. Es racional colocar el comedor en el centro en forma de "isla", pero esta disposición solo es adecuada para habitaciones espaciosas.Si la habitación tiene una forma rectangular alargada, se elige un lugar a lo largo de una de las paredes.
Puede resaltar un lugar para comer con la ayuda del piso y su combinación. Por ejemplo, en toda la habitación para colocar linóleo, y en el comedor - laminado. La mesa montada en el podio se ve genial. No descuides los muebles. Usando el sofá de un lado, el área de comedor se puede separar de la sala de estar y una partición de la cocina.
Estilo y esquema de color
Para seleccionar el diseño y el color perfectos en la sala de estar de la cocina, los creadores de interiores profesionales se guían por algunas reglas. Debe recordarse que un patrón de acabado pequeño, tiras de intersección aumentan visualmente el espacio, y uno grande, por el contrario, lo estrecha. La ilusión de movimiento en el pasillo, combinada con la cocina, ayudará a crear rayas diagonales. El diseño de una moderna sala de cocina puede realizarse de acuerdo con una variedad de proyectos estilísticos experimentales.
Loft
Darse cuenta de que tal proyecto es real solo en una habitación de un área grande. La sala debe ser lo más espaciosa posible, sin tabiques ni arcos. La combinación de la cocina con la sala de estar en el estilo loft debe tener en cuenta las siguientes características:
Estilo escandinavo
Se utiliza una paleta de colores tradicional. Tales salas de cocina hacen blanco, crema, gris. Contra un fondo tan universal, es posible una decoración brillante. Con mayor frecuencia, los colores de acento son tan cercanos a los tonos naturales como sea posible (azul, verde, marrón). Para agregar profundidad y expresividad, se utilizan elementos negros.
El mobiliario para la sala escandinava se elige pequeño y conciso. La habitación no debe sobrecargarse con decoración y cosas inútiles. Los estantes y los cajones deben estar cerrados para garantizar la comodidad y ocultar todo lo innecesario. Las estanterías abiertas generalmente sirven para acomodar la decoración y las plantas de interior.
Minimalismo
Un diseño estricto se acompaña principalmente de una sensación de proporción y libertad, solo líneas rectas y máxima iluminación. La decoración de las paredes, el piso y el techo carece por completo de decoración. El comedor minimalista puede ser de cualquier diseño: cuadrado, en forma de L. Los electrodomésticos son los mejores para elegir integrados y de máxima funcionalidad. El diseño del comedor moderno implica la presencia de fachadas lisas de metal, vidrio, plástico, textiles lisos.
El esquema de color generalmente se usa en contraste. Una combinación de blanco y negro, gris y beige se verá bien. Las siguientes características básicas de los muebles cumplen con el concepto general de diseño:
Alta tecnología
Los principios básicos de este estilo son la modernidad, el dinamismo y la alta tecnología.Los componentes obligatorios son la uniformidad de ángulos y formas, la severidad y claridad de las líneas. Tal cocina-sala de estar es elegida por los seguidores de la vanguardia, manteniendo el ritmo de los tiempos.
Si las paredes de la habitación están hechas de ladrillo u hormigón, no están pintadas, use solo yeso liso. Arcos, particiones hacen el tono de la decoración de la pared. Uso de iluminación incorporado, monte la lámpara en el techo, paredes y piso. Los muebles de cocina cromados a menudo tienen su propia iluminación.
Provenza
El elegante estilo francés hará que la sala de la cocina sea romántica y rústica. La decoración utiliza una paleta de colores pastel. Más a menudo son colores rosa, azul y lavanda apagados. El tema del color se diluye no con acentos pegadizos, sino con encajes y patrones. Los textiles sintéticos y el plástico no se utilizan para la decoración.
En el comedor de estilo provenzal, todos los electrodomésticos modernos deben estar ocultos en muebles antiguos. Para obtener una composición aireada y amigable, es necesario llevar a cabo una zonificación competente. Para hacer esto, a menudo usan columnas de imitación, un ventanal y pequeños techos rectangulares debajo del techo.
Estilo clasico
El estilo clásico tradicional se expresa en calidad y perfección. Se caracteriza por techos altos, muebles sólidos y sólidos y una rica paleta de colores. La característica principal de tales interiores es el predominio de productos hechos de madera natural o lo más cerca posible.
El acabado y los muebles se eligen solo de materiales naturales. Se puede usar tela de cortina de alta calidad, encimeras de piedra, fachadas de vidrio, mesas de madera. La decoración en la cocina-sala de estar clásica es mucho. Moldeado de estuco, jarrones de cerámica, varios detalles forjados serán apropiados.
Pais
A pesar del clasicismo de esta tendencia, el estilo country es muy popular entre los diseñadores modernos. La atmósfera del hogar familiar y la comodidad se crean mediante múltiples elementos de decoración. Deben estar correctamente combinados.En tal habitación, alfombras, pinturas, colchas de lana, una chimenea en la entrada sería apropiado.
La cocina-estudio de estilo rústico debe tener un diseño único. Cada zona debe estar bien iluminada, por lo que una gran cantidad de accesorios son bienvenidos. Los muebles se arreglan teniendo en cuenta la conveniencia para todos los hogares, la simetría no es una prioridad.
Art Decó
El diseño interior de moda consta de varios estilos. La característica principal que lo hace reconocible es la presencia de una decoración contrastante. Más a menudo dominado por gamma blanco y negro. Como colores adicionales use oliva, arena, esmeralda.
Para la decoración, combinada con el comedor, use materiales caros de alta calidad (madera lacada, mármol, cerámica). Visualmente, la sala se divide con pisos, revestimientos de paredes. El área de trabajo se designa con la ayuda de mosaico monocromo, cullet con lentejuelas doradas y plateadas.
Moderno
Para que coincida con el estilo moderno, la sala de la cocina debe ser lo más simple posible. El esquema de color puede ser desde un monocromo estándar hasta brillante con un patrón u ornamento extraordinario. Tal comedor debería crear una imagen dinámica, pero no sobrecargarse con detalles innecesarios. Los muebles deben elegirse con estilo, compactos y funcionales. Las mesas y sillas de forma estricta se colocan en líneas rectas, formando islas y penínsulas. Para dividir la habitación en zonas, se utilizan varios métodos:
Elección y disposición competente de los muebles.
Para organizar los muebles en una habitación combinada es necesario de acuerdo con un plan previamente pensado. La elaboración de un dibujo debe tener en cuenta las normas de seguridad contra incendios. En primer lugar, designan un lugar para auriculares y dispositivos técnicos.La elección de un método específico depende del tamaño y el diseño de la habitación.
Juego de cocina
Los muebles y estantes con fachadas lisas y lisas en el color de las paredes son adecuados para una habitación pequeña. Una gran opción son los gabinetes cerrados sin manijas que se abren cuando se presionan. Si el área lo permite, los auriculares pueden acentuarse. Un delantal espectacular, hermosos accesorios atraerán la vista y crearán un estado de ánimo.
El área de la cocina se puede ubicar de diferentes maneras, pero debe estar cerca de las comunicaciones y no entrar en la sala de estar. En la sala en forma de cuadrado, los auriculares se instalan en la esquina. Si esta es la cocina de Jruschov, entonces la mesa y los estantes colgantes se colocan en un nicho conveniente. La ubicación directa a lo largo de una pared es adecuada para amplias salas de estar en edificios nuevos o apartamentos tipo estudio.
Muebles de comedor
Para una gran sala de cocina, elija una mesa de comedor masiva, diseñada para un mínimo de 8 personas. Puede ser un diseño integral o un transformador. La sala en miniatura está amueblada con productos concisos y compactos. La ubicación ideal para todas las opciones sería la parte central o área cerca de la ventana.
El tamaño y la forma de las sillas dependen del estilo de la sala. En habitaciones grandes, las sillas y los asientos con reposabrazos serán apropiados. Para los más pequeños, es mejor usar opciones de heces transparentes y plegables.
Muebles de sala
Para una sala de estar, debe elegir muebles que sean funcionales y solo necesarios para su uso. Cajoneras voluminosas, armarios, estanterías no deben abarrotar el espacio. En la sala de estar puede colocar un sofá bajo, una mesa de café y varios sillones. El límite de las zonas a menudo se indica mediante un bar o grupo de restaurantes.
Alrededor de la sala se colocan armarios altos y otros sistemas de almacenamiento. Agregue calor al hogar. Los apartamentos utilizan chimeneas eléctricas y decorativas. Puede colocarlos debajo del panel de TV o en el área debajo de la partición decorativa.
Espacio de equipamiento técnico
Al combinar varias áreas funcionales, es importante seguir las reglas de ergonomía. También debe entenderse que dos habitaciones completamente diferentes permanecerán en sus lugares. Está estrictamente prohibido transferir comunicaciones a un lugar más adecuado en apartamentos.
Lucha contra los olores: campana extractora y sistema de ventilación
Para estar cómodo en la habitación combinada, debe estar equipado con un buen sistema de ventilación. En los apartamentos típicos solo hay una campana, y el flujo está garantizado por la ventilación. Por lo tanto, se debe instalar una campana potente sobre la estufa o la placa para limpiar el aire.
Es mejor no tratar de resolver el mal olor de la cocina instalando un aire acondicionado en la sala de estar. Esto no salvará la habitación de los aromas de los alimentos, sino que solo provocará daños en el equipo y la sustitución frecuente de los filtros.
Pensamos en la iluminación y la luz de fondo.
Para iluminar cualquier habitación combinada utilizando fuentes locales. Para la comodidad de permanecer en cada zona, se instalan apliques, lámparas de pie, lámparas de techo. Para las áreas más utilizadas, haga la mayor iluminación de contraste.
La superficie de trabajo debe enfatizarse con una luz brillante, pero no molesta. Para hacer esto, se montan mini-lámparas en la parte inferior de los estantes colgantes de los auriculares para que la luz pase por toda la superficie. Como iluminación de un fregadero, una superficie de cocción utiliza una cinta LED.
La elección de decoración y textiles.
Con la ayuda de pantallas de tela, es posible llevar a cabo una zonificación exitosa. Esta opción es adecuada para cualquier tipo de local, ya que los textiles blandos ocupan poco espacio y son fáciles de limpiar. El material para las cortinas es práctico y no arruga.
Los elementos decorativos se seleccionan para un estilo y tema específicos de la habitación. Puede concentrarse en la hermosa lámpara de araña sobre el grupo de comedor, una estantería con plantas vivas. Si el espacio lo permite, instale jarrones de piso, diseños abstractos forjados con letras.
Conclusión
Combine la cocina con la sala de estar en una casa de campo o apartamento de cualquier tamaño. La parte más ligera y espaciosa debe reservarse para esta zona. Puede colocar áreas funcionales de diferentes maneras utilizando cualquier medio disponible. Los diseñadores modernos equipan dicha habitación de acuerdo con todas las reglas de ergonomía.