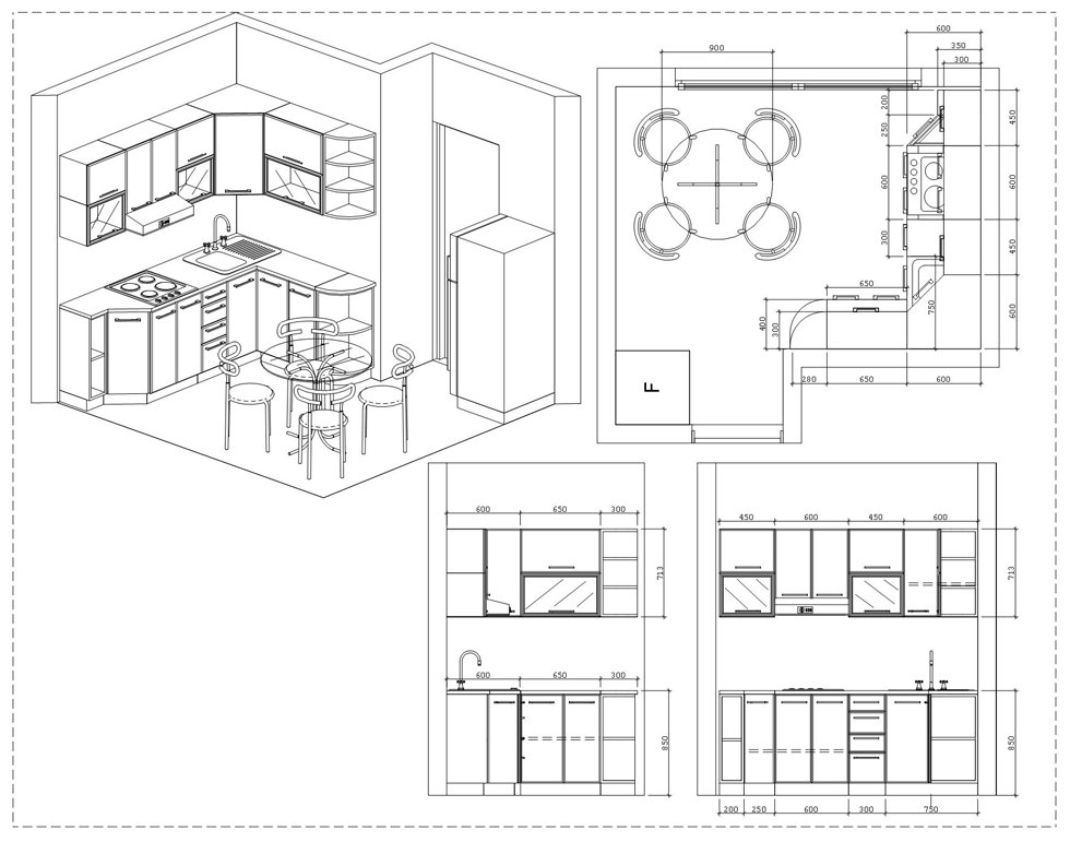
Dibujo de la cocina con las dimensiones de todos los armarios: diseño propio
Los principios de diseño de una cocina cambian con el tiempo. Una vez hubo lavavajillas, microondas, tecnología sensorial e incluso refrigeradores inteligentes. Para las comodidades anteriores, no siempre hay suficiente espacio en una pequeña cocina. Solo un dibujo bien diseñado indicará qué es apropiado y qué es mejor rechazar. Sin la ayuda de maestros, se pueden hacer muchos cálculos en programas especiales de computadora. Sin embargo, un diagrama en papel es indispensable. En el dibujo, la cocina está dividida en varias zonas objetivo. Algunos necesitarán mucho espacio para almacenar alimentos, otros necesitarán una gran mesa de comedor para los miembros de la familia. El diseño incluye aproximadamente 10 etapas, comenzando con medidas y detalles, y terminando con acabado. Hasta la etapa final del trabajo, se necesita un mini-proyecto: un dibujo e información relacionada.
Reglas básicas para el autodesarrollo de un proyecto de cocina.
El diseño de la cocina comienza con la creación de una parte funcional y técnica con las características generales de la habitación y sus contenidos. Luego dibujan un boceto, y posteriormente será reemplazado por un dibujo detallado con detalles medianos y pequeños. Recomendamos utilizar programas de visualización como AutoCAD. El proyecto necesariamente incluye el tamaño y la forma de la habitación, los parámetros de los muebles y electrodomésticos, incluida su ubicación, así como la ubicación y organización de las comunicaciones. En la primera mitad del siglo XX, se desarrolló la regla del triángulo, que establece que la estufa, el refrigerador y el fregadero deben colocarse en la parte superior de una figura triangular imaginaria con un lado de no más de 2 metros. Los bastidores y otros sistemas de almacenamiento no deben colocarse en el área de trabajo. En ausencia de espacio, el refrigerador se puede alinear con la superficie de corte y el fregadero, pero sin compartir la encimera para preparar los alimentos. El primero es dibujar un fregadero. La placa se retira al menos 40 cm de ella.
Asegúrese de distinguir las siguientes zonas:
cocinar (incluso para la placa);
preparación del producto (con superficie de corte);
fregaderos
almacenamiento
acciones;
comedor.
Variedades de distribución de la cocina.
El patrón de la cocina está determinado por la forma en que se instala el conjunto de muebles, que, a su vez, tienen diferentes características de diseño. Hay 7 tipos principales de diseño. Estos incluyen una variante de una sola fila, dos filas, en forma de L, en forma de U, en forma de G, peninsular e isla. El primer tipo de configuración es adecuado para habitaciones estrechas, por ejemplo, cocinas en brezhnevka. Patrón en forma de L: el diseño más popular en Jruschov. En casas particulares, a menudo se eligen en forma de U y de doble fila. Si los propietarios tienen muchos accesorios de cocina, entonces es mejor elegir opciones espaciosas, como una en forma de G o una cocina con una península. Instalaciones de cocina con una superficie de más de 15 metros cuadrados. Se pueden hacer metros con la isla. En un elemento separado en el medio de la cocina, puede colocar no solo una superficie de corte, sino también una estufa y un fregadero.
La secuencia general de acciones al diseñar una cocina.
El diseño consta de muchas etapas. Primero, miden los parámetros generales de la sala, y luego hacen los primeros borradores en un borrador. En el futuro, se determina una imagen exacta con una división en subpartes: para cocinar, almacenamiento de alimentos, mesa de cocina. Todavía tendrá que ser detallado. Estamos hablando de electrodomésticos, conclusiones y esquemas de comunicación. Es importante ensamblar todos los elementos juntos, incluso pequeños electrodomésticos de cocina, de acuerdo con la configuración de los auriculares. El siguiente paso es establecer la cantidad exacta de material, sus variedades y los accesorios necesarios. Se realizan los detalles: cálculos simples, que se pueden entender con el ejemplo de uno o dos elementos de mobiliario. Los cálculos se registran correctamente y se transfieren a los maestros para su posterior corte. Luego queda ensamblar la estructura. ¿Es posible hacerlo usted mismo? Depende de la experiencia.
Para crear proyectos utilizando programas asistentes con gráficos voluminosos y la posibilidad de realizar cálculos detallados (incluso en línea).
Hacer medidas de cocina
Los parámetros clave de las premisas son:
ancho a la altura de la base (10-15 cm);
ancho a nivel de la mesa (80-95 cm);
ancho en altura de las secciones con bisagras (borde superior - 220 cm);
altura
Comenzamos el diseño creando un diseño de sala. Necesitarás cinta métrica, lápiz y papel. En la hoja indique los parámetros teniendo en cuenta la ubicación de puertas, aberturas de ventanas, ventilación y otros elementos fijos. En el plan también ingrese los intervalos y tamaños. Luego dibujamos el área de trabajo, fregadero, estufa y refrigerador. Los elementos anteriores son interdependientes, y la colocación de las partes restantes de la fachada, a su vez, se coordina con ellos. El refrigerador, por ejemplo, se mantiene alejado de fuentes de calor. Seleccionamos la configuración de la cocina desde el principio, de acuerdo con los matices anteriores, entre las opciones de lineal a isla. Las esquinas de los auriculares de doble cara están hechas con o sin lavabo. Si planea una cocina con una península, la diseñamos tanto como mesa como como barra de bar. Ponemos en el plan de suministro de agua, alcantarillado, tuberías de gas y tomas de corriente. Después indicamos los elementos sobresalientes: alféizar de la ventana, columna de gas, conducto de ventilación.
Diseñe elementos modulares y cree un boceto
Comenzamos a construir desde la fila inferior, proporcionamos una placa, estufa y refrigerador. Si es necesario, agregue un lavavajillas y una lavadora. En la fila inferior hay armarios, cajones y tandemboxes. Asignamos al menos 60 cm de espacio debajo del fregadero. Lo colocamos de manera óptima teniendo en cuenta los resultados de la comunicación. Calculamos el número requerido de enchufes y lugares para el uso / almacenamiento de electrodomésticos, aplicamos al boceto. Hacemos un acceso conveniente a puntos de venta y otras comunicaciones. Luego pasamos al nivel superior. Es casi dos veces inferior al fondo en profundidad, por lo que inicialmente debe planificar correctamente el espacio a continuación. En el nivel superior para una campana de chimenea, necesita un espacio separado en lugar de un módulo. Los modelos integrados, a su vez, dejan espacio para mantener una línea inextricable.Este es un aspecto decorativo, sin embargo, el espacio de almacenamiento también aumentará.
Colocación de electrodomésticos
Es necesario dibujar el plano superior y el barrido de las paredes. En el plan superior, primero denotamos la estufa eléctrica, un cuadrado con cuatro círculos. Luego elija un lugar para el fregadero y el refrigerador. Dibujamos el lavabo en forma de un cuadrado con dos óvalos: externo e interno, designamos el mezclador según la configuración. Después de eso, en el dibujo de la cocina, indicamos el refrigerador, así como el equipo para cocinar: un horno, un exprimidor, etc. Esto es necesario para calcular la ubicación ideal, incluida la posibilidad de usar salidas. En los escaneos con puntos, indicamos las conclusiones para la luz de fondo. Cuadrados vacíos con líneas finas indican zócalos. Si hay tomas de teléfono, TV e Internet, también colocamos el boceto. En el barrido de la pared, dibujamos un aire acondicionado en forma de rectángulo con una gran cantidad de líneas paralelas. En una imagen a escala de la pared, también debe aplicar luces de pared, un controlador de temperatura (cuadrado y la letra "T" arriba), interruptores de una y dos teclas.
Dimensionamiento y detalle de armarios
El detalle es el cálculo del número requerido de piezas, su tamaño, tipo, así como el alcance del trabajo, incluidos los aditivos, los bordes y el aserrado. Los detalles refuerzan el dibujo, que luego se usa para hacer muebles. Analicemos un ejemplo de un armario de 72 × 45 × 50 cm. Incluimos en el cálculo la diferencia en la profundidad del armario con la puerta y su grosor (2 cm). Entonces, el tamaño deseado para el fondo es inmediatamente claro: 43 × 50 cm. Calculamos el tamaño de las lamas. Reste el grosor total de las paredes laterales del ancho de 500 mm - 32 mm. El grosor de los listones se elige arbitrariamente, por ejemplo, 6 mm. Resulta 2 lamas de 468 × 430 × 6 mm entre dos paredes laterales. Para calcular las dimensiones de las paredes laterales, la parte inferior y la cubierta se toman desde la altura, y la puerta desde la profundidad. La tapa corresponde a las dimensiones máximas del gabinete, y todavía necesitan agregar 1-2 mm en los extremos. Los armarios de cocina son relativamente bajos, generalmente de hasta 75-90 cm.Al mismo tiempo, los modelos altos independientes se ensamblan con estantes a una distancia de no más del mismo máximo: 90 cm. La profundidad de los gabinetes de la cocina está dentro de los 25–65 cm. Las opciones estrechas son para los superiores y anchos para el área debajo del delantal.
Otros matices sobre tamaños:
El ancho de las secciones superiores, como regla, corresponde a la inferior.
La altura (incluido el nivel de colocación) de los gabinetes superiores se selecciona de acuerdo con la altura de los propietarios y la altura deseada del delantal.
Programas de modulación y cálculo.
Entre el software de modulación y cálculo, debe prestar atención a las aplicaciones Pro100, IKEA Home Planner, Color Style Studio y Google SketchUp. Pro100 ofrece un máximo de capacidades de visualización, una gran base de datos de modelos de muebles y accesorios. La función de calcular el costo ayudará, incluso en la etapa de planificación, a abandonar algunas decisiones o asegurarse de su disponibilidad. Unas pocas horas son suficientes para estudiar el programa. Los proyectos creados están disponibles para imprimir. IKEA Home Planner trabaja con colores, dimensiones y texturas. Los proyectos pueden enviarse a la empresa para una evaluación experta. Color Style Studio le permite decorar la cocina en 3D en más de 50 mil colores. Google SketchUp es una aplicación con una interfaz intuitiva y videos tutoriales. El programa es multidisciplinario y es adecuado para diseñar cualquier opción para cocinas, así como otras habitaciones.
Cómo hacer el cálculo del material usted mismo
Para el cálculo, una regla, ruleta y nivel son suficientes. Será necesario tener en cuenta los parámetros para los horizontes, paredes laterales, paredes traseras, estantes, toldos, bisagras, manijas, puertas y vidrio para ellos. Comenzamos desde el nivel inferior. En primer lugar, tomamos el cálculo de la sección de lavado. Debería ser un armario con puertas batientes. Reste el grosor de la encimera y la altura de las patas de soporte de la altura planificada. El cálculo de la longitud de los cajones se realiza teniendo en cuenta el grosor de las puertas, paredes laterales y pared posterior. Para la fila inferior, necesitará una mesa de un tamaño típico, si la estructura inferior se realiza en consecuencia. Puede calcular el consumo de material para un zócalo decorativo después de preinstalar la encimera sobre los pedestales. Luego pasamos al nivel superior.Aquí, el cálculo depende del mecanismo de apertura: giratorio o de elevación. De lo contrario, el principio de cálculo no difiere: se miden los espacios y el grosor de los elementos adyacentes.
Material de corte en el proyecto y dibujos.
Los detalles se aplican en un lienzo, si se supone que están hechos de un material. Primero dibuje elementos grandes y junto a ellos otros en orden descendente de tamaño. El número total de partes, el ancho de la parte cortada, la longitud del corte, desperdicio. Además del tamaño y área de la hoja: hoja total y residuos. Indique la sangría a lo largo del perímetro de la hoja, la longitud del borde y corte, incluido el recorte del ángulo de base, el número de cortes. Los detalles útiles están numerados, y el tamaño en milímetros se ajusta a continuación. Para realizar el corte, necesitará mucho material, equipo especial y los movimientos más precisos. En cualquier caso, el corte inicial se realiza en instalaciones especializadas, por lo que no tiene sentido hacerlo usted mismo. Los artículos más pequeños se pueden manejar solos. Pero aún así es mejor ordenar el corte en un taller especializado.
Cómo elegir materiales para hacer una cocina
En la cocina, los materiales están expuestos al vapor, la humedad y las altas temperaturas. Por lo tanto, el marco del juego de cocina está hecho principalmente de aglomerado con impregnación especial resistente a la humedad. Las puertas de la fachada están hechas de chapa natural o sintética. Los muebles hechos de MDF son una opción más rara. Sin embargo, el material se adapta aún más a las condiciones de la cocina. Para la fabricación de módulos de cocina, puede utilizar el multiplex, que consiste en capas de madera de diferentes especies. El resultado son muebles con una superficie hermosa y una estructura estable. Las estructuras metálicas para la cocina tienen menos demanda, pero pueden servir durante muchos años, manteniendo una apariencia atractiva. Las oportunidades de diseño son una buena razón para usar el metal. Sin embargo, el problema con la fabricación de los espacios en blanco necesarios hace que la opción sea inconveniente para el diseño propio.
Materiales de módulos de carga
Los elementos de la carcasa están hechos de materiales como aglomerado, MDF, madera maciza y multiplex. Los mejores diseños están ensamblados de madera natural. Dichos kits no se deterioran por el exceso de humedad, son menos propensos a la formación de astillas. La madera también se trata con varios compuestos protectores. Multiplex - material más barato, consiste en capas pegadas en diferentes direcciones. Estas son excelentes materias primas para las condiciones de la cocina. MDF es más barato que las opciones anteriores, pero también práctico y duradero. El material es pequeñas astillas de madera comprimidas a alta presión. Para garantizar la resistencia al agua, las placas de MDF están impregnadas de resinas. También son resistentes a la curvatura. La opción más barata es el aglomerado. Es menos ecológico y más propenso a mojarse, pero puede durar muchos años sin deteriorarse.
Fachadas y accesorios
Las puertas que forman la fachada de la sala son elementos clave del diseño. Están hechos de película esmaltada, MDF, tableros de partículas laminados, madera maciza y perfiles de aluminio. También hay opciones de marcos decorados. Las fachadas de plástico se pueden aplicar a fachadas hechas de MDF y aglomerado. Este acabado se llama postformado. En cualquier caso, la puerta es mejor elegir entre materiales más caros. En cuanto a los accesorios, lo primero que debe hacer es decidir sobre los mangos. La opción más conveniente son las "grapas", sin embargo, los mangos de forma cuadrada son buenos a su manera. Puede prescindir por completo de estos elementos y dar preferencia al hardware push-to-open. Los materiales utilizados para los accesorios son principalmente aluminio, plástico y madera. También debe prestar atención a las opciones decorativas. Pero para las bisagras y toldos, solo hay una opción: metal duradero.
Características del diseño de elementos individuales.
El diseño de la cocina es el trabajo en cada elemento individual y su compatibilidad como un todo. De particular preocupación es el uso adecuado de los ángulos.Las cocinas grandes / cuadradas rara vez están decoradas con opciones lineales, por lo que la pregunta es relevante para muchos. Calcule por separado los parámetros de los agujeros para objetos estacionarios y voluminosos. Es posible que deba ocultar la tubería o la columna. Se necesita un diseño especial para la zona con el capó, porque en los últimos años ha habido muchas opciones para este diseño. Algunos electrodomésticos están diseñados para uso oculto. A veces tienes que cortar parte de los estantes y hacer agujeros para los cables eléctricos. En primer lugar, encuentran un lugar para electrodomésticos grandes, en las últimas etapas de planificación, para los más pequeños. Al crear un proyecto, debe considerar de inmediato si habrá algún sistema de almacenamiento original, por ejemplo, en un delantal, al lado del auricular o en una posición suspendida.
Desde el punto de vista del diseño, la parte más importante del diseño es el diseño de los elementos de la fachada: puertas y frentes de cajones.
Estándar
Uno de estos elementos es un gabinete con bisagras con dos puertas con bisagras. Está hecho con dos estantes y una altura de aproximadamente 70 cm, un ancho de aproximadamente 80 cm y una profundidad de 30 cm. Los gabinetes inferiores con cajones están diseñados teniendo en cuenta el tamaño de la habitación. Se hacen anchas o estrechas. En cuanto al número de cajones, con 4 de estos elementos, la profundidad será de 50 cm, el ancho suele ser de 40 cm. Los gabinetes inferiores con fachadas oscilantes tienen un ancho de 30 a 100 cm. En el primer caso, será una opción de una puerta. Los bordillos están diseñados con una profundidad de 50-60 cm y un estante de altura. El gabinete del lavabo se planifica teniendo en cuenta la longitud del fregadero, el ancho depende de esto. Es posible que necesite una versión de dos puertas con un ancho de 80 cm. También está hecha con una barra de soporte (zar, base superior). La profundidad de la sección para el lavado debe ser de al menos 50 cm.
No estándar
Una de las opciones atípicas es un gabinete para horno. Con una profundidad estándar de 50 cm, el ancho debe corresponder a la técnica, y esto es un mínimo de 60 cm, según las normas y recomendaciones.Otro elemento no estándar es un módulo articulado para una campana telescópica (por ejemplo, un estándar de 60 cm). Luego habrá un recorte con un diámetro de aproximadamente 30 cm desde arriba. La profundidad no debe exceder los 30 cm. Los lados sobresaldrán más allá del módulo en sí, con una altura de aproximadamente 70 cm a 55 por el gabinete. Las secciones de esquina, en diferentes variaciones, también se consideran una solución atípica. Los gabinetes con bisagras en forma de L tienen una profundidad superficial y un lienzo en blanco. La altura normal de la cámara es de unos 70 cm. También existe una opción alternativa en forma de sección trapezoidal superior. Tiene cinco lados y una puerta. Al mismo tiempo, es posible un ángulo de apertura de 45 grados, a menos que se realicen cambios especiales en el diseño de la fila superior. Las configuraciones en forma de L y trapezoidales se producen en los módulos inferiores.
Características de los componentes de la cocina de esquina.
Básicamente hay dos tipos de auriculares de esquina. Estas son opciones con ángulo recto y modificación trapezoidal. Los componentes principales de la cocina de la esquina son el fregadero de la esquina, el armario de la esquina, la caja de lápices, así como el equipo correspondiente. El lavado de esquinas puede ahorrar mucho espacio para otros elementos, y también es conveniente sostener un recipiente en él. La mesita de noche también disfraza varias comunicaciones y mostradores. La caja de lápices de esquina es perfecta para una cocina con nichos. Luego, el mueble colocado en la esquina no se ve interrumpido por la pared de trabajo, sino que tiene una forma moldeada. Este tipo de auriculares se hace por encargo. Un elemento como un armario de esquina es bueno por su amplitud. A veces se usa como un bar en casa. En cuanto a la tecnología de esquina, esta es una opción bastante cara. Sin embargo, el espacio en este caso se usa de manera más efectiva. Necesitará dispositivos integrados para parámetros específicos de la parte de la esquina del auricular.
Diseño de fachadas
La altura y el ancho de cada fachada deben ser inferiores a los mismos parámetros del cuerpo. Además, la autorización tecnológica se deduce de este último. En cada lado es de 1-2 milímetros, respectivamente, un máximo de 4 milímetros en general. Se realiza un cálculo separado para cada sección.Esto concierne principalmente a los frentes de MDF, ya que es muy difícil corregirlos. Si el cuerpo del gabinete toca la pared lateralmente, se le quitarán otros 3 mm del ancho antes de realizar cálculos básicos. Si hablamos de la puerta de la fila inferior, se tienen en cuenta las características de la encimera. En presencia de una bandeja de goteo, el margen hacia el borde superior del frente debe ser de al menos 4-5 mm. Si no existe tal elemento, entonces 3 mm son suficientes. El cálculo de las fachadas debajo de la repisa decorativa se realiza con una deducción de 3 mm. Si también hay uno más bajo, entonces 6 mm. Además, se derivan fórmulas para la fachada en forma de varios cajones:
VK-3 (x-1) / x, si hay varios cajones idénticos en la caja y no hay mostradores encima. VK denota la altura de la sección, y x es el número de cuadros.
VK-3x / x, si el caso está debajo de la encimera.
Consejos para ensamblar auriculares
El primer paso es liberar la cocina y el espacio al lado. Debe prepararse para clasificar los materiales de desecho, porque algo más será útil. En la cocina, primero se conectan las comunicaciones y se corta un orificio para el fregadero, si no está previsto en la encimera. Luego instale las filas inferior y superior de muebles. Las fachadas se unen cuando toda la estructura ya está ensamblada. No se recomienda instalar una encimera con un grosor de más de 40 mm: solo se han desarrollado para ellos alrededor del 20% de los electrodomésticos modernos. En la mayoría de los casos, el ensamblaje sin maestros o un asistente no es posible. Los maestros de instalación están previamente informados sobre las características de los muebles, la presencia de un panel de pared para la plataforma del área de trabajo, la ubicación de los sistemas de suministro y las salidas de comunicación. Advierten de antemano sobre la necesidad de módulos de retroiluminación, la necesidad de un lavavajillas, caldera.
Conclusión
La fabricación o compra de muebles de cocina está asociada a una gran cantidad de cálculos. Esto se aplica no solo al cumplimiento de las dimensiones de las instalaciones, el diseño de estilo, sino también a la compatibilidad con el patrón de comunicaciones. Es con este último aspecto que el diseño debería comenzar.Necesariamente se necesita un dibujo para el proyecto. Primero, se determina la configuración y se identifican las zonas objetivo. Ya en esta etapa, hay muchas reglas que deben combinarse con capacidades técnicas y sus propios deseos. El siguiente paso es medir los parámetros principales de la sala. En el boceto, muebles, electrodomésticos, comunicaciones y tamaños de cocina se combinan en uno. Luego diseñe los elementos individuales. Luego viene el turno de los detalles y la selección de materiales. Antes de comenzar el trabajo de instalación, se realizan los toques finales. El dibujo de diseño terminado se pasa para familiarización con el maestro. Con conocimiento y experiencia precisos, puede construir una cocina con sus propias manos.
Los principios de diseño de una cocina cambian con el tiempo. Una vez hubo lavavajillas, microondas, tecnología sensorial e incluso refrigeradores inteligentes. Para las comodidades anteriores, no siempre hay suficiente espacio en una pequeña cocina. Solo un dibujo bien diseñado indicará qué es apropiado y qué es mejor rechazar. Sin la ayuda de maestros, se pueden hacer muchos cálculos en programas especiales de computadora. Sin embargo, un diagrama en papel es indispensable. En el dibujo, la cocina está dividida en varias zonas objetivo. Algunos necesitarán mucho espacio para almacenar alimentos, otros necesitarán una gran mesa de comedor para los miembros de la familia. El diseño incluye aproximadamente 10 etapas, comenzando con medidas y detalles, y terminando con acabado. Hasta la etapa final del trabajo, se necesita un mini-proyecto: un dibujo e información relacionada.
Contenido
Reglas básicas para el autodesarrollo de un proyecto de cocina.
El diseño de la cocina comienza con la creación de una parte funcional y técnica con las características generales de la habitación y sus contenidos. Luego dibujan un boceto, y posteriormente será reemplazado por un dibujo detallado con detalles medianos y pequeños. Recomendamos utilizar programas de visualización como AutoCAD. El proyecto necesariamente incluye el tamaño y la forma de la habitación, los parámetros de los muebles y electrodomésticos, incluida su ubicación, así como la ubicación y organización de las comunicaciones. En la primera mitad del siglo XX, se desarrolló la regla del triángulo, que establece que la estufa, el refrigerador y el fregadero deben colocarse en la parte superior de una figura triangular imaginaria con un lado de no más de 2 metros. Los bastidores y otros sistemas de almacenamiento no deben colocarse en el área de trabajo. En ausencia de espacio, el refrigerador se puede alinear con la superficie de corte y el fregadero, pero sin compartir la encimera para preparar los alimentos. El primero es dibujar un fregadero. La placa se retira al menos 40 cm de ella.
Asegúrese de distinguir las siguientes zonas:
Variedades de distribución de la cocina.
El patrón de la cocina está determinado por la forma en que se instala el conjunto de muebles, que, a su vez, tienen diferentes características de diseño. Hay 7 tipos principales de diseño. Estos incluyen una variante de una sola fila, dos filas, en forma de L, en forma de U, en forma de G, peninsular e isla. El primer tipo de configuración es adecuado para habitaciones estrechas, por ejemplo, cocinas en brezhnevka. Patrón en forma de L: el diseño más popular en Jruschov. En casas particulares, a menudo se eligen en forma de U y de doble fila. Si los propietarios tienen muchos accesorios de cocina, entonces es mejor elegir opciones espaciosas, como una en forma de G o una cocina con una península. Instalaciones de cocina con una superficie de más de 15 metros cuadrados. Se pueden hacer metros con la isla. En un elemento separado en el medio de la cocina, puede colocar no solo una superficie de corte, sino también una estufa y un fregadero.
La secuencia general de acciones al diseñar una cocina.
El diseño consta de muchas etapas. Primero, miden los parámetros generales de la sala, y luego hacen los primeros borradores en un borrador. En el futuro, se determina una imagen exacta con una división en subpartes: para cocinar, almacenamiento de alimentos, mesa de cocina. Todavía tendrá que ser detallado. Estamos hablando de electrodomésticos, conclusiones y esquemas de comunicación. Es importante ensamblar todos los elementos juntos, incluso pequeños electrodomésticos de cocina, de acuerdo con la configuración de los auriculares. El siguiente paso es establecer la cantidad exacta de material, sus variedades y los accesorios necesarios. Se realizan los detalles: cálculos simples, que se pueden entender con el ejemplo de uno o dos elementos de mobiliario. Los cálculos se registran correctamente y se transfieren a los maestros para su posterior corte. Luego queda ensamblar la estructura. ¿Es posible hacerlo usted mismo? Depende de la experiencia.
Hacer medidas de cocina
Los parámetros clave de las premisas son:
Comenzamos el diseño creando un diseño de sala. Necesitarás cinta métrica, lápiz y papel. En la hoja indique los parámetros teniendo en cuenta la ubicación de puertas, aberturas de ventanas, ventilación y otros elementos fijos. En el plan también ingrese los intervalos y tamaños. Luego dibujamos el área de trabajo, fregadero, estufa y refrigerador. Los elementos anteriores son interdependientes, y la colocación de las partes restantes de la fachada, a su vez, se coordina con ellos. El refrigerador, por ejemplo, se mantiene alejado de fuentes de calor. Seleccionamos la configuración de la cocina desde el principio, de acuerdo con los matices anteriores, entre las opciones de lineal a isla. Las esquinas de los auriculares de doble cara están hechas con o sin lavabo. Si planea una cocina con una península, la diseñamos tanto como mesa como como barra de bar. Ponemos en el plan de suministro de agua, alcantarillado, tuberías de gas y tomas de corriente. Después indicamos los elementos sobresalientes: alféizar de la ventana, columna de gas, conducto de ventilación.
Diseñe elementos modulares y cree un boceto
Comenzamos a construir desde la fila inferior, proporcionamos una placa, estufa y refrigerador. Si es necesario, agregue un lavavajillas y una lavadora. En la fila inferior hay armarios, cajones y tandemboxes. Asignamos al menos 60 cm de espacio debajo del fregadero. Lo colocamos de manera óptima teniendo en cuenta los resultados de la comunicación. Calculamos el número requerido de enchufes y lugares para el uso / almacenamiento de electrodomésticos, aplicamos al boceto. Hacemos un acceso conveniente a puntos de venta y otras comunicaciones. Luego pasamos al nivel superior. Es casi dos veces inferior al fondo en profundidad, por lo que inicialmente debe planificar correctamente el espacio a continuación. En el nivel superior para una campana de chimenea, necesita un espacio separado en lugar de un módulo. Los modelos integrados, a su vez, dejan espacio para mantener una línea inextricable.Este es un aspecto decorativo, sin embargo, el espacio de almacenamiento también aumentará.
Colocación de electrodomésticos
Es necesario dibujar el plano superior y el barrido de las paredes. En el plan superior, primero denotamos la estufa eléctrica, un cuadrado con cuatro círculos. Luego elija un lugar para el fregadero y el refrigerador. Dibujamos el lavabo en forma de un cuadrado con dos óvalos: externo e interno, designamos el mezclador según la configuración. Después de eso, en el dibujo de la cocina, indicamos el refrigerador, así como el equipo para cocinar: un horno, un exprimidor, etc. Esto es necesario para calcular la ubicación ideal, incluida la posibilidad de usar salidas. En los escaneos con puntos, indicamos las conclusiones para la luz de fondo. Cuadrados vacíos con líneas finas indican zócalos. Si hay tomas de teléfono, TV e Internet, también colocamos el boceto. En el barrido de la pared, dibujamos un aire acondicionado en forma de rectángulo con una gran cantidad de líneas paralelas. En una imagen a escala de la pared, también debe aplicar luces de pared, un controlador de temperatura (cuadrado y la letra "T" arriba), interruptores de una y dos teclas.
Dimensionamiento y detalle de armarios
El detalle es el cálculo del número requerido de piezas, su tamaño, tipo, así como el alcance del trabajo, incluidos los aditivos, los bordes y el aserrado. Los detalles refuerzan el dibujo, que luego se usa para hacer muebles. Analicemos un ejemplo de un armario de 72 × 45 × 50 cm. Incluimos en el cálculo la diferencia en la profundidad del armario con la puerta y su grosor (2 cm). Entonces, el tamaño deseado para el fondo es inmediatamente claro: 43 × 50 cm. Calculamos el tamaño de las lamas. Reste el grosor total de las paredes laterales del ancho de 500 mm - 32 mm. El grosor de los listones se elige arbitrariamente, por ejemplo, 6 mm. Resulta 2 lamas de 468 × 430 × 6 mm entre dos paredes laterales. Para calcular las dimensiones de las paredes laterales, la parte inferior y la cubierta se toman desde la altura, y la puerta desde la profundidad. La tapa corresponde a las dimensiones máximas del gabinete, y todavía necesitan agregar 1-2 mm en los extremos. Los armarios de cocina son relativamente bajos, generalmente de hasta 75-90 cm.Al mismo tiempo, los modelos altos independientes se ensamblan con estantes a una distancia de no más del mismo máximo: 90 cm. La profundidad de los gabinetes de la cocina está dentro de los 25–65 cm. Las opciones estrechas son para los superiores y anchos para el área debajo del delantal.
Otros matices sobre tamaños:
Programas de modulación y cálculo.
Entre el software de modulación y cálculo, debe prestar atención a las aplicaciones Pro100, IKEA Home Planner, Color Style Studio y Google SketchUp. Pro100 ofrece un máximo de capacidades de visualización, una gran base de datos de modelos de muebles y accesorios. La función de calcular el costo ayudará, incluso en la etapa de planificación, a abandonar algunas decisiones o asegurarse de su disponibilidad. Unas pocas horas son suficientes para estudiar el programa. Los proyectos creados están disponibles para imprimir. IKEA Home Planner trabaja con colores, dimensiones y texturas. Los proyectos pueden enviarse a la empresa para una evaluación experta. Color Style Studio le permite decorar la cocina en 3D en más de 50 mil colores. Google SketchUp es una aplicación con una interfaz intuitiva y videos tutoriales. El programa es multidisciplinario y es adecuado para diseñar cualquier opción para cocinas, así como otras habitaciones.
Cómo hacer el cálculo del material usted mismo
Para el cálculo, una regla, ruleta y nivel son suficientes. Será necesario tener en cuenta los parámetros para los horizontes, paredes laterales, paredes traseras, estantes, toldos, bisagras, manijas, puertas y vidrio para ellos. Comenzamos desde el nivel inferior. En primer lugar, tomamos el cálculo de la sección de lavado. Debería ser un armario con puertas batientes. Reste el grosor de la encimera y la altura de las patas de soporte de la altura planificada. El cálculo de la longitud de los cajones se realiza teniendo en cuenta el grosor de las puertas, paredes laterales y pared posterior. Para la fila inferior, necesitará una mesa de un tamaño típico, si la estructura inferior se realiza en consecuencia. Puede calcular el consumo de material para un zócalo decorativo después de preinstalar la encimera sobre los pedestales. Luego pasamos al nivel superior.Aquí, el cálculo depende del mecanismo de apertura: giratorio o de elevación. De lo contrario, el principio de cálculo no difiere: se miden los espacios y el grosor de los elementos adyacentes.
Material de corte en el proyecto y dibujos.
Los detalles se aplican en un lienzo, si se supone que están hechos de un material. Primero dibuje elementos grandes y junto a ellos otros en orden descendente de tamaño. El número total de partes, el ancho de la parte cortada, la longitud del corte, desperdicio. Además del tamaño y área de la hoja: hoja total y residuos. Indique la sangría a lo largo del perímetro de la hoja, la longitud del borde y corte, incluido el recorte del ángulo de base, el número de cortes. Los detalles útiles están numerados, y el tamaño en milímetros se ajusta a continuación. Para realizar el corte, necesitará mucho material, equipo especial y los movimientos más precisos. En cualquier caso, el corte inicial se realiza en instalaciones especializadas, por lo que no tiene sentido hacerlo usted mismo. Los artículos más pequeños se pueden manejar solos. Pero aún así es mejor ordenar el corte en un taller especializado.
Cómo elegir materiales para hacer una cocina
En la cocina, los materiales están expuestos al vapor, la humedad y las altas temperaturas. Por lo tanto, el marco del juego de cocina está hecho principalmente de aglomerado con impregnación especial resistente a la humedad. Las puertas de la fachada están hechas de chapa natural o sintética. Los muebles hechos de MDF son una opción más rara. Sin embargo, el material se adapta aún más a las condiciones de la cocina. Para la fabricación de módulos de cocina, puede utilizar el multiplex, que consiste en capas de madera de diferentes especies. El resultado son muebles con una superficie hermosa y una estructura estable. Las estructuras metálicas para la cocina tienen menos demanda, pero pueden servir durante muchos años, manteniendo una apariencia atractiva. Las oportunidades de diseño son una buena razón para usar el metal. Sin embargo, el problema con la fabricación de los espacios en blanco necesarios hace que la opción sea inconveniente para el diseño propio.
Materiales de módulos de carga
Los elementos de la carcasa están hechos de materiales como aglomerado, MDF, madera maciza y multiplex. Los mejores diseños están ensamblados de madera natural. Dichos kits no se deterioran por el exceso de humedad, son menos propensos a la formación de astillas. La madera también se trata con varios compuestos protectores. Multiplex - material más barato, consiste en capas pegadas en diferentes direcciones. Estas son excelentes materias primas para las condiciones de la cocina. MDF es más barato que las opciones anteriores, pero también práctico y duradero. El material es pequeñas astillas de madera comprimidas a alta presión. Para garantizar la resistencia al agua, las placas de MDF están impregnadas de resinas. También son resistentes a la curvatura. La opción más barata es el aglomerado. Es menos ecológico y más propenso a mojarse, pero puede durar muchos años sin deteriorarse.
Fachadas y accesorios
Las puertas que forman la fachada de la sala son elementos clave del diseño. Están hechos de película esmaltada, MDF, tableros de partículas laminados, madera maciza y perfiles de aluminio. También hay opciones de marcos decorados. Las fachadas de plástico se pueden aplicar a fachadas hechas de MDF y aglomerado. Este acabado se llama postformado. En cualquier caso, la puerta es mejor elegir entre materiales más caros. En cuanto a los accesorios, lo primero que debe hacer es decidir sobre los mangos. La opción más conveniente son las "grapas", sin embargo, los mangos de forma cuadrada son buenos a su manera. Puede prescindir por completo de estos elementos y dar preferencia al hardware push-to-open. Los materiales utilizados para los accesorios son principalmente aluminio, plástico y madera. También debe prestar atención a las opciones decorativas. Pero para las bisagras y toldos, solo hay una opción: metal duradero.
Características del diseño de elementos individuales.
El diseño de la cocina es el trabajo en cada elemento individual y su compatibilidad como un todo. De particular preocupación es el uso adecuado de los ángulos.Las cocinas grandes / cuadradas rara vez están decoradas con opciones lineales, por lo que la pregunta es relevante para muchos. Calcule por separado los parámetros de los agujeros para objetos estacionarios y voluminosos. Es posible que deba ocultar la tubería o la columna. Se necesita un diseño especial para la zona con el capó, porque en los últimos años ha habido muchas opciones para este diseño. Algunos electrodomésticos están diseñados para uso oculto. A veces tienes que cortar parte de los estantes y hacer agujeros para los cables eléctricos. En primer lugar, encuentran un lugar para electrodomésticos grandes, en las últimas etapas de planificación, para los más pequeños. Al crear un proyecto, debe considerar de inmediato si habrá algún sistema de almacenamiento original, por ejemplo, en un delantal, al lado del auricular o en una posición suspendida.
Estándar
Uno de estos elementos es un gabinete con bisagras con dos puertas con bisagras. Está hecho con dos estantes y una altura de aproximadamente 70 cm, un ancho de aproximadamente 80 cm y una profundidad de 30 cm. Los gabinetes inferiores con cajones están diseñados teniendo en cuenta el tamaño de la habitación. Se hacen anchas o estrechas. En cuanto al número de cajones, con 4 de estos elementos, la profundidad será de 50 cm, el ancho suele ser de 40 cm. Los gabinetes inferiores con fachadas oscilantes tienen un ancho de 30 a 100 cm. En el primer caso, será una opción de una puerta. Los bordillos están diseñados con una profundidad de 50-60 cm y un estante de altura. El gabinete del lavabo se planifica teniendo en cuenta la longitud del fregadero, el ancho depende de esto. Es posible que necesite una versión de dos puertas con un ancho de 80 cm. También está hecha con una barra de soporte (zar, base superior). La profundidad de la sección para el lavado debe ser de al menos 50 cm.
No estándar
Una de las opciones atípicas es un gabinete para horno. Con una profundidad estándar de 50 cm, el ancho debe corresponder a la técnica, y esto es un mínimo de 60 cm, según las normas y recomendaciones.Otro elemento no estándar es un módulo articulado para una campana telescópica (por ejemplo, un estándar de 60 cm). Luego habrá un recorte con un diámetro de aproximadamente 30 cm desde arriba. La profundidad no debe exceder los 30 cm. Los lados sobresaldrán más allá del módulo en sí, con una altura de aproximadamente 70 cm a 55 por el gabinete. Las secciones de esquina, en diferentes variaciones, también se consideran una solución atípica. Los gabinetes con bisagras en forma de L tienen una profundidad superficial y un lienzo en blanco. La altura normal de la cámara es de unos 70 cm. También existe una opción alternativa en forma de sección trapezoidal superior. Tiene cinco lados y una puerta. Al mismo tiempo, es posible un ángulo de apertura de 45 grados, a menos que se realicen cambios especiales en el diseño de la fila superior. Las configuraciones en forma de L y trapezoidales se producen en los módulos inferiores.
Características de los componentes de la cocina de esquina.
Básicamente hay dos tipos de auriculares de esquina. Estas son opciones con ángulo recto y modificación trapezoidal. Los componentes principales de la cocina de la esquina son el fregadero de la esquina, el armario de la esquina, la caja de lápices, así como el equipo correspondiente. El lavado de esquinas puede ahorrar mucho espacio para otros elementos, y también es conveniente sostener un recipiente en él. La mesita de noche también disfraza varias comunicaciones y mostradores. La caja de lápices de esquina es perfecta para una cocina con nichos. Luego, el mueble colocado en la esquina no se ve interrumpido por la pared de trabajo, sino que tiene una forma moldeada. Este tipo de auriculares se hace por encargo. Un elemento como un armario de esquina es bueno por su amplitud. A veces se usa como un bar en casa. En cuanto a la tecnología de esquina, esta es una opción bastante cara. Sin embargo, el espacio en este caso se usa de manera más efectiva. Necesitará dispositivos integrados para parámetros específicos de la parte de la esquina del auricular.
Diseño de fachadas
La altura y el ancho de cada fachada deben ser inferiores a los mismos parámetros del cuerpo. Además, la autorización tecnológica se deduce de este último. En cada lado es de 1-2 milímetros, respectivamente, un máximo de 4 milímetros en general. Se realiza un cálculo separado para cada sección.Esto concierne principalmente a los frentes de MDF, ya que es muy difícil corregirlos. Si el cuerpo del gabinete toca la pared lateralmente, se le quitarán otros 3 mm del ancho antes de realizar cálculos básicos. Si hablamos de la puerta de la fila inferior, se tienen en cuenta las características de la encimera. En presencia de una bandeja de goteo, el margen hacia el borde superior del frente debe ser de al menos 4-5 mm. Si no existe tal elemento, entonces 3 mm son suficientes. El cálculo de las fachadas debajo de la repisa decorativa se realiza con una deducción de 3 mm. Si también hay uno más bajo, entonces 6 mm. Además, se derivan fórmulas para la fachada en forma de varios cajones:
Consejos para ensamblar auriculares
El primer paso es liberar la cocina y el espacio al lado. Debe prepararse para clasificar los materiales de desecho, porque algo más será útil. En la cocina, primero se conectan las comunicaciones y se corta un orificio para el fregadero, si no está previsto en la encimera. Luego instale las filas inferior y superior de muebles. Las fachadas se unen cuando toda la estructura ya está ensamblada. No se recomienda instalar una encimera con un grosor de más de 40 mm: solo se han desarrollado para ellos alrededor del 20% de los electrodomésticos modernos. En la mayoría de los casos, el ensamblaje sin maestros o un asistente no es posible. Los maestros de instalación están previamente informados sobre las características de los muebles, la presencia de un panel de pared para la plataforma del área de trabajo, la ubicación de los sistemas de suministro y las salidas de comunicación. Advierten de antemano sobre la necesidad de módulos de retroiluminación, la necesidad de un lavavajillas, caldera.
Conclusión
La fabricación o compra de muebles de cocina está asociada a una gran cantidad de cálculos. Esto se aplica no solo al cumplimiento de las dimensiones de las instalaciones, el diseño de estilo, sino también a la compatibilidad con el patrón de comunicaciones. Es con este último aspecto que el diseño debería comenzar.Necesariamente se necesita un dibujo para el proyecto. Primero, se determina la configuración y se identifican las zonas objetivo. Ya en esta etapa, hay muchas reglas que deben combinarse con capacidades técnicas y sus propios deseos. El siguiente paso es medir los parámetros principales de la sala. En el boceto, muebles, electrodomésticos, comunicaciones y tamaños de cocina se combinan en uno. Luego diseñe los elementos individuales. Luego viene el turno de los detalles y la selección de materiales. Antes de comenzar el trabajo de instalación, se realizan los toques finales. El dibujo de diseño terminado se pasa para familiarización con el maestro. Con conocimiento y experiencia precisos, puede construir una cocina con sus propias manos.