El área adyacente no se puede imaginar sin una cerca perimetral. Se instala al menos una cerca temporal antes del inicio de la construcción de una casa o cabaña privada. Le permite fijar los límites, realiza una función protectora y estética. Una parte igualmente importante del diseño general es el pasaje, la abertura en la cerca. Sirve no solo para el paso, admisión de vehículos, sino que también actúa como decoración del territorio. Para su fabricación, puede utilizar diferentes materiales, pero recientemente las puertas más comunes hechas de cartón corrugado.
Hoja perfilada: un material de construcción compuesto con una estructura heterogénea. Es una chapa de acero galvanizado protegida por un recubrimiento de polímero. La presencia de capas protectoras es la característica principal del producto. Su número puede ser diferente. Los más simples son los modelos de tres capas; consisten en una lámina de metal, galvanizada en ambos lados. Las opciones de mayor calidad pueden tener hasta 10 capas.
La vida útil de la lámina depende del tipo de recubrimiento. De acuerdo con este parámetro, distinguen: láminas perfiladas galvanizadas, galvanizadas con aluminio con un recubrimiento de polímero. El período de garantía del primer tipo es de 5 años, el segundo - 10, el tercero - de 10 a 20. El material se utiliza principalmente en la construcción. Se utiliza para diversos fines, por ejemplo, para la construcción de hangares, la instalación de vallas, la fabricación de puertas, el revestimiento de garajes, puestos de venta. Dependiendo del alcance, hay tres tipos principales de hoja perfilada:
Muro (frente). Está marcado con la letra "C". Difiere en pequeños perfiles. La ola puede tener una altura de 8,10,15,20,21 mm.
Techos (paredes inexistentes) o NS. En comparación con la primera opción se caracteriza por olas más altas (20,21,35,45,57,60,75,80,90,100 mm). Se utiliza para revestir techos, paredes, instalación de techos.
Rodamiento (marcando "H"). Se utiliza principalmente para la construcción de estructuras portantes. La altura de la ola es de 75.80, 90, 100 mm.
En teoría, cualquier tipo puede usarse para la producción de puertas, pero en la práctica la versión de pared se usa principalmente.
Ventajas y desventajas.
De acuerdo con GOST 24045-2010 p. 3.2, los perfiles metálicos son de chapa con corrugaciones ubicadas en todo el ancho. Su altura varía entre 20-160 mm. El grosor de la lámina de metal, tomado como base, es de 0.3 a 1 mm. Gracias al perfilado, un material suficientemente delgado se vuelve muy duradero. Entre las otras ventajas del producto, que es muy popular en la construcción, podemos distinguir:
bajo costo en comparación con otros materiales de construcción;
peso ligero
larga vida útil, en algunas especies puede superar los 50 años;
apariencia atractiva;
amplia gama de colores;
le permite hacer diseños de cualquier tamaño;
permite ahorrar en materiales de acabado;
resistencia a la luz solar, temperaturas extremas, precipitación;
protección contra la corrosión;
instalación simple, sin embargo, para instalar las puertas con sus propias manos, necesitará habilidades en el campo de la construcción, la capacidad de manejar varias herramientas eléctricas, incluida la soldadura;
Cuidado fácil.
Las principales desventajas de la hoja perfilada incluyen:
falta de aislamiento acústico;
poca resistencia al estrés mecánico;
Incluso un ligero daño a la capa protectora provoca la oxidación del metal.
Construcciones de portones y sus características.
Al equipar una cabaña de verano, muchos propietarios a menudo se preguntan qué puerta deben poner. Si antes la elección era pequeña, todos estaban contentos con los modelos swing, ahora todo ha cambiado, hay muchas más variedades. Al elegir la opción más adecuada, debe recordarse que el diseño debe ser conveniente en la operación, bloquear de forma segura el patio, proporcionar viajes no solo para automóviles, sino también para camiones. Entre los tipos principales, se pueden distinguir dos principales:
Swing A su vez, se dividen según los siguientes criterios:
Por el número de válvulas: de una hoja, de doble hoja.
En apariencia: unilateral, bilateral. En el primer caso, el diseño está decorado solo en la parte frontal, en el segundo, en ambos lados.
Por la presencia de una puerta - sorda, con una puerta de entrada ubicada en una de las hojas, o por separado de uno de los lados.
Por el método de apertura - manual (mecánico), controlado por automatización.
Por separado, es posible distinguir las puertas batientes plegables, en las que las alas se pueden plegar por la mitad. Esta opción se utiliza al equipar una carrera amplia.
Retráctil Hay varias variedades de estas estructuras:
fueraborda
ferrocarril
voladizo
telescópico
Puertas batientes
Esta versión clásica es la más común. Los modelos de columpios consisten en una o dos alas fijadas en bastidores. Se pueden abrir tanto hacia adentro como hacia afuera, según el método de soldadura de los bucles. La fiabilidad y la practicidad del diseño se han probado no durante años, sino durante milenios. Ella es muy popular
Las fajas consisten en un marco de metal cosido con cartón corrugado. Debido a su peso ligero, tienen una carga mínima en los soportes. Para repararlos en el estado cerrado, se usa un cerrojo, en la posición abierta: clips de resorte, ganchos con bucles, topes. Para evitar la caída de las piezas móviles, los postes deben instalarse sobre una base maciza bien enterrada.
Este sistema más simple y conveniente tiene una serie de ventajas significativas:
bajo costo, lo que hace que el dispositivo sea asequible para todos;
universalidad, se puede instalar en cualquier cerca, local;
durabilidad
una amplia variedad de diseños;
Instalación simple, que es posible para la mayoría de los propietarios de su propio sitio.
Desventajas
con hormigonado incorrecto de la base del pilar, profundidad insuficiente de la base, el soporte puede sesgarse con el tiempo;
es difícil abrir elementos ligeros revestidos con una sábana profesional con viento fuerte;
abrir partes móviles requerirá espacio libre frente a ellas;
en invierno, tienes que limpiar regularmente la nieve.
Puertas correderas
Las estructuras retráctiles son una buena alternativa a los modelos clásicos de columpios. Se caracterizan por un dispositivo más complejo, pero se ven muy impresionantes. Consiste en web, guías y rodillos. Se distinguen las variantes de una y dos hojas. Su principio de acción es mover las aletas a lo largo de la cerca. Esta circunstancia es su característica principal. Las principales ventajas de la puerta incluyen:
apariencia atractiva;
compacidad
su apertura no requiere espacio libre frente a ellos;
soportar bien las cargas de viento;
No interfiera con la llegada de ningún vehículo;
No se hunden.
Entre las deficiencias se pueden identificar:
En comparación con los modelos swing, son más caros;
trabajos de instalación más complejos;
se requiere una base bien hormigonada para instalar los postes de soporte;
la instalación solo es posible si hay espacio libre a lo largo de la cerca;
Los rodamientos de rodillos deben limpiarse regularmente de escombros y nieve en invierno.
Cómo elegir una hoja perfilada
Para la fabricación de puertas, use láminas de pared marcadas "C". Se diferencia del techo y otras opciones por la altura de las olas. El tamaño de los refuerzos se indica con un número. Cuanto más alto es, más fuerte es la hoja en sí y su capacidad para soportar cargas.
El más conveniente para montar puertas corrugadas de cartón está marcado S-18, S-20, S-21. Se puede operar en las condiciones más severas. Al elegir el tipo de material, debe tener en cuenta la topografía, las características climáticas. Las láminas de metal consisten en varias capas, cada una de las cuales cumple su función. La base de acero puede tener el siguiente recubrimiento:
De zinc;
Aluzinc
Poliéster
Plastisol o Pural.
Variedad de colores
Mediante el método de aplicación de la capa de pintura, las láminas se dividen en pintadas en un solo lado, pintadas en ambos lados en el mismo tono, y tienen un color multicolor de doble cara. Los colores utilizados están regulados por documentos reglamentarios, entre los cuales los siguientes estándares son los más comunes:
Europeo (RAL);
Finlandés (RR);
Inglés (HPS);
Sueco (PRELA).
Para la construcción de la cerca, lo más adecuado es un cartón corrugado con tinción de doble cara. Al elegir un color adecuado, preste atención al cumplimiento del diseño general del sitio y de la casa. Muy a menudo, se prefiere un tono verde. Se adapta bien a casi cualquier diseño de paisaje, se ve muy bien en el fondo de espacios verdes naturales.
También se demandan tonos marrones, azules y grises. Se combinan con la mayoría de los materiales de construcción utilizados para la cerca, la fachada del edificio. Elegir rojo y amarillo no es aconsejable. La decisión más infructuosa será el uso de chapa perfilada galvanizada sin pintar. No solo es poco atractivo en apariencia, sino también menos duradero y práctico.
El proceso de hacer puertas batientes hágalo usted mismo
Algunas personas creen que cualquier persona puede construir estructuras de swing incluso si no tiene habilidades especiales. Sin embargo, esto no es del todo cierto. Después de estudiar las instrucciones, la mayoría de los tipos de trabajo se pueden hacer de forma independiente, pero no todos. Por ejemplo, para soldar un marco de calidad, necesitará la ayuda de un especialista que sepa cómo manejar equipos y que tenga experiencia en este asunto.
El proceso de fabricación de la estructura consta de varias etapas. Inicialmente, es necesario determinar la ubicación de la entrada, hacer un dibujo, realizar el cálculo de los materiales requeridos. Luego puede comenzar a preparar la base, instalar los bastidores, construir el marco y fijarlo en los soportes, cubriendo con una hoja perfilada.Consideraremos cada paso individual en detalle para que, al crear un objetivo con sus propias manos, evite errores accidentales.
Consumibles y herramientas
Calcular la cantidad de materiales necesarios es posible solo después de dibujar. Para cada caso específico, su número será individual. Para completar el trabajo, necesitará:
bayoneta y pala;
chatarra, astilladora, si es necesario eliminar el hormigón viejo, el revestimiento de ladrillo o la base
hormigonera, baño antiguo para mezclar mortero;
cubos, llana;
esquina, nivel de construcción;
instrumentos de medida, lápiz, hilo kapron;
máquina de soldar y electrodos;
amoladora con discos roscados y abrasivos;
perforar con un conjunto de taladros;
brocha, rodillo, pistola para pintar bastidores y marcos;
tornillos autorroscantes.
Se deben preparar los siguientes tipos de materias primas:
cartón corrugado para el revestimiento del marco;
tubos metálicos de perfil de diferentes diámetros para bastidores y bastidores;
bisagras de alta resistencia para fijar las alas;
cerraduras, pestillos, cerraduras;
materia colorante;
piedra triturada, arena, cemento.
Tamaños de puertas y puertas
El punto de partida en todo trabajo es la ubicación de instalación. La apariencia de la estructura misma, así como sus parámetros, dependen en gran medida de ella. Por ejemplo, el garaje y las puertas delanteras tendrán dimensiones completamente diferentes, que se seleccionan individualmente para cada caso. La forma más fácil de calcular el valor de la altura. Para determinarlo, debes concentrarte en la cerca. Las puertas deben estar al ras de la cerca, en promedio, este parámetro es de 2-2.5 m.
La altura de la puerta está determinada por el mismo principio. Según los documentos reglamentarios existentes, su ancho mínimo debe exceder los 80 cm. Esto es suficiente para que una persona pueda pasar libremente, pero como muestra la práctica, no es suficiente para una intersección cómoda de la puerta con el equipaje de mano o un cubo. El tamaño óptimo del ancho de la puerta es de 1-1.2 m.Algunos propietarios instalan puertas más anchas a 1,5 m.
La elección del ancho de la puerta es mucho más complicada. En este caso, es necesario tener en cuenta muchos factores: la distancia desde la cerca hasta la carretera, el radio de llegada, incluso el material que se utilizó en la construcción de la casa. Por ejemplo, una cabaña de madera se caracteriza por un mayor riesgo de incendio, tomará 6 m entrar en un camión de bomberos. 2.4-2.5 m es suficiente para que ingrese un automóvil de pasajeros, 3.2-4 m para un camión.
Dibujo de la puerta
Al construir una estructura, no se puede prescindir de una imagen gráfica en la que se indican todos los nodos y sus tamaños. Le permitirá calcular con precisión la cantidad de materiales necesarios para el trabajo, para realizar una instalación de calidad. Puede crear un boceto usted mismo, incluso si no tiene habilidades de dibujo, es suficiente hacer un dibujo esquemático simple en una hoja de cuaderno, indicar en él los parámetros de todos los elementos. El dibujo debe mostrar:
bastidores, su número, profundidad de hormigonado;
el dispositivo de marco, que indica las dimensiones de todas sus partes;
parámetros de cada hoja;
posición y dimensiones de la puerta;
ancho total de la abertura;
material de revestimiento;
bisagras, su ubicación de instalación específica;
pestillos, abrazaderas;
elementos que fortalecen el marco (esquinas, puentes transversales y diagonales);
cerraduras, métodos de fijación, ubicación de los ojos.
Montamos soportes para puertas
El trabajo de instalación en la instalación de puertas de cartón corrugado comienza con la limpieza y posterior marcado del territorio. Inicialmente, determinamos la ubicación de las publicaciones. Luego en el nivel, estiramos el hilo de nylon, que pasa a través de los centros de futuros agujeros. Luego pasamos al escenario principal:
Con la ayuda de un taladro de jardín, hacemos una depresión en el suelo. Su profundidad es en promedio de 1,5 M. En algunos casos, puede ser necesario un martillo neumático. Si se usa una pala para el trabajo, entonces el ancho del agujero se hace más grande, al mismo tiempo, aumenta la cantidad de mezcla de concreto requerida para verter.
En el fondo del pozo nos quedamos dormidos sobre una almohada de piedra triturada y arena de hasta 30 cm de espesor, bien apisonada. Con una fuerte contracción, vierta un poco más de material de construcción.
En el fondo del hoyo construimos un soporte. Debe estar preparado, recubierto con una imprimación protectora, pintado. Llenamos el espacio libre a su alrededor con piedras, pedazos de concreto viejo. Esto reduce el volumen de la solución.
Alineamos el estante en nivel, lo apoyamos desde diferentes lados con ladrillos, adoquines, si es necesario, soldamos puentes especiales.
En una mezcladora de concreto o amase manualmente la solución, a razón de 1: 3: 6 (cemento, arena, grava).
Rellenamos la mezcla de hormigón. Dejamos la base por una semana para que el concreto se asiente bien. Periódicamente, cada dos o tres días, la superficie se puede humedecer con agua para que no aparezcan grietas.
Hacemos un marco y un marco de puerta
Para llegar a la fabricación del marco, vuelva a medir el ancho de la puerta y la puerta, teniendo en cuenta los pilares de soporte instalados. Esto dará tiempo para realizar cambios en el dibujo, si corresponde. Comenzando:
Usando una amoladora de una tubería o esquina de perfil, cortamos los espacios en blanco de la longitud deseada, que dependerá directamente del método de unión de los dos elementos (a tope, en un ángulo de 45 °)
Despejamos una superficie de óxido y contaminación.
Sobre una base uniforme de los componentes formamos un marco.
Soldamos todos los espacios en blanco.
Verificamos la igualdad de todos los ángulos con una esquina. Si revelamos una discrepancia, cortamos la soldadura con una amoladora y repetimos todo nuevamente.
Verifique si los marcos de guillotina encajan debajo de la abertura. Estamos convencidos de su geometría correcta, después de soldar completamente las costuras.
Reforzamos el marco con refuerzos.
Los profesionales recomiendan ángulos de soldadura en un ángulo de 45 °, al menos ubicado en la parte superior. Esto protegerá el interior de la tubería de la humedad.
Fijación de las aletas a los soportes y fabricación de accesorios.
Las persianas de los soportes se fijan con bisagras. Su número depende del peso del marco. Para los modelos ligeros, dos elementos son suficientes, para los masivos: tres. Considere una de las posibles opciones de instalación:
Elija un tablero que corresponda en longitud a la distancia entre los bastidores. Córtalo al tamaño correcto.
Colocando ladrillos debajo, establecemos el nivel de la ubicación del punto inferior de los elementos oscilantes. Después de soldar, a menudo se hunden, así que coloque un soporte de 2 cm de espesor en el centro de la barra.
Establecer la banda en la base preparada.
Su parte superior se fija temporalmente a los postes de soporte mediante una cuerda.
Hacemos marcas para las bisagras, las soldamos a las puertas y soportes.
Verifique la puerta para abrir. Si no se han identificado defectos e inexactitudes, finalmente soldamos los elementos.
Después de arreglar la puerta, procedemos a la instalación de accesorios. Soldamos mangos, pernos, abrazaderas (vertical, horizontal). Para estos fines, puede usar esquinas, piezas de una tubería redonda, refuerzo. Ponemos cerraduras. Hay modelos aéreos, de embutir, electromagnéticos. Si es necesario, instale automatización, sistema de seguridad (alarma, cámara CCTV).
Imprimación y pintura de la estructura.
Pintar el marco es uno de los pasos más importantes. La vida del producto, su apariencia, depende de esto. El proceso es el siguiente:
Prepara la base. Esto le permite proporcionar la mejor adhesión del metal con agentes colorantes. Usando materiales abrasivos, como papel de lija, limpiamos la superficie metálica. Prestamos especial atención a las costuras de soldadura.
Lavamos la estructura del polvo, la suciedad rebelde. Usando aguarrás, desengrasa el metal.
Tierra todos los elementos metálicos. La solución se puede aplicar usando un aerosol o un cepillo regular. Le damos tiempo para que la imprimación se seque. Por lo general, 12 horas es suficiente.
Llegando a la pintura. Para el trabajo, puede usar pinturas alquídicas, al óleo, acrílicas. Comenzando desde el borde superior, aplique la materia colorante con un rodillo, bajando gradualmente. Es muy necesario procesar todos los extremos y esquinas.Para pintarlos, es mejor usar un pincel. Deja que la pintura se seque por un día. Después de este tiempo, si no le gustó el tono, puede aplicar otra capa.
Revestimiento perfilado
En la etapa final de construcción, queda por cubrir toda la estructura con cartón corrugado. Esto no es difícil de lograr, pero debes conocer algunos matices. Considere las instrucciones sobre cómo arreglar la hoja:
Tomamos la hoja profesional, la instalamos en la parte superior del marco. Si es necesario, corte el exceso. Lo exponemos según el nivel.
Sosteniendo la hoja en una posición uniforme, usando un taladro, taladre cuidadosamente un agujero en su onda inferior y en la tubería de perfil a la que se unirá. El diámetro del taladro debe ser 1 mm menor que el tamaño de la rosca del tornillo.
Para el trabajo, es necesario usar solo tornillos especiales autorroscantes para metal, que externamente se pueden determinar por el paso característico de la rosca. Es aconsejable seleccionar consumibles que estén pintados de la misma manera que el cartón ondulado.
No apriete los tornillos hasta el final. En el mejor de los casos, la goma se dañará, en el peor de los casos, la capa de polímero, lo que conducirá a la corrosión del metal.
La segunda hoja debe instalarse de modo que su onda de cobertura cubra la onda de la anterior. Del mismo modo, se montan los elementos posteriores.
Puertas correderas de bricolaje
En un área limitada, es imposible instalar las puertas batientes habituales. En este caso, una construcción sólida hecha de cartón corrugado con un mecanismo deslizante puede salvar la situación. Es fácil de fabricar e instalar, lo que le permite utilizar racionalmente el espacio. Por el principio de funcionamiento, el dispositivo se asemeja a un armario deslizante. La red de barrera se mueve lateralmente a lo largo de la cerca y se fija en una determinada posición mediante la viga de soporte. El movimiento puede ser manual o automático.
Materiales y herramientas
Es fácil construir puertas corredizas con sus propias manos si tiene accesorios especiales y ciertas habilidades para trabajar con estructuras metálicas.Para crear una cerca con un mecanismo retráctil, se requerirán los siguientes materiales y herramientas:
Para soportes de tubería 100x100 mm;
Para un marco de tubería con un diámetro interno de 20x20 mm, 30x30 mm;
Para riel de guía riel de acero;
Para la fijación de la banda, rodillos con carros;
Colectores superiores e inferiores;
Guarniciones;
Kit de automatización;
Sábana profesional de una marca especial para llenar la sección;
Kit de soldadura;
Componentes para mortero de hormigón;
Taladro, amoladora, destornillador, tijeras de metal;
Pernos, tornillos;
Pala, nivel, recipientes para amasar la solución.
Dibujo de la puerta
En la etapa inicial, es necesario crear un proyecto para el diseño futuro. Es necesario medir la distancia entre las columnas y elaborar un dibujo detallado con un reflejo de los parámetros exactos. Los siguientes factores afectarán el ancho de la abertura:
Propósito de la puerta;
El ancho de la calzada cerca de la casa;
Tipo de transporte entrante;
La longitud de la cerca, la presencia de espacio libre a lo largo de ella.
Dimensiones recomendadas de la estructura retráctil 4x2 metros. Para la conveniencia de conducir un automóvil desde una calle estrecha, se puede aumentar el ancho. Además, este parámetro aumenta si los planes llaman al camión.
Vertido de cimientos, instalación de hipotecas y soportes.
La construcción metálica de las puertas corredizas es pesada, por lo que será necesario preparar una base confiable para la instalación. La base reforzada con cinta proporcionará una buena estabilidad.
Se rasga una zanja a lo largo de la cerca en la dirección del retroceso de la puerta. El ancho del pozo es de 0.5 m, la longitud es de al menos 2 m, la profundidad es de 0.5 m. Se perforan dos agujeros para la instalación de columnas de soporte. Las tuberías deben ingresar un tercio de su longitud. El diámetro del orificio es 2.5 veces la sección transversal de la tubería. En el fondo de los pozos para los pilares, se hace una almohada de piedra triturada en arena con una altura de 100 mm y se vierte mortero de hormigón. El fondo de la zanja entre los pilares también está revestido con arena y grava, refuerzo de refuerzo y colocación, hormigonado.
Puede hacer una base para una estructura retráctil utilizando un canal, soportes integrados.En este caso, el refuerzo se coloca en la zanja, se suelda a la viga y se hormigona al mismo nivel.
Casement
Haz un marco de tubos de metal. Usando una amoladora, los segmentos de la longitud requerida se separan de acuerdo con el dibujo. Ahora deben limpiarse del polvo, desengrasarse y pintarse con tierra. Después del secado, se suelda un marco de ellos, se une un riel direccional a la parte inferior del marco. Las juntas enfriadas se limpian, se tratan con un compuesto anticorrosivo y se pinta toda la estructura con el color deseado.
La soldadura de prueba debe hacerse primero con "golpes". Esto se hace para verificar previamente los parámetros del marco con el dibujo. En caso de incumplimiento, cualquiera de las partes será fácil de desmontar.
Selección de componentes e instalación de puertas.
Para la fabricación de puertas de cartón corrugado, deberá comprar algunos componentes. La viga guía debe ser lo suficientemente gruesa como para soportar el peso de la estructura. Se requerirán rodillos moleteados y carros para proporcionar movimiento y absorción de ruido. En la parte superior e inferior de la puerta, será necesario instalar receptores. Para estabilizar la puerta al abrir, necesita un tablero especial.
Los rodillos están montados en la viga en la parte inferior de la estructura, posicionándolos lo más separados posible. La parte extrema no debe tocar el enchufe al cerrar. El marco de la puerta está montado sobre elementos móviles y nivelado. Si la situación le conviene, escalde la plataforma de los carros, el remolque y los receptores. Todos los detalles deben coincidir.
Revestimiento perfilado
Una etapa importante y final en la fabricación de puertas correderas. Para fijar la hoja perfilada al marco, use tornillos autorroscantes o remaches. Los sujetadores deben distribuirse de manera uniforme, colocando solo en los huecos del perfil. Su ubicación debe determinarse en la etapa de diseño. Consumo medio - 6 tornillos por 1 m2.
Las puertas preparadas se pueden complementar con los accesorios necesarios, hermosos diseños forjados.Puede incrustar una cerradura en el lateral, instalar una cerradura inferior, retroceso automático, alarma, iluminación.
Selección de automatización para cancelas correderas
Puede instalar y conectar modelos listos para usar usted mismo. Para no equivocarse con la elección, debe tener en cuenta los siguientes requisitos para la automatización de puertas antes de comprar:
La reserva de energía debe corresponder a la carga y las dimensiones de la estructura retráctil;
Es mejor dar preferencia a los modelos con cajas de engranajes totalmente metálicas. Los engranajes deficientes deshabilitarán regularmente todo el mecanismo;
Las inserciones magnéticas en los interruptores de límite asegurarán la operación ininterrumpida de la automatización en el invierno;
Las características de rendimiento del dispositivo deben coincidir con el propósito de la puerta;
Para el autoensamblaje, la automatización está lista, lista para funcionar. Es suficiente para instalar y conectarse a la red.
Conclusión
Las puertas de cartón corrugado tienen muchas características positivas. Son ligeros, atractivos en apariencia. Si tiene experiencia en el campo de la construcción, la capacidad de trabajar con soldadura y varias herramientas eléctricas, puede revestir la estructura usted mismo sin problemas. Sin embargo, se requerirá la ayuda de un compañero, ya que una persona no podrá sostener exactamente los marcos, sosteniendo exactamente las hojas.
El área adyacente no se puede imaginar sin una cerca perimetral. Se instala al menos una cerca temporal antes del inicio de la construcción de una casa o cabaña privada. Le permite fijar los límites, realiza una función protectora y estética. Una parte igualmente importante del diseño general es el pasaje, la abertura en la cerca. Sirve no solo para el paso, admisión de vehículos, sino que también actúa como decoración del territorio. Para su fabricación, puede utilizar diferentes materiales, pero recientemente las puertas más comunes hechas de cartón corrugado.
Contenido
Características materiales
Hoja perfilada: un material de construcción compuesto con una estructura heterogénea. Es una chapa de acero galvanizado protegida por un recubrimiento de polímero. La presencia de capas protectoras es la característica principal del producto. Su número puede ser diferente. Los más simples son los modelos de tres capas; consisten en una lámina de metal, galvanizada en ambos lados. Las opciones de mayor calidad pueden tener hasta 10 capas.
La vida útil de la lámina depende del tipo de recubrimiento. De acuerdo con este parámetro, distinguen: láminas perfiladas galvanizadas, galvanizadas con aluminio con un recubrimiento de polímero. El período de garantía del primer tipo es de 5 años, el segundo - 10, el tercero - de 10 a 20. El material se utiliza principalmente en la construcción. Se utiliza para diversos fines, por ejemplo, para la construcción de hangares, la instalación de vallas, la fabricación de puertas, el revestimiento de garajes, puestos de venta. Dependiendo del alcance, hay tres tipos principales de hoja perfilada:
Ventajas y desventajas.
De acuerdo con GOST 24045-2010 p. 3.2, los perfiles metálicos son de chapa con corrugaciones ubicadas en todo el ancho. Su altura varía entre 20-160 mm. El grosor de la lámina de metal, tomado como base, es de 0.3 a 1 mm. Gracias al perfilado, un material suficientemente delgado se vuelve muy duradero. Entre las otras ventajas del producto, que es muy popular en la construcción, podemos distinguir:
Las principales desventajas de la hoja perfilada incluyen:
Construcciones de portones y sus características.
Al equipar una cabaña de verano, muchos propietarios a menudo se preguntan qué puerta deben poner. Si antes la elección era pequeña, todos estaban contentos con los modelos swing, ahora todo ha cambiado, hay muchas más variedades. Al elegir la opción más adecuada, debe recordarse que el diseño debe ser conveniente en la operación, bloquear de forma segura el patio, proporcionar viajes no solo para automóviles, sino también para camiones. Entre los tipos principales, se pueden distinguir dos principales:
Swing A su vez, se dividen según los siguientes criterios:
Retráctil Hay varias variedades de estas estructuras:
Puertas batientes
Esta versión clásica es la más común. Los modelos de columpios consisten en una o dos alas fijadas en bastidores. Se pueden abrir tanto hacia adentro como hacia afuera, según el método de soldadura de los bucles. La fiabilidad y la practicidad del diseño se han probado no durante años, sino durante milenios. Ella es muy popular
Las fajas consisten en un marco de metal cosido con cartón corrugado. Debido a su peso ligero, tienen una carga mínima en los soportes. Para repararlos en el estado cerrado, se usa un cerrojo, en la posición abierta: clips de resorte, ganchos con bucles, topes. Para evitar la caída de las piezas móviles, los postes deben instalarse sobre una base maciza bien enterrada.
Este sistema más simple y conveniente tiene una serie de ventajas significativas:
Desventajas
Puertas correderas
Las estructuras retráctiles son una buena alternativa a los modelos clásicos de columpios. Se caracterizan por un dispositivo más complejo, pero se ven muy impresionantes. Consiste en web, guías y rodillos. Se distinguen las variantes de una y dos hojas. Su principio de acción es mover las aletas a lo largo de la cerca. Esta circunstancia es su característica principal. Las principales ventajas de la puerta incluyen:
Entre las deficiencias se pueden identificar:
Cómo elegir una hoja perfilada
Para la fabricación de puertas, use láminas de pared marcadas "C". Se diferencia del techo y otras opciones por la altura de las olas. El tamaño de los refuerzos se indica con un número. Cuanto más alto es, más fuerte es la hoja en sí y su capacidad para soportar cargas.
El más conveniente para montar puertas corrugadas de cartón está marcado S-18, S-20, S-21. Se puede operar en las condiciones más severas. Al elegir el tipo de material, debe tener en cuenta la topografía, las características climáticas. Las láminas de metal consisten en varias capas, cada una de las cuales cumple su función. La base de acero puede tener el siguiente recubrimiento:
Variedad de colores
Mediante el método de aplicación de la capa de pintura, las láminas se dividen en pintadas en un solo lado, pintadas en ambos lados en el mismo tono, y tienen un color multicolor de doble cara. Los colores utilizados están regulados por documentos reglamentarios, entre los cuales los siguientes estándares son los más comunes:
Para la construcción de la cerca, lo más adecuado es un cartón corrugado con tinción de doble cara. Al elegir un color adecuado, preste atención al cumplimiento del diseño general del sitio y de la casa. Muy a menudo, se prefiere un tono verde. Se adapta bien a casi cualquier diseño de paisaje, se ve muy bien en el fondo de espacios verdes naturales.
También se demandan tonos marrones, azules y grises. Se combinan con la mayoría de los materiales de construcción utilizados para la cerca, la fachada del edificio. Elegir rojo y amarillo no es aconsejable. La decisión más infructuosa será el uso de chapa perfilada galvanizada sin pintar. No solo es poco atractivo en apariencia, sino también menos duradero y práctico.
El proceso de hacer puertas batientes hágalo usted mismo
Algunas personas creen que cualquier persona puede construir estructuras de swing incluso si no tiene habilidades especiales. Sin embargo, esto no es del todo cierto. Después de estudiar las instrucciones, la mayoría de los tipos de trabajo se pueden hacer de forma independiente, pero no todos. Por ejemplo, para soldar un marco de calidad, necesitará la ayuda de un especialista que sepa cómo manejar equipos y que tenga experiencia en este asunto.
El proceso de fabricación de la estructura consta de varias etapas. Inicialmente, es necesario determinar la ubicación de la entrada, hacer un dibujo, realizar el cálculo de los materiales requeridos. Luego puede comenzar a preparar la base, instalar los bastidores, construir el marco y fijarlo en los soportes, cubriendo con una hoja perfilada.Consideraremos cada paso individual en detalle para que, al crear un objetivo con sus propias manos, evite errores accidentales.
Consumibles y herramientas
Calcular la cantidad de materiales necesarios es posible solo después de dibujar. Para cada caso específico, su número será individual. Para completar el trabajo, necesitará:
Se deben preparar los siguientes tipos de materias primas:
Tamaños de puertas y puertas
El punto de partida en todo trabajo es la ubicación de instalación. La apariencia de la estructura misma, así como sus parámetros, dependen en gran medida de ella. Por ejemplo, el garaje y las puertas delanteras tendrán dimensiones completamente diferentes, que se seleccionan individualmente para cada caso. La forma más fácil de calcular el valor de la altura. Para determinarlo, debes concentrarte en la cerca. Las puertas deben estar al ras de la cerca, en promedio, este parámetro es de 2-2.5 m.
La altura de la puerta está determinada por el mismo principio. Según los documentos reglamentarios existentes, su ancho mínimo debe exceder los 80 cm. Esto es suficiente para que una persona pueda pasar libremente, pero como muestra la práctica, no es suficiente para una intersección cómoda de la puerta con el equipaje de mano o un cubo. El tamaño óptimo del ancho de la puerta es de 1-1.2 m.Algunos propietarios instalan puertas más anchas a 1,5 m.
La elección del ancho de la puerta es mucho más complicada. En este caso, es necesario tener en cuenta muchos factores: la distancia desde la cerca hasta la carretera, el radio de llegada, incluso el material que se utilizó en la construcción de la casa. Por ejemplo, una cabaña de madera se caracteriza por un mayor riesgo de incendio, tomará 6 m entrar en un camión de bomberos. 2.4-2.5 m es suficiente para que ingrese un automóvil de pasajeros, 3.2-4 m para un camión.
Dibujo de la puerta
Al construir una estructura, no se puede prescindir de una imagen gráfica en la que se indican todos los nodos y sus tamaños. Le permitirá calcular con precisión la cantidad de materiales necesarios para el trabajo, para realizar una instalación de calidad. Puede crear un boceto usted mismo, incluso si no tiene habilidades de dibujo, es suficiente hacer un dibujo esquemático simple en una hoja de cuaderno, indicar en él los parámetros de todos los elementos. El dibujo debe mostrar:
Montamos soportes para puertas
El trabajo de instalación en la instalación de puertas de cartón corrugado comienza con la limpieza y posterior marcado del territorio. Inicialmente, determinamos la ubicación de las publicaciones. Luego en el nivel, estiramos el hilo de nylon, que pasa a través de los centros de futuros agujeros. Luego pasamos al escenario principal:
Hacemos un marco y un marco de puerta
Para llegar a la fabricación del marco, vuelva a medir el ancho de la puerta y la puerta, teniendo en cuenta los pilares de soporte instalados. Esto dará tiempo para realizar cambios en el dibujo, si corresponde. Comenzando:
Fijación de las aletas a los soportes y fabricación de accesorios.
Las persianas de los soportes se fijan con bisagras. Su número depende del peso del marco. Para los modelos ligeros, dos elementos son suficientes, para los masivos: tres. Considere una de las posibles opciones de instalación:
Después de arreglar la puerta, procedemos a la instalación de accesorios. Soldamos mangos, pernos, abrazaderas (vertical, horizontal). Para estos fines, puede usar esquinas, piezas de una tubería redonda, refuerzo. Ponemos cerraduras. Hay modelos aéreos, de embutir, electromagnéticos. Si es necesario, instale automatización, sistema de seguridad (alarma, cámara CCTV).
Imprimación y pintura de la estructura.
Pintar el marco es uno de los pasos más importantes. La vida del producto, su apariencia, depende de esto. El proceso es el siguiente:
Revestimiento perfilado
En la etapa final de construcción, queda por cubrir toda la estructura con cartón corrugado. Esto no es difícil de lograr, pero debes conocer algunos matices. Considere las instrucciones sobre cómo arreglar la hoja:
Puertas correderas de bricolaje
En un área limitada, es imposible instalar las puertas batientes habituales. En este caso, una construcción sólida hecha de cartón corrugado con un mecanismo deslizante puede salvar la situación. Es fácil de fabricar e instalar, lo que le permite utilizar racionalmente el espacio. Por el principio de funcionamiento, el dispositivo se asemeja a un armario deslizante. La red de barrera se mueve lateralmente a lo largo de la cerca y se fija en una determinada posición mediante la viga de soporte. El movimiento puede ser manual o automático.
Materiales y herramientas
Es fácil construir puertas corredizas con sus propias manos si tiene accesorios especiales y ciertas habilidades para trabajar con estructuras metálicas.Para crear una cerca con un mecanismo retráctil, se requerirán los siguientes materiales y herramientas:
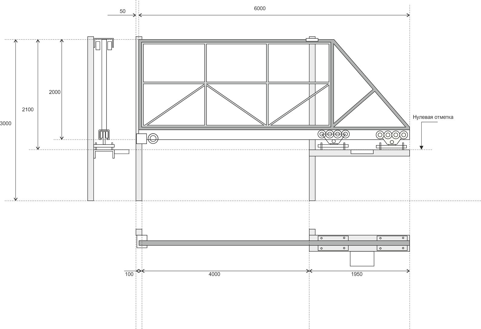
Dibujo de la puerta
En la etapa inicial, es necesario crear un proyecto para el diseño futuro. Es necesario medir la distancia entre las columnas y elaborar un dibujo detallado con un reflejo de los parámetros exactos. Los siguientes factores afectarán el ancho de la abertura:
Dimensiones recomendadas de la estructura retráctil 4x2 metros. Para la conveniencia de conducir un automóvil desde una calle estrecha, se puede aumentar el ancho. Además, este parámetro aumenta si los planes llaman al camión.
Vertido de cimientos, instalación de hipotecas y soportes.
La construcción metálica de las puertas corredizas es pesada, por lo que será necesario preparar una base confiable para la instalación. La base reforzada con cinta proporcionará una buena estabilidad.
Se rasga una zanja a lo largo de la cerca en la dirección del retroceso de la puerta. El ancho del pozo es de 0.5 m, la longitud es de al menos 2 m, la profundidad es de 0.5 m. Se perforan dos agujeros para la instalación de columnas de soporte. Las tuberías deben ingresar un tercio de su longitud. El diámetro del orificio es 2.5 veces la sección transversal de la tubería. En el fondo de los pozos para los pilares, se hace una almohada de piedra triturada en arena con una altura de 100 mm y se vierte mortero de hormigón. El fondo de la zanja entre los pilares también está revestido con arena y grava, refuerzo de refuerzo y colocación, hormigonado.
Puede hacer una base para una estructura retráctil utilizando un canal, soportes integrados.En este caso, el refuerzo se coloca en la zanja, se suelda a la viga y se hormigona al mismo nivel.
Casement
Haz un marco de tubos de metal. Usando una amoladora, los segmentos de la longitud requerida se separan de acuerdo con el dibujo. Ahora deben limpiarse del polvo, desengrasarse y pintarse con tierra. Después del secado, se suelda un marco de ellos, se une un riel direccional a la parte inferior del marco. Las juntas enfriadas se limpian, se tratan con un compuesto anticorrosivo y se pinta toda la estructura con el color deseado.
La soldadura de prueba debe hacerse primero con "golpes". Esto se hace para verificar previamente los parámetros del marco con el dibujo. En caso de incumplimiento, cualquiera de las partes será fácil de desmontar.
Selección de componentes e instalación de puertas.
Para la fabricación de puertas de cartón corrugado, deberá comprar algunos componentes. La viga guía debe ser lo suficientemente gruesa como para soportar el peso de la estructura. Se requerirán rodillos moleteados y carros para proporcionar movimiento y absorción de ruido. En la parte superior e inferior de la puerta, será necesario instalar receptores. Para estabilizar la puerta al abrir, necesita un tablero especial.
Los rodillos están montados en la viga en la parte inferior de la estructura, posicionándolos lo más separados posible. La parte extrema no debe tocar el enchufe al cerrar. El marco de la puerta está montado sobre elementos móviles y nivelado. Si la situación le conviene, escalde la plataforma de los carros, el remolque y los receptores. Todos los detalles deben coincidir.
Revestimiento perfilado
Una etapa importante y final en la fabricación de puertas correderas. Para fijar la hoja perfilada al marco, use tornillos autorroscantes o remaches. Los sujetadores deben distribuirse de manera uniforme, colocando solo en los huecos del perfil. Su ubicación debe determinarse en la etapa de diseño. Consumo medio - 6 tornillos por 1 m2.
Las puertas preparadas se pueden complementar con los accesorios necesarios, hermosos diseños forjados.Puede incrustar una cerradura en el lateral, instalar una cerradura inferior, retroceso automático, alarma, iluminación.
Selección de automatización para cancelas correderas
Puede instalar y conectar modelos listos para usar usted mismo. Para no equivocarse con la elección, debe tener en cuenta los siguientes requisitos para la automatización de puertas antes de comprar:
Conclusión
Las puertas de cartón corrugado tienen muchas características positivas. Son ligeros, atractivos en apariencia. Si tiene experiencia en el campo de la construcción, la capacidad de trabajar con soldadura y varias herramientas eléctricas, puede revestir la estructura usted mismo sin problemas. Sin embargo, se requerirá la ayuda de un compañero, ya que una persona no podrá sostener exactamente los marcos, sosteniendo exactamente las hojas.