Un hombre de la antigüedad se dedicaba a cocinar. Todo comenzó con una hoguera ordinaria alrededor de la cual se colocaron piedras. Sirvieron como una especie de "estufa" para freír carne. A medida que la sociedad se desarrolló, aparecieron nuevos dispositivos. Como resultado, comenzaron a freír la barbacoa en la parrilla, que se ha convertido en una parte integral de la recreación al aire libre.
Existen varias versiones del origen del producto. Según uno de ellos, el dispositivo fue inventado en el siglo VII a. C. e. Sanador escita y sabio Anaharsis. Otro insiste en que una asadera se originó en el Antiguo Oriente. Esto se confirma indirectamente por la presencia de un solo nombre para el tema de todos los pueblos orientales. Sin embargo, tal barbacoa era un diseño en forma de un tazón de cobre montado en las patas. Además, el producto tenía dos asas que sirven para mover cómodamente al sujeto, una tapa hemisférica.
La calidad de la barbacoa cocinada a la parrilla depende del diseño del producto. Los principales parámetros de la estructura son sus dimensiones, material de fabricación. Para calcularlos, debe decidir los siguientes factores:
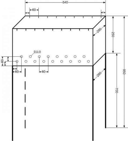
Opción para cocinar carne. Se puede ensartar en un pincho, poner en una parrilla de barbacoa. Al construir el brasero, confían en tamaños óptimos. El tamaño estándar de la brocheta es de 50 cm, su parte de trabajo es de 35 cm. Según estos parámetros, el ancho del producto debe ser inferior a 40 cm. La celosía clásica tiene un tamaño de 18x28 cm, pero es más fácil elegir el tamaño de una asadera. La profundidad del producto depende de la materia prima quemada en él, cuya distancia al carbón debe ser de 8 cm. Si se usa carbón, entonces la profundidad es de 20 cm, para leña - 25 cm. Al elegir la longitud, se tiene en cuenta la cantidad de carne frita obtenida de una carga. Puede colocar una brocheta en un plano de 10 cm. Para las rejillas, la longitud óptima es de 40 cm. Altura: se selecciona para una persona específica, depende de su altura, varía de 75 a 125 cm.El espesor afecta la durabilidad de la estructura, su peso.
La ubicación de la barbacoa es otro criterio. Para una casa de campo, casas de campo, es mejor usar una estructura estacionaria. El producto está hecho de metal grueso, ladrillo, hierro fundido, tales materias primas aumentan su vida útil. La olla destinada al transporte está hecha de metal delgado y a menudo se pliega.
Para obtener la barbacoa más cómoda, en su fabricación debe tener en cuenta las normas estándar, combinarlas con los deseos personales.
Tipos de barbacoa
El diseño elemental de la barbacoa es una caja rectangular montada en las patas, hecha de metal. Si comprende los tipos de productos, entonces son mucho más. El tostador puede ser portátil, estacionario. Hecho de diferentes materiales: piedra, ladrillo, metal. Existen modelos para el hogar y el restaurante, como el eléctrico y el de gas, respectivamente. Sin embargo, no le dan a la fogata un olor natural. Considere los tipos existentes con más detalle:
Estacionaria Es una construcción masiva y pesada. Para la fabricación del uso de ladrillo, metal, piedra, hierro fundido, también se combinan materiales. Ubicado en el patio de una casa privada, en el campo. Puede estar al aire libre, con dosel, en la glorieta. Para la instalación requiere una base sólida: hormigón, losas de pavimento, piedra salvaje, etc. Puede tener elementos adicionales, en los que se instala la sartén, poner el pincho.
Figurativo Dichos productos están hechos de chapa de acero. Es conveniente de usar mientras se relaja en un bosque, en un lago, un río. Por tipo de construcción se dividen en plegables y plegables (transformadores). El brasero es muy conveniente, ocupa poco espacio, cabe fácilmente en la cajuela de un automóvil.
Plegable Se refiere a estructuras metálicas. Su característica principal es la forma en que los elementos se unen. Aquí no se usa soldadura, las partes se sujetan entre sí con pernos.
Móvil.El diseño puede ser estacionario o plegable. En lugar de piernas, usa una rueda. Puede almacenarse en el cuarto de servicio, si es necesario, desplegarse en la calle.
Barbacoa de bricolaje
Para la construcción del producto, necesita ciertas habilidades. Debe poder trabajar con equipos de soldadura, una amoladora, un taladro. Además, necesitará un dibujo, herramientas de medición, esquinas metálicas, accesorios, chapa metálica. La chatarra a menudo puede estar llena de basura inútil en un patio privado, en cuyo caso será más fácil crear un brasero con sus propias manos, y los gastos para esta empresa también se reducirán.
Ventajas y desventajas de la barbacoa de metal.
El brasero se encuentra en todas partes. Algunos han comprado modelos, otros prefieren los hechos a mano. Los productos están completamente soldados, retorcidos con pernos. Pero todos tienen ciertas características, sus propias ventajas y desventajas. Detengámonos en ellos con más detalle, consideremos las principales ventajas de las estructuras metálicas:
Costo Si hablamos de productos hechos a mano, incluso con la compra de todos los componentes metálicos, el precio de dicho artículo será significativamente más bajo que el precio de fábrica. Si evaluamos el material, el costo del hierro y el acero es varias veces menor que el cobre y el acero inoxidable.
Simplicidad de diseño. Los modelos principales están representados por una caja ubicada en las patas. Después de su instalación, solo queda dormirse y reavivar la leña o las brasas, poner un pincho con carne.
Seguridad A partir de la temperatura obtenida al quemar materias primas, el metal no se funde, no se quema. También retiene el calor, lo que contribuye al asado uniforme de la carne.
Movilidad y funcionalidad. Entre una amplia variedad de modelos hay plegables compactos, que se pueden usar en cualquier lugar: en el patio, al aire libre, playa, terraza. Algunos productos tienen elementos adicionales, en forma de soportes para leña, ganchos para brochetas.
Entre las desventajas, se puede identificar la susceptibilidad del metal a la oxidación. Algunos modelos de chapa de acero delgada pueden oxidarse rápidamente. Además, los productos hechos a mano no siempre tienen una apariencia atractiva.
Dispositivo y principio de funcionamiento.
En términos generales, lo que constituye una barbacoa está claro a partir de su definición. Si consideramos con más detalle, los modelos estándar tienen una caja rectangular de acero. Se compone de cuatro paredes laterales y un fondo: la base de todo el brasero. La pared inferior está engrosada, lo que aumenta la durabilidad del sujeto. En las particiones laterales, se taladran agujeros más cerca de la base. Tales acciones conducen a una mejor circulación del aire, el calor no se concentra en un punto, se distribuye uniformemente en el conducto.
El diseño rectangular tiene patas. Usualmente hay cuatro. Estos elementos están hechos de varillas de refuerzo de diferentes diámetros, esquinas metálicas, productos forjados, tubos redondos y con forma. La resistencia y el tipo de material se selecciona teniendo en cuenta la carga, las preferencias del propietario. Algunas patas se pueden apuntar desde abajo, otras tienen una base plana, todo depende de dónde estén instaladas.
El brasero tiene un principio de funcionamiento directo. Carbón, leña se coloca en el fondo de una caja de hierro y se prende fuego. Después de la quema de materias primas y la aparición de carbones, se distribuyen uniformemente en el fondo. Luego, coloque los pinchos con trozos de carne ensartados sobre ellos, girándolos periódicamente hasta que la comida esté lista.
Tipos de estructuras.
La alineación está en constante crecimiento, aparecen nuevos inventos. Pueden ser simples, tener una estructura compleja. Pero todas las barbacoas de metal se pueden atribuir a ciertos tipos:
Desechables Se pueden construir de cualquier medio a mano. Hay opciones de fábrica hechas de acero de medio milímetro de espesor.
Estacionaria Gran producto. Instalado en lugares especialmente equipados.Puede tener un techo o ubicarse debajo de un dosel. A menudo contiene dispositivos adicionales: chimenea, ahumadero, diferentes posavasos.
Plegable Se diferencian en la forma en que sujetan los elementos (pestillos, pernos). Tienen varias opciones de diseño. Los más simples son dos bastidores de metal en forma de p. Se instalan entre la hoguera, se colocan brochetas en la parte superior. La forma más común es que todos los elementos están conectados mediante ranuras. Consta de cinco sábanas y patas. La forma original de braseros plegables se presenta en forma de maleta, que almacena no solo todos los componentes del producto, sino también brochetas.
Plegable Difiere en un aspecto en forma de x. El principio de funcionamiento cuando se pliega es similar al utilizado para las heces de camping.
Determinar el modelo, material y tamaño.
Cualquier trabajo comienza con un plan que se convierte en un proyecto. Muestra todos los detalles más pequeños. Un buen dibujo es la mitad del trabajo realizado. El esquema debe contener elementos de la estructura planificada. Una vez presentado, elegido el modelo más adecuado, procedemos a implementarlo en papel. Si tiene las habilidades, puede realizar el dibujo de forma independiente, usar programas especiales, descargarlo en Internet y encontrarlo en literatura especializada.
En la siguiente etapa, es necesario seleccionar el material para el trabajo que sea más adecuado para el modelo seleccionado de la freidora. Dependiendo de los fondos disponibles, los deseos del propietario, puede hacer una estructura forjada de acero inoxidable.
Al elegir las dimensiones del producto debe guiarse por los parámetros estándar que se dan arriba. Considere su altura para planificar correctamente su altura para trabajar cómodamente con un sujeto futuro. Si se crea un modelo en miniatura, todos los parámetros deberán reducirse, sacrificando la conveniencia.
6
Herramientas y materiales necesarios.
Antes de comenzar a trabajar, realizan una auditoría de las herramientas y, si hay escasez, las compran.Para realizar actividades necesitarás:
Instrumentos de medición, marcador especial, tiza;
Amoladora, taladro;
Un conjunto de discos para taladros metálicos;
Amoladora angular;
Dobladora manual;
Máquina de soldadura para crear una estructura estacionaria.
Además de las herramientas, también será necesario preparar los materiales a partir de los cuales estamos construyendo el brasero:
Chapa, piezas de acero (se pueden soldar) de 2 mm de espesor para barbacoas portátiles, de 5 mm para estacionarias. Valores mínimos mostrados. Si desea aumentar la vida útil de la estructura, use una materia prima más gruesa. Si la bandeja para asar no consiste en una hoja entera, es aconsejable reforzar su base (parte inferior).
Esquinas metálicas, accesorios, redondos, tubos de perfil utilizados para patas. Las esquinas pueden fortalecer la unión de particiones.
Elementos forjados, la base de viejas lavadoras, rejillas, otros componentes que se pueden distinguir, decoran el producto.
Proceso de soldadura
Con un dibujo a mano, una vez preparadas las herramientas y materiales necesarios para el trabajo, procedemos al proceso de construcción del brasero con nuestras propias manos. Montamos la construcción por el método estándar, considérelo paso a paso:
Tomamos una hoja de metal y, dibujando en el dibujo, usamos una tiza y un marcador para marcar las particiones inferiores y laterales del elemento planificado en él.
Con un molinillo, cortamos las partes metálicas no utilizadas a lo largo del contorno, dejando solo las necesarias. El resultado es una vista detallada del producto.
Usando un listogib, o cortando los lugares de flexión con una amoladora, convertimos la hoja de metal en una caja rectangular.
Ahora tomamos la máquina de soldar (preferiblemente inversor) en nuestras manos y soldamos las juntas de las paredes, si es necesario, soldamos las curvas cortadas por la amoladora.
Si el metal es delgado, fortalecemos la estructura soldando esquinas metálicas en las esquinas.
Perforamos agujeros para la circulación de aire en las paredes laterales, y también cortamos huecos para pinchos marcando.
En la etapa final, solo queda soldar las piernas. Se pueden soldar directamente a la base o a las paredes laterales. Es conveniente utilizar esquinas y tuberías de diferentes formas. Se obtienen opciones interesantes utilizando la rueda. Si una rueda está unida al pie, el producto se puede mover fácilmente.
El método considerado es el más simple. Todavía hay opciones cuando hay mucha soldadura (la estructura se suelda de piezas separadas) y la formación de un brasero en el marco desde las esquinas.
Proceso de soldadura
Es imposible llevar la versión considerada de estructuras soldadas para cazar, la naturaleza, la pesca. Para estos fines, es necesaria una versión plegable de la freidora. Los modelos de fábrica están hechos principalmente de metal delgado, por lo que el brasero, hecho por usted mismo, es mucho más práctico. La creación por fases de dicho producto es la siguiente:
Si no tiene las habilidades para crear tales estructuras, es mejor hacer inicialmente un diseño de cartón, ensamblarlo, después de transferir los contornos de las partes a una hoja de metal, uniéndole los patrones de cartón terminados.
Cortamos todos los componentes con una amoladora, lo mejor es usar discos de diamante. En el proceso, se encuentran lugares difíciles: espigas, surcos, cortes. Se pueden modificar cuidadosamente con una lima de metal.
A continuación, perforamos conductos de aire en las particiones.
Dependiendo del tipo de elementos de conexión (ranura de espiga, perno), en los detalles de la construcción perforamos agujeros para los pernos o cortamos, recortamos los contornos de fijación necesarios.
Podemos cortar inmediatamente las patas en las paredes laterales, con las cuales serán una, usamos una esquina con el tipo de conexión como con toda la estructura.
Hacer una barbacoa con un barril de metal.
Una de las opciones simples para crear un brasero. Al mismo tiempo, resulta ligero, retiene bien el calor y es bastante barato. Puedes hacer una estructura de hierro de varias maneras.Por ejemplo, corte el barril a lo largo, haga orificios de ventilación y recortes en el pincho, colóquelo en las patas. Una opción más compleja es usar un barril sólido, cuando una parte es una tapa con bisagras, una puerta. Resulta una barbacoa cerrada. Considere en detalle la tecnología de fabricación:
Cortar el barril. Hay dos formas: reducir a la mitad; retirarse un par de centímetros de cada borde y cortar un cuarto de la superficie lateral.
Limpiamos los bordes, alineamos las abolladuras.
Fijamos la manija de la puerta a la parte recortada que sirve de tapa. Conectamos las partes del barril con la ayuda de bisagras de puerta.
Hacemos una chimenea. Para hacer esto, taladre un agujero en el barril desde su lado final, debe coincidir con el diámetro de la tubería utilizada. A continuación, seleccionamos una tubería cuya longitud está determinada por el volumen del contenedor (medio metro es suficiente para un contenedor), su modo es en dos partes (en la proporción 1/3 y 2/3) en un ángulo de 45 grados. A continuación, conectamos los elementos obtenidos en ángulo recto, soldamos cuidadosamente la junta.
Hacemos un montaje para instalar una parrilla de parrilla.
Instalamos el diseño en las piernas.
Los matices de hacer un brasero a partir de una bombona de gas
La tecnología para crear un brasero es similar a la utilizada en la construcción de un producto a partir de un barril. La diferencia es la preparación de contenedores para el trabajo. Entonces, para obtener el diseño del cilindro, debe realizar los siguientes pasos:
Seleccionamos un cilindro de gas, su volumen no debe ser inferior a cincuenta litros. Comenzamos su preparación. Consiste en varias etapas: liberamos completamente gas o sus residuos; desenroscar la válvula; bombeamos agua a través de la manguera, que debería llenar completamente todo el volumen.
A continuación, actuamos por analogía con el barril. Cortamos una parte de la caja, sujetamos los componentes con bucles, instalamos una manija en la puerta.
Soldamos barras para barbacoa, hacemos cortes para brochetas.
Perforamos agujeros para ventilación y un agujero para la chimenea.
Si es necesario, suelde los mangos, instale el brasero en las patas.
Consejos para el cuidado y mantenimiento de la barbacoa.
El montaje de la construcción es indispensable. El siguiente paso es limpiar la olla de la suciedad y el óxido. Para hacer esto, puede usar fluidos especiales, también caminar en la superficie con un molinillo, papel de lija. Si desea darle al producto un aspecto atractivo, está pintado con pinturas resistentes al calor que pueden soportar temperaturas de 800 grados.
Durante la operación del producto, después de la preparación de la barbacoa, no se limpia el hollín del interior de las paredes. En el futuro, le dará a los kebabs un olor especial.
Al usar la barbacoa en el patio, en la naturaleza, es necesario limpiar el lugar debajo de él. Retire la hierba seca, quite las ramas, las hojas de las agujas. También debe tener un recipiente con arena, agua. Para desviar el humo que interfiere con la relajación, se instala una campana extractora en el producto.
Barbacoa de bricolaje
La clásica barbacoa de hierro es buena a su manera. Sin embargo, los propietarios de casas particulares, casas de veraneo dan preferencia a una construcción más conveniente. El horno de ladrillo encaja bien con el diseño general del sitio. Se puede construir de acuerdo con el estilo de la casa.
Equipar un área de recreación estacionaria es mucho más costoso. El diseño masivo puede convertirse en una composición de acento, atraer la atención de los invitados. Además, el ladrillo retiene bien el calor. La estufa puede ser funcional: utilizada como parrilla, barbacoa; consisten en una chimenea; tener un caldero en la estufa. A menudo, no solo la carne se cocina en una barbacoa de piedra. Por ejemplo, en un caldero, el pilaf se cocina, las salchichas y otros alimentos se calientan en una barbacoa.
Incluso un albañil sin experiencia podrá construir estructuras simples con sus propias manos. Para hacer esto, debe preparar un proyecto, dibujar. A continuación, debe revisar la disponibilidad de materiales y herramientas, si es necesario, comprar. Hacer una base, construir una estructura.
Características y tipos de diseños.
El tipo más simple de barbacoa de ladrillo es una estructura temporal con un dispositivo primitivo. El producto no requiere una base, los ladrillos no están unidos por el mortero. Son ligeros. El compartimento del horno se encuentra debajo de la parrilla o brochetas, lo principal es que la chapa es resistente al calor. Tal estructura tiene una apariencia decorativa antiestética, no está protegida de la precipitación atmosférica.
Más interesantes son las opciones para estructuras masivas que tienen una configuración compleja. En forma pueden ser rectangulares, redondos, angulares, diferentes formatos elegantes. Los productos pueden tener una visera, ubicada debajo del techo, toldo, al aire libre. A pesar de la diferencia en el diseño, todos tienen una estructura similar, que se expresa en los siguientes elementos:
Fundación fundación;
Un sótano, representado por varias filas de ladrillos montados en una base;
Asadera protegida del viento por las paredes laterales superiores;
Chimenea Esta es la principal característica distintiva de las estructuras de ladrillo, el efecto de escape depende de su diseño, cuanto mayor es, mayor es el empuje.
Incluso hay grandes complejos de estructuras que tienen un propósito universal. Estos pueden incluir: horno; caldero fregadero de cocina, encimera de acero inoxidable; encimera adicional; gabinete para guardar platos; uno, dos compartimentos para leña. Algunas veces un ahumadero está equipado.
Diseño y cálculo de la cantidad de materiales para la construcción.
El brasero debe corresponder a la apariencia general del sitio en el que se construirá. Además, al diseñar un proyecto, se debe garantizar el libre acceso a la instalación, teniendo en cuenta el tipo de estructura, la seguridad de la estructura y la comodidad operativa. También debe proporcionar un lugar para colocar arena, palas y agua. Determine el material para la base: solera de concreto, losas de pavimento, piedra. Piensa en tener un techo. Elija una olla con tipo abierto o cerrado.Decida si se necesitan extensiones adicionales en forma de lavabo, encimeras y calderos.
Está prohibido instalar el horno en la frontera con el sitio vecino. El humo a través de las ventanas puede ingresar a la casa, lo que conllevará consecuencias desagradables, situaciones de conflicto.
Después de dibujar un diagrama de la construcción futura, debe calcular la cantidad de materiales que se destinarán a la construcción de una barbacoa casera. El volumen de arena, piedra triturada, mortero de concreto, ladrillo, se calcula mediante la siguiente fórmula: v = a * b * c, donde v es la cantidad de material necesario (volumen), a, b, c son la longitud, el ancho y la altura, respectivamente.
Preparación de la base o base para la barbacoa.
Para la fundación de una construcción de capital a largo plazo, un sitio embistido no funcionará. El tema debe abordarse a fondo. Una base estacionaria necesita una base sólida. La preparación de una base estable comienza con la eliminación de la parte superior del suelo. Para hacer esto, elimine hasta treinta centímetros de tierra. Luego se coloca agrofibra, se vierte una pequeña capa de arena (hasta 5 cm) en la parte superior y se vierte piedra triturada (5-6 cm). Se instala una jaula de refuerzo. El siguiente paso será verter mortero de concreto y nivelar la superficie con una regla. Como faros, se utiliza un perfil de construcción.
La preparación de la mezcla de concreto es la siguiente: el cemento se mezcla con arena, en una proporción de uno a tres. Luego, se vierte agua en la mezcla, se agrega piedra triturada. Para aumentar la fluidez de la mezcla de concreto, se agrega jabón líquido. Después del vertido, el hormigón se deja secar, humedeciendo periódicamente la superficie superior con agua, para evitar la formación de grietas.
Colocación de ladrillos y decoración
Habiendo terminado con la base, puede proceder directamente a la construcción del horno. El ladrillo debe seleccionarse resistente al calor. Para que no extraiga humedad del concreto, debe humedecerse el día antes de la colocación. El trabajo comienza con la creación de un sótano. La primera capa de mampostería se hace sólida, cubriendo completamente la base de hormigón.Los ladrillos en cada línea posterior no deben coincidir con la costura anterior, de lo contrario la estructura perderá estabilidad. Considere los pasos paso a paso:
Después de determinar el grosor de la capa (media, simple, una y media), se levantan las paredes. La colocación comienza desde la esquina.
La uniformidad de la superficie erigida se verifica periódicamente; se utiliza una línea de plomada para esto.
Se elimina la solución que sobresale en las costuras, después de lo cual las costuras se limpian, se profundizan, dándoles un aspecto característico.
Cada tercera fila está reforzada con una malla de refuerzo.
Después de colocar el leñador, se instala un piso de concreto reforzado sobre él o se colocan dos capas de ladrillo. La construcción continúa.
Los elementos metálicos que conforman el soporte del palé, sobre el cual se quemarán las materias primas de madera, se instalan en paredes opuestas paralelas entre sí. Además, el brasero se puede montar directamente sobre los ladrillos, haciendo una protuberancia especial en la estructura. Una red de barbacoa también se adjunta.
En la etapa final, se construye una chimenea.
La chimenea resultante se puede decorar con yeso especial, hecho con azulejos, gres porcelánico, piedra salvaje, yeso.
Ideas interesantes para crear parrillas, estufas y parrillas
Hay muchos diseños diferentes, tipos interesantes de hornos de ladrillos. Una barbacoa sólida y alta se puede cubrir con un dosel, que lo protegerá de la precipitación atmosférica y extenderá la vida útil de la estructura. Consideremos algunas ideas interesantes:
Un horno de literas con un pincho eléctrico se verá bien;
Una parrilla redonda de ladrillo, hecha en forma de una mesa con patas, que combina una barbacoa, un horno de pizza;
Gazebo con una barbacoa de esquina en forma de estufa rusa, con encimera, encimera de gas, lavabo. Cerca hay un bar;
Diseño redondo con carga vertical de brochetas;
Barbacoa en la terraza, forrada con gres porcelánico debajo de un árbol.
Conclusión
Muchas personas pueden construir una estufa de ladrillo y hierro. Entre la variedad de diseños y tipos, todos pueden elegir lo que está más cerca de él. Un horno casero no solo le permitirá disfrutar del sabor de su plato favorito, sino que también se convertirá en un motivo de orgullo, que puede presumir ante sus amigos.
Un hombre de la antigüedad se dedicaba a cocinar. Todo comenzó con una hoguera ordinaria alrededor de la cual se colocaron piedras. Sirvieron como una especie de "estufa" para freír carne. A medida que la sociedad se desarrolló, aparecieron nuevos dispositivos. Como resultado, comenzaron a freír la barbacoa en la parrilla, que se ha convertido en una parte integral de la recreación al aire libre.
Existen varias versiones del origen del producto. Según uno de ellos, el dispositivo fue inventado en el siglo VII a. C. e. Sanador escita y sabio Anaharsis. Otro insiste en que una asadera se originó en el Antiguo Oriente. Esto se confirma indirectamente por la presencia de un solo nombre para el tema de todos los pueblos orientales. Sin embargo, tal barbacoa era un diseño en forma de un tazón de cobre montado en las patas. Además, el producto tenía dos asas que sirven para mover cómodamente al sujeto, una tapa hemisférica.
Contenido
Cuál debería ser el brasero - característico
La calidad de la barbacoa cocinada a la parrilla depende del diseño del producto. Los principales parámetros de la estructura son sus dimensiones, material de fabricación. Para calcularlos, debe decidir los siguientes factores:
Tipos de barbacoa
El diseño elemental de la barbacoa es una caja rectangular montada en las patas, hecha de metal. Si comprende los tipos de productos, entonces son mucho más. El tostador puede ser portátil, estacionario. Hecho de diferentes materiales: piedra, ladrillo, metal. Existen modelos para el hogar y el restaurante, como el eléctrico y el de gas, respectivamente. Sin embargo, no le dan a la fogata un olor natural. Considere los tipos existentes con más detalle:
Barbacoa de bricolaje
Para la construcción del producto, necesita ciertas habilidades. Debe poder trabajar con equipos de soldadura, una amoladora, un taladro. Además, necesitará un dibujo, herramientas de medición, esquinas metálicas, accesorios, chapa metálica. La chatarra a menudo puede estar llena de basura inútil en un patio privado, en cuyo caso será más fácil crear un brasero con sus propias manos, y los gastos para esta empresa también se reducirán.
Ventajas y desventajas de la barbacoa de metal.
El brasero se encuentra en todas partes. Algunos han comprado modelos, otros prefieren los hechos a mano. Los productos están completamente soldados, retorcidos con pernos. Pero todos tienen ciertas características, sus propias ventajas y desventajas. Detengámonos en ellos con más detalle, consideremos las principales ventajas de las estructuras metálicas:
Entre las desventajas, se puede identificar la susceptibilidad del metal a la oxidación. Algunos modelos de chapa de acero delgada pueden oxidarse rápidamente. Además, los productos hechos a mano no siempre tienen una apariencia atractiva.
Dispositivo y principio de funcionamiento.
En términos generales, lo que constituye una barbacoa está claro a partir de su definición. Si consideramos con más detalle, los modelos estándar tienen una caja rectangular de acero. Se compone de cuatro paredes laterales y un fondo: la base de todo el brasero. La pared inferior está engrosada, lo que aumenta la durabilidad del sujeto. En las particiones laterales, se taladran agujeros más cerca de la base. Tales acciones conducen a una mejor circulación del aire, el calor no se concentra en un punto, se distribuye uniformemente en el conducto.
El diseño rectangular tiene patas. Usualmente hay cuatro. Estos elementos están hechos de varillas de refuerzo de diferentes diámetros, esquinas metálicas, productos forjados, tubos redondos y con forma. La resistencia y el tipo de material se selecciona teniendo en cuenta la carga, las preferencias del propietario. Algunas patas se pueden apuntar desde abajo, otras tienen una base plana, todo depende de dónde estén instaladas.
El brasero tiene un principio de funcionamiento directo. Carbón, leña se coloca en el fondo de una caja de hierro y se prende fuego. Después de la quema de materias primas y la aparición de carbones, se distribuyen uniformemente en el fondo. Luego, coloque los pinchos con trozos de carne ensartados sobre ellos, girándolos periódicamente hasta que la comida esté lista.
Tipos de estructuras.
La alineación está en constante crecimiento, aparecen nuevos inventos. Pueden ser simples, tener una estructura compleja. Pero todas las barbacoas de metal se pueden atribuir a ciertos tipos:
Determinar el modelo, material y tamaño.
Cualquier trabajo comienza con un plan que se convierte en un proyecto. Muestra todos los detalles más pequeños. Un buen dibujo es la mitad del trabajo realizado. El esquema debe contener elementos de la estructura planificada. Una vez presentado, elegido el modelo más adecuado, procedemos a implementarlo en papel. Si tiene las habilidades, puede realizar el dibujo de forma independiente, usar programas especiales, descargarlo en Internet y encontrarlo en literatura especializada.
En la siguiente etapa, es necesario seleccionar el material para el trabajo que sea más adecuado para el modelo seleccionado de la freidora. Dependiendo de los fondos disponibles, los deseos del propietario, puede hacer una estructura forjada de acero inoxidable.
Al elegir las dimensiones del producto debe guiarse por los parámetros estándar que se dan arriba. Considere su altura para planificar correctamente su altura para trabajar cómodamente con un sujeto futuro. Si se crea un modelo en miniatura, todos los parámetros deberán reducirse, sacrificando la conveniencia.
6

Herramientas y materiales necesarios.
Antes de comenzar a trabajar, realizan una auditoría de las herramientas y, si hay escasez, las compran.Para realizar actividades necesitarás:
Además de las herramientas, también será necesario preparar los materiales a partir de los cuales estamos construyendo el brasero:
Proceso de soldadura
Con un dibujo a mano, una vez preparadas las herramientas y materiales necesarios para el trabajo, procedemos al proceso de construcción del brasero con nuestras propias manos. Montamos la construcción por el método estándar, considérelo paso a paso:
Proceso de soldadura
Es imposible llevar la versión considerada de estructuras soldadas para cazar, la naturaleza, la pesca. Para estos fines, es necesaria una versión plegable de la freidora. Los modelos de fábrica están hechos principalmente de metal delgado, por lo que el brasero, hecho por usted mismo, es mucho más práctico. La creación por fases de dicho producto es la siguiente:
Hacer una barbacoa con un barril de metal.
Una de las opciones simples para crear un brasero. Al mismo tiempo, resulta ligero, retiene bien el calor y es bastante barato. Puedes hacer una estructura de hierro de varias maneras.Por ejemplo, corte el barril a lo largo, haga orificios de ventilación y recortes en el pincho, colóquelo en las patas. Una opción más compleja es usar un barril sólido, cuando una parte es una tapa con bisagras, una puerta. Resulta una barbacoa cerrada. Considere en detalle la tecnología de fabricación:
Los matices de hacer un brasero a partir de una bombona de gas
La tecnología para crear un brasero es similar a la utilizada en la construcción de un producto a partir de un barril. La diferencia es la preparación de contenedores para el trabajo. Entonces, para obtener el diseño del cilindro, debe realizar los siguientes pasos:
Consejos para el cuidado y mantenimiento de la barbacoa.
El montaje de la construcción es indispensable. El siguiente paso es limpiar la olla de la suciedad y el óxido. Para hacer esto, puede usar fluidos especiales, también caminar en la superficie con un molinillo, papel de lija. Si desea darle al producto un aspecto atractivo, está pintado con pinturas resistentes al calor que pueden soportar temperaturas de 800 grados.
Al usar la barbacoa en el patio, en la naturaleza, es necesario limpiar el lugar debajo de él. Retire la hierba seca, quite las ramas, las hojas de las agujas. También debe tener un recipiente con arena, agua. Para desviar el humo que interfiere con la relajación, se instala una campana extractora en el producto.
Barbacoa de bricolaje
La clásica barbacoa de hierro es buena a su manera. Sin embargo, los propietarios de casas particulares, casas de veraneo dan preferencia a una construcción más conveniente. El horno de ladrillo encaja bien con el diseño general del sitio. Se puede construir de acuerdo con el estilo de la casa.
Equipar un área de recreación estacionaria es mucho más costoso. El diseño masivo puede convertirse en una composición de acento, atraer la atención de los invitados. Además, el ladrillo retiene bien el calor. La estufa puede ser funcional: utilizada como parrilla, barbacoa; consisten en una chimenea; tener un caldero en la estufa. A menudo, no solo la carne se cocina en una barbacoa de piedra. Por ejemplo, en un caldero, el pilaf se cocina, las salchichas y otros alimentos se calientan en una barbacoa.
Incluso un albañil sin experiencia podrá construir estructuras simples con sus propias manos. Para hacer esto, debe preparar un proyecto, dibujar. A continuación, debe revisar la disponibilidad de materiales y herramientas, si es necesario, comprar. Hacer una base, construir una estructura.
Características y tipos de diseños.
El tipo más simple de barbacoa de ladrillo es una estructura temporal con un dispositivo primitivo. El producto no requiere una base, los ladrillos no están unidos por el mortero. Son ligeros. El compartimento del horno se encuentra debajo de la parrilla o brochetas, lo principal es que la chapa es resistente al calor. Tal estructura tiene una apariencia decorativa antiestética, no está protegida de la precipitación atmosférica.
Más interesantes son las opciones para estructuras masivas que tienen una configuración compleja. En forma pueden ser rectangulares, redondos, angulares, diferentes formatos elegantes. Los productos pueden tener una visera, ubicada debajo del techo, toldo, al aire libre. A pesar de la diferencia en el diseño, todos tienen una estructura similar, que se expresa en los siguientes elementos:
Incluso hay grandes complejos de estructuras que tienen un propósito universal. Estos pueden incluir: horno; caldero fregadero de cocina, encimera de acero inoxidable; encimera adicional; gabinete para guardar platos; uno, dos compartimentos para leña. Algunas veces un ahumadero está equipado.
Diseño y cálculo de la cantidad de materiales para la construcción.
El brasero debe corresponder a la apariencia general del sitio en el que se construirá. Además, al diseñar un proyecto, se debe garantizar el libre acceso a la instalación, teniendo en cuenta el tipo de estructura, la seguridad de la estructura y la comodidad operativa. También debe proporcionar un lugar para colocar arena, palas y agua. Determine el material para la base: solera de concreto, losas de pavimento, piedra. Piensa en tener un techo. Elija una olla con tipo abierto o cerrado.Decida si se necesitan extensiones adicionales en forma de lavabo, encimeras y calderos.
Después de dibujar un diagrama de la construcción futura, debe calcular la cantidad de materiales que se destinarán a la construcción de una barbacoa casera. El volumen de arena, piedra triturada, mortero de concreto, ladrillo, se calcula mediante la siguiente fórmula: v = a * b * c, donde v es la cantidad de material necesario (volumen), a, b, c son la longitud, el ancho y la altura, respectivamente.
Preparación de la base o base para la barbacoa.
Para la fundación de una construcción de capital a largo plazo, un sitio embistido no funcionará. El tema debe abordarse a fondo. Una base estacionaria necesita una base sólida. La preparación de una base estable comienza con la eliminación de la parte superior del suelo. Para hacer esto, elimine hasta treinta centímetros de tierra. Luego se coloca agrofibra, se vierte una pequeña capa de arena (hasta 5 cm) en la parte superior y se vierte piedra triturada (5-6 cm). Se instala una jaula de refuerzo. El siguiente paso será verter mortero de concreto y nivelar la superficie con una regla. Como faros, se utiliza un perfil de construcción.
La preparación de la mezcla de concreto es la siguiente: el cemento se mezcla con arena, en una proporción de uno a tres. Luego, se vierte agua en la mezcla, se agrega piedra triturada. Para aumentar la fluidez de la mezcla de concreto, se agrega jabón líquido. Después del vertido, el hormigón se deja secar, humedeciendo periódicamente la superficie superior con agua, para evitar la formación de grietas.
Colocación de ladrillos y decoración
Habiendo terminado con la base, puede proceder directamente a la construcción del horno. El ladrillo debe seleccionarse resistente al calor. Para que no extraiga humedad del concreto, debe humedecerse el día antes de la colocación. El trabajo comienza con la creación de un sótano. La primera capa de mampostería se hace sólida, cubriendo completamente la base de hormigón.Los ladrillos en cada línea posterior no deben coincidir con la costura anterior, de lo contrario la estructura perderá estabilidad. Considere los pasos paso a paso:
La chimenea resultante se puede decorar con yeso especial, hecho con azulejos, gres porcelánico, piedra salvaje, yeso.
Ideas interesantes para crear parrillas, estufas y parrillas
Hay muchos diseños diferentes, tipos interesantes de hornos de ladrillos. Una barbacoa sólida y alta se puede cubrir con un dosel, que lo protegerá de la precipitación atmosférica y extenderá la vida útil de la estructura. Consideremos algunas ideas interesantes:
Conclusión
Muchas personas pueden construir una estufa de ladrillo y hierro. Entre la variedad de diseños y tipos, todos pueden elegir lo que está más cerca de él. Un horno casero no solo le permitirá disfrutar del sabor de su plato favorito, sino que también se convertirá en un motivo de orgullo, que puede presumir ante sus amigos.