Durante mucho tiempo, un halo místico rodeó la casa de baños rusa. Aquí, no solo lavado, sino también adivinado en vacaciones. La casa de baños tenía su propia "variedad" de brownie: una pancarta. Aunque en este lugar las personas fueron limpiadas de suciedad, se consideró malo, incluso las cosas de aquí intentaron no traer a la casa. La casa de baños siempre se encontraba en las afueras del sitio. Muchos causaron que esta ubicación fuera malvada, lo que intentaron mantener alejado del edificio de apartamentos. De hecho, todo era mucho más prosaico: incluso en aquellos días había estándares de seguridad contra incendios. Un blocao u otro tipo de estructura de madera (troncos, madera), en el que hay una estufa derretida periódicamente por la madera, es una fuente potencial de peligro de ignición accidental. Incluso hoy, los baños tradicionales rusos también están tratando de construir a cierta distancia de las casas particulares. Aunque ahora hay muchas otras opciones para lavarse y relajarse, la pareja todavía sostiene la rama de palma.No se puede obtener el mismo efecto terapéutico incluso en el jacuzzi o la ducha más modernos. Considere los proyectos de baño, los métodos de zonificación, las opciones de selección de muebles y las características de diseño.
Todo el proceso de construcción de un baño se divide en varias etapas importantes:
Preparación Selección de asiento. Creación de un proyecto con bocetos, diseños de líneas de comunicación y las dimensiones de todo el edificio, sus habitaciones individuales, la altura de las paredes.
La construcción de los cimientos, piso, paredes, techo.
Realización de trabajos internos. La elección del equipo. Instalación de la estufa, trabajos de acabado.
Arreglo de muebles, decoración de la habitación.
La etapa más difícil se considera preparatoria. Si es malo pensar en un plan de acciones adicionales, entonces, durante el trabajo, pueden surgir problemas serios que deberán resolverse y distraerse de la construcción. El diseño puede confiarse a profesionales y obtener documentación preparada a mano. Los más persistentes desarrollan el proyecto por su cuenta. El artículo contiene una serie de consejos para esta categoría de personas que facilitarán su trabajo y ayudarán a no perder aspectos importantes.
Sobre la plaza
En cuanto a la zona, no existe un estándar único para los baños. Cada propietario elige el tamaño óptimo del edificio, en función de las necesidades de su familia y las posibilidades del sitio. Por ejemplo, en pequeñas fincas, donde la manzana no tiene dónde caer, ponen saunas móviles. Si es necesario, se pueden mover por el sitio. En promedio, una casa de baños tan pequeña tiene capacidad para no más de dos personas a la vez. Su área puede ser 2х2 m, 2х2.5 m, 2х3 mo 3х3 m, 3х4 m.En áreas donde todavía hay un lugar para un baño permanente, ofrecen opciones compactas y de pequeño tamaño, que consisten solo en una sala de vapor, un baño con ducha y una pequeña terraza, que sirve como sala de relajación. Por lo general, las dimensiones de tales edificios son de 3x5 m, 3x6 m, 4x4 m, 4x5 my 4x6 m. Los baños con un área de 4x8 o 5x5 m ya se consideran bastante grandes y pueden tomar grupos de 5 personas a la vez. Estas no son solo salas de vapor, sino casas separadas con varias habitaciones donde puede relajarse en compañía.
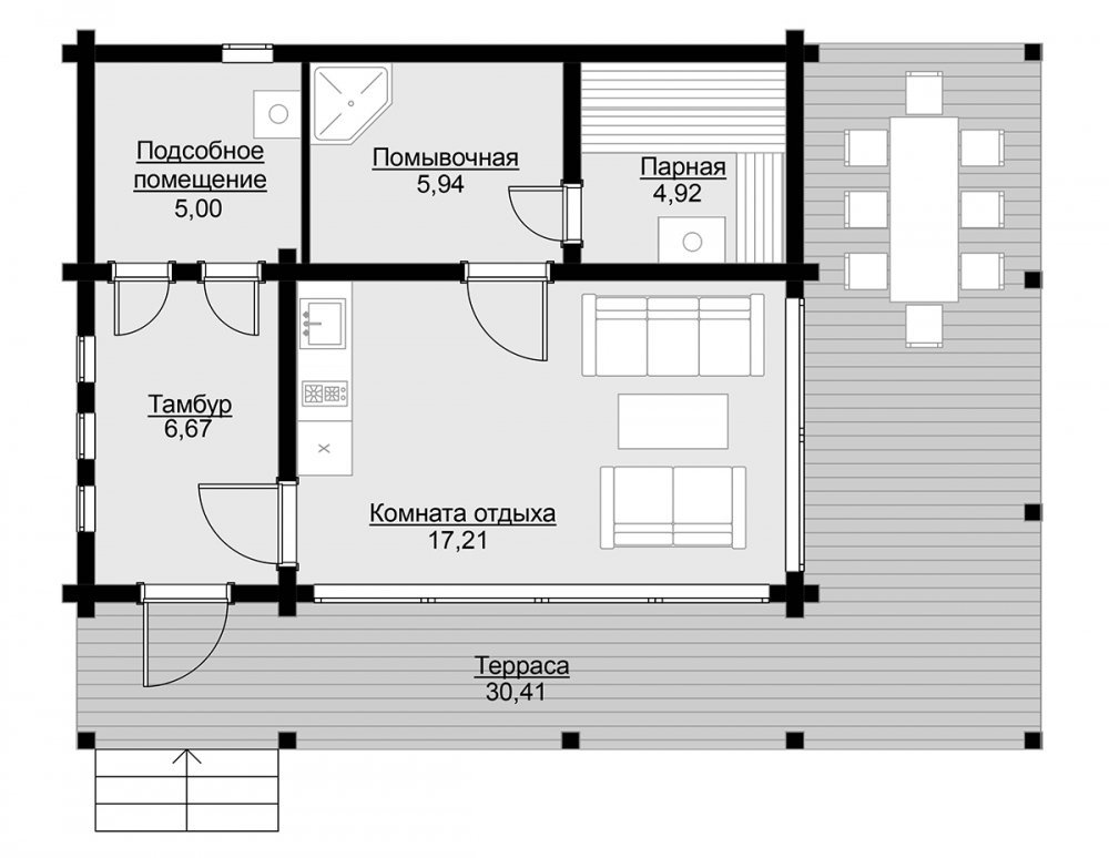
Planificación / Zonificación
La cantidad de habitaciones que se construirán debe decidirse en la etapa de diseño. El diseño del baño depende directamente de su área. Algunas habitaciones (vestuario, cuarto de servicio) pueden caber de manera compacta en 1 m2, pero para un área de recreación o sala de vapor, ya necesita espacio. En saunas grandes, se proporcionan los siguientes espacios interiores:
Pequeño hall de entrada.
Vestuario o expectativa. En versiones compactas, se combinan con un pasillo.
Vestuario
Baño: aseo y ducha. A veces se combinan con el vestuario.
Sala de vapor. Esta sala se considera la principal.
Salón y sala de enfriamiento. A veces se agrega una pequeña cocina, buffet. Para refrescarse en el verano, se coloca un cenador cerca de la casa de baños o se adjunta una terraza al aire libre.
Departamento de lavado o piscina, fuente. Esta adición se puede tomar fuera de la casa de baños a la calle o usar un estanque, un río, que se encuentra al lado del sitio.
Cuarto de servicio. Locales en los que se apilan utensilios de baño y equipos de limpieza.
En baños confortables, unidos a lujosas mansiones o fincas, también equipa habitaciones para un buen descanso, que no se limita a reuniones en la mesa. Dichas salas pueden albergar una sala de billar, un cine en casa, un área para juegos de mesa e incluso pistas de baile.
Si el área de un piso en la casa de baños para la ubicación de todas las habitaciones no es suficiente, entonces vale la pena considerar proyectos de edificios de dos pisos.El presupuesto, por supuesto, tendrá que incrementarse, pero la calidad del ocio aumentará varias veces. En el segundo piso, como regla, los baños están equipados.
Con terraza o veranda
Los baños con terrazas o terrazas proporcionarán a la empresa una maravillosa recreación al aire libre, que es especialmente agradable después de una sala de vapor congestionada, cuando una brisa fresca enfría rápidamente el cuerpo caliente. La principal ventaja de estas instalaciones es la posibilidad de su disposición después de la finalización de la construcción principal. Las terrazas y terrazas ni siquiera se pueden marcar en los dibujos originales. Son fáciles de construir después del hecho, cuando los propietarios se dan cuenta de que necesitan precisamente esas áreas adicionales para la recreación. Las terrazas y terrazas son convenientes para los amantes de la barbacoa. El aire libre no permitirá "inundar" a toda la compañía y los reunidos no tendrán que respirar humo. También es bastante fácil llevar a cabo la iluminación para las reuniones nocturnas en una terraza o un cenador: solo una o dos bombillas en pantallas de lámparas son suficientes. La ausencia de vidrio se compensa con una mosquitera. De las deficiencias, solo se observa la imposibilidad de usar el sitio en invierno. Aunque hay terrazas acristaladas y aisladas.
Con piscina o fuente
Los baños grandes están equipados para baños grandes. La disposición interna ofrece la posibilidad de su uso durante todo el año. Para frascos pequeños, se eligen fuentes compactas. Estos tanques pueden tener una disposición central o angular. Si no hay lugar debajo del tanque de agua en el baño, entonces se saca del edificio, por supuesto, cuando el tamaño del sitio lo permite. La presencia de un depósito de agua fría es muy útil, porque después de un fuerte calentamiento del cuerpo debe enfriarse. La “terapia de choque” se considera parte de los procedimientos de contraste que son útiles principalmente para la piel. En invierno, los amantes extremos generalmente prefieren sumergirse en el hoyo o pasar el rato en los ventisqueros y limpiarse con nieve. Para muchos, tales costumbres pueden parecer salvajes y peligrosas.De hecho, prácticamente no provocan estrés en el cuerpo, ya que un cuerpo fuertemente calentado pierde parte de su sensibilidad habitual al frío. En casos raros, las fuentes se reemplazan con barriles de agua. De alguna manera, tales unidades se parecen al furaco japonés, pero el agua en ellas no se calienta, sino que permanece fría.
Muebles y equipamiento para baños
En el baño siempre hay una poderosa fuente de calor: la estufa. Este es el corazón vivo del edificio, que anteriormente fue tratado con especial inquietud. Dependiendo del material del horno, se clasifican en los siguientes tipos:
Ladrillo Estas unidades son bastante masivas y tienen mucho peso. No se recomienda poner estufas de ladrillo en baños con una base débil. Fijar la mampostería con arena y arcilla. El cemento no se usa para la construcción de tales unidades, ya que no resiste altas temperaturas.
Metal. Las estufas de hierro fundido y acero se consideran una opción económica. Son bastante simples de instalar: todo el proceso llevará menos tiempo que con una contraparte de ladrillo. Los agregados metálicos son ideales para aquellos artesanos que construyen un baño por su cuenta, pero no tienen el talento de un fabricante de estufas.
Kamenka Esta es una versión "pasada de moda", que se utilizó en Rusia. Los hornos Kamenka son ideales para baños rusos. Son durables, confiables y seguros.
Según el tipo de combustible utilizado, el horno se divide en los siguientes tipos:
Madera y carbón. Su uso es aconsejable si hay una fuente de combustible barato cerca: madera o minas. Dichas unidades ayudarán a ahorrar en el pago de facturas de electricidad o gas. Las estufas de leña se consideran la opción más natural y natural. Incluso el tipo de combustible se selecciona con especial atención, ya que diferentes tipos de madera dan un cierto olor y tienen indicadores individuales de transferencia de calor.
Gas. Conveniente, fácil de operar, pero peligroso debido a posibles fugas de combustible en el horno.
Electrico. La opción más segura de la presentada.
Lo principal al elegir un horno: el cálculo correcto de la correspondencia de su potencia y el área de la habitación con calefacción. Otro matiz importante para unas vacaciones de calidad es la iluminación. Se debe proporcionar luz a cada habitación del baño. De hecho, todas las habitaciones, excepto el vestidor y la sala de vapor, conservan la atmósfera típica de las salas de estar comunes. Por esta razón, el cableado, los cartuchos, los interruptores para ellos eligen lo mismo que para el dormitorio o el invitado en la casa.
Pero para la sala de vapor y el vestidor es mejor comprar equipos especiales diseñados para trabajar en condiciones difíciles con alta humedad y altas temperaturas. Incluso las bombillas deben comprarse especiales. Los muebles para el baño se eligen de acuerdo con la decisión estilística. En los apartamentos caros ponen lujosos sofás suaves, sillones, mesas con encimeras de mármol de colecciones de diseñadores. Para los estilos más simples (país, ruso, provenzal) utilizan muebles de madera crudos pero funcionales. Para la sala de recreación, un conjunto conciso de bancos y una mesa es suficiente.
Dónde y desde dónde construir un baño
El lugar para el baño debe elegirse lejos de los edificios residenciales. Se recomienda observar una distancia de al menos 5 m. Las normas y estándares para distancias entre edificios de varios tipos se prescriben en el SNiP (basado en el material utilizado para la fabricación de estructuras, techos y elementos individuales de edificios). Antes de la construcción, debe familiarizarse con estas disposiciones para que luego no tenga que demoler el baño por completo. La plataforma debe estar nivelada. Las pendientes y la proximidad de los cuerpos de agua (fuentes de humedad) pueden provocar un cambio en los cimientos. Si no hay lugares planos en el sitio, use tierra a granel, que se apisona cuidadosamente. No puedes bañarte junto a una valla vecina. La distancia debe ser de al menos 1 m. La construcción no debe oscurecer parte de la tierra extranjera. No se puede bañar cerca del bosque (distancia mínima: 15 m).También está prohibido colocar este edificio cerca de pozos o pozos. Un requisito especial es para los baños que se ahogan en negro. Por lo general, deben colocarse en las afueras, y se observa una distancia de 12 m hasta el edificio más cercano.
Todo en el mismo SNiP indica que cuando la pendiente del techo (pendiente única) está cerca de la cerca entre las posesiones, necesariamente debe "mirar" su sitio y no el adyacente. De lo contrario, la precipitación puede llenar el territorio de otra persona. La regla no se aplica a los techos planos. Las pendientes dobles se colocan de modo que uno de los frontones esté mirando el área adyacente.
Selección de fundaciones
La base del edificio es de dos tipos:
Cinta;
Columnar.
La más duradera y resistente se considera cinta. La profundidad de la base se calcula en función del nivel de congelación de la tierra, que difiere en diferentes latitudes. Primero, cava un hoyo de la profundidad deseada. Su fondo está cubierto con una capa de arena. Luego cubra con una almohada de piedra triturada u otro tipo de piedra fracción fina. Después de eso, toda la "cinta" se vierte con hormigón. Antes de la solidificación, se añaden partes metálicas de refuerzo a la composición. La base de la columna se usa solo para latas de luz de un solo piso que están hechas de madera. De hecho, el edificio se basará en un sistema de pilotes que lo elevará por encima del suelo. La base columnar es adecuada para cualquier tipo de suelo (incluso para regiones donde el permafrost), se adapta fácilmente a sitios con terreno complejo, que se erige rápidamente. Después de la construcción de la base para la casa de baños, comienzan a trabajar en el área ciega.
Baños en la casa
En las casas, los baños se ubican con mayor frecuencia en el sótano, el sótano y con menos frecuencia en los primeros pisos. La combinación de la parte residencial de la casa y la sala de vapor aumenta el riesgo de incendios. Las saunas finlandesas secas son las más peligrosas a este respecto. Los baños rusos con aire húmedo u ofuros japoneses compactos son mucho más confiables. Los expertos recomiendan elegir hornos eléctricos para tales salas de vapor, ya que es el más seguro.Además, la habitación debe aislarse cuidadosamente de la parte residencial de la casa para evitar la propagación del vapor en otras habitaciones, que está cargada de papel de pared y muebles tapizados. Sin embargo, los baños en la casa también tienen una serie de ventajas, la principal de las cuales es la proximidad de la instalación. Para derretir la estufa, no es necesario salir de la casa. Es muy conveniente especialmente en invierno. De estas latas, generalmente no se puede salir y zambullirse en la nieve o en un estanque, sin haber pisado o ensuciado los pisos en las salas de paso.
Baño de madera
Los baños fueron construidos tradicionalmente de madera. Debido a la presencia de microporos en la superficie del árbol, "respira" y libera partículas curativas y aromáticas durante el calentamiento. No se recomienda construir baños de coníferas, ya que se cubren con resina con el tiempo. El líder entre los materiales de construcción de madera se considera un bar. Es un registro cuidadosamente planeado. La viga puede ser diferente: perfilada, pegada, sin planear, sólida, redondeada. Es confiable, ecológico y duradero. El más duradero es vigas pegadas. Se obtiene pegando láminas secas, seguido de fijación bajo una prensa. Desafortunadamente, como cualquier otra madera, la madera está podrida. Sin embargo, las impregnaciones especiales ayudarán a ralentizar este proceso. Con el tiempo, el material disminuirá de tamaño. La contracción más activa en madera entera. El material retiene bien el calor en el baño. No hace mucho tiempo, apareció una nueva palabra en el mercado de la construcción: "paneles SIP". Son una especie de "sándwiches" y consisten en dos láminas de OSB, cuyo espacio se llena con espuma de poliestireno. El material no puede clasificarse como respetuoso con el medio ambiente, pero retiene cualitativamente el calor en la habitación y puede soportar incluso temperaturas muy bajas. Los paneles SIP se ven muy feos, por lo tanto requieren acabados decorativos. La práctica de su uso en la construcción nos llegó de Canadá.Frágiles, a primera vista, los paneles tienen buenas características de rendimiento. Es fácil trabajar con el material, y la construcción en sí será bastante fácil. Armonizado con una casa de baños de madera, habrá pistas hechas de grava o guijarros pequeños, un césped cuidadosamente recortado, raros mezcladores raros o macizos de flores en bañeras, luces bajas de la calle.
Ladrillo independiente
Los baños de ladrillo tienen una vida más larga que los edificios similares hechos de madera y sus derivados. Desde el punto de vista de los costos de material, esta opción pagará dos o incluso tres veces con el tiempo. Para la construcción, no solo se utiliza ladrillo ordinario, sino también hormigón celular, silicato de gas y bloque de hormigón celular. Estos materiales tienen una apariencia muy poco atractiva y, por lo tanto, requieren acabados decorativos. Los bloques de silicato de gas están hechos de agua, cal, polvo de aluminio y arena. Durante la mezcla de los componentes, comienzan a emitir gas, lo que proporciona a los "ladrillos" una estructura porosa, lo que los hace bastante livianos. Los bloques de espuma están hechos de agua, arena, cemento y un agente espumante. La contracción del material depende de la calidad de la mezcla de los componentes durante el llenado del molde. Debido a esto, el error en la geometría de los bloques de espuma es alto (hasta 3 cm). El hormigón celular es otro tipo de ladrillo artificial. Aunque el plazo de su operación excede los 50 años, y en la clasificación de combustibilidad, el material se clasifica como refractario, a veces muy cerca de las fuentes de fuego, los bloques pueden explotar. Los edificios de ladrillo en el sitio estarán en armonía con las cercas de piedra y los senderos del jardín desde adoquines embalsamados, bancos ordenados a lo largo de los callejones del parque, jardines de rocas y rocas.
Variedades de baños.
La práctica de cocinar al vapor en una habitación / contenedor especial está presente en casi todas las culturas. Pero cada país tiene sus propias tradiciones y características de los baños de visita. Además, se han formado a lo largo de muchos siglos.Las historias de "baño" más largas pueden considerarse japonesas y rusas. En el primer caso, el deseo de los pueblos orientales de preservar cuidadosamente sus costumbres, que llevan a través de generaciones, se vio afectado. En la situación con la casa de baños rusa, la simplicidad y la accesibilidad de este método de lavado, que siempre han jugado un papel importante para nuestra persona, es importante. Considere las cuatro opciones más populares que han recibido reconocimiento no solo en el hogar, sino también en el extranjero.
Ruso
Inicialmente, la casa de baños rusa se ahogó en negro. No había chimenea en la estufa, por lo que el humo entró directamente en la sala de vapor, donde circulaba y calentaba las paredes. Después de eso, salió a través de aberturas especiales en el techo, paredes (ventanas pequeñas) y una puerta entreabierta. Luego, la casa de baños fue ventilada para que no quedara monóxido de carbono. Después de eso, se cerraron todas las ventanas de las puertas, se borró el hollín de los bancos y la sala de vapor estaba lista para su uso. En negro, este método de calentar la habitación se llamó debido al hecho de que el techo y las paredes de esa habitación estaban fumados. Para aumentar periódicamente la humedad, se colocaron necesariamente piedras y recipientes de agua en la sala de vapor. El líquido se vertió sobre los adoquines calentados, se evaporó instantáneamente y el aire volvió a humedecerse. En los baños negros solo los pobres se ahogaron. Por cierto, nos lavamos solo una vez a la semana, los sábados por la noche. En primer lugar, durante los días hábiles no había tiempo para derretir la casa de baños todos los días, era más fácil dedicar todo el día al procedimiento. El sábado es el primer día libre, y el domingo asistieron a la iglesia, lo que no se podía hacer estando sucio. El día del baño se extendió desde el almuerzo hasta la noche. Visitaron la sala de vapor en grupos (mujeres y niños, y luego hombres). Las personas coronadas tampoco desdeñaron la casa de baños. En la dinastía Royal Romanov, la práctica de visitar la sala de vapor era constante. Con el tiempo, las casas de baños rusas se volvieron más bellas y nobles. La madera todavía se considera un material clásico, pero ahora está decorada con tallas ornamentales.Una fuente de agua fría está unida al edificio, un pequeño tanque en el que puede enfriarse rápidamente. Había más habitaciones en la casa de baños: se agregaron salas de relajación, piscinas, buffets o cocinas de verano. Pero el principio mismo del procedimiento, así como el efecto terapéutico del mismo, se mantuvo sin cambios.
Un atributo importante del baño ruso es una escoba. Están tejidos de abedul, aliso, tilo, hierbas curativas. El mismo procedimiento para preparar una escoba para su uso puede tomar hasta seis meses. Primero, las ramitas se seleccionan cuidadosamente, luego se conectan de una manera especial. Luego las escobas se secan, se cuecen al vapor y solo después de eso se pueden usar en el baño.
Finlandés
La sauna finlandesa es el principal competidor del baño de troncos ruso. Externamente, ambas salas de vapor son muy similares, aunque tienen una serie de diferencias notables. En primer lugar, los baños rusos mantienen un alto nivel de humedad (alrededor del 90%) y un régimen de temperatura bastante suave. En la sauna finlandesa vapor "seco". El nivel de humedad no supera el 30%, y la temperatura debajo del techo puede alcanzar los 160 grados. La sauna finlandesa ofrece estanterías a diferentes niveles. Aquellos a quienes no les gustan los efectos de la temperatura de choque, eligen lugares más cercanos al piso. Los extremistas prefieren bancos debajo del techo. Las saunas finlandesas no usan escobas. En condiciones de aire tan caliente y seco, el impacto de las varillas quemará fácilmente la piel. No incluido en saunas y fuentes. Los finlandeses prefieren refrescarse en amplias piscinas. Muchos discuten sobre qué baño es más útil: ruso o finlandés. De hecho, ambos pares tienen un efecto curativo en el cuerpo. La pregunta es solo en las preferencias individuales: a alguien le gusta volar en seco, y alguien prefiere el aire húmedo y caliente de una casa de baños rusa.
Japonés
Los baños japoneses no son muy similares a las salas de vapor a las que todos estamos acostumbrados. La cultura oriental es realmente diferente en muchos aspectos de la nuestra, y lo que se ha vuelto familiar para los japoneses, para el resto del mundo, puede parecer interesante y original, y a veces incluso extraño.Para comenzar, entenderemos los tipos de baños que se usan en la Tierra del Sol Naciente. Hay tres de ellos:
Ofuro;
Sento
Furaco
Ofuro es una caja de madera de forma rectangular con paredes gruesas, llena de aserrín o guijarros. El contenido del contenedor se calienta, después de lo cual una persona se sumerge en él. Además de los efectos de la temperatura en el cuerpo, las piedras pequeñas también tienen un efecto de masaje. Ofuro es un tipo de baños compactos, que no solo no ocupan mucho espacio en la habitación, sino que también se golpean fácilmente con sus propias manos. Furaco es una fuente pequeña que se divide en dos partes. En uno hay tiendas y se vierte agua aquí. En otra parte hay un elemento calefactor. Muy a menudo, una estufa de leña o eléctrica actúa en su papel. Al principio, una persona percibe el agua caliente, pero gradualmente el cuerpo se acostumbra a la temperatura y se relaja. Sento es una piscina llena de agua caliente. De hecho, este es el mismo furaco, pero para grandes empresas. Entran en sento solo limpios, deben ducharse antes del procedimiento. En la piscina hay equipos especiales que calientan el agua. A los japoneses les encantan los tratamientos de agua contrastantes. Por lo tanto, primero tome una ducha fría y luego nade en una piscina caliente. Cada carrera no dura más de 15 minutos.
Hammam
Hammam (hammam) es un baño turco tradicional. Los baños romanos fueron tomados como modelo para ella. A diferencia de la sauna finlandesa, donde la habitación está revestida de madera, el hammam está alicatado. El nombre inusual proviene de la palabra árabe "jamón", que se traduce como "caliente". De hecho, la temperatura promedio en los baños turcos no supera los 60 grados, y el nivel de humedad alcanza el 100%. El hammam es ideal para aquellos que no pueden tolerar el "vapor seco" de la sauna y las altas temperaturas, ya que aquí se crea una atmósfera suave. En primer lugar, esta categoría incluye núcleos y personas que tienen problemas de presión. Los hammams en Turquía siguen siendo populares.Casi todas las aldeas tienen una casa de baños, y en la capital del estado hay más de cien. Además, hay dos edificios modernos con un diseño original, así como hermosos y antiguos hammams, en los que los invitados distinguidos se dispararon en la antigüedad.
Diseño
Los baños incorporan los estilos más diversos, pero hay un grupo de tendencias que son especialmente populares entre los diseñadores. Estos incluyen:
Rústico o campestre. Un estilo sencillo y conciso es ideal para organizar baños acogedores en casas de verano. Para la construcción, use un árbol (viga redondeada). La decoración también utiliza madera y piedra rugosa con una superficie natural y rugosa. La decoración de la habitación se realiza con sus propias manos: los caminos están tejidos con residuos textiles, los manteles están decorados con bordados, las cortinas en una divertida jaula están cosidas de lino o arpillera.
Estilo étnico ruso En muchos sentidos, parece rústico, pero los atributos se agregan exclusivamente a los interiores domésticos: samovares con un collar de bagels, platos pintados, rushnyks (toallas bordadas), glachiki (ollas de barro). Los muebles en la casa de baños están hechos de forma independiente. Los bancos masivos y una mesa, cuyas superficies están más o menos recortadas, se verán coloridas. Para inspirarse en la cultura rusa, es suficiente imaginar un pueblo de taiga abandonado entre las nieves, pero rodeado de la increíble belleza de la dura naturaleza del norte.
Estilo chalet. Esta dirección se utiliza en el diseño de edificios residenciales en pueblos alpinos. Los techos están decorados con enormes vigas de madera. Las casas de baños están hechas de madera. En los interiores hay superficies rugosas y detalles elegantes. Vale la pena señalar que la principal diferencia entre un chalet y un país es la elegancia fría del estilo, que es inusual para un pueblo simple. En la sala de recreación, los trofeos de caza están necesariamente presentes: cuernos en las paredes, pieles de animales. Para no privarse de la alegría de ver las bellezas circundantes, la habitación está acristalada con ventanas panorámicas.
Estilo escandinavo En muchos sentidos, similar a un chalet, pero más severo y categórico. En el estilo escandinavo, otorgan particular importancia a la paleta de colores. Su base es blanca, el color de la nieve. Se complementa con azul, azul, verde y ocasionalmente marrón. El estilo escandinavo se materializa en baños espaciosos, ya que se necesita espacio libre para las direcciones. La decoración se usa un poco. Asegúrese de instalar ventanas panorámicas.
Alta tecnología Un estilo moderno y de alta tecnología que es difícil de combinar con los baños tradicionales rusos. Si ve el edificio en esta dirección, tendrá que olvidarse de las coloridas bañeras de madera y las esponjosas escobas de abedul. Para configurar la temperatura, solo presione un par de botones en el control remoto. Para agregar vapor, solo necesita configurar un temporizador. La alta tecnología solo reconoce tecnología innovadora. Los baños están terminados con materiales modernos (a menudo artificiales) que no temen las altas temperaturas y la humedad. En el esquema de color prevalecen el gris, el blanco y el negro. El baño está decorado con vidrio, superficies cromadas.
Minimalismo y estilo japonés. Estas instrucciones se pueden combinar de forma segura en un grupo, ya que el primero se origina en el segundo. El minimalismo se caracteriza por un esquema de color tranquilo, donde prevalece el blanco. La decoración en el interior está prácticamente ausente. Los muebles se eligen de acuerdo con los principios de funcionalidad. En el estilo japonés, solo se utilizan materiales naturales en la decoración: madera, bambú y un poco menos de chapa. El mobiliario es sencillo, conciso y bajo. "Tumbona" en la sala de relajación generalmente se puede arreglar de una colchoneta y almohadas. Un grupo especial de figuras de netsuke en un estante y linternas totoro le dará un romance especial al interior.
Estilo clásico El destino solo reconoce el lujo. El interior de la sala de recreación utiliza telas costosas, generosamente decoradas con adornos e hilos de oro. En la decoración, se da preferencia a la piedra pulida y las especies de maderas raras. El baño está decorado con una pequeña escultura, pinturas, espejos.El mobiliario se elige masivo, decorado con incrustaciones y tallas.
El diseño estilístico se selecciona en función de las preferencias estéticas de los propietarios. Además de las áreas anteriores, los baños a menudo representan la Provenza (otro tipo de país), Art Deco, loft de lujo, antigüedades y estilos étnicos.
Conclusión
En Rusia, los baños estaban rodeados de un honor especial. Le dieron un significado sagrado a este lugar, aquí limpiaron no solo el cuerpo, sino también el alma. En la cultura oriental, este proceso se llamaría meditación. Incluso se creía que el propietario era mejor para quien la casa de baños es más hermosa, es decir, la casa fue juzgada por una persona, no por el estado de su choza. Junto con el sudor, las toxinas y las toxinas realmente salen del cuerpo, y con visitas regulares a la sala de vapor, mejora el estado de los sistemas respiratorio y circulatorio. Sin embargo, no vale la pena abusar de tales procedimientos. No es de extrañar que nuestros antepasados se lavaran en la casa de baños solo una vez a la semana. Esto es suficiente para una recuperación integral sin dañar el cuerpo. Una casa de baños en la parcela es una excelente alternativa a las duchas y bañeras estrechas. En él no solo puede relajarse, sino también organizar reuniones entre viajes a la sala de vapor en un círculo cercano de familiares y amigos.
Durante mucho tiempo, un halo místico rodeó la casa de baños rusa. Aquí, no solo lavado, sino también adivinado en vacaciones. La casa de baños tenía su propia "variedad" de brownie: una pancarta. Aunque en este lugar las personas fueron limpiadas de suciedad, se consideró malo, incluso las cosas de aquí intentaron no traer a la casa. La casa de baños siempre se encontraba en las afueras del sitio. Muchos causaron que esta ubicación fuera malvada, lo que intentaron mantener alejado del edificio de apartamentos. De hecho, todo era mucho más prosaico: incluso en aquellos días había estándares de seguridad contra incendios. Un blocao u otro tipo de estructura de madera (troncos, madera), en el que hay una estufa derretida periódicamente por la madera, es una fuente potencial de peligro de ignición accidental. Incluso hoy, los baños tradicionales rusos también están tratando de construir a cierta distancia de las casas particulares. Aunque ahora hay muchas otras opciones para lavarse y relajarse, la pareja todavía sostiene la rama de palma.No se puede obtener el mismo efecto terapéutico incluso en el jacuzzi o la ducha más modernos. Considere los proyectos de baño, los métodos de zonificación, las opciones de selección de muebles y las características de diseño.
Contenido
Características de diseño
Todo el proceso de construcción de un baño se divide en varias etapas importantes:
La etapa más difícil se considera preparatoria. Si es malo pensar en un plan de acciones adicionales, entonces, durante el trabajo, pueden surgir problemas serios que deberán resolverse y distraerse de la construcción. El diseño puede confiarse a profesionales y obtener documentación preparada a mano. Los más persistentes desarrollan el proyecto por su cuenta. El artículo contiene una serie de consejos para esta categoría de personas que facilitarán su trabajo y ayudarán a no perder aspectos importantes.
Sobre la plaza
En cuanto a la zona, no existe un estándar único para los baños. Cada propietario elige el tamaño óptimo del edificio, en función de las necesidades de su familia y las posibilidades del sitio. Por ejemplo, en pequeñas fincas, donde la manzana no tiene dónde caer, ponen saunas móviles. Si es necesario, se pueden mover por el sitio. En promedio, una casa de baños tan pequeña tiene capacidad para no más de dos personas a la vez. Su área puede ser 2х2 m, 2х2.5 m, 2х3 mo 3х3 m, 3х4 m.En áreas donde todavía hay un lugar para un baño permanente, ofrecen opciones compactas y de pequeño tamaño, que consisten solo en una sala de vapor, un baño con ducha y una pequeña terraza, que sirve como sala de relajación. Por lo general, las dimensiones de tales edificios son de 3x5 m, 3x6 m, 4x4 m, 4x5 my 4x6 m. Los baños con un área de 4x8 o 5x5 m ya se consideran bastante grandes y pueden tomar grupos de 5 personas a la vez. Estas no son solo salas de vapor, sino casas separadas con varias habitaciones donde puede relajarse en compañía.
Planificación / Zonificación
La cantidad de habitaciones que se construirán debe decidirse en la etapa de diseño. El diseño del baño depende directamente de su área. Algunas habitaciones (vestuario, cuarto de servicio) pueden caber de manera compacta en 1 m2, pero para un área de recreación o sala de vapor, ya necesita espacio. En saunas grandes, se proporcionan los siguientes espacios interiores:
En baños confortables, unidos a lujosas mansiones o fincas, también equipa habitaciones para un buen descanso, que no se limita a reuniones en la mesa. Dichas salas pueden albergar una sala de billar, un cine en casa, un área para juegos de mesa e incluso pistas de baile.
Con terraza o veranda
Los baños con terrazas o terrazas proporcionarán a la empresa una maravillosa recreación al aire libre, que es especialmente agradable después de una sala de vapor congestionada, cuando una brisa fresca enfría rápidamente el cuerpo caliente. La principal ventaja de estas instalaciones es la posibilidad de su disposición después de la finalización de la construcción principal. Las terrazas y terrazas ni siquiera se pueden marcar en los dibujos originales. Son fáciles de construir después del hecho, cuando los propietarios se dan cuenta de que necesitan precisamente esas áreas adicionales para la recreación. Las terrazas y terrazas son convenientes para los amantes de la barbacoa. El aire libre no permitirá "inundar" a toda la compañía y los reunidos no tendrán que respirar humo. También es bastante fácil llevar a cabo la iluminación para las reuniones nocturnas en una terraza o un cenador: solo una o dos bombillas en pantallas de lámparas son suficientes. La ausencia de vidrio se compensa con una mosquitera. De las deficiencias, solo se observa la imposibilidad de usar el sitio en invierno. Aunque hay terrazas acristaladas y aisladas.
Con piscina o fuente
Los baños grandes están equipados para baños grandes. La disposición interna ofrece la posibilidad de su uso durante todo el año. Para frascos pequeños, se eligen fuentes compactas. Estos tanques pueden tener una disposición central o angular. Si no hay lugar debajo del tanque de agua en el baño, entonces se saca del edificio, por supuesto, cuando el tamaño del sitio lo permite. La presencia de un depósito de agua fría es muy útil, porque después de un fuerte calentamiento del cuerpo debe enfriarse. La “terapia de choque” se considera parte de los procedimientos de contraste que son útiles principalmente para la piel. En invierno, los amantes extremos generalmente prefieren sumergirse en el hoyo o pasar el rato en los ventisqueros y limpiarse con nieve. Para muchos, tales costumbres pueden parecer salvajes y peligrosas.De hecho, prácticamente no provocan estrés en el cuerpo, ya que un cuerpo fuertemente calentado pierde parte de su sensibilidad habitual al frío. En casos raros, las fuentes se reemplazan con barriles de agua. De alguna manera, tales unidades se parecen al furaco japonés, pero el agua en ellas no se calienta, sino que permanece fría.
Muebles y equipamiento para baños
En el baño siempre hay una poderosa fuente de calor: la estufa. Este es el corazón vivo del edificio, que anteriormente fue tratado con especial inquietud. Dependiendo del material del horno, se clasifican en los siguientes tipos:
Según el tipo de combustible utilizado, el horno se divide en los siguientes tipos:
Lo principal al elegir un horno: el cálculo correcto de la correspondencia de su potencia y el área de la habitación con calefacción. Otro matiz importante para unas vacaciones de calidad es la iluminación. Se debe proporcionar luz a cada habitación del baño. De hecho, todas las habitaciones, excepto el vestidor y la sala de vapor, conservan la atmósfera típica de las salas de estar comunes. Por esta razón, el cableado, los cartuchos, los interruptores para ellos eligen lo mismo que para el dormitorio o el invitado en la casa.
Pero para la sala de vapor y el vestidor es mejor comprar equipos especiales diseñados para trabajar en condiciones difíciles con alta humedad y altas temperaturas. Incluso las bombillas deben comprarse especiales. Los muebles para el baño se eligen de acuerdo con la decisión estilística. En los apartamentos caros ponen lujosos sofás suaves, sillones, mesas con encimeras de mármol de colecciones de diseñadores. Para los estilos más simples (país, ruso, provenzal) utilizan muebles de madera crudos pero funcionales. Para la sala de recreación, un conjunto conciso de bancos y una mesa es suficiente.
Dónde y desde dónde construir un baño
El lugar para el baño debe elegirse lejos de los edificios residenciales. Se recomienda observar una distancia de al menos 5 m. Las normas y estándares para distancias entre edificios de varios tipos se prescriben en el SNiP (basado en el material utilizado para la fabricación de estructuras, techos y elementos individuales de edificios). Antes de la construcción, debe familiarizarse con estas disposiciones para que luego no tenga que demoler el baño por completo. La plataforma debe estar nivelada. Las pendientes y la proximidad de los cuerpos de agua (fuentes de humedad) pueden provocar un cambio en los cimientos. Si no hay lugares planos en el sitio, use tierra a granel, que se apisona cuidadosamente. No puedes bañarte junto a una valla vecina. La distancia debe ser de al menos 1 m. La construcción no debe oscurecer parte de la tierra extranjera. No se puede bañar cerca del bosque (distancia mínima: 15 m).También está prohibido colocar este edificio cerca de pozos o pozos. Un requisito especial es para los baños que se ahogan en negro. Por lo general, deben colocarse en las afueras, y se observa una distancia de 12 m hasta el edificio más cercano.
Selección de fundaciones
La base del edificio es de dos tipos:
La más duradera y resistente se considera cinta. La profundidad de la base se calcula en función del nivel de congelación de la tierra, que difiere en diferentes latitudes. Primero, cava un hoyo de la profundidad deseada. Su fondo está cubierto con una capa de arena. Luego cubra con una almohada de piedra triturada u otro tipo de piedra fracción fina. Después de eso, toda la "cinta" se vierte con hormigón. Antes de la solidificación, se añaden partes metálicas de refuerzo a la composición. La base de la columna se usa solo para latas de luz de un solo piso que están hechas de madera. De hecho, el edificio se basará en un sistema de pilotes que lo elevará por encima del suelo. La base columnar es adecuada para cualquier tipo de suelo (incluso para regiones donde el permafrost), se adapta fácilmente a sitios con terreno complejo, que se erige rápidamente. Después de la construcción de la base para la casa de baños, comienzan a trabajar en el área ciega.
Baños en la casa
En las casas, los baños se ubican con mayor frecuencia en el sótano, el sótano y con menos frecuencia en los primeros pisos. La combinación de la parte residencial de la casa y la sala de vapor aumenta el riesgo de incendios. Las saunas finlandesas secas son las más peligrosas a este respecto. Los baños rusos con aire húmedo u ofuros japoneses compactos son mucho más confiables. Los expertos recomiendan elegir hornos eléctricos para tales salas de vapor, ya que es el más seguro.Además, la habitación debe aislarse cuidadosamente de la parte residencial de la casa para evitar la propagación del vapor en otras habitaciones, que está cargada de papel de pared y muebles tapizados. Sin embargo, los baños en la casa también tienen una serie de ventajas, la principal de las cuales es la proximidad de la instalación. Para derretir la estufa, no es necesario salir de la casa. Es muy conveniente especialmente en invierno. De estas latas, generalmente no se puede salir y zambullirse en la nieve o en un estanque, sin haber pisado o ensuciado los pisos en las salas de paso.
Baño de madera
Los baños fueron construidos tradicionalmente de madera. Debido a la presencia de microporos en la superficie del árbol, "respira" y libera partículas curativas y aromáticas durante el calentamiento. No se recomienda construir baños de coníferas, ya que se cubren con resina con el tiempo. El líder entre los materiales de construcción de madera se considera un bar. Es un registro cuidadosamente planeado. La viga puede ser diferente: perfilada, pegada, sin planear, sólida, redondeada. Es confiable, ecológico y duradero. El más duradero es vigas pegadas. Se obtiene pegando láminas secas, seguido de fijación bajo una prensa. Desafortunadamente, como cualquier otra madera, la madera está podrida. Sin embargo, las impregnaciones especiales ayudarán a ralentizar este proceso. Con el tiempo, el material disminuirá de tamaño. La contracción más activa en madera entera. El material retiene bien el calor en el baño. No hace mucho tiempo, apareció una nueva palabra en el mercado de la construcción: "paneles SIP". Son una especie de "sándwiches" y consisten en dos láminas de OSB, cuyo espacio se llena con espuma de poliestireno. El material no puede clasificarse como respetuoso con el medio ambiente, pero retiene cualitativamente el calor en la habitación y puede soportar incluso temperaturas muy bajas. Los paneles SIP se ven muy feos, por lo tanto requieren acabados decorativos. La práctica de su uso en la construcción nos llegó de Canadá.Frágiles, a primera vista, los paneles tienen buenas características de rendimiento. Es fácil trabajar con el material, y la construcción en sí será bastante fácil. Armonizado con una casa de baños de madera, habrá pistas hechas de grava o guijarros pequeños, un césped cuidadosamente recortado, raros mezcladores raros o macizos de flores en bañeras, luces bajas de la calle.
Ladrillo independiente
Los baños de ladrillo tienen una vida más larga que los edificios similares hechos de madera y sus derivados. Desde el punto de vista de los costos de material, esta opción pagará dos o incluso tres veces con el tiempo. Para la construcción, no solo se utiliza ladrillo ordinario, sino también hormigón celular, silicato de gas y bloque de hormigón celular. Estos materiales tienen una apariencia muy poco atractiva y, por lo tanto, requieren acabados decorativos. Los bloques de silicato de gas están hechos de agua, cal, polvo de aluminio y arena. Durante la mezcla de los componentes, comienzan a emitir gas, lo que proporciona a los "ladrillos" una estructura porosa, lo que los hace bastante livianos. Los bloques de espuma están hechos de agua, arena, cemento y un agente espumante. La contracción del material depende de la calidad de la mezcla de los componentes durante el llenado del molde. Debido a esto, el error en la geometría de los bloques de espuma es alto (hasta 3 cm). El hormigón celular es otro tipo de ladrillo artificial. Aunque el plazo de su operación excede los 50 años, y en la clasificación de combustibilidad, el material se clasifica como refractario, a veces muy cerca de las fuentes de fuego, los bloques pueden explotar. Los edificios de ladrillo en el sitio estarán en armonía con las cercas de piedra y los senderos del jardín desde adoquines embalsamados, bancos ordenados a lo largo de los callejones del parque, jardines de rocas y rocas.
Variedades de baños.
La práctica de cocinar al vapor en una habitación / contenedor especial está presente en casi todas las culturas. Pero cada país tiene sus propias tradiciones y características de los baños de visita. Además, se han formado a lo largo de muchos siglos.Las historias de "baño" más largas pueden considerarse japonesas y rusas. En el primer caso, el deseo de los pueblos orientales de preservar cuidadosamente sus costumbres, que llevan a través de generaciones, se vio afectado. En la situación con la casa de baños rusa, la simplicidad y la accesibilidad de este método de lavado, que siempre han jugado un papel importante para nuestra persona, es importante. Considere las cuatro opciones más populares que han recibido reconocimiento no solo en el hogar, sino también en el extranjero.
Ruso
Inicialmente, la casa de baños rusa se ahogó en negro. No había chimenea en la estufa, por lo que el humo entró directamente en la sala de vapor, donde circulaba y calentaba las paredes. Después de eso, salió a través de aberturas especiales en el techo, paredes (ventanas pequeñas) y una puerta entreabierta. Luego, la casa de baños fue ventilada para que no quedara monóxido de carbono. Después de eso, se cerraron todas las ventanas de las puertas, se borró el hollín de los bancos y la sala de vapor estaba lista para su uso. En negro, este método de calentar la habitación se llamó debido al hecho de que el techo y las paredes de esa habitación estaban fumados. Para aumentar periódicamente la humedad, se colocaron necesariamente piedras y recipientes de agua en la sala de vapor. El líquido se vertió sobre los adoquines calentados, se evaporó instantáneamente y el aire volvió a humedecerse. En los baños negros solo los pobres se ahogaron. Por cierto, nos lavamos solo una vez a la semana, los sábados por la noche. En primer lugar, durante los días hábiles no había tiempo para derretir la casa de baños todos los días, era más fácil dedicar todo el día al procedimiento. El sábado es el primer día libre, y el domingo asistieron a la iglesia, lo que no se podía hacer estando sucio. El día del baño se extendió desde el almuerzo hasta la noche. Visitaron la sala de vapor en grupos (mujeres y niños, y luego hombres). Las personas coronadas tampoco desdeñaron la casa de baños. En la dinastía Royal Romanov, la práctica de visitar la sala de vapor era constante. Con el tiempo, las casas de baños rusas se volvieron más bellas y nobles. La madera todavía se considera un material clásico, pero ahora está decorada con tallas ornamentales.Una fuente de agua fría está unida al edificio, un pequeño tanque en el que puede enfriarse rápidamente. Había más habitaciones en la casa de baños: se agregaron salas de relajación, piscinas, buffets o cocinas de verano. Pero el principio mismo del procedimiento, así como el efecto terapéutico del mismo, se mantuvo sin cambios.
Finlandés
La sauna finlandesa es el principal competidor del baño de troncos ruso. Externamente, ambas salas de vapor son muy similares, aunque tienen una serie de diferencias notables. En primer lugar, los baños rusos mantienen un alto nivel de humedad (alrededor del 90%) y un régimen de temperatura bastante suave. En la sauna finlandesa vapor "seco". El nivel de humedad no supera el 30%, y la temperatura debajo del techo puede alcanzar los 160 grados. La sauna finlandesa ofrece estanterías a diferentes niveles. Aquellos a quienes no les gustan los efectos de la temperatura de choque, eligen lugares más cercanos al piso. Los extremistas prefieren bancos debajo del techo. Las saunas finlandesas no usan escobas. En condiciones de aire tan caliente y seco, el impacto de las varillas quemará fácilmente la piel. No incluido en saunas y fuentes. Los finlandeses prefieren refrescarse en amplias piscinas. Muchos discuten sobre qué baño es más útil: ruso o finlandés. De hecho, ambos pares tienen un efecto curativo en el cuerpo. La pregunta es solo en las preferencias individuales: a alguien le gusta volar en seco, y alguien prefiere el aire húmedo y caliente de una casa de baños rusa.
Japonés
Los baños japoneses no son muy similares a las salas de vapor a las que todos estamos acostumbrados. La cultura oriental es realmente diferente en muchos aspectos de la nuestra, y lo que se ha vuelto familiar para los japoneses, para el resto del mundo, puede parecer interesante y original, y a veces incluso extraño.Para comenzar, entenderemos los tipos de baños que se usan en la Tierra del Sol Naciente. Hay tres de ellos:
Ofuro es una caja de madera de forma rectangular con paredes gruesas, llena de aserrín o guijarros. El contenido del contenedor se calienta, después de lo cual una persona se sumerge en él. Además de los efectos de la temperatura en el cuerpo, las piedras pequeñas también tienen un efecto de masaje. Ofuro es un tipo de baños compactos, que no solo no ocupan mucho espacio en la habitación, sino que también se golpean fácilmente con sus propias manos. Furaco es una fuente pequeña que se divide en dos partes. En uno hay tiendas y se vierte agua aquí. En otra parte hay un elemento calefactor. Muy a menudo, una estufa de leña o eléctrica actúa en su papel. Al principio, una persona percibe el agua caliente, pero gradualmente el cuerpo se acostumbra a la temperatura y se relaja. Sento es una piscina llena de agua caliente. De hecho, este es el mismo furaco, pero para grandes empresas. Entran en sento solo limpios, deben ducharse antes del procedimiento. En la piscina hay equipos especiales que calientan el agua. A los japoneses les encantan los tratamientos de agua contrastantes. Por lo tanto, primero tome una ducha fría y luego nade en una piscina caliente. Cada carrera no dura más de 15 minutos.
Hammam
Hammam (hammam) es un baño turco tradicional. Los baños romanos fueron tomados como modelo para ella. A diferencia de la sauna finlandesa, donde la habitación está revestida de madera, el hammam está alicatado. El nombre inusual proviene de la palabra árabe "jamón", que se traduce como "caliente". De hecho, la temperatura promedio en los baños turcos no supera los 60 grados, y el nivel de humedad alcanza el 100%. El hammam es ideal para aquellos que no pueden tolerar el "vapor seco" de la sauna y las altas temperaturas, ya que aquí se crea una atmósfera suave. En primer lugar, esta categoría incluye núcleos y personas que tienen problemas de presión. Los hammams en Turquía siguen siendo populares.Casi todas las aldeas tienen una casa de baños, y en la capital del estado hay más de cien. Además, hay dos edificios modernos con un diseño original, así como hermosos y antiguos hammams, en los que los invitados distinguidos se dispararon en la antigüedad.
Diseño
Los baños incorporan los estilos más diversos, pero hay un grupo de tendencias que son especialmente populares entre los diseñadores. Estos incluyen:
El diseño estilístico se selecciona en función de las preferencias estéticas de los propietarios. Además de las áreas anteriores, los baños a menudo representan la Provenza (otro tipo de país), Art Deco, loft de lujo, antigüedades y estilos étnicos.
Conclusión
En Rusia, los baños estaban rodeados de un honor especial. Le dieron un significado sagrado a este lugar, aquí limpiaron no solo el cuerpo, sino también el alma. En la cultura oriental, este proceso se llamaría meditación. Incluso se creía que el propietario era mejor para quien la casa de baños es más hermosa, es decir, la casa fue juzgada por una persona, no por el estado de su choza. Junto con el sudor, las toxinas y las toxinas realmente salen del cuerpo, y con visitas regulares a la sala de vapor, mejora el estado de los sistemas respiratorio y circulatorio. Sin embargo, no vale la pena abusar de tales procedimientos. No es de extrañar que nuestros antepasados se lavaran en la casa de baños solo una vez a la semana. Esto es suficiente para una recuperación integral sin dañar el cuerpo. Una casa de baños en la parcela es una excelente alternativa a las duchas y bañeras estrechas. En él no solo puede relajarse, sino también organizar reuniones entre viajes a la sala de vapor en un círculo cercano de familiares y amigos.