Construcción de baño de bricolaje: en la cabaña por etapas
Cada persona, al menos una vez en su vida, visitó una sauna o una sala de vapor. Las sensaciones de estar en un baño caliente no se pueden olvidar. Los procedimientos de baño contribuyen al rejuvenecimiento y la curación del cuerpo. Muchos propietarios de sus propias parcelas no son reacios a construir una habitación especial equipada para el lavado con agua caliente. La forma más fácil es solicitar un proyecto terminado a profesionales, pero puede intentar construir un baño con sus propias manos. Esto ahorrará significativamente el presupuesto familiar y obtendrá una experiencia invaluable.
Las ventajas y desventajas de la autoconstrucción.
Construir una casa de baños con sus propias manos en el jardín es un proceso complejo, pero creativo y creativo. La autoconstrucción es bastante popular. Entre las principales ventajas de realizar el trabajo por su cuenta se pueden identificar:
la posibilidad de utilizar un proyecto desarrollado de acuerdo con las necesidades personales, teniendo en cuenta las preferencias de todos los miembros de la familia;
ahorrando dinero, el propietario mismo administra el presupuesto asignado y no paga la cantidad anunciada por el contratista;
es posible construir en etapas, invirtiendo pequeñas cantidades;
confianza en la calidad de los materiales de construcción adquiridos;
ganando y acumulando experiencia, será útil en la construcción de otros edificios;
Orgullo de un edificio construido a mano, que puede presumir ante amigos y familiares.
Las desventajas de la autoconstrucción del baño incluyen:
la necesidad de estudiar proyectos existentes, elaborar su propio esquema;
la adquisición, el transporte de materiales y equipos de construcción, los costos de comprar las herramientas necesarias para llevar a cabo el trabajo;
baja velocidad de construcción, los constructores experimentados construirán una sala de vapor mucho más rápido;
responsabilidad total de todas las etapas del trabajo, desde los cimientos inundados hasta la construcción de paredes y techos, la instalación de ventanas y puertas;
complejidad en la ubicación de equipos de calefacción, servicios de cableado;
debes tener plena confianza en tus habilidades, si no tienes suficiente tiempo, paciencia, dinero, como resultado puede aparecer un objeto inacabado en el cuadro.
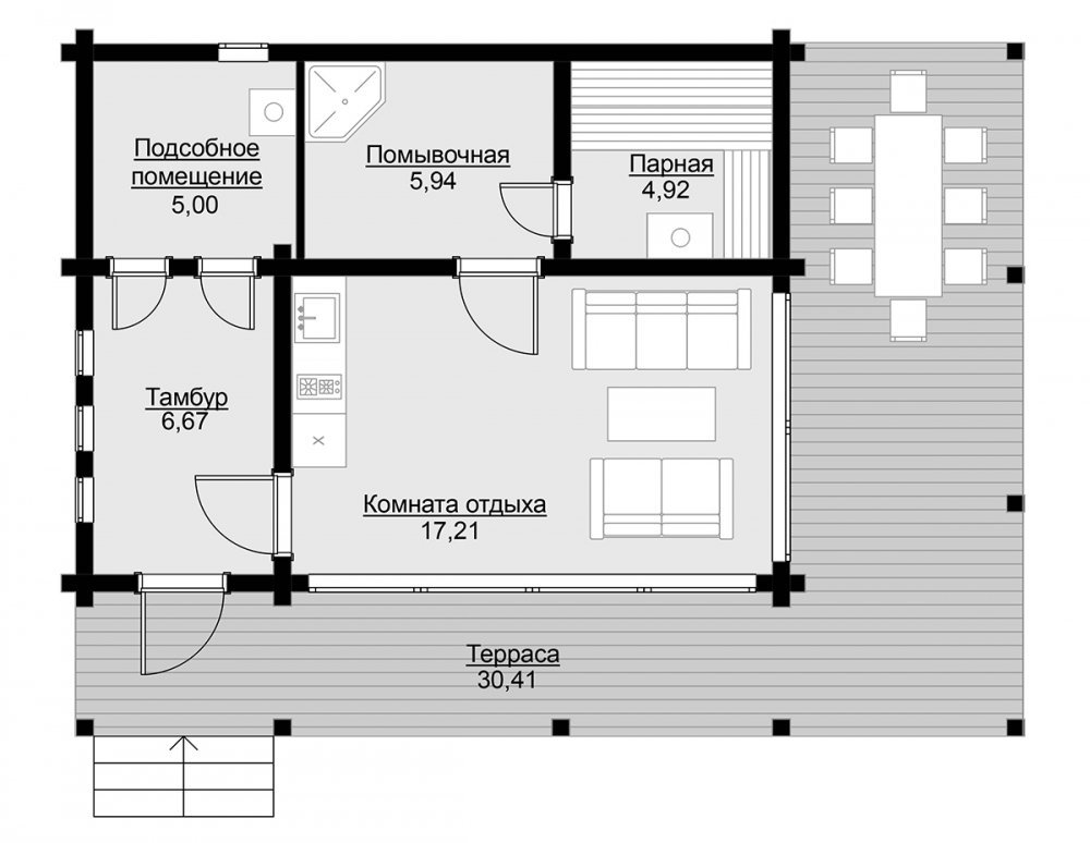
Características de diseño y maquetación
Al construir un baño, inicialmente es necesario determinar la ubicación. Se puede equipar en la casa, adjuntar a ella o hacer una estructura independiente. Pero como muestra la práctica, muchos desarrolladores que eligen la opción combinada con el edificio principal se arrepienten. Otro aspecto importante es la orientación a los puntos cardinales. Por ejemplo, por razones prácticas, es mejor colocar ventanas desde el sur o desde el oeste. También vale la pena observar las normas de distancias entre edificios, teniendo en cuenta la lejanía de la estructura desde los límites del sitio, una casa privada, la distancia hasta el embalse.
La construcción de una sauna, como cualquier otra estructura, comienza con la preparación del proyecto. Al diseñarlo, se tiene en cuenta el número estimado de miembros de la familia que lo visitarán al mismo tiempo, el diseño del sitio, el área asignada y la cantidad de dinero. El esquema puede incluir varias salas, que incluyen una sala de vapor, una sala de lavado, un vestidor, una piscina, una sala de billar y otras salas. Al elaborar un dibujo, debe preocuparse de antemano por todos los puntos importantes, incluir todo lo que necesita en él, lo que le permitirá prescindir de extensiones adicionales, remodelación del edificio.
De acuerdo con la legislación actual, no se requieren permisos para construir una casa de baños en su propio sitio, ya que es una instalación auxiliar. Pero cuando se elabora el proyecto de la sala de vapor, se debe prestar especial atención a la arquitectura y la seguridad contra incendios, se recomienda estudiar los siguientes documentos reglamentarios: Normas y reglamentos de construcción 21-01-97 * "Seguridad contra incendios de edificios y estructuras", normas y reglamentos de construcción 3.04.01-87 "Aislamiento y acabado de revestimientos", SP 1.13130 .2009 “Sistemas de protección contra incendios. Rutas de evacuación y salidas ", SNiP II-L.13-62" Baños. Normas de diseño ".
Área óptima
La sala principal, sin la cual es imposible imaginar un baño, es una sala de vapor. Los estantes se encuentran aquí, se instala una estufa. Además, las habitaciones principales incluyen un cuarto de lavado o ducha, un vestidor, que al mismo tiempo actúa como un lugar para relajarse, un vestidor. Si se planea usar la estructura durante todo el año, se complementa con un vestíbulo, que ayuda a mantener el calor. Al diseñar un baño y determinar sus dimensiones, se tienen en cuenta varios puntos importantes:
su ubicación en el sitio, ya sea una estructura independiente o una extensión de la casa;
nivel de potencia del calentador;
cantidad de visitantes;
el tamaño del sitio, la cantidad de espacio libre en él;
espesor de pared, presencia de aislamiento, acabado usado.
A continuación se encuentran las recomendaciones de especialistas para calcular el tamaño óptimo:
la altura del techo en el baño "ruso" o "finlandés" debe ser superior a 2,1 m;
El tamaño mínimo de la sala de vapor por visitante debe ser de al menos 850 x 1150 mm o 0,98 sq. m;
vestidor - 1000 x 2150 mm o 2.15 metros cuadrados. m;
lavado - 1150 x 1300 mm o 1.49 metros cuadrados. m
Los valores dados son condicionales. Se calculan en función de la altura promedio de una persona. Al planificar, se deben tener en cuenta los parámetros de todos los miembros de la familia. Para un edificio separado, se recomienda que la proporción de la sala de vapor, lavado, vestidor sea de 1: 1.5: 2 partes, respectivamente. En realidad, todo depende de los deseos del propietario.
Zonificación de habitaciones
Para grandes instalaciones, la zonificación no es necesaria. Aquí puede proporcionar libremente una habitación separada para una sala de vapor y una sala de lavado, una sala de billar y una piscina, un comedor y un vestuario, y un horno y un baño. Sin embargo, a veces ante los propietarios del baño existe la necesidad de una disposición competente, la separación del baño en áreas funcionales útiles.
Si aborda el problema correctamente, incluso el único espacio para la relajación puede ser multifuncional. Aquí puede comer, tomar el té, relajarse en el sofá, ver sus programas de televisión favoritos, jugar al billar, pasar tiempo cómodamente con amigos, discutir las últimas noticias. Además, en la sala de relajación, puede proporcionar un vestuario, organizar un lugar para almacenar accesorios de baño.
Para la zonificación, puede usar diferentes técnicas. Las particiones, ventanas, iluminación artificial, muebles disponibles ayudarán a resaltar áreas funcionales, también puede usar diferentes materiales de acabado. Al planificar, los expertos recomiendan dividir el área del comedor de la sala de estar, por ejemplo, colocando una mesa de billar entre ellos. Para crear comodidad adicional ayudará a colocar en una de las esquinas de la chimenea, complementada por un par de sillas.
Extensiones exteriores: terrazas, terrazas, cenadores y zona de barbacoa.
Se puede prever una extensión externa a la casa de baños incluso en la etapa de su diseño, o, si es necesario, se puede ampliar la estructura existente. A menudo sucede que primero se construye una estructura y luego, debido a varias circunstancias, se hace necesario aumentarla. La extensión puede tener un propósito diferente y su tipo depende de las premisas disponibles.
Cuando el baño se expande o se incluyen zonas funcionales adicionales en su composición, a menudo se agrega al proyecto un vestíbulo, una terraza, una terraza, un balcón, un cenador, una cocina de verano y una zona de barbacoa. El anexo más simple es un vestíbulo, dosel o porche. Tampoco causa mucha dificultad construir una terraza, es más difícil construir una terraza abierta o acristalada, y al construir edificios de dos pisos, a menudo se proporciona un balcón.
Si los fondos lo permiten, una de las mejores soluciones es un cenador construido o una cocina de verano con estufa o barbacoa.La estufa le permite mejorar la apariencia general del baño, disfrutar de una deliciosa cena aromática, mantener una temperatura del aire confortable. Sin embargo, debe recordarse que la estufa tiene un peso suficientemente grande, por lo tanto, al levantarla, se debe prestar especial atención a la construcción de una base reforzada.
Salas adicionales internas
Sin lugar a dudas, la sala central de cualquier baño es una sala de vapor. De hecho, esta no es la única sala que juega un papel importante. En el edificio, puede proporcionar muchas otras habitaciones útiles, que lo hacen muy cómodo y acogedor. Una de ellas es una sala de ocio en la que puede organizar diversos elementos interiores. Lo principal al equipar esta área es la elección de muebles y materiales de acabado de alta calidad que pueden durar mucho tiempo en condiciones de alta humedad.
En edificios grandes, puede proporcionar una piscina separada. Después de ir a la sala de vapor, a muchas personas les gusta no salir de los cubos, tomar una ducha de verano, pero inmediatamente se sumergen por completo en el agua fría. Sin embargo, la construcción de la piscina requiere servicios de ingeniería. Para llenarlo, se requerirá una gran cantidad de agua, por lo tanto, no funcionará con un simple drenaje, se requerirá un buen sistema de drenaje. Una alternativa a un grupo completo puede ser una fuente pequeña, que se parece a un pequeño barril de madera o un canal grande que puede acomodar simultáneamente a varias personas.
Teniendo en cuenta los proyectos terminados, puede encontrar baños con una sala de billar, un baño, una cocina. Por separado, vale la pena señalar los edificios, que incluyen una sala de estar. Se les puede llamar casas de pleno derecho, que tienen demanda en el país. Proyectos similares tienen sus fanáticos y oponentes. Al elegir este diseño, primero debe pensar en el aumento de la humedad en la casa, prestar atención a la seguridad contra incendios, por ejemplo, usar hornos de gas y eléctricos.
Diseño de comunicacion
Es normal usar una casa de baños o sauna, caracterizada por una alta humedad y temperatura, es imposible sin comunicaciones diseñadas y construidas adecuadamente. Aquí, los servicios públicos están sujetos a mayores requisitos asociados con su operación segura. Se debe prestar especial atención al suministro de agua, saneamiento, electricidad y ventilación.
Incluso en la etapa de diseño, es necesario calcular el volumen de consumo de agua, el número de puntos de entrada de agua. También es necesario determinar de antemano el modo de funcionamiento (estacional, durante todo el año). Si no se debe calentar la estructura en invierno, debería ser posible drenar el agua de todo el sistema para que no se congele a bajas temperaturas.
El arreglo de ventilación es bastante posible hacerlo usted mismo. Es suficiente instalar dos ventanas en la casa de baños. Uno de ellos proporcionará una entrada de aire frío, el otro, para servir para la liberación de oxígeno calentado e inundado. Hay ventilación natural y forzada. En el segundo caso, se utilizan sistemas automáticos costosos que mantienen una temperatura y humedad determinadas en la habitación, o una opción económica, que implica la presencia de ventiladores ubicados en las ventanas de ventilación.
Al organizar la electricidad en una casa de baños, uno debe cumplir con las normas y estándares existentes, por ejemplo, cumplir con GOST R 50571.12–96. Al elegir un cable, se recomienda prestar atención para garantizar que pueda soportar temperaturas de hasta 180 grados. Entre los productos resistentes al calor, se pueden distinguir RKGM, PVKV, PRKS, PMTK y otros. Los enchufes deben ser resistentes al calor, impermeables, tener una instalación oculta. El grado de seguridad del hardware debe cumplir con IP-44 / IP-65. Vale la pena recordar acerca de la automatización de protección (RCD), que necesariamente debe incluirse en el proyecto para conectar el cableado eléctrico.
Qué baño construir - tipos de baños de vapor
Muchos pueblos del mundo en el proceso de su desarrollo tienen sus propias tradiciones únicas en la disposición y uso de los baños. Entre los tipos más comunes, se pueden distinguir complejos de baños rusos, finlandeses, romanos, turcos, irlandeses, japoneses y chinos. Cada uno de ellos se caracteriza por su tamaño, forma, diseño, temperatura del aire, humedad. Detengámonos con más detalle en los tipos más comunes de estas estructuras en el mundo.
Ruso
La característica principal del baño ruso es que el cuerpo se cuece al vapor en aire tibio saturado con vapor de agua. Su temperatura es de 50-70 grados y la humedad del 40-65%. Tradicionalmente, el edificio clásico consiste en un vestidor, un departamento de lavado, una habitación doble. Sala de vapor: el lugar principal del edificio. El atributo principal es el horno. Para su caja de fuego solo se utiliza leña.
Para mantener la temperatura, el horno incandescente se riega con agua e infusiones de hierbas medicinales, debido a lo cual se forma "vapor ligero", después de lo cual se hace más fácil respirar en una habitación humidificada. Para la decoración de paredes y estantes, se utilizan tableros de alerce. Los estantes en sí son en forma de escalones, ubicados cerca del horno. La temperatura en los escalones inferiores es de 50 grados, mientras que en los escalones más altos puede alcanzar los 100 grados y más.
Los cubos con agua generalmente se encuentran en la sala de lavado, las duchas, si el área lo permite, están equipadas con fuentes e incluso piscinas construidas. Anteriormente, el vestidor se usaba como vestuario. Ahora está equipado con una sala de recreación, se divide en diferentes áreas funcionales y se utiliza como lugar para un pasatiempo cómodo y acogedor con familiares o amigos.
Finlandés
La principal característica distintiva del baño finlandés se puede llamar el hecho de que se calienta con vapor seco. Este tipo de sauna es el más caliente. En una sala de vapor, la temperatura del aire alcanza 70-100 grados, mientras que su humedad rara vez supera el 8-20%.Es la baja humedad lo que permite a una persona soportar altas temperaturas, mientras que su aumento en un 5-10% puede provocar quemaduras en la piel, en el peor de los casos, la muerte.
Otro rasgo característico de la sauna es la estufa. Hoy en día, rara vez se instala una estufa de leña común; en cambio, se utilizan estufas eléctricas compactas hechas de acero inoxidable y aleaciones galvanizadas. A diferencia del baño ruso, las piedras no se colocan dentro del horno, sino en su superficie. Esta disposición proporciona un calentamiento más rápido, respectivamente, y el enfriamiento ocurre mucho más rápido.
La duración de la primera entrada en la sala de vapor no debe exceder los 3-5 minutos para no sobrecalentarse. Después de eso, se recomienda tomar una ducha, sumergirse en la piscina y relajarse en la sala de relajación. A partir de las próximas visitas, su duración puede aumentar ligeramente, pero el período máximo de tiempo no debe exceder los 15 minutos, incluso para personas con experiencia, y su número total es de 3 a 6 veces.
Chino
En China, hay toda una cultura de baño. Los componentes principales del baño son las sandalias de madera y el masaje en combinación con la terapia manual. El baño comienza con el baño, que alberga varios jacuzzis. En cada baño por separado, el agua tiene una temperatura diferente: fría, tibia, caliente. Los aceites aromáticos y los pétalos de rosa se agregan necesariamente al agua.
En la misma habitación también hay cabinas gemelas especiales. A diferencia de los pares de vapor rusos, aquí se producen generadores de vapor especiales que no pueden emitir calor caliente proveniente de los calentadores tradicionales. Algunos proyectos de baños incluyen salas especiales para nieve, donde la temperatura del aire se mantiene a menos 10 grados, se produce nieve artificial.
Después de visitar la sala de vapor, la persona debe proceder a un masaje. Los procedimientos comienzan con el vertido de agua tibia, después de lo cual el asistente comienza a frotar todo el cuerpo con una toalla o esponja envuelta en la mano. Este procedimiento dura al menos media hora. Después de cubrir el cuerpo con una toalla fría, comienza el masaje de espalda.Al finalizar los procedimientos, puede volver a ir al baño de vapor, después de haberse rociado con leche y miel.
Hammam
La principal característica distintiva del baño turco es la alta humedad en la sala de vapor, alcanza el 100% a temperaturas relativamente bajas de 45-50 grados. Como resultado, una persona está completamente sumergida en vapor, todos sus músculos se relajan y su circulación sanguínea se normaliza. Además del calentamiento tradicional del cuerpo, una visita al hammam incluye una serie de procedimientos adicionales: pelar, envolver, masajear.
La madera no se usa en la construcción de la sala de vapor. Para decorar la sala de vapor, se utilizan baldosas cerámicas, en opciones más caras: mármol natural. Es muy cómodo acostarse sobre mármol precalentado. El baño se puede calentar de dos maneras, usando agua o calefacción eléctrica. La primera opción es la más rentable, todas las superficies se calientan utilizando tuberías colocadas debajo del revestimiento.
Un atributo obligatorio para los hammams es un generador de vapor que proporciona alta humedad. El dispositivo está equipado con un sensor especial, apaga automáticamente el sistema si la temperatura ambiente supera los 55 grados. Gracias a este dispositivo de sala de vapor, el cabello y la piel se hidratan, el bronceado existente no se elimina del cuerpo, sino que, por el contrario, se fija en él.
Cómo elegir un lugar para construir
Es costumbre comenzar la construcción de una casa de baños eligiendo el lugar más adecuado y elaborando un plan de construcción. Al preparar los cálculos, es importante seguir las reglas y regulaciones que rigen las condiciones para la ubicación de la sala de vapor en el sector residencial. La estructura específica debe ubicarse a una distancia no menor a 1 metro del límite de la sección vecina. Si hay edificios de madera en el patio de los vecinos, debe haber más de 15 metros desde ellos hasta la casa de baños.
Una casa de baños independiente o hecha como una extensión de la casa solo se puede construir teniendo en cuenta las normas y reglamentos sobre áreas naturales, vegetales y protegidas. La distancia permitida al embalse es de 5 metros, un pozo artificial con agua potable - 12 metros, árboles altos - 4 metros, área de bosque - 15 metros.
En casa
La planificación de la construcción de la sala de vapor en la casa debe estar en la etapa de diseño del edificio. Para el baño se requerirá impermeabilización especial, decoración, procesamiento de materiales. A menudo hacen mini-habitaciones, pero lo suficientemente espaciosas para una estancia confortable. Las ventajas del diseño de un edificio residencial junto con un baño incluyen los siguientes factores:
Ahorro de espacio en el jardín;
La capacidad de moverse libremente por las habitaciones, sin tener que salir;
Caja de fuego simplificada. Todos los materiales necesarios están en la sala de estar;
Muy cercano al baño.
Las desventajas de organizar un baño directamente en la casa incluyen un alto riesgo de incendio. Incluso el tratamiento sistemático y de alta calidad de las instalaciones con retardantes de llama no proporciona una protección del 100% contra incendios y humo. También se requerirá barrera de vapor adicional. Debido al aumento de la humedad, será necesario hacer una ventilación difícil. Se puede lograr un buen intercambio de aire instalando equipos costosos en interiores.
Anexo a la casa
Puede adjuntar una casa de baños a un edificio residencial solo si la casa está hecha de ladrillos, bloques de espuma. En otros casos, estar demasiado cerca puede ser inseguro. Puede usar la terraza ya preparada o completar los cimientos de la sauna con un área separada. Antes de colocar el piso, es necesario considerar una buena protección contra la humedad, drenaje de alta calidad.
Puede hacer una extensión de la casa de baños 2 años después de la contracción del edificio residencial principal. Es fácil llevar comunicaciones a la habitación y calentarla. Entre las deficiencias, se puede observar un alto riesgo de incendio debido a la llama abierta. El peligro aumenta si el marco de la casa de verano está hecho de madera de presupuesto, materiales de madera mal procesados. La suciedad y los escombros del horno entran fácilmente en la casa, y el aumento de la humedad destruye el revestimiento de la pared, lo que lleva a reparaciones frecuentes e inevitables.
Independiente
La mejor opción para construir un baño en el sitio. La forma más fácil de salir de una casa de troncos. Una base liviana, una viga para la fabricación de una celosía, se requerirá el material básico para las paredes. La construcción tomará un mínimo de tiempo. Puede implementar de manera segura su equipo de diseño y estufa favorito con cualquier característica.
De los inconvenientes, se puede observar la participación de un área impresionante del área para la construcción y una gran cantidad de materiales de construcción, medios improvisados. Debido a la lejanía del edificio residencial, los costos de calefacción aumentarán, y los intentos de ahorrar conducirán a un deterioro en los parámetros técnicos.
¿Qué material es mejor para construir?
Muchos propietarios de áreas suburbanas sueñan con su propia casa de baños. Pero construirlo según todas las reglas no es fácil. Debido a la presencia del horno, se imponen requisitos muy estrictos a dichas estructuras. Al elegir el material principal, es necesario confiar no solo en el precio y la simplicidad de construir una sauna en el hogar, sino también tener en cuenta el cumplimiento de las condiciones dentro de la sala de vapor.
Los baños se construyen más a menudo de madera o ladrillo. Son estos materiales los que pueden proporcionar altos niveles de aislamiento térmico. No emiten compuestos tóxicos cuando se calientan, tienen una alta resistencia a un ambiente húmedo. Cada tipo tiene sus propias características y se utiliza para la construcción de la sala de vapor, teniendo en cuenta su tamaño, número de pisos, indicadores climáticos.
De una barra de madera
La estructura de madera retiene muy bien el calor, elimina rápidamente toxinas y gases. El bajo peso del baño le permite instalar materiales de construcción sin refuerzo adicional de los cimientos. El tipo de roca le da características especiales a la estructura. Entre las variedades populares, se pueden distinguir las siguientes:
Pino El material económico tiene una apariencia atractiva, un tono claro y suficiente resistencia a la humedad. Debido a la liberación de resina durante el calentamiento, la formación de moho se ralentiza.No se recomienda terminar la sala de vapor con pino, ya que cuando se calienta, se libera jugo espeso, que puede quemar fácilmente la piel.
Árbol de tilo Debido a la baja resistencia a la humedad, solo las variedades especialmente procesadas son adecuadas para la fabricación de baños. El material con excelente resistencia al calor comienza a oscurecerse después de un par de años.
Aspen La densidad de la raza dorada solo aumenta con el tiempo, lo que complica su procesamiento y reparación. El material impermeable retiene el calor perfectamente, pero no está incluido en la categoría de raza económica.
Aliso Las tablas con un hermoso tinte rojizo prácticamente no se encogen, sino que se oscurecen rápidamente al contacto con la humedad.
Hecho de ladrillos
La principal ventaja de la mampostería es la durabilidad. Un baño hecho de tal material durará tranquilamente hasta 20 años. No hay necesidad de revestimiento adicional, ya que el ladrillo en sí mismo se ve atractivo. También una ventaja indiscutible a favor de este tipo de baño será su incombustibilidad, la ausencia de hongos y moho en las paredes.
El peso considerable del ladrillo implica la instalación de una base de tira debajo de una sala de vapor. Esto aumenta el tiempo de construcción. Primero debe rellenar los cimientos de concreto, esperar a que se endurezca por completo, luego instalar las paredes de ladrillo y el techo por etapas.
Puedes construir una casa de baños de ladrillo de silicato rojo o gaseoso. Para cualquiera de los tipos, llevará al menos 1 hora calentar. Además, el edificio deberá aislarse desde el interior. Para diseñar el hogar y otros lugares en contacto con fuego abierto, use ladrillos de arcilla refractaria.
El ladrillo no deja pasar el aire, por lo que al construir un baño, debe cuidar una buena ventilación.
De bloques de espuma
El material asequible le permitirá construir rápidamente un edificio fuerte. Los bloques celulares de forma rectangular regular se procesan en autoclaves, lo que les da todas las características necesarias.El peso ligero de los elementos le permite construir una estructura de baño sin un refuerzo adicional de la base. Los bloques se cortan en pedazos con una sierra para metales simple. La instalación se lleva a cabo con pegamento de cemento especial.
Las desventajas incluyen la higroscopicidad del material. Pero un tratamiento especial puede reducir la salida de calor al exterior. Los bloques de espuma de baja densidad y conductividad térmica son adecuados para construir un baño.
Los cimientos para el baño
La base para el baño debe seleccionarse antes de la construcción, ya que ya no será posible cambiarlo después de verter el concreto. El objetivo principal de los cimientos es la distribución uniforme de la carga en el suelo. La duración del servicio de todo el edificio dependerá del tipo de construcción. Hay varias opciones para verter concreto, que difieren en el método de instalación. Al construir salas de vapor, a menudo se usan las siguientes opciones:
Pila. Aplicar sobre suelos poco saturados de humedad. De acuerdo con el principio de instalación, se divide en columna de tornillo, columna de conducción. La selección de la tecnología de instalación adecuada depende del grado y la dirección del movimiento de la tierra.
Cinta adhesiva Se instala una amplia franja de concreto alrededor del perímetro de todo el edificio. Este enfoque simplifica la erección de las paredes del baño, no tendrá que reforzar la estructura. Puedes hacer una cinta pura o una base de bloque.
Monolítico El mortero de cemento se vierte alrededor de todo el perímetro del futuro edificio. El espesor de la losa continua debe ser de al menos 30 cm.
Cómo calentar: la elección de la estufa
Al elegir un horno para un baño, en primer lugar, debe prestar atención al poder. Este indicador debe corresponder al volumen de la sala de vapor. Además, la presencia de áreas no aisladas, el material de la puerta se tiene en cuenta. Según el tipo de combustible, las estufas para un baño son las siguientes:
Quema de leña. La versión clásica del horno le permite crear una atmósfera especial. Para el árbol ubicuo, no se requieren comunicaciones adicionales.Puede cosechar independientemente todo tipo de variedades para crear un efecto diferente.
Gas. Los agregados impresionantes solo pueden ser conectados por un gasista calificado. En tales estufas no es necesario tirar constantemente leña y controlar la llama. No tienen horno ni cenicero. Los hornos de gas aumentan significativamente el riesgo de incendio de toda la estructura.
Hornos electricos Los dispositivos en miniatura calientan la habitación de manera uniforme y rápida. Las instalaciones son absolutamente seguras, con gran funcionalidad. Debido al alto consumo de electricidad, el costo de operación será alto.
Instrucciones paso a paso para construir un baño independiente
Después de haber decidido hacer una casa de baños cómoda en su casa de verano, no es necesario recurrir a especialistas para obtener ayuda. Incluso con poca experiencia en la construcción, dicha construcción se puede organizar de forma independiente. Primero, elaboran un proyecto y seleccionan materiales. En esta etapa, es importante tener en cuenta la posición geográfica del edificio y las condiciones de su funcionamiento. Los siguientes procedimientos de erección se realizan paso a paso.
Preparación del sitio para la construcción.
Cuando se ha seleccionado un lugar adecuado y se ha traído el material, puede comenzar a preparar el sitio para la construcción. Dependiendo de los detalles del suelo, se determina el tipo de base. El sitio de construcción debe ser plano con una ligera pendiente para el flujo de agua.
Primero, dibujan el contorno de los cimientos futuros y eliminan toda la vegetación del suelo. Luego, las clavijas se mueven alrededor del perímetro, según el área de construcción. A partir de columnas con tablas clavadas, realice un vaciado y aplique las dimensiones axiales del contorno de la base.
En la siguiente etapa, comienzan a cavar un pozo, pozos para postes o trincheras. Cuando se alcanza la profundidad requerida, se instalan escudos especiales para evitar que el suelo se derrame. Al final de la excavación, se retiran.
Fundación vertiendo
Para un baño separado de una barra, una base columnar es adecuada.La base presupuestaria puede soportar fácilmente una estructura de madera relativamente ligera. Luego excave el número requerido de hoyos con un cierto paso. Presencia obligatoria de soportes en las esquinas, en la intersección de muros.
Piedra triturada y arena se vierten en el fondo del pozo. Luego, la tubería de fibrocemento se instala estrictamente vertical y fija. Los accesorios se colocan dentro y se vierte mortero de hormigón. Unos días más tarde, esperando la solidificación completa, entre las tuberías alrededor del perímetro había una pequeña pared en medio ladrillo.
Paredes y techos
Más a menudo, para la construcción de un baño independiente, se usa una viga de 15 x 15 cm. Proceda con la instalación de la primera corona después de colocar la impermeabilización y el procesamiento minucioso de los materiales en contacto con la base. Puede unir las barras de varias maneras: en tacos rectangulares, en la espiga de la raíz, utilizando el método de cola de milano. Durante el conjunto de paredes, la conexión de las coronas se produce con la ayuda de alfileres especiales de madera y metal.
En la siguiente etapa, se instala el dispositivo de techo. Primero, elija una forma de techo adecuada, instálela de acuerdo con el plan de la viga. Luego se levanta el soporte y se fija de forma segura. Se fijan con tablas de planchar, se cubren con material impermeabilizante, aislamiento y se monta el material de cubierta seleccionado.
Barrera de calor y vapor
Independientemente del tipo de estufa elegido, cualquier sala de vapor siempre tendrá alta temperatura y humedad. La capa de aislamiento térmico ayuda a retener el calor durante mucho tiempo. Los siguientes tipos de materiales son adecuados para su uso en la construcción del baño:
Película Los lienzos densos pueden ser lisos, ásperos con refuerzo. Esta opción de aislamiento costará barato.
La membrana El material no tejido se coloca encima del aislamiento. Protege contra la condensación y la humedad.
Láminas de aluminio. Una capa especial de papel de aluminio, el metal lavsan retiene efectivamente el calor en una sala de vapor de cualquier tamaño.
Trabajo de acabado interior: qué materiales son mejores para usar
El trabajo de acabado interior debe comenzar con un dispositivo de comunicación. El punto de alcantarillado, el lugar de paso de las tuberías de agua y la electricidad se deben colocar en la etapa de diseño.
Después del trabajo de instalación en la colocación de comunicaciones, proceden a la fabricación de un piso terminado. Puede ser de hormigón o madera. El relleno de cemento será duradero, después del endurecimiento, además, se alicata con azulejos. El piso de madera tiene fugas, queda un pequeño espacio entre los rezagos y las tablas del piso.
Después de instalar las ventanas y la puerta, puede proceder a la decoración interior de las paredes del baño. Se excluye el uso de materiales sintéticos, ya que cuando se calientan emiten sustancias nocivas. El mejor tipo de decoración es la madera natural. Esto puede ser un tablero de bordes pulidos, blocao, revestimiento. Al elegir la opción adecuada, debe tener en cuenta las características de cada raza y las características de las variedades.
Instalación del horno y estantes.
Los estantes para relajarse en el baño deben ajustarse al tamaño de la habitación y estar hechos de materiales de madera. Primero, un marco estable está hecho de madera, luego se unen tablas pulidas.
Cada propietario elige la estufa, según sus preferencias personales. Si es una unidad pesada, se instala sobre una base especial. La instalación se realiza de acuerdo con todos los requisitos de seguridad contra incendios. Todas las estructuras de madera cerca de una llama abierta deben estar bien aisladas.
Diseño y decoración del baño.
Una gran selección de materiales de acabado le permite crear un interior elegante en interiores, realizando la idea más atrevida. Al elegir el estilo correcto, no debe olvidarse de la funcionalidad y la conveniencia. La acumulación excesiva de objetos en exceso creará una sensación de pesadez y aislamiento.
Para la decoración en estilo ruso, los artículos de madera son adecuados. En los posavasos y estantes de la sala de vapor puede colocar cubos, cucharones de madera.La decoración del piso en el baño serán alfombras de mimbre, en el lavadero serán rejas de madera. Las paredes estarán decoradas con escobas y sombreros de roble para una sala de vapor con alegres inscripciones.
El estilo de chalet implica la presencia solo de objetos femeninos o masculinos. Pueden ser dispositivos de té, ramos de hierbas aromáticas, hermosos manteles o accesorios de un cazador. El estilo moderno no estará exento de elementos de lujo. Los techos en la sala de vapor y sala de relajación son altos, de varios niveles. Los buenos acentos crean iluminación.
Que muebles elegir para un baño
La cantidad de muebles en una casa de baños depende directamente de su tamaño. Para organizar el vestuario, es suficiente instalar una percha de madera. El número de ganchos se puede calcular en función del número total de visitantes, 3-4 piezas por persona. Para almacenar toallas, detergentes, sábanas, puede proporcionar un pequeño armario de pared. Es aconsejable instalar un banco debajo de la percha, que servirá como lugar para doblar la ropa durante el vestuario.
El baño en el comedor debe tener una mesa de madera rodeada de sillas o bancos. Al organizar un lugar para relajarse, puede proporcionar un sofá, sillas suaves. Los estantes para guardar platos y accesorios de baño deben colocarse en las paredes, mientras que es mejor no usar un armario cerrado voluminoso.
Conclusión
Para la mayoría de las personas, la casa de baños evoca emociones extremadamente positivas, por lo que los propietarios de sus propias casas de campo suburbanas y de verano a menudo erigen tales estructuras. Algunos incluyen una sala de vapor en el diseño de la casa, otros prefieren construir estructuras independientes. Para ahorrar dinero, muchos están pensando en cómo construir un edificio con sus propias manos. Este es un proceso bastante lento que requiere mucho tiempo libre, pero el resultado lo vale.
Cada persona, al menos una vez en su vida, visitó una sauna o una sala de vapor. Las sensaciones de estar en un baño caliente no se pueden olvidar. Los procedimientos de baño contribuyen al rejuvenecimiento y la curación del cuerpo. Muchos propietarios de sus propias parcelas no son reacios a construir una habitación especial equipada para el lavado con agua caliente. La forma más fácil es solicitar un proyecto terminado a profesionales, pero puede intentar construir un baño con sus propias manos. Esto ahorrará significativamente el presupuesto familiar y obtendrá una experiencia invaluable.
Contenido
Las ventajas y desventajas de la autoconstrucción.
Construir una casa de baños con sus propias manos en el jardín es un proceso complejo, pero creativo y creativo. La autoconstrucción es bastante popular. Entre las principales ventajas de realizar el trabajo por su cuenta se pueden identificar:
Las desventajas de la autoconstrucción del baño incluyen:
Características de diseño y maquetación
Al construir un baño, inicialmente es necesario determinar la ubicación. Se puede equipar en la casa, adjuntar a ella o hacer una estructura independiente. Pero como muestra la práctica, muchos desarrolladores que eligen la opción combinada con el edificio principal se arrepienten. Otro aspecto importante es la orientación a los puntos cardinales. Por ejemplo, por razones prácticas, es mejor colocar ventanas desde el sur o desde el oeste. También vale la pena observar las normas de distancias entre edificios, teniendo en cuenta la lejanía de la estructura desde los límites del sitio, una casa privada, la distancia hasta el embalse.
La construcción de una sauna, como cualquier otra estructura, comienza con la preparación del proyecto. Al diseñarlo, se tiene en cuenta el número estimado de miembros de la familia que lo visitarán al mismo tiempo, el diseño del sitio, el área asignada y la cantidad de dinero. El esquema puede incluir varias salas, que incluyen una sala de vapor, una sala de lavado, un vestidor, una piscina, una sala de billar y otras salas. Al elaborar un dibujo, debe preocuparse de antemano por todos los puntos importantes, incluir todo lo que necesita en él, lo que le permitirá prescindir de extensiones adicionales, remodelación del edificio.
De acuerdo con la legislación actual, no se requieren permisos para construir una casa de baños en su propio sitio, ya que es una instalación auxiliar. Pero cuando se elabora el proyecto de la sala de vapor, se debe prestar especial atención a la arquitectura y la seguridad contra incendios, se recomienda estudiar los siguientes documentos reglamentarios: Normas y reglamentos de construcción 21-01-97 * "Seguridad contra incendios de edificios y estructuras", normas y reglamentos de construcción 3.04.01-87 "Aislamiento y acabado de revestimientos", SP 1.13130 .2009 “Sistemas de protección contra incendios. Rutas de evacuación y salidas ", SNiP II-L.13-62" Baños. Normas de diseño ".
Área óptima
La sala principal, sin la cual es imposible imaginar un baño, es una sala de vapor. Los estantes se encuentran aquí, se instala una estufa. Además, las habitaciones principales incluyen un cuarto de lavado o ducha, un vestidor, que al mismo tiempo actúa como un lugar para relajarse, un vestidor. Si se planea usar la estructura durante todo el año, se complementa con un vestíbulo, que ayuda a mantener el calor. Al diseñar un baño y determinar sus dimensiones, se tienen en cuenta varios puntos importantes:
A continuación se encuentran las recomendaciones de especialistas para calcular el tamaño óptimo:
Zonificación de habitaciones
Para grandes instalaciones, la zonificación no es necesaria. Aquí puede proporcionar libremente una habitación separada para una sala de vapor y una sala de lavado, una sala de billar y una piscina, un comedor y un vestuario, y un horno y un baño. Sin embargo, a veces ante los propietarios del baño existe la necesidad de una disposición competente, la separación del baño en áreas funcionales útiles.
Si aborda el problema correctamente, incluso el único espacio para la relajación puede ser multifuncional. Aquí puede comer, tomar el té, relajarse en el sofá, ver sus programas de televisión favoritos, jugar al billar, pasar tiempo cómodamente con amigos, discutir las últimas noticias. Además, en la sala de relajación, puede proporcionar un vestuario, organizar un lugar para almacenar accesorios de baño.
Para la zonificación, puede usar diferentes técnicas. Las particiones, ventanas, iluminación artificial, muebles disponibles ayudarán a resaltar áreas funcionales, también puede usar diferentes materiales de acabado. Al planificar, los expertos recomiendan dividir el área del comedor de la sala de estar, por ejemplo, colocando una mesa de billar entre ellos. Para crear comodidad adicional ayudará a colocar en una de las esquinas de la chimenea, complementada por un par de sillas.
Extensiones exteriores: terrazas, terrazas, cenadores y zona de barbacoa.
Se puede prever una extensión externa a la casa de baños incluso en la etapa de su diseño, o, si es necesario, se puede ampliar la estructura existente. A menudo sucede que primero se construye una estructura y luego, debido a varias circunstancias, se hace necesario aumentarla. La extensión puede tener un propósito diferente y su tipo depende de las premisas disponibles.
Cuando el baño se expande o se incluyen zonas funcionales adicionales en su composición, a menudo se agrega al proyecto un vestíbulo, una terraza, una terraza, un balcón, un cenador, una cocina de verano y una zona de barbacoa. El anexo más simple es un vestíbulo, dosel o porche. Tampoco causa mucha dificultad construir una terraza, es más difícil construir una terraza abierta o acristalada, y al construir edificios de dos pisos, a menudo se proporciona un balcón.
Si los fondos lo permiten, una de las mejores soluciones es un cenador construido o una cocina de verano con estufa o barbacoa.La estufa le permite mejorar la apariencia general del baño, disfrutar de una deliciosa cena aromática, mantener una temperatura del aire confortable. Sin embargo, debe recordarse que la estufa tiene un peso suficientemente grande, por lo tanto, al levantarla, se debe prestar especial atención a la construcción de una base reforzada.
Salas adicionales internas
Sin lugar a dudas, la sala central de cualquier baño es una sala de vapor. De hecho, esta no es la única sala que juega un papel importante. En el edificio, puede proporcionar muchas otras habitaciones útiles, que lo hacen muy cómodo y acogedor. Una de ellas es una sala de ocio en la que puede organizar diversos elementos interiores. Lo principal al equipar esta área es la elección de muebles y materiales de acabado de alta calidad que pueden durar mucho tiempo en condiciones de alta humedad.
En edificios grandes, puede proporcionar una piscina separada. Después de ir a la sala de vapor, a muchas personas les gusta no salir de los cubos, tomar una ducha de verano, pero inmediatamente se sumergen por completo en el agua fría. Sin embargo, la construcción de la piscina requiere servicios de ingeniería. Para llenarlo, se requerirá una gran cantidad de agua, por lo tanto, no funcionará con un simple drenaje, se requerirá un buen sistema de drenaje. Una alternativa a un grupo completo puede ser una fuente pequeña, que se parece a un pequeño barril de madera o un canal grande que puede acomodar simultáneamente a varias personas.
Teniendo en cuenta los proyectos terminados, puede encontrar baños con una sala de billar, un baño, una cocina. Por separado, vale la pena señalar los edificios, que incluyen una sala de estar. Se les puede llamar casas de pleno derecho, que tienen demanda en el país. Proyectos similares tienen sus fanáticos y oponentes. Al elegir este diseño, primero debe pensar en el aumento de la humedad en la casa, prestar atención a la seguridad contra incendios, por ejemplo, usar hornos de gas y eléctricos.
Diseño de comunicacion
Es normal usar una casa de baños o sauna, caracterizada por una alta humedad y temperatura, es imposible sin comunicaciones diseñadas y construidas adecuadamente. Aquí, los servicios públicos están sujetos a mayores requisitos asociados con su operación segura. Se debe prestar especial atención al suministro de agua, saneamiento, electricidad y ventilación.
Incluso en la etapa de diseño, es necesario calcular el volumen de consumo de agua, el número de puntos de entrada de agua. También es necesario determinar de antemano el modo de funcionamiento (estacional, durante todo el año). Si no se debe calentar la estructura en invierno, debería ser posible drenar el agua de todo el sistema para que no se congele a bajas temperaturas.
El arreglo de ventilación es bastante posible hacerlo usted mismo. Es suficiente instalar dos ventanas en la casa de baños. Uno de ellos proporcionará una entrada de aire frío, el otro, para servir para la liberación de oxígeno calentado e inundado. Hay ventilación natural y forzada. En el segundo caso, se utilizan sistemas automáticos costosos que mantienen una temperatura y humedad determinadas en la habitación, o una opción económica, que implica la presencia de ventiladores ubicados en las ventanas de ventilación.
Al organizar la electricidad en una casa de baños, uno debe cumplir con las normas y estándares existentes, por ejemplo, cumplir con GOST R 50571.12–96. Al elegir un cable, se recomienda prestar atención para garantizar que pueda soportar temperaturas de hasta 180 grados. Entre los productos resistentes al calor, se pueden distinguir RKGM, PVKV, PRKS, PMTK y otros. Los enchufes deben ser resistentes al calor, impermeables, tener una instalación oculta. El grado de seguridad del hardware debe cumplir con IP-44 / IP-65. Vale la pena recordar acerca de la automatización de protección (RCD), que necesariamente debe incluirse en el proyecto para conectar el cableado eléctrico.
Qué baño construir - tipos de baños de vapor
Muchos pueblos del mundo en el proceso de su desarrollo tienen sus propias tradiciones únicas en la disposición y uso de los baños. Entre los tipos más comunes, se pueden distinguir complejos de baños rusos, finlandeses, romanos, turcos, irlandeses, japoneses y chinos. Cada uno de ellos se caracteriza por su tamaño, forma, diseño, temperatura del aire, humedad. Detengámonos con más detalle en los tipos más comunes de estas estructuras en el mundo.
Ruso
La característica principal del baño ruso es que el cuerpo se cuece al vapor en aire tibio saturado con vapor de agua. Su temperatura es de 50-70 grados y la humedad del 40-65%. Tradicionalmente, el edificio clásico consiste en un vestidor, un departamento de lavado, una habitación doble. Sala de vapor: el lugar principal del edificio. El atributo principal es el horno. Para su caja de fuego solo se utiliza leña.
Para mantener la temperatura, el horno incandescente se riega con agua e infusiones de hierbas medicinales, debido a lo cual se forma "vapor ligero", después de lo cual se hace más fácil respirar en una habitación humidificada. Para la decoración de paredes y estantes, se utilizan tableros de alerce. Los estantes en sí son en forma de escalones, ubicados cerca del horno. La temperatura en los escalones inferiores es de 50 grados, mientras que en los escalones más altos puede alcanzar los 100 grados y más.
Los cubos con agua generalmente se encuentran en la sala de lavado, las duchas, si el área lo permite, están equipadas con fuentes e incluso piscinas construidas. Anteriormente, el vestidor se usaba como vestuario. Ahora está equipado con una sala de recreación, se divide en diferentes áreas funcionales y se utiliza como lugar para un pasatiempo cómodo y acogedor con familiares o amigos.
Finlandés
La principal característica distintiva del baño finlandés se puede llamar el hecho de que se calienta con vapor seco. Este tipo de sauna es el más caliente. En una sala de vapor, la temperatura del aire alcanza 70-100 grados, mientras que su humedad rara vez supera el 8-20%.Es la baja humedad lo que permite a una persona soportar altas temperaturas, mientras que su aumento en un 5-10% puede provocar quemaduras en la piel, en el peor de los casos, la muerte.
Otro rasgo característico de la sauna es la estufa. Hoy en día, rara vez se instala una estufa de leña común; en cambio, se utilizan estufas eléctricas compactas hechas de acero inoxidable y aleaciones galvanizadas. A diferencia del baño ruso, las piedras no se colocan dentro del horno, sino en su superficie. Esta disposición proporciona un calentamiento más rápido, respectivamente, y el enfriamiento ocurre mucho más rápido.
La duración de la primera entrada en la sala de vapor no debe exceder los 3-5 minutos para no sobrecalentarse. Después de eso, se recomienda tomar una ducha, sumergirse en la piscina y relajarse en la sala de relajación. A partir de las próximas visitas, su duración puede aumentar ligeramente, pero el período máximo de tiempo no debe exceder los 15 minutos, incluso para personas con experiencia, y su número total es de 3 a 6 veces.
Chino
En China, hay toda una cultura de baño. Los componentes principales del baño son las sandalias de madera y el masaje en combinación con la terapia manual. El baño comienza con el baño, que alberga varios jacuzzis. En cada baño por separado, el agua tiene una temperatura diferente: fría, tibia, caliente. Los aceites aromáticos y los pétalos de rosa se agregan necesariamente al agua.
En la misma habitación también hay cabinas gemelas especiales. A diferencia de los pares de vapor rusos, aquí se producen generadores de vapor especiales que no pueden emitir calor caliente proveniente de los calentadores tradicionales. Algunos proyectos de baños incluyen salas especiales para nieve, donde la temperatura del aire se mantiene a menos 10 grados, se produce nieve artificial.
Después de visitar la sala de vapor, la persona debe proceder a un masaje. Los procedimientos comienzan con el vertido de agua tibia, después de lo cual el asistente comienza a frotar todo el cuerpo con una toalla o esponja envuelta en la mano. Este procedimiento dura al menos media hora. Después de cubrir el cuerpo con una toalla fría, comienza el masaje de espalda.Al finalizar los procedimientos, puede volver a ir al baño de vapor, después de haberse rociado con leche y miel.
Hammam
La principal característica distintiva del baño turco es la alta humedad en la sala de vapor, alcanza el 100% a temperaturas relativamente bajas de 45-50 grados. Como resultado, una persona está completamente sumergida en vapor, todos sus músculos se relajan y su circulación sanguínea se normaliza. Además del calentamiento tradicional del cuerpo, una visita al hammam incluye una serie de procedimientos adicionales: pelar, envolver, masajear.
La madera no se usa en la construcción de la sala de vapor. Para decorar la sala de vapor, se utilizan baldosas cerámicas, en opciones más caras: mármol natural. Es muy cómodo acostarse sobre mármol precalentado. El baño se puede calentar de dos maneras, usando agua o calefacción eléctrica. La primera opción es la más rentable, todas las superficies se calientan utilizando tuberías colocadas debajo del revestimiento.
Un atributo obligatorio para los hammams es un generador de vapor que proporciona alta humedad. El dispositivo está equipado con un sensor especial, apaga automáticamente el sistema si la temperatura ambiente supera los 55 grados. Gracias a este dispositivo de sala de vapor, el cabello y la piel se hidratan, el bronceado existente no se elimina del cuerpo, sino que, por el contrario, se fija en él.
Cómo elegir un lugar para construir
Es costumbre comenzar la construcción de una casa de baños eligiendo el lugar más adecuado y elaborando un plan de construcción. Al preparar los cálculos, es importante seguir las reglas y regulaciones que rigen las condiciones para la ubicación de la sala de vapor en el sector residencial. La estructura específica debe ubicarse a una distancia no menor a 1 metro del límite de la sección vecina. Si hay edificios de madera en el patio de los vecinos, debe haber más de 15 metros desde ellos hasta la casa de baños.
Una casa de baños independiente o hecha como una extensión de la casa solo se puede construir teniendo en cuenta las normas y reglamentos sobre áreas naturales, vegetales y protegidas. La distancia permitida al embalse es de 5 metros, un pozo artificial con agua potable - 12 metros, árboles altos - 4 metros, área de bosque - 15 metros.
En casa
La planificación de la construcción de la sala de vapor en la casa debe estar en la etapa de diseño del edificio. Para el baño se requerirá impermeabilización especial, decoración, procesamiento de materiales. A menudo hacen mini-habitaciones, pero lo suficientemente espaciosas para una estancia confortable. Las ventajas del diseño de un edificio residencial junto con un baño incluyen los siguientes factores:
Las desventajas de organizar un baño directamente en la casa incluyen un alto riesgo de incendio. Incluso el tratamiento sistemático y de alta calidad de las instalaciones con retardantes de llama no proporciona una protección del 100% contra incendios y humo. También se requerirá barrera de vapor adicional. Debido al aumento de la humedad, será necesario hacer una ventilación difícil. Se puede lograr un buen intercambio de aire instalando equipos costosos en interiores.
Anexo a la casa
Puede adjuntar una casa de baños a un edificio residencial solo si la casa está hecha de ladrillos, bloques de espuma. En otros casos, estar demasiado cerca puede ser inseguro. Puede usar la terraza ya preparada o completar los cimientos de la sauna con un área separada. Antes de colocar el piso, es necesario considerar una buena protección contra la humedad, drenaje de alta calidad.
Puede hacer una extensión de la casa de baños 2 años después de la contracción del edificio residencial principal. Es fácil llevar comunicaciones a la habitación y calentarla. Entre las deficiencias, se puede observar un alto riesgo de incendio debido a la llama abierta. El peligro aumenta si el marco de la casa de verano está hecho de madera de presupuesto, materiales de madera mal procesados. La suciedad y los escombros del horno entran fácilmente en la casa, y el aumento de la humedad destruye el revestimiento de la pared, lo que lleva a reparaciones frecuentes e inevitables.
Independiente
La mejor opción para construir un baño en el sitio. La forma más fácil de salir de una casa de troncos. Una base liviana, una viga para la fabricación de una celosía, se requerirá el material básico para las paredes. La construcción tomará un mínimo de tiempo. Puede implementar de manera segura su equipo de diseño y estufa favorito con cualquier característica.
De los inconvenientes, se puede observar la participación de un área impresionante del área para la construcción y una gran cantidad de materiales de construcción, medios improvisados. Debido a la lejanía del edificio residencial, los costos de calefacción aumentarán, y los intentos de ahorrar conducirán a un deterioro en los parámetros técnicos.
¿Qué material es mejor para construir?
Muchos propietarios de áreas suburbanas sueñan con su propia casa de baños. Pero construirlo según todas las reglas no es fácil. Debido a la presencia del horno, se imponen requisitos muy estrictos a dichas estructuras. Al elegir el material principal, es necesario confiar no solo en el precio y la simplicidad de construir una sauna en el hogar, sino también tener en cuenta el cumplimiento de las condiciones dentro de la sala de vapor.
Los baños se construyen más a menudo de madera o ladrillo. Son estos materiales los que pueden proporcionar altos niveles de aislamiento térmico. No emiten compuestos tóxicos cuando se calientan, tienen una alta resistencia a un ambiente húmedo. Cada tipo tiene sus propias características y se utiliza para la construcción de la sala de vapor, teniendo en cuenta su tamaño, número de pisos, indicadores climáticos.
De una barra de madera
La estructura de madera retiene muy bien el calor, elimina rápidamente toxinas y gases. El bajo peso del baño le permite instalar materiales de construcción sin refuerzo adicional de los cimientos. El tipo de roca le da características especiales a la estructura. Entre las variedades populares, se pueden distinguir las siguientes:
Hecho de ladrillos
La principal ventaja de la mampostería es la durabilidad. Un baño hecho de tal material durará tranquilamente hasta 20 años. No hay necesidad de revestimiento adicional, ya que el ladrillo en sí mismo se ve atractivo. También una ventaja indiscutible a favor de este tipo de baño será su incombustibilidad, la ausencia de hongos y moho en las paredes.
El peso considerable del ladrillo implica la instalación de una base de tira debajo de una sala de vapor. Esto aumenta el tiempo de construcción. Primero debe rellenar los cimientos de concreto, esperar a que se endurezca por completo, luego instalar las paredes de ladrillo y el techo por etapas.
Puedes construir una casa de baños de ladrillo de silicato rojo o gaseoso. Para cualquiera de los tipos, llevará al menos 1 hora calentar. Además, el edificio deberá aislarse desde el interior. Para diseñar el hogar y otros lugares en contacto con fuego abierto, use ladrillos de arcilla refractaria.
De bloques de espuma
El material asequible le permitirá construir rápidamente un edificio fuerte. Los bloques celulares de forma rectangular regular se procesan en autoclaves, lo que les da todas las características necesarias.El peso ligero de los elementos le permite construir una estructura de baño sin un refuerzo adicional de la base. Los bloques se cortan en pedazos con una sierra para metales simple. La instalación se lleva a cabo con pegamento de cemento especial.
Las desventajas incluyen la higroscopicidad del material. Pero un tratamiento especial puede reducir la salida de calor al exterior. Los bloques de espuma de baja densidad y conductividad térmica son adecuados para construir un baño.
Los cimientos para el baño
La base para el baño debe seleccionarse antes de la construcción, ya que ya no será posible cambiarlo después de verter el concreto. El objetivo principal de los cimientos es la distribución uniforme de la carga en el suelo. La duración del servicio de todo el edificio dependerá del tipo de construcción. Hay varias opciones para verter concreto, que difieren en el método de instalación. Al construir salas de vapor, a menudo se usan las siguientes opciones:
Cómo calentar: la elección de la estufa
Al elegir un horno para un baño, en primer lugar, debe prestar atención al poder. Este indicador debe corresponder al volumen de la sala de vapor. Además, la presencia de áreas no aisladas, el material de la puerta se tiene en cuenta. Según el tipo de combustible, las estufas para un baño son las siguientes:
Instrucciones paso a paso para construir un baño independiente
Después de haber decidido hacer una casa de baños cómoda en su casa de verano, no es necesario recurrir a especialistas para obtener ayuda. Incluso con poca experiencia en la construcción, dicha construcción se puede organizar de forma independiente. Primero, elaboran un proyecto y seleccionan materiales. En esta etapa, es importante tener en cuenta la posición geográfica del edificio y las condiciones de su funcionamiento. Los siguientes procedimientos de erección se realizan paso a paso.
Preparación del sitio para la construcción.
Cuando se ha seleccionado un lugar adecuado y se ha traído el material, puede comenzar a preparar el sitio para la construcción. Dependiendo de los detalles del suelo, se determina el tipo de base. El sitio de construcción debe ser plano con una ligera pendiente para el flujo de agua.
Primero, dibujan el contorno de los cimientos futuros y eliminan toda la vegetación del suelo. Luego, las clavijas se mueven alrededor del perímetro, según el área de construcción. A partir de columnas con tablas clavadas, realice un vaciado y aplique las dimensiones axiales del contorno de la base.
En la siguiente etapa, comienzan a cavar un pozo, pozos para postes o trincheras. Cuando se alcanza la profundidad requerida, se instalan escudos especiales para evitar que el suelo se derrame. Al final de la excavación, se retiran.
Fundación vertiendo
Para un baño separado de una barra, una base columnar es adecuada.La base presupuestaria puede soportar fácilmente una estructura de madera relativamente ligera. Luego excave el número requerido de hoyos con un cierto paso. Presencia obligatoria de soportes en las esquinas, en la intersección de muros.
Piedra triturada y arena se vierten en el fondo del pozo. Luego, la tubería de fibrocemento se instala estrictamente vertical y fija. Los accesorios se colocan dentro y se vierte mortero de hormigón. Unos días más tarde, esperando la solidificación completa, entre las tuberías alrededor del perímetro había una pequeña pared en medio ladrillo.
Paredes y techos
Más a menudo, para la construcción de un baño independiente, se usa una viga de 15 x 15 cm. Proceda con la instalación de la primera corona después de colocar la impermeabilización y el procesamiento minucioso de los materiales en contacto con la base. Puede unir las barras de varias maneras: en tacos rectangulares, en la espiga de la raíz, utilizando el método de cola de milano. Durante el conjunto de paredes, la conexión de las coronas se produce con la ayuda de alfileres especiales de madera y metal.
En la siguiente etapa, se instala el dispositivo de techo. Primero, elija una forma de techo adecuada, instálela de acuerdo con el plan de la viga. Luego se levanta el soporte y se fija de forma segura. Se fijan con tablas de planchar, se cubren con material impermeabilizante, aislamiento y se monta el material de cubierta seleccionado.
Barrera de calor y vapor
Independientemente del tipo de estufa elegido, cualquier sala de vapor siempre tendrá alta temperatura y humedad. La capa de aislamiento térmico ayuda a retener el calor durante mucho tiempo. Los siguientes tipos de materiales son adecuados para su uso en la construcción del baño:
Trabajo de acabado interior: qué materiales son mejores para usar
El trabajo de acabado interior debe comenzar con un dispositivo de comunicación. El punto de alcantarillado, el lugar de paso de las tuberías de agua y la electricidad se deben colocar en la etapa de diseño.
Después del trabajo de instalación en la colocación de comunicaciones, proceden a la fabricación de un piso terminado. Puede ser de hormigón o madera. El relleno de cemento será duradero, después del endurecimiento, además, se alicata con azulejos. El piso de madera tiene fugas, queda un pequeño espacio entre los rezagos y las tablas del piso.
Después de instalar las ventanas y la puerta, puede proceder a la decoración interior de las paredes del baño. Se excluye el uso de materiales sintéticos, ya que cuando se calientan emiten sustancias nocivas. El mejor tipo de decoración es la madera natural. Esto puede ser un tablero de bordes pulidos, blocao, revestimiento. Al elegir la opción adecuada, debe tener en cuenta las características de cada raza y las características de las variedades.
Instalación del horno y estantes.
Los estantes para relajarse en el baño deben ajustarse al tamaño de la habitación y estar hechos de materiales de madera. Primero, un marco estable está hecho de madera, luego se unen tablas pulidas.
Cada propietario elige la estufa, según sus preferencias personales. Si es una unidad pesada, se instala sobre una base especial. La instalación se realiza de acuerdo con todos los requisitos de seguridad contra incendios. Todas las estructuras de madera cerca de una llama abierta deben estar bien aisladas.
Diseño y decoración del baño.
Una gran selección de materiales de acabado le permite crear un interior elegante en interiores, realizando la idea más atrevida. Al elegir el estilo correcto, no debe olvidarse de la funcionalidad y la conveniencia. La acumulación excesiva de objetos en exceso creará una sensación de pesadez y aislamiento.
Para la decoración en estilo ruso, los artículos de madera son adecuados. En los posavasos y estantes de la sala de vapor puede colocar cubos, cucharones de madera.La decoración del piso en el baño serán alfombras de mimbre, en el lavadero serán rejas de madera. Las paredes estarán decoradas con escobas y sombreros de roble para una sala de vapor con alegres inscripciones.
El estilo de chalet implica la presencia solo de objetos femeninos o masculinos. Pueden ser dispositivos de té, ramos de hierbas aromáticas, hermosos manteles o accesorios de un cazador. El estilo moderno no estará exento de elementos de lujo. Los techos en la sala de vapor y sala de relajación son altos, de varios niveles. Los buenos acentos crean iluminación.
Que muebles elegir para un baño
La cantidad de muebles en una casa de baños depende directamente de su tamaño. Para organizar el vestuario, es suficiente instalar una percha de madera. El número de ganchos se puede calcular en función del número total de visitantes, 3-4 piezas por persona. Para almacenar toallas, detergentes, sábanas, puede proporcionar un pequeño armario de pared. Es aconsejable instalar un banco debajo de la percha, que servirá como lugar para doblar la ropa durante el vestuario.
El baño en el comedor debe tener una mesa de madera rodeada de sillas o bancos. Al organizar un lugar para relajarse, puede proporcionar un sofá, sillas suaves. Los estantes para guardar platos y accesorios de baño deben colocarse en las paredes, mientras que es mejor no usar un armario cerrado voluminoso.
Conclusión
Para la mayoría de las personas, la casa de baños evoca emociones extremadamente positivas, por lo que los propietarios de sus propias casas de campo suburbanas y de verano a menudo erigen tales estructuras. Algunos incluyen una sala de vapor en el diseño de la casa, otros prefieren construir estructuras independientes. Para ahorrar dinero, muchos están pensando en cómo construir un edificio con sus propias manos. Este es un proceso bastante lento que requiere mucho tiempo libre, pero el resultado lo vale.